Structural Works reach 75% completion.

100% Service, 0% Brokerage
Highly unlikely, but if you find a lower price anywhere, tell us and we will match it.
Our sales personnel are accountable for every step
Structural Works reach 75% completion.
A total of 10 out of 16 launched units have been booked as of February 2026, including 17% of 1 BHK(1 out of 6 units), 83% of 2 BHK(5 out of 6 units), 100% of SHOP(4 units).
During Q3'2025, average property prices for TDM Aarambh moved from ₹ 4,300/sqft to ₹ 4,500/sqft, reflecting a 4.65% rise.
Internal finishing stands at 100%, MEP Services including lift and staircases, are now 100% done.
Internal finishing stands at 99%, MEP Services including lift and staircases, are now 99% done.
Structural Works reach 60% completion, External Works has reached 100%, Internal finishing stands at 95%, MEP Services including lift and staircases, are now 88% done.
A total of 10 out of 15 launched units have been booked as of July 2022, including 17% of 1 BHK(1 out of 6 units), 100% of SHOP(4 units), 2 BHK(5 units).
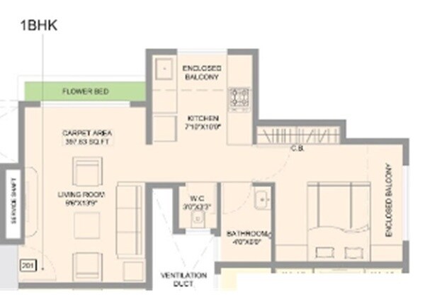
AARAMBH, developed by TDM DEVELOPERS LLP, officially launched on 19-Mar-2020 and expected to complete by 01-Jan-2024. Registered under RERA No. P99000025157. The project comprises 1 towers and offers 16 residential units, including SHOP, 1 BHK, 2 BHK, with unit sizes ranging from 75 to 420 Square feet across a total area of 0.11 Acre.
| Master Bedroom-Walls | Oil Bound Distemper |
| Master Bedroom-Flooring | Vitrified Tiles |
| Other Bedrooms-Flooring | Vitrified Tiles |
| Walls | Oil Bound Distemper |
| Living Area-Flooring | Vitrified Tiles |
| Kitchen-Equipments | Modular Kitchen |
| Structure | RCC Frame Structure |
| Schools Near by TDM Aarambh | |
|---|---|
| Holy Spirit High School And Junior College Palghar | 1.61 KM |
| St John International School | 4.11 KM |
| Mumbai Public School | 12.50 KM |
| Ds Memorial High School | 12.64 KM |
| Hospitals Near by TDM Aarambh | |
|---|---|
| Rajshree Hospital | 1.40 KM |
| Sharda Hospital | 1.96 KM |
| Rural Hospital Palghar | 2.19 KM |
| Palghar Nursing Home And Child Care Centre | 2.24 KM |
| Gauri Clinic Eye And Skin Care Centre | 2.27 KM |
| Kanta Hospital | 2.44 KM |
| Relief Hospital | 2.69 KM |
| Primary Health Center | 5.73 KM |
| Thunga Hospital | 11.97 KM |
| Metro Phoenix Hospital | 12.13 KM |
| Hotels Near by TDM Aarambh | |
|---|---|
| Hotel Stay Inn | 2.82 KM |
| Hotel Express Inn | 12.83 KM |
| Hotel Sarovar | 13.92 KM |
| Shopping Malls Near by TDM Aarambh | |
|---|---|
| Three Star Shopping Centre | 1.67 KM |
| Kuber Shopping Centre | 2.21 KM |
| Rajeshwar Mobile | 7.40 KM |
| Royal Classic Mall | 11.51 KM |
| Shivkala Arcade | 12.71 KM |
| Railway Stations Near by TDM Aarambh | |
|---|---|
| Palghar Railway Station | 2.55 KM |
| Boisar Railway Station | 12.54 KM |
| Post Offices Near by TDM Aarambh | |
|---|---|
| Palghar Head Post Office | 2.28 KM |
| Banks Near by TDM Aarambh | |
|---|---|
| Bank Of India | 12.18 KM |
| Colleges and Universities Near by TDM Aarambh | |
|---|---|
| Sas Institute Of Management Studies | 10.65 KM |
Check Travel Time
Connecting Roads - TDM Aarambh
After taking possession at TDM Aarambh, buyers should inspect electrical fittings, plumbing and water supply (municipal/borewell), elevator operations across 1, parking allocation, common areas, and verify that the flat matches the approved Oil Bound Distemper, Vitrified Tiles, Modular Kitchen, RCC Frame Structure and inventory list before moving in.
TDM Aarambh has received its completion and occupancy approvals. With a possession status of Ready to Move, buyers can move in immediately after completing purchase formalities.
Residents of TDM Aarambh can enjoy amenities such as Kids' Play Areas / Sand Pits, Yoga Areas, Power Backup, Treated Water Supply, 24 x 7 Security, CCTV / Video Surveillance, Normal Park / Central Green, Indoor Games, designed for comfort and a modern lifestyle.
Yes, most major banks and NBFCs offer home loans for ready-to-move projects like TDM Aarambh, subject to eligibility.
TDM Aarambh enjoys excellent connectivity via Palghar Road, Palghar - Manor Road, Boisar-Palghar Road and is well connected to the Palghar City area.
This website is only for the purpose of providing information regarding real estate projects in different geographies. Any information which is being provided on this website is not an advertisement or a solicitation. The company has not verified the information and the compliances of the projects. Further, the company has not checked the RERA* registration status of the real estate projects listed herein. The company does not make any representation in regards to the compliances done against these projects. Please note that you should make yourself aware about the RERA* registration status of the listed real estate projects.
*Real Estate (regulation & development) act 2016.