External Works has reached 100%, Internal finishing stands at 100%, MEP Services including lift and staircases, are now 100% done.

100% Service, 0% Brokerage
Highly unlikely, but if you find a lower price anywhere, tell us and we will match it.
Our sales personnel are accountable for every step
External Works has reached 100%, Internal finishing stands at 100%, MEP Services including lift and staircases, are now 100% done.
Structural Works reach 80% completion, External Works has reached 70%, Internal finishing stands at 38%, MEP Services including lift and staircases, are now 35% done.
Structural Works reach 57% completion, Internal finishing stands at 5%.
A total of 1 out of 18 launched units have been booked as of June 2023, including 6% of 1 BHK(1 out of 16 units).
Structural Works reach 34% completion.
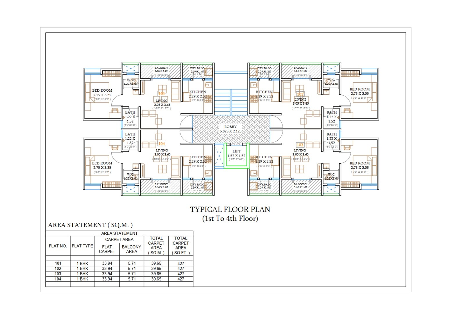
MORYA APARTMENT, officially launched on 10-Jan-2023 and expected to complete by 31-Dec-2024. Registered under RERA No. P52100048642. The project comprises 1 towers and offers 18 residential units, including 1 BHK, 2 BHK, with unit sizes ranging from 355 to 484 Square feet across a total area of 0.11 Acre.
| Master Bedroom-Walls | Oil Bound Distemper |
| Master Bedroom-Flooring | Vitrified Tiles |
| Other Bedrooms-Flooring | Vitrified Tiles |
| Walls | Oil Bound Distemper |
| Living Area-Flooring | Vitrified Tiles |
| Structure | RCC Frame Structure |
| Schools Near by GM Morya Apartments | |
|---|---|
| Huzur Paga School | 0.33 KM |
| St.view International School | 0.44 KM |
| Little Millennium(r) Katraj | 0.60 KM |
| Blue Heavens English Medium School | 0.68 KM |
| Aaryans World School Gokul Nagar | 0.78 KM |
| Unique English Medium School & Jr. College | 0.79 KM |
| Roseland School | 0.80 KM |
| Kai. Pai. Hiraman Bankar Vidyalaya | 0.82 KM |
| Ramrajya Madhyamik School | 0.89 KM |
| Pushpa International School | 0.91 KM |
| Bus Stops Near by GM Morya Apartments | |
|---|---|
| Rajas Society | 0.24 KM |
| Rajesh Society | 0.25 KM |
| Yashwant Vihar | 0.35 KM |
| Mauli Nagar | 0.40 KM |
| Hariprasad Bungalow | 0.44 KM |
| Paramount Garden | 0.51 KM |
| Pragati Udyan | 0.55 KM |
| Sukhsagar Prabhag Number 2 | 0.56 KM |
| Bhushan Society | 0.58 KM |
| Rajas Society Corner | 0.59 KM |
| Hospitals Near by GM Morya Apartments | |
|---|---|
| Vasant More Hospital | 0.26 KM |
| Prerna Hospital | 0.42 KM |
| Siddhivinayak Hospital Sukhsagar Nagar | 0.57 KM |
| Miracle Hospital - Orthopedic And Eye Hospital In Kondhwa | 0.79 KM |
| Khetmalas Hospital / 3d Laparoscopy | 1.00 KM |
| Sai Sneh Hospital | 1.06 KM |
| Royal Hospital | 1.10 KM |
| Jeevandhara Multispeciality Hospital-|best Icu Care Cardiac Care Katraj Pune| | 1.11 KM |
| Pride Multispeciality Hospital | 1.21 KM |
| Namo Multispeciality Hospital | Orthopedic Care | General Surgery | Diabetes | Kondhwa | 1.24 KM |
| Clinics Near by GM Morya Apartments | |
|---|---|
| Todkar Sanjeevani Nisargopchar Kendra Pune | 0.30 KM |
| Dr. Khune's Multispeciality Dental & Cosmetic Centre | 0.41 KM |
| The Skin Miracle | 0.65 KM |
| Chintamani Clinic| Dr Amey Arun Veer | Mbbs- Md | Physician | Diabetologist | Katraj-kondhwa Road | 0.85 KM |
| Dr. C. P. Lingayat Foundation Pune. | 0.98 KM |
| Metropolis Healthcare Ltd - Best Diagnostic Centre In Bibwewadi | 1.12 KM |
| Prakruti Ayurveda | 1.20 KM |
| Lenskart.com At Kondhwa Budruk | 1.25 KM |
| Qtest Lab Dental Diagnostics | 1.31 KM |
| The Spine Clinic | 1.36 KM |
| Restaurants Near by GM Morya Apartments | |
|---|---|
| Kanha Veg | 1.25 KM |
| Gokul Pure Veg | 1.37 KM |
| Itss Yummyy | 1.59 KM |
| Aangan Veg Restaurant | 1.59 KM |
| Crazy Cheesy | 1.62 KM |
| Shreeji Pure Veg | 1.77 KM |
| Hotel Neha | 1.90 KM |
| Ahilyadevi's Thali | 2.03 KM |
| Srinidhi Veg | 2.53 KM |
| Dev Uncle Kitchen | 3.24 KM |
| Gym Fitness Near by GM Morya Apartments | |
|---|---|
| Vishwa Gym | 0.24 KM |
| Truely Fit Fitness Academy | 0.56 KM |
| Gravity Fitness Club | 1.09 KM |
| Elite Fit | 1.25 KM |
| Trap's Gym Katraj | 1.38 KM |
| Muscle Max Fitness | 1.40 KM |
| Regent Fitness Club | 1.42 KM |
| Counter-strike-health & Fitness Club | 1.57 KM |
| Aarogyavardhini Yoga & Zumba Classes | 1.65 KM |
| Shrugs Fitness | 1.75 KM |
| College and Universities Near by GM Morya Apartments | |
|---|---|
| Sharda Shikshan Sanstha | 0.74 KM |
| Aims Institute Of Management Studies | 0.78 KM |
| Sinhagad College Of Kondhva | 0.88 KM |
| Jaikranti College | 1.19 KM |
| Bharati Vidyapeeth Deemed University Pune | 1.28 KM |
| Rajiv Gandhi Institute Of I.t And Biotechnology | 1.39 KM |
| Bharati Vidyapeeth's Jawaharlal Nehru Institute Of Technology (polytechnic / Diploma) | 1.40 KM |
| Bharti Vidyapeeth Polytechnic College(jniot) | 1.45 KM |
| Bharati Vidyapeeth Dental College | 1.47 KM |
| Swaraj College Of Arts | 1.49 KM |
| Temples Near by GM Morya Apartments | |
|---|---|
| Amba Mata Mandir | 0.49 KM |
| Kheteshwar (mandir) Ashram Pune (rajpurohit) | 0.91 KM |
| Shree Shatrunjay Bhaktamar Jain Temple | 1.05 KM |
| Sant Sadguru Balumama Temple | 1.27 KM |
| Karni Mata Temple | 1.27 KM |
| Hasata Hanuman Mandir | 1.31 KM |
| Shree Balaji Temple | 1.38 KM |
| Service Gate | 1.39 KM |
| Iskcon Nvcc Pune | 1.40 KM |
| Katraj Jain Temple | 1.64 KM |
| Supermarkets Near by GM Morya Apartments | |
|---|---|
| More Supermarket | 1.02 KM |
| Dmart Minimax | 1.32 KM |
| Bhosale Super Market | 1.54 KM |
| Dhan Moti Super Market | 1.71 KM |
| S S Enterprises Kakade Nagar Lane No 3 Katraj Kondwa Road Pune | 1.87 KM |
| D Mart Ambegaon | 2.49 KM |
| Tawakkal Super Market | 2.81 KM |
| Devanshi Bazar | 3.71 KM |
| Fresh Mart | 4.00 KM |
| Shree Mart | 4.03 KM |
| Clothings Near by GM Morya Apartments | |
|---|---|
| Bearberry Iskcon Kbk | 1.20 KM |
| New Lifestyle Clothing | 1.76 KM |
| Cotton King | 1.91 KM |
| Kapasi Cotton Complete Mens Wear | 1.94 KM |
| Half Ticket | 2.16 KM |
| Miga Fashion Institute | 2.34 KM |
| Tyzer Ambegaon | 2.55 KM |
| Go Colors Store - Bibewadi | 3.17 KM |
| Go Colors Store - Ambegaon | 3.34 KM |
| C'lai World Ambegoan | 3.35 KM |
Check Travel Time
Connecting Roads - GM Morya Apartments
Katraj is a suburb in Pune, Maharashtra, and falls under the jurisdiction of the Pune Municipal Corporation. A nice locality to live in, Katraj is spoken highly of for its peaceful and quaint surroundings, beautiful landmarks, and its lush greenery, and hilly landscapes. The city is popularly known for its Peshwa-era (18th century) lake in Katraj, which is well-known for providing the city with water during that time. The village is
Nearby landmarks include Rajas Society, Rajesh Society, Yashwant Vihar, Mauli Nagar, Hariprasad Bungalow making the location highly convenient.
The project is currently Ready to Move with progress as per the planned timeline.
GM Morya Apartments offers 1, 2 BHK apartments with multiple layout options to suit different family needs and budgets.
GM Morya Apartments features amenities such as Kids' Play Areas / Sand Pits, Power Backup, Treated Water Supply, 24 x 7 Security, CCTV / Video Surveillance, Normal Park / Central Green, Indoor Games.
Yes, GM Morya Apartments features well-planned layouts with optimal space utilization, good ventilation, and natural light across all unit types.
This website is only for the purpose of providing information regarding real estate projects in different geographies. Any information which is being provided on this website is not an advertisement or a solicitation. The company has not verified the information and the compliances of the projects. Further, the company has not checked the RERA* registration status of the real estate projects listed herein. The company does not make any representation in regards to the compliances done against these projects. Please note that you should make yourself aware about the RERA* registration status of the listed real estate projects.
*Real Estate (regulation & development) act 2016.