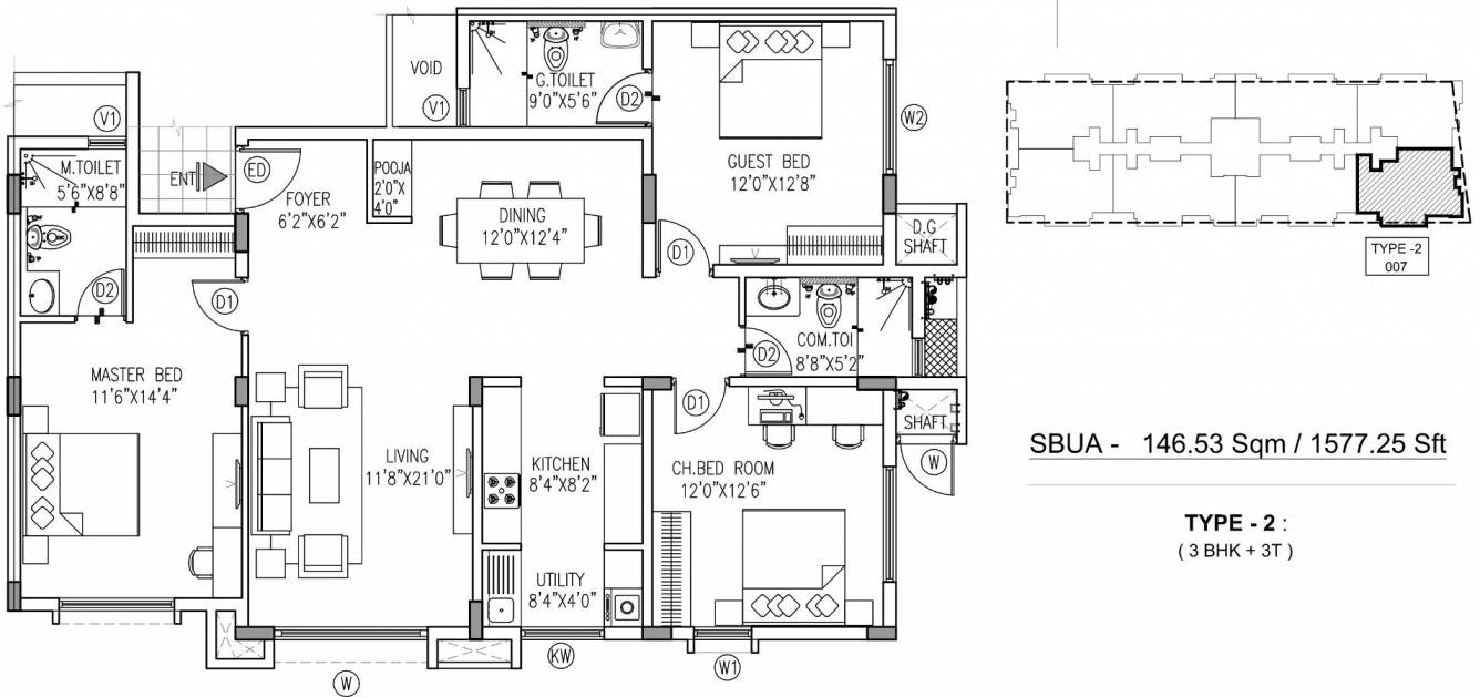
Price Trend
in Happy Valley Pearl
Happy Valley Pearl's average asking price is cooling quarter-on-quarter, compared with Subramanyapura.
| Quarter | Child Rate | Parent Rate |
|---|---|---|
| Dec 2025 | 6450 | 6750 |
| Sep 2025 | 6550 | 7150 |
| Jun 2025 | 5750 | 6950 |
| Mar 2025 | 5250 | 6900 |


































