Structural Works reach 100% completion, External Works has reached 60%, Internal finishing stands at 45%, MEP Services including lift and staircases, are now 15% done.

 
            100% Service, 0% Brokerage
Highly unlikely, but if you find a lower price anywhere, tell us and we will match it.
Our sales personnel are accountable for every step
Own this home with EMIs starting at ₹ 9.58 L/month - Check Cibil Linked Loan Estimate
Structural Works reach 100% completion, External Works has reached 60%, Internal finishing stands at 45%, MEP Services including lift and staircases, are now 15% done.
Structural Works reach 98% completion.
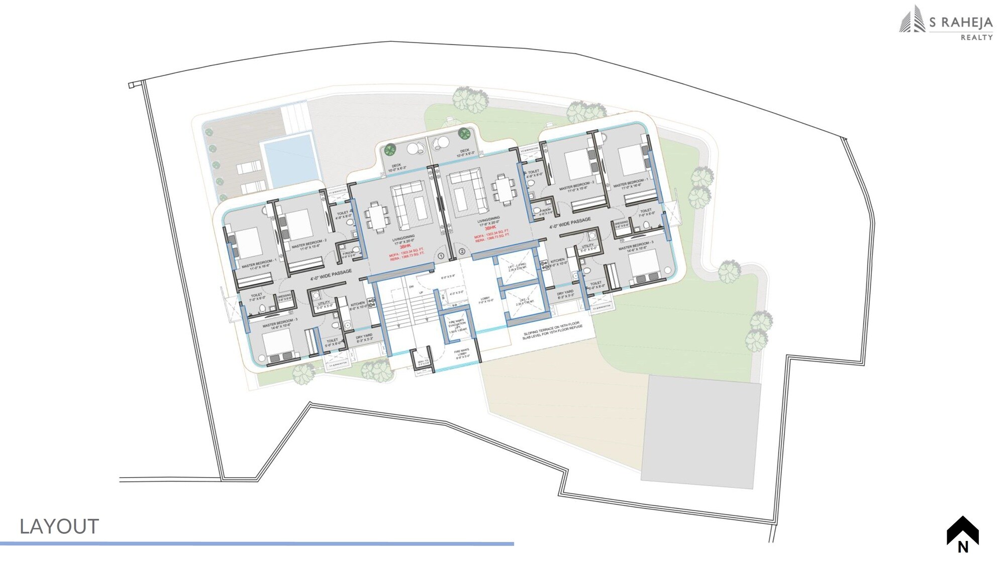
A total of 7 out of 10 launched units have been booked as of December 2024, including 50% of 4 BHK(1 out of 2 units), 75% of 3 BHK(6 out of 8 units).
Structural Works reach 97% completion, Internal finishing stands at 8%.
Structural Works reach 96% completion, Internal finishing stands at 3%.
Structural Works reach 89% completion.
Structural Works reach 86% completion.
Structural Works reach 81% completion.
Structural Works reach 61% completion.
Structural Works reach 29% completion.
| Master Bedroom-Walls | Oil Bound Distemper | 
| Master Bedroom-Flooring | Vitrified Tiles | 
| Other Bedrooms-Flooring | Vitrified Tiles | 
| Walls | Oil Bound Distemper | 
| Living Area-Flooring | Vitrified Tiles | 
| Bathroom | Premium Bath Fittings | 
| Structure | RCC Frame Structure | 
| Schools Near by S Raheja Evergreen | |
|---|---|
| Arya Vidya Mandir | 0.25 KM | 
| St. Josephs Convent School | 0.41 KM | 
| St Joseph's Convent High School | 0.45 KM | 
| Duruelo Convent High School | 0.45 KM | 
| Pali-chimbai Municipal School | 0.48 KM | 
| Apostolic Carmel High School | 0.54 KM | 
| Apostolic Carmel Junior College | 0.55 KM | 
| St. Theresa Boys School | 0.58 KM | 
| Saint Theresa's High School | 0.58 KM | 
| St. Stanislaus High School | 0.58 KM | 
| Bus Stops Near by S Raheja Evergreen | |
|---|---|
| Pali Naka | 0.08 KM | 
| Pali Hill Naka | 0.10 KM | 
| Pali Hill Naka (guru Nanak Road) | 0.12 KM | 
| Hong Kong Bank | 0.16 KM | 
| D Monte Garden | 0.25 KM | 
| Guru Nanak Road | 0.25 KM | 
| Pali Market | 0.28 KM | 
| Moti Mahal | 0.37 KM | 
| Moti Mahal (bandra-w) | 0.43 KM | 
| Perry Cross Road | 0.48 KM | 
| Hospitals Near by S Raheja Evergreen | |
|---|---|
| Holy Family Multispeciality Hospital Bandra | 0.53 KM | 
| Bhabha Hospital | 0.59 KM | 
| Ceds Eye Hospital | Unit Of Dr Agarwals Eye Hospital | 0.67 KM | 
| Ojas Eye Hospital - Best Eye Hospital In Mumbai | 0.75 KM | 
| Trivision Eye Hospital & Lasik Centre - Eye Specialist In Bandra West| Glaucoma | Cataract Lasik Sur | 0.82 KM | 
| Parekhhospital | 0.88 KM | 
| Cess - Center Of Excellence Lilavati Hospital | 0.95 KM | 
| Mahatma Gandhi Seva Mandir Hospital | 0.96 KM | 
| Lilavati Hospital And Research Centre | 0.97 KM | 
| Railway Hospital | 1.09 KM | 
| Restaurants Near by S Raheja Evergreen | |
|---|---|
| 145 Bandra | 0.14 KM | 
| Pali Village Cafe | 0.21 KM | 
| Pali Bhavan | 0.21 KM | 
| Mia Cuccinna | 0.54 KM | 
| Invincible Boudoir & Jardin | 0.55 KM | 
| House Of Mandarin | 0.58 KM | 
| Birdsong - The Organic Cafe | 0.62 KM | 
| Hawaiian Shack | 0.63 KM | 
| Smoke House Deli | 0.66 KM | 
| Hakkasan | 0.68 KM | 
| College and Universities Near by S Raheja Evergreen | |
|---|---|
| St Andrew's College Of Arts | 0.35 KM | 
| St Pauls Institute Of Communication Education | 0.42 KM | 
| Rizvi College Of Hotel Management | 0.83 KM | 
| Rizvi Law College | 0.83 KM | 
| Rizvi College Of Engineering | 0.83 KM | 
| Rizvi College Of Architecture | 0.83 KM | 
| Rizvi Institute Of Management Studies And Research | 0.84 KM | 
| Rd And Sh National College And Swa Science College | 0.86 KM | 
| Mumbai Educational Trust - League Of Colleges | 0.87 KM | 
| Met Institute Of Mass Media | 0.87 KM | 
| Clinics Near by S Raheja Evergreen | |
|---|---|
| Hi Tech Dental Clinic Bandra | 0.16 KM | 
| Ultracare Diagnostic Centre | 0.52 KM | 
| Ufc Gym Bandra | 0.58 KM | 
| Titan Eye+ At Bandra | 0.81 KM | 
| Dr. M. Wasim Ghori | 0.82 KM | 
| Cutis Skin Clinic | Best Skin Specialist In Khar West Mumbai | 0.84 KM | 
| Lenskart.com At Bandra Linking Road | 0.95 KM | 
| Dr Adip Shetty - Ent Specialist Near Me | Allergy | Vertigo | Hearing Aid | Pediatric Otorhinolaryng | 0.95 KM | 
| New Roots - Skin | 0.96 KM | 
| Vision 2020 Opticians & Eye Care Center | 0.99 KM | 
| Gym Fitness Near by S Raheja Evergreen | |
|---|---|
| Gold's Gym Bandra | 0.20 KM | 
| Diva Yoga Studio - Bandra | 0.59 KM | 
| Flofitbox Multifunctional Gym Bandra | 0.61 KM | 
| The Zone 360 Fitness Bandra | 0.81 KM | 
| Khar Gymkhana | 1.29 KM | 
| Rhinos Gym Khar West | 1.68 KM | 
| M-16 Fitness Center | 1.87 KM | 
| Ken Fitness Centre | 1.97 KM | 
| Hardcore Gym | 2.23 KM | 
| Total Sports & Fitness Santacruz | 2.78 KM | 
| Clothings Near by S Raheja Evergreen | |
|---|---|
| Pernia's Pop-up Studio | 0.41 KM | 
| Marks & Spencer | 0.68 KM | 
| The Souled Store Bandra | 0.79 KM | 
| Aveda X Nykaa Lifesyle Salon | 1.21 KM | 
| Blackberrys | 2.12 KM | 
| Mulmul- Bandra East | 2.40 KM | 
| Kora Santacruz | 2.49 KM | 
| Roopkala Heritage | 2.63 KM | 
| Kalki Flagship Store Santacruz | 2.80 KM | 
| Pernia's Pop-up Studio | 3.00 KM | 
| Temples Near by S Raheja Evergreen | |
|---|---|
| Jari Mari Mata Temple | 0.88 KM | 
| Shree Ghanteshwar Hanuman Mandir | 1.52 KM | 
| Body Temple Yoga Studio | 3.15 KM | 
| Tom Temple Of Miracles | Tarot Cards | 3.64 KM | 
| Shri Saath Aasra Manmala Devi Mandir | 3.76 KM | 
| Vetal Temple | 4.12 KM | 
| The Asthika Samaj Kochu Guruvayoor Sree Ram Mandir | 4.47 KM | 
| Shree Simandharswami Digamber Jain Mandir | 4.48 KM | 
| Golphadevi Mandir | 4.68 KM | 
| Shri Shantinath Bhagwan Shwetambar Jain Temple | 4.69 KM | 
| Cinema Halls Near by S Raheja Evergreen | |
|---|---|
| Pvr Le Reve Bandra Mumbai | 0.69 KM | 
| Movietime: Suburbia | 0.88 KM | 
| G7 Gaiety Galaxy Movie Theatre | 1.08 KM | 
| Gossip | 1.09 KM | 
| Movie Talkies | 1.94 KM | 
| Imax Home Theatre | 2.18 KM | 
| Jio Drive-in Theatre | 2.50 KM | 
| Maison Pvr | 2.52 KM | 
| Pvr Lido Juhu | 2.82 KM | 
| Paradise E Square | 2.90 KM | 
Check Travel Time
Connecting Roads - S Raheja Evergreen
Bandra, which was once a Portuguese residential hub, is now a popular destination for Bollywood celebrities. Bandra West is an upscale neighbourhood in south Mumbai bordered by Khar West to the north, the Arabian Sea to the west, Bandra East to the east, and Mahim to the south. Bandra West is a well-developed neighbourhood with a good mix of high-end and mid-range residential properties as well as retail markets. Santosh
S Raheja Realty, a renowned real estate developer in Mumbai, has an impressive portfolio comprising of 10 outstanding projects. From luxurious residential properties to commercial landmarks, S Raheja Realty has earned a reputation for crafting spaces that exude elegance and sophistication.Each project from S Raheja Realty showcases their commitment to excellence, incorporating innovative designs, top-notch construction standards, and impeccable attention to detail. Combining contemporary architecture with a deep understanding of
This website is only for the purpose of providing information regarding real estate projects in different geographies. Any information which is being provided on this website is not an advertisement or a solicitation. The company has not verified the information and the compliances of the projects. Further, the company has not checked the RERA* registration status of the real estate projects listed herein. The company does not make any representation in regards to the compliances done against these projects. Please note that you should make yourself aware about the RERA* registration status of the listed real estate projects.
*Real Estate (regulation & development) act 2016. 
  
             
             
          
         
           
 
    