A total of 2 residential transactions has been registered so far for Future Sky, amounting to ₹ 1 Cr till December 2025.

100% Service, 0% Brokerage
Highly unlikely, but if you find a lower price anywhere, tell us and we will match it.
Our sales personnel are accountable for every step
A total of 2 residential transactions has been registered so far for Future Sky, amounting to ₹ 1 Cr till December 2025.
During Q3'2025, average property prices for Future Sky moved from ₹ 8,050/sqft to ₹ 8,150/sqft, reflecting a 1.24% rise.
During Q1'2025, average property prices for Future Sky moved from ₹ 10,300/sqft to ₹ 13,350/sqft, reflecting a 29.61% rise.
Structural Works reach 78% completion, MEP Services including lift and staircases, are now 100% done.
Structural Works reach 70% completion, Internal finishing stands at 100%.
A total of 63 out of 65 launched units have been booked as of November 2024, including 91% of 2 BHK(20 out of 22 units), 100% of 1 BHK(43 units).
Structural Works reach 60% completion, External Works has reached 100%, Internal finishing stands at 60%, MEP Services including lift and staircases, are now 75% done.
Structural Works reach 58% completion, Internal finishing stands at 13%, MEP Services including lift and staircases, are now 46% done.
A total of 61 out of 65 launched units have been booked as of February 2024, including 98% of 1 BHK(42 out of 43 units), 86% of 2 BHK(19 out of 22 units).
A total of 48 out of 65 launched units have been booked as of November 2023, including 72% of 1 BHK(31 out of 43 units), 77% of 2 BHK(17 out of 22 units).
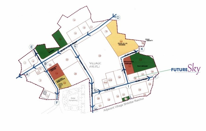
The master plan for Future Sky clearly designates several zones. These include residential plots identified by numbers (e.g., 1-20, 22-26, 28-38, 40A, 40D). We also have dedicated areas for specific purposes such as EWS & LIG Housing, a Community Centre, and land allocated for Educational Purpose. Green and recreational spaces are featured with a Garden and a Play Ground. An adjacent development named Balaj Symphony is also visible on the plan.
| Master Bedroom-Walls | Oil Bound Distemper |
| Master Bedroom-Flooring | Vitrified Tiles |
| Other Bedrooms-Flooring | Vitrified Tiles |
| Walls | Oil Bound Distemper |
| Living Area-Flooring | Vitrified Tiles |
| Kitchen-Equipments | Modular Kitchen |
| Structure | RCC Frame Structure |
| Schools Near by Future Sky | |
|---|---|
| New English School | 0.26 KM |
| St. Mary High School | 0.51 KM |
| St.thomas English Medium School | 0.95 KM |
| St. George School | 0.99 KM |
| Dav Public School | 1.28 KM |
| Mahatma Gandhi Public School &junior College. | 1.29 KM |
| Link With English | 1.38 KM |
| Shri Sant Saibaba Vidyalaya | 1.43 KM |
| Shantiniketan Public School | 1.45 KM |
| Emmanuel Mission School | 1.45 KM |
| Bus Stops Near by Future Sky | |
|---|---|
| Sukapur Gaon | 0.29 KM |
| Shree Hospital | 0.29 KM |
| Sukapur | 0.30 KM |
| Malewadi | 0.63 KM |
| Sainagar | 0.65 KM |
| Akurli 1 | 0.83 KM |
| Terna Circle - Aadai | 0.84 KM |
| Terna Circle | 0.91 KM |
| Shivam Arcade | 0.93 KM |
| Ayyappa Mandir | 0.98 KM |
| Hospitals Near by Future Sky | |
|---|---|
| Saishraddha Multispeciality Hospital | 0.69 KM |
| Riddhavi Mental Hospital And Rehabilitation | 0.96 KM |
| Arunodaya Hospital | 1.18 KM |
| Nair Super Speciality Eye Hospital | 1.23 KM |
| Pawal Maternity Hospital | 1.38 KM |
| Khandekar Hospital | 1.39 KM |
| Aayushman Ear Nose Throat Hospital | 1.44 KM |
| Uphc New Panvel Pmc | 1.44 KM |
| Panacea Hospital | 1.49 KM |
| Pioneer Hospital | 1.53 KM |
| Clinics Near by Future Sky | |
|---|---|
| Dr. Renushe's Mother & Child Care Clinic | 0.30 KM |
| Palnit Clinic | 0.41 KM |
| Siddhivinayak Clinic | 0.42 KM |
| Meerai Dental Clinic & Implant Center | 0.70 KM |
| Simira Diagnostics - Sonography In New Panvel | 0.93 KM |
| Sabka Dentist - New Panvel | 1.07 KM |
| Sparsh Clinic - Dr Shilpa Duche | 1.12 KM |
| Dr Lal Pathlabs - First Care Pathology | 1.26 KM |
| My Gym | 1.36 KM |
| Deepak Clinical Laboratory | 1.38 KM |
| Gym Fitness Near by Future Sky | |
|---|---|
| Aai Ekvira Gymkhana | 0.27 KM |
| Fitness Empire Unisex Gym | 1.28 KM |
| Tushar Fitness Studio | 1.29 KM |
| Shree Samarth Gym | 1.32 KM |
| Bob's Gym | 1.36 KM |
| Getfitt Gym | 1.38 KM |
| The Art Of Living Yoga And Meditation Center | 1.38 KM |
| Nrityaarpana Fine Art Center | 1.42 KM |
| Rainbow Gymnasium | 1.44 KM |
| Chaitanya Yogalaya | 1.47 KM |
| College and Universities Near by Future Sky | |
|---|---|
| Navi Mumbai College Of Hotel Management | 0.58 KM |
| Fire & Safety College | 0.67 KM |
| St. Andrews International School & Jr. College | 0.77 KM |
| Itm Ihs College Of Nursing | 0.87 KM |
| Itm Institute Of Health Sciences | 0.92 KM |
| Premier College Of Arts | 1.25 KM |
| D. D. Vispute College Of Science | 1.32 KM |
| D. D. Vispute College Of Pharmacy & Research Center | 1.33 KM |
| Shantiniketan Polytechnic | 1.43 KM |
| Changu Kana Thakur Jr. College | 1.43 KM |
| Restaurants Near by Future Sky | |
|---|---|
| Firangi Halwai | 1.63 KM |
| Neel Kamal | 1.69 KM |
| Siciliano | 1.76 KM |
| Kronks - Lounge Bar | 5.35 KM |
| Ikka - Pallavi Avida | 5.61 KM |
| The Amritsar Haveli | 6.92 KM |
| Highway Break | 7.50 KM |
| Da Capo Cafe & Bistro | 7.76 KM |
| Cafe Monza | 7.77 KM |
| Chi Na Chi Ni | 7.83 KM |
| Temples Near by Future Sky | |
|---|---|
| Shree Ayyappa Temple | 0.99 KM |
| Shri Cidco Vinayak Mandir | 1.75 KM |
| Shiv Mandir | 1.80 KM |
| Shree 1008 Munisuvratnath Digambar Jain Mandir | 1.89 KM |
| Shree Sai Baba Temple Panvel | 2.35 KM |
| Sai Temple | 2.38 KM |
| Shitala Devi Mandir | 2.70 KM |
| Balleshwar Temple | 2.78 KM |
| Gamdevi Temple | 2.79 KM |
| Shree Ballaleshwar Mandir | 2.79 KM |
| Home Decors Near by Future Sky | |
|---|---|
| Jainsons Furnishing | 1.38 KM |
| J. M. Furniture | 1.78 KM |
| Exclusive Dealer - Exclusive Premium Luxury Mattress Showroom And Shop In Raigad | 1.98 KM |
| Wood Art Furniture | 2.13 KM |
| A1 Furniture Works | 2.25 KM |
| Bombay Dyeing | 2.67 KM |
| Building And Construction Materials Supplier - Infra Market | 3.28 KM |
| Exclusive Dealer(mahadev Furniture) At Kamothe | 4.47 KM |
| Sleepwell Exclusive Dealer - Kamothe | 4.61 KM |
| Infra.market Tiles | 5.59 KM |
| Clothings Near by Future Sky | |
|---|---|
| Zudio - Panvel | 0.93 KM |
| Raymond | 1.13 KM |
| Peter England Showroom | 1.80 KM |
| Babyhug Store Mumbai New Panvel | 1.81 KM |
| Peter England - Men's Clothing Store | 2.92 KM |
| Babyhug Store Mumbai Panvel | 3.04 KM |
| Cotton Culture - Kamothe | 4.52 KM |
| Zudio - Kalamboli | 4.97 KM |
| Cantabil | 5.05 KM |
| Zudio - Kamothe | 5.10 KM |
Check Travel Time
Connecting Roads - Future Sky
Future Homes is a leading organization in Navi Mumbai with a mission towards offering quality housing solutions at comparatively affordable prices to customers. It is known for developing futuristic homes that come equipped with modern amenities. Best practices are followed for constructing buildings including latest technologies and innovative architectural layouts. From careful location selection to impeccable design and top class construction materials, maintenance of quality benchmarks is a serious affair
This website is only for the purpose of providing information regarding real estate projects in different geographies. Any information which is being provided on this website is not an advertisement or a solicitation. The company has not verified the information and the compliances of the projects. Further, the company has not checked the RERA* registration status of the real estate projects listed herein. The company does not make any representation in regards to the compliances done against these projects. Please note that you should make yourself aware about the RERA* registration status of the listed real estate projects.
*Real Estate (regulation & development) act 2016.