A total of 1 residential transactions has been registered so far for Platinum Crescenzo, amounting to ₹ 3 Cr till April 2026.

Introducing Plaza Crescenzo, a premium residential project located in the desirable sublocation of Seawoods, Navi Mumbai. Strategically connected to Uran Road, this project offers a unique blend of comfort and convenience. With the Rera registration number P51700003954, you can rest assured of a secure and hassle-free investment.
The project boasts a range of state-of-the-art amenities, including a well-equipped gym and reliable power backup, ensuring that you stay active and connected. Additionally, the master bedroom boasts oil-bound distemper finishing, adding a touch of elegance to your home. With its prime location and impressive specifications, Platinum Crescenzo is an ideal choice for those seeking a luxurious living experience.
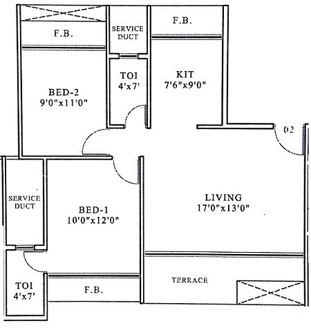
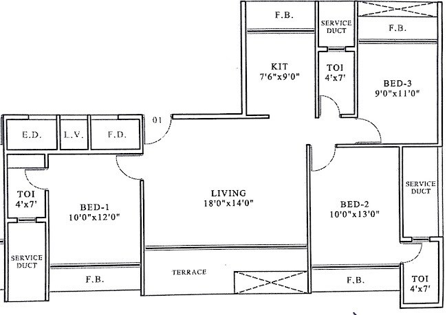
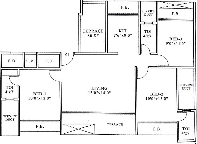
For those seeking a dream home, Platinum Crescenzo offers a range of beautifully designed units. Choose from 2 and 3 BHK apartments, ranging from 451 Sq. Ft. to 552 Sq. Ft. Each unit is designed to provide maximum comfort and livability, with spacious rooms and modern finishes. With prices on request, you can start planning your dream home today.
Available Unit OptionsThe following table outlines the available unit options at Platinum Crescenzo:
| Unit Type | Area (Sq. Ft.) | Price (Rs.) |
| 2 BHK Apartment | 451 | On Request |
| 2 BHK Apartment | 465 | On Request |
| 3 BHK Apartment | 547 | On Request |
| 3 BHK Apartment | 552 | On Request |
This thriving residential project is situated amidst a plethora of notable landmarks, offering residents a perfect blend of convenience, comfort, and community living. Strategically located, these landmarks provide easy access to essential amenities and services.
We have total 8 options available in Platinum Crescenzo for resale and rental, In resale we have 1 properties available ranging from 3.5 BHK having size from 4.95 CR
For rent you can check 7 properties having options for 2 BHK - 3 BHK with price ranging from 45000 - 85000.
| Listing Type | Total Listings | Unit Type Range | Price Range |
| Resale | 1 | 3.5 BHK | 4.95 CR |
| Rental | 7 | 2 BHK - 3 BHK | 45000 - 85000 |
Recent government-registered transactions in the real estate market have been closely monitored, revealing a consistent rental rate of 45.833 over the past three, six, and twelve months. This consistent rental rate translates to a current market rate of 16,998 across all aggregations. While the rental market remains stable, the sales market has seen some activity, with a single government-registered sales transaction reported in the past year, valuing 1 Cr, indicating a steady demand for property in the area.
A total of 1 residential transactions has been registered so far for Platinum Crescenzo, amounting to ₹ 3 Cr till April 2026.
During Q1'2026, average property prices for Platinum Crescenzo moved from ₹ 31,800/sqft to ₹ 33,400/sqft, reflecting a 5.03% rise.
During Q4'2025, average property prices for Platinum Crescenzo moved from ₹ 28,200/sqft to ₹ 31,800/sqft, reflecting a 12.77% rise.
During Q3'2025, average property prices for Platinum Crescenzo moved from ₹ 27,650/sqft to ₹ 28,200/sqft, reflecting a 1.99% rise.
PLATINUM CRESCENZO Achieves 100% Construction Completion, Ready for Possession.
All 46 units of PLATINUM CRESCENZO, featuring 3 BHK, 2 BHK apartments were fully booked by the end of April 2025.
PLATINUM CRESCENZO, developed by PLATINUM LIFESPACES, officially launched on 07-Aug-2017 and expected to complete by 30-Dec-2021. Registered under RERA No. P51700003954. The project comprises 1 towers and offers 46 residential units, including 2 BHK, 3 BHK, with unit sizes ranging from 441 to 549 Square feet across a total area of 0.59 Acre.
| Master Bedroom-Walls | Oil Bound Distemper |
| Master Bedroom-Flooring | Vitrified Tiles |
| Other Bedrooms-Flooring | Vitrified Tiles |
| Walls | Oil Bound Distemper |
| Structure | RCC Frame Structure |
| Schools Near by Platinum Crescenzo | |
|---|---|
| Ss High School | 0.35 KM |
| Orchids The International School | 0.37 KM |
| Sanjivani School | 0.41 KM |
| Podar International School Seawoods | 0.60 KM |
| Dav Public School | 0.61 KM |
| Podar International School | 0.63 KM |
| Gaurav High School | 0.79 KM |
| Presentation Convent School | 1.09 KM |
| Tilak Public School | 1.14 KM |
| Sterling School | 1.23 KM |
| Bus Stops Near by Platinum Crescenzo | |
|---|---|
| Kharghar Station Subway | 5.06 KM |
| Narmadeshwar Mandir | 8.27 KM |
| Barcschool No6 | 8.95 KM |
| Childrens Home | 9.40 KM |
| Lallubhai Compoud Police Chowkey | 9.86 KM |
| Raj Kapoor Chowkbhabha Hospital | 10.09 KM |
| Raj Kapoor Chowk Bhabha Hospital | 10.09 KM |
| Bmccompost Plant | 10.34 KM |
| Mahalaxmi Mandir Deonar | 10.38 KM |
| Telecom Factory | 10.51 KM |
| Hospitals Near by Platinum Crescenzo | |
|---|---|
| Jack N Jill Childrens Clinic | 0.20 KM |
| Suyash Hospital | 0.30 KM |
| Bone Joint Orthopaedic Clinic | 0.35 KM |
| Neurogen Brain And Spine Institute Stem Cell Therapy | 0.38 KM |
| Siddhivinayak Hospital | 0.53 KM |
| Seawoods Hospital | 0.82 KM |
| Healing Hands Clinic | 0.89 KM |
| Vedaant Hospital | 1.06 KM |
| Shivam Eye Foundation | 1.06 KM |
| Patoria Hospital | 1.08 KM |
| Hotels Near by Platinum Crescenzo | |
|---|---|
| Aishwarya Residency | 0.89 KM |
| Hotel Baramati Stays | 1.10 KM |
| Seasons Hotel Nerul | 2.43 KM |
| Lakhanis Galaxy | 2.54 KM |
| The Park | 2.56 KM |
| Ganesh Chowk Nerul | 2.56 KM |
| K Star Hotel | 2.78 KM |
| Hotel Mourya Residency | 2.92 KM |
| Hotel Pratiksha Residency | 3.17 KM |
| Hotel Diamond Palace | 3.48 KM |
| ATMs Near by Platinum Crescenzo | |
|---|---|
| Karur Vysya Bank | 0.16 KM |
| Bank Of India | 0.38 KM |
| Kotak Mahindra Bank | 0.49 KM |
| Punjab National Bank | 0.53 KM |
| Icici Bank | 0.53 KM |
| Indusind Bank | 0.64 KM |
| Citibank Atm | 0.64 KM |
| Bank Of Maharashtra | 0.67 KM |
| Central Bank Of India | 0.69 KM |
| Bank Of Baroda | 0.76 KM |
| Temples Near by Platinum Crescenzo | |
|---|---|
| Ganesh Mandir | 0.24 KM |
| Seawoods Ganesh Temple | 0.36 KM |
| Ganesh Temple | 0.68 KM |
| Swayambhu Theerthshetra Nagnath Shiv Mandir | 1.05 KM |
| Nageshwar Mandir | 1.06 KM |
| Ganesh Mandir | 1.10 KM |
| Gaondev Mandir | 1.12 KM |
| Baps Swaminarayan Temple | 1.52 KM |
| Hanumaan Mandir | 1.85 KM |
| Shri Krishna Mandir | 1.89 KM |
| Banks Near by Platinum Crescenzo | |
|---|---|
| State Bank Of India Seawoods | 0.86 KM |
| Yes Bank | 0.88 KM |
| Allahabad Bank | 1.12 KM |
| Idbi Bank Ltd | 1.16 KM |
| Syndicate Bank | 1.60 KM |
| State Bank Of India Nerul | 1.80 KM |
| Sarswat Bank | 2.89 KM |
| Indian Bank | 4.02 KM |
| State Bank Of India | 4.17 KM |
| State Bank Of India Sanpada | 4.20 KM |
| Parks Near by Platinum Crescenzo | |
|---|---|
| Krantisinha Nana Patil Udyan | 0.98 KM |
| Millenium Park Garden | 1.00 KM |
| Shree Shree Radha Krishna Udyan | 1.00 KM |
| Yashwantrao Chavan Ground | 1.27 KM |
| Shri Jagadguru Renukaracharya Udyan | 1.48 KM |
| Jagatguru Shankaracharya Garden | 1.51 KM |
| Seawoods Estates Garden | 1.51 KM |
| Mother Teresa Garden | 1.51 KM |
| Wonders Park | 1.51 KM |
| Guru Nanak Garden | 1.81 KM |
| Shopping Malls Near by Platinum Crescenzo | |
|---|---|
| Bata Shop | 0.32 KM |
| Seawoods Grand Central Mall | 0.66 KM |
| Centurion Mall | 1.12 KM |
| Haware Centurion Mall | 1.14 KM |
| Shiv Parvati Shopping Complex | 1.73 KM |
| Croma Belapur | 2.02 KM |
| Decathlon Belapur | 2.33 KM |
| A E Trends Time Shopping Centre | 3.58 KM |
| Mindspace Juinagar | 3.73 KM |
| Nivashti Emperium | 4.05 KM |
| Mosques Near by Platinum Crescenzo | |
|---|---|
| Jama Masjid Nerul | 1.97 KM |
| Mehrajul Ulum Masjid | 7.25 KM |
| Pailipada Masjid | 7.33 KM |
| Masjid Jama Masjid | 7.37 KM |
| South India Noorulislam Sunnath Jamath Masjid | 7.38 KM |
| Anware Mustafa Masjid | 8.93 KM |
| Masjid Mankhurd | 9.18 KM |
| Noor E Ilahi Masjid | 9.47 KM |
| Masjidesuffa | 9.63 KM |
| Aqsa Masjid | 9.69 KM |
Check Travel Time
Connecting Roads - Platinum Crescenzo
Platinum group was founded by Shri Swatantra Gupta and Shri Vijay Mehta in 2006 with a vision to create landmarks in real estate. Shri Vikas Lodha also became partner in the group in 2008, Since then the company is progressing in good direction and is bound to be a world class construction company. Mission: It is our mission to construct dreams into comfortable and astounding homes and residential complexes. We
This website is only for the purpose of providing information regarding real estate projects in different geographies. Any information which is being provided on this website is not an advertisement or a solicitation. The company has not verified the information and the compliances of the projects. Further, the company has not checked the RERA* registration status of the real estate projects listed herein. The company does not make any representation in regards to the compliances done against these projects. Please note that you should make yourself aware about the RERA* registration status of the listed real estate projects.
*Real Estate (regulation & development) act 2016.