During Q3'2025, average property prices for Raheja Solaris moved from ₹ 24,600/sqft to ₹ 25,000/sqft, reflecting a 1.63% rise.

 
            Own this home with EMIs starting at ₹ 53.70 K/month - Check Cibil Linked Loan Estimate
During Q3'2025, average property prices for Raheja Solaris moved from ₹ 24,600/sqft to ₹ 25,000/sqft, reflecting a 1.63% rise.
A total of 251 out of 276 launched units have been booked as of March 2025, including 92% of 3 BHK(88 out of 96 units), 89% of 2 BHK(139 out of 156 units), 100% of SHOP 2(3 units), 4 BHK SKYPLEX(12 units), SHOPS 1(7 units), 2 BHK R(2 units).
A total of 217 out of 268 launched units have been booked as of February 2025, including 76% of 3 BHK(73 out of 96 units), 85% of 4 BHK SKYPLEX(17 out of 20 units), 83% of 2 BHK(114 out of 138 units), 88% of SHOPS 1(7 out of 8 units), 100% of SHOPS 2(2 units), 2 BHK R(4 units).
Structural Works reach 65% completion, MEP Services including lift and staircases, are now 7% done.
Structural Works reach 44% completion, MEP Services including lift and staircases, are now 3% done.
Structural Works reach 47% completion, MEP Services including lift and staircases, are now 3% done.
Structural Works reach 64% completion, MEP Services including lift and staircases, are now 6% done.
Structural Works reach 46% completion, MEP Services including lift and staircases, are now 2% done.
Structural Works reach 43% completion, MEP Services including lift and staircases, are now 2% done.
A total of 241 out of 276 launched units have been booked as of August 2024, including 85% of 3 BHK(82 out of 96 units), 87% of 2 BHK(135 out of 156 units), 100% of SHOP 2(3 units), 4 BHK SKYPLEX(12 units), SHOPS 1(7 units), 2 BHK R(2 units).
| Master Bedroom-Walls | Oil Bound Distemper | 
| Master Bedroom-Flooring | Vitrified Tiles | 
| Other Bedrooms-Flooring | Vitrified Tiles | 
| Walls | Oil Bound Distemper | 
| Living Area-Flooring | Vitrified Tiles | 
| Kitchen-Equipments | Modular Kitchen | 
| Bathroom | Premium Bath Fittings | 
| Structure | RCC Frame Structure | 
| Schools Near by Raheja Solaris | |
|---|---|
| Swami Shukdevanand High School | 0.58 KM | 
| Holy Spirit School | 0.67 KM | 
| Amrita Vidyalayam | 0.73 KM | 
| Amrita Vidyalayam | 0.74 KM | 
| Ryan International School | 0.95 KM | 
| Ryan International School | 0.97 KM | 
| D Y Patil International School | 1.03 KM | 
| Shiravane Vidyalaya And Junior College | 1.11 KM | 
| St. Xavier's High School & Junior College | 1.17 KM | 
| Nmmc Ward B Nerul Sector 4 School 102 | 1.26 KM | 
| Bus Stops Near by Raheja Solaris | |
|---|---|
| Shirvane Village | 0.24 KM | 
| Shirvane Fata (highway) | 0.35 KM | 
| Shiravane Village | 0.39 KM | 
| Jui Pada Gaon 23 & 24 | 0.54 KM | 
| Juinagar Railway Station | 0.54 KM | 
| Aniruddha Bhavan | 0.55 KM | 
| Juipada Village | 0.56 KM | 
| Jui Nagar Gangadev Chowk | 0.61 KM | 
| Juinagar | 0.63 KM | 
| Jui Nagar | 0.64 KM | 
| Hospitals Near by Raheja Solaris | |
|---|---|
| Ashirwad Hospital | 1.03 KM | 
| New Millennium Womens & Child Hospital | 1.08 KM | 
| Jack And Jill Hospital | 1.09 KM | 
| Harish Hospital | 1.09 KM | 
| Kmc Hospital & Gajanan Eye Foundation Eye Hospital | 1.13 KM | 
| New Manak Health Care Hospital | 1.16 KM | 
| New Millennium Multispeciality Hospital | 1.27 KM | 
| Kamalesh Mother & Child Hospital | 1.27 KM | 
| Kalyani Eye Hospital | 1.30 KM | 
| Sharada Ent Hospital | 1.31 KM | 
| Clinics Near by Raheja Solaris | |
|---|---|
| All India Occupational Therapists Association (aiota) | 0.48 KM | 
| Mangal Prabhu Nursing Home Diagnostic Center | 0.48 KM | 
| Dr. Anand Sude-pediatrician In Navi Mumbai | Child Specialist | 0.52 KM | 
| Dr Madhav Dawkore-best Allergist & Pulmonologist Navi Mumbaiallergy&asthma Specialist Tb &ild Specia | 0.66 KM | 
| Thyrocare | 1.05 KM | 
| Dr Ajay Balki | 1.21 KM | 
| Dr. Bhasker Semitha -hridaya Navjeevanalaya | Best Heart Surgeon In Navi Mumbai | 1.24 KM | 
| Dy Patil Healthcare | 1.39 KM | 
| Dr. Vaibhav Mali [mbbs | 1.41 KM | 
| Healthspring Nerul | 1.74 KM | 
| Gym Fitness Near by Raheja Solaris | |
|---|---|
| Sk Zone Unisex Gym | 0.66 KM | 
| Pro Addicts Fitness And Gym (unisex) | 0.80 KM | 
| Octacore Fitness | 0.88 KM | 
| Arise Fitness Sanpada | 1.03 KM | 
| Result Fitness24-7 | 1.08 KM | 
| Xtreme Fitness | 1.32 KM | 
| Fitness To Fit | 1.42 KM | 
| First Need Fitness | 1.51 KM | 
| Physc Gym Sanpada 24-7 | 1.69 KM | 
| Hercules Fitness | 1.72 KM | 
| College and Universities Near by Raheja Solaris | |
|---|---|
| Cambridge University Press India | 0.32 KM | 
| Bunts College Of Higher Education -night College | 0.53 KM | 
| Insd Sanpada: Interior Design I Fashion Design In Navi Mumbai I Govt Recognised Institute | 0.76 KM | 
| Padmashree Dr Dy Patil Deemed To Be University | 0.81 KM | 
| Dy Patil University School Of Dentistry | 1.00 KM | 
| Vijay Patil School Of Management | 1.04 KM | 
| Dr. D Y Patil Polytechnic | 1.04 KM | 
| Dr D Y Patil College Of Law | 1.05 KM | 
| D Y Patil University School Of Pharmacy Navi Mumbai | 1.05 KM | 
| Dy Patil College Of Engineering | 1.05 KM | 
| Restaurants Near by Raheja Solaris | |
|---|---|
| Chinese Wok | 0.85 KM | 
| Mynt - Vivanta Navi Mumbai | 1.05 KM | 
| Dosa Plaza | 1.14 KM | 
| Maharashtra Lunch Home | 1.18 KM | 
| Courtyard Pavilion - Courtyard By Marriott Navi Mumbai | 1.22 KM | 
| Mitron | 1.26 KM | 
| Famous Dum Biryani & Kabab Corner | 1.34 KM | 
| Grace Restaurant | 1.35 KM | 
| Basil & Beans | 1.43 KM | 
| The Salad Bar & Walnut Cafe | 1.59 KM | 
| Temples Near by Raheja Solaris | |
|---|---|
| Hariom Mandir | 0.65 KM | 
| Shree Kamakshi Temple | 1.08 KM | 
| Sri Bhaktha Anjaneya Trust Hanuman Temple | 1.12 KM | 
| Murugan (kartikeyan) Temple | 1.56 KM | 
| Moje Gurusthan Samadhi And Shri Datta Mandir | 1.59 KM | 
| Shri Datta Mandir | 1.60 KM | 
| Varunavataara Jhulelal Temple | 1.67 KM | 
| Shree Shaneeshwar Temple - Nerul East | 1.86 KM | 
| Sri Ayyappa Temple | 1.87 KM | 
| Nerul Gramdevta Mandir Trust Nerul | 1.93 KM | 
| Home Decors Near by Raheja Solaris | |
|---|---|
| House Of Johnson - Tbk Deziners - Best Tiles Designs For Bathroom | 0.39 KM | 
| Maurya Tiles - Nitco Tiles | 0.44 KM | 
| Kajaria Tiles Showroom | 0.77 KM | 
| Royaloak Furniture Turbhe | 1.82 KM | 
| The Sleep Company Experience Store - Turbhe | 2.04 KM | 
| D'life Home Interiors Navi Mumbai | 2.05 KM | 
| J B Projects | 2.07 KM | 
| Jb Home Store Pvt. Ltd | 2.18 KM | 
| Ikea Navi Mumbai | 3.22 KM | 
| Duroflex - Mattress | 3.37 KM | 
| Food Others Near by Raheja Solaris | |
|---|---|
| Kwality Walls - Nerul | 1.49 KM | 
| Koldplay Ice Creams | 1.59 KM | 
| Amul | 1.96 KM | 
| Amul Ice Cream Parlour | 2.01 KM | 
| Ice Cream Works | Sanpada | 2.05 KM | 
| Bakingo | 2.44 KM | 
| Brain Freeze Ice Cream & Desserts | 2.57 KM | 
| Yoobee Cakes | 2.69 KM | 
| Ribbons And Balloons - The Cake Shop In Vashi Railway Station | 2.72 KM | 
| Theobroma | 3.06 KM | 
Check Travel Time
Connecting Roads - Raheja Solaris
Juinagar is a township in Navi Mumbai in the Thane district of Maharashtra. The locality is marked by the presence of Juinagar Railway Station on the Harbour line of the Mumbai Suburban Railways. It has a decent road and railway network providing good connectivity to other sprawling areas of Navi Mumbai, such as Vashi and Nerul. The locality is very close to Nerul and is also called the external suburb
Top Experts in Navi Mumbai
Raheja Universal is a leading real estate development company based in Mumbai, India. The company was founded in 1980 by Mr. Suresh Raheja, and since then established a strong reputation for creating high-quality residential and commercial properties. Over the years, Raheja Universal has completed numerous projects in prime locations across Mumbai, including Worli, Bandra, Khar, and Malad, among others. The company's portfolio includes luxury apartments, villas, townships, and commercial spaces,
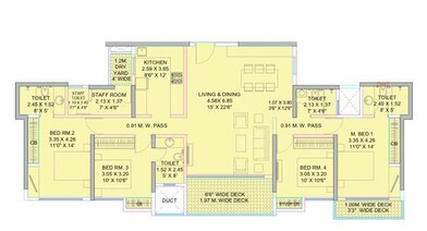
Raheja Solaris provides 1, 2, 3, and 4 BHK apartments to suit different family sizes and needs.
The project has more than 30 amenities, such as a gym, swimming pool, yoga area, adventure play zone, reflexology walkway, and many more.
In Juinagar, Navi Mumbai, Raheja Solaris provides very good connectivity to key locations, such as proximity to Juinagar Railway Station and Sion-Panvel Highway.
Yes, Raheja Solaris is RERA registered, which provides transparency and compliance with regulation.
This website is only for the purpose of providing information regarding real estate projects in different geographies. Any information which is being provided on this website is not an advertisement or a solicitation. The company has not verified the information and the compliances of the projects. Further, the company has not checked the RERA* registration status of the real estate projects listed herein. The company does not make any representation in regards to the compliances done against these projects. Please note that you should make yourself aware about the RERA* registration status of the listed real estate projects.
*Real Estate (regulation & development) act 2016. 
  
             
             
            
             
             
          
         
           
 
    