Structural Works reach 60% completion, External Works has reached 75%, Internal finishing stands at 60%, MEP Services including lift and staircases, are now 58% done.

100% Service, 0% Brokerage
Highly unlikely, but if you find a lower price anywhere, tell us and we will match it.
Our sales personnel are accountable for every step
Structural Works reach 60% completion, External Works has reached 75%, Internal finishing stands at 60%, MEP Services including lift and staircases, are now 58% done.
Structural Works reach 60% completion, External Works has reached 75%, Internal finishing stands at 60%, MEP Services including lift and staircases, are now 58% done.
Structural Works reach 4% completion.
A new Phase, Tower/Building Name: SUYASH VILLAS PHASE - II, launched under RERA No. P52100052176. It offers BUNGALOW ranging from 1593 to 1593 Square feet with targeted completion by 31-Dec-2026.
Structural Works reach 40% completion, Internal finishing stands at 8%, MEP Services including lift and staircases, are now 50% done.
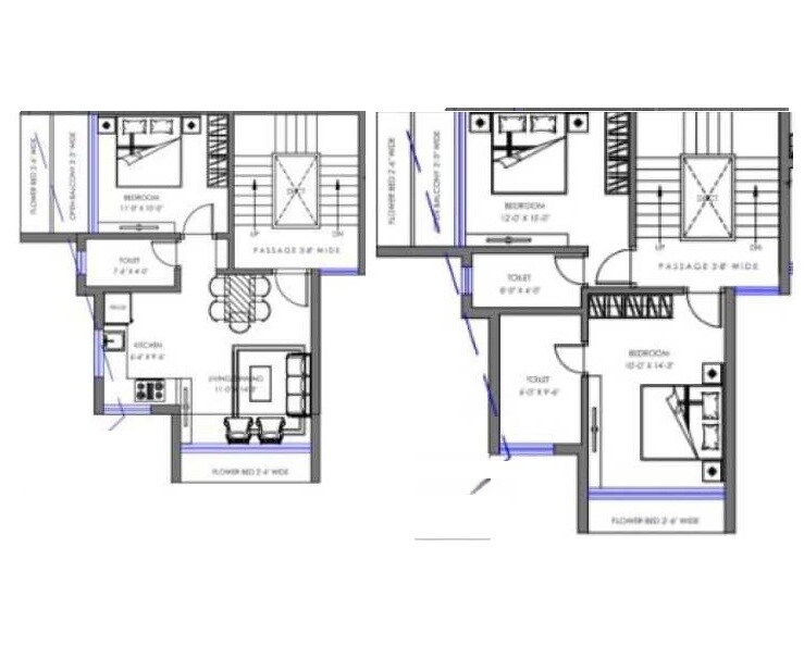
SUYASH VILLAS PHASE I, officially launched on 21-Mar-2023 and expected to complete by 31-Dec-2026. Registered under RERA No. P52100050186. The project comprises 1 towers and offers 3 residential units, including ROW HOUSE, with unit sizes ranging from 1119 to 1776 Square feet across a total area of 0.14 Acre.
This master plan for Plot No. 19 shows a layout for four individual residential units. The project is named Suyash Villas, and it’s located in Lonavala. While the total land area isn't specified, the plan outlines the setup for these four units, each designed as a semi-detached or twin villa with dedicated parking, but the number of towers or project launch/completion dates aren't visible on this plan.
The plan designates areas for residential use, featuring four distinct units. There’s a labeled 'OPEN SPECE' on the western side of the plot and a 'FILLING' area in the northeast corner, which appears to be an undeveloped or prepared section of the land. The property is bordered by Plot No. 17 to the north and Plot No. 30 to the east, indicating its placement within a larger development.
| Master Bedroom-Walls | Oil Bound Distemper |
| Master Bedroom-Flooring | Vitrified Tiles |
| Other Bedrooms-Flooring | Vitrified Tiles |
| Walls | Oil Bound Distemper |
| Living Area-Flooring | Vitrified Tiles |
| Structure | RCC Frame Structure |
Download master plan & walkthrough video of Suyash Villas to explore layout and virtual tour in Lonavala, Pune.
| Schools Near by Suyash Villas | |
|---|---|
| Sit Sinhgad Institute Of Technology Lonavala | 2.35 KM |
| Pandit Neharu Vidyalaya | 14.08 KM |
| Hospitals Near by Suyash Villas | |
|---|---|
| Yash Hospital | 1.05 KM |
| Kalpataru Hospital | 1.41 KM |
| Kamshet Hospital | 14.77 KM |
| Hotels Near by Suyash Villas | |
|---|---|
| Hotel Aristro Lonavala | 1.27 KM |
| Hotel Royal Park | 4.33 KM |
| Ratnaa Resort | 13.96 KM |
| Post Offices Near by Suyash Villas | |
|---|---|
| Lonavala Sub Post Office | 0.55 KM |
| Post Office Kamshet | 14.20 KM |
| Railway Stations Near by Suyash Villas | |
|---|---|
| Lonavala Railway Station | 1.30 KM |
| Kamshet Railway Station | 14.09 KM |
| Shopping Malls Near by Suyash Villas | |
|---|---|
| Lonavala Square Mall | 1.76 KM |
| Banks Near by Suyash Villas | |
|---|---|
| Icici Bank Lonavala | 5.21 KM |
| Colleges and Universities Near by Suyash Villas | |
|---|---|
| Vps College Of Engineering And Technology | 2.68 KM |
Check Travel Time
Connecting Roads - Suyash Villas
This website is only for the purpose of providing information regarding real estate projects in different geographies. Any information which is being provided on this website is not an advertisement or a solicitation. The company has not verified the information and the compliances of the projects. Further, the company has not checked the RERA* registration status of the real estate projects listed herein. The company does not make any representation in regards to the compliances done against these projects. Please note that you should make yourself aware about the RERA* registration status of the listed real estate projects.
*Real Estate (regulation & development) act 2016.