A total of 1 residential transactions has been registered so far for Bright Space Shagun, amounting to ₹ 56 L till November 2025.

100% Service, 0% Brokerage
Highly unlikely, but if you find a lower price anywhere, tell us and we will match it.
Our sales personnel are accountable for every step
Own this home with EMIs starting at ₹ 65.95 K/month - Check Cibil Linked Loan Estimate
A total of 1 residential transactions has been registered so far for Bright Space Shagun, amounting to ₹ 56 L till November 2025.
Structural Works reach 76% completion. Internal finishing stands at 11%. MEP Services including lift and staircases, are now 30% done
A total of 3 out of 20 launched units have been booked as of November 2025, including 13% of TWOBEDROOM(2 out of 15), 20% of THREEBEDROOM(1 out of 5).
During Q3'2025, average property prices for Bright Space Shagun moved from ₹ 6,150/sqft to ₹ 6,200/sqft, reflecting a 0.81% rise.
During Q1'2025, average property prices for Bright Space Shagun moved from ₹ 6,300/sqft to ₹ 8,650/sqft, reflecting a 37.30% rise.
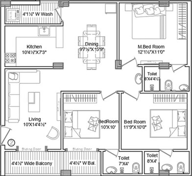
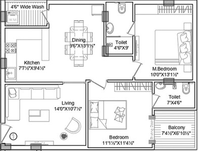
BRIGHT SPACE SHAGUN, developed by BRIGHT SPACE CONSTRUCTIONS, officially launched on 02-Aug-2021 and expected to complete by 02-Aug-2024. Registered under RERA No. P02400003503. The project comprises 1 towers and offers 20 residential units, including TWOBEDROOM, THREEBEDROOM, with unit sizes ranging from 1098 to 1324 Square feet across a total area of 0.20 Acre.
| Master Bedroom-Walls | Oil Bound Distemper |
| Master Bedroom-Flooring | Vitrified Tiles |
| Other Bedrooms-Flooring | Vitrified Tiles |
| Walls | Oil Bound Distemper |
| Living Area-Flooring | Vitrified Tiles |
| Structure | RCC Frame Structure |
| Schools Near by Bright Space Shagun | |
|---|---|
| The Oaktree School International || International School || Madinaguda | 0.60 KM |
| Vignan Global Gen School | 0.69 KM |
| Silver River School | Best Pre-primary | 0.76 KM |
| Joy School | 0.77 KM |
| Kallam Anji Reddy Vidyalaya | 0.83 KM |
| Brookside Global School | 0.90 KM |
| Stepping Stone School | 0.91 KM |
| Kallam Anji Reddy Vocational Junior College | 0.95 KM |
| Bhavya Talent School | 1.04 KM |
| Brookside Global School | 1.04 KM |
| Bus Stops Near by Bright Space Shagun | |
|---|---|
| Madinaguda | 1.24 KM |
| Miyapur | 1.26 KM |
| Deepthisri Nagar / Madinaguda | 1.30 KM |
| Allwyn X Road | 1.37 KM |
| Miyapur Allwyn X Roads | 1.38 KM |
| Deepthisri Nagar | 1.47 KM |
| Huda Colony | 1.72 KM |
| Gangaram | 1.93 KM |
| Cr Foundation | 1.95 KM |
| Hcu Depot | 2.14 KM |
| Hospitals Near by Bright Space Shagun | |
|---|---|
| Phoenix Pet Hospital | 0.79 KM |
| My Doctor Hospital | Best Multispeciality Hospital In Kondapur | 0.79 KM |
| Lakshmi Hospital | 1.03 KM |
| Srikara Hospitals | 1.04 KM |
| Sulochana Hospital | 1.18 KM |
| Child Specialist In Chanda Nagar | 1.19 KM |
| Shri Shiv Sai Hospital | 1.20 KM |
| Sidarth Hospitals | Best Super Specialty Hospital In Miyapur | 1.20 KM |
| Bright Kidney Centre - Best Kidney Hospital In Hyderabad & Dialysis Centre For Best Nephrologist | 1.20 KM |
| Healix Hospital | 1.21 KM |
| Clinics Near by Bright Space Shagun | |
|---|---|
| Lenskart.com At Gsm Mall | 1.12 KM |
| Dr. Sai Ramakrishna | 1.21 KM |
| Apollo Clinic Madinaguda | 1.22 KM |
| Dr. P. Sandeep Reddy - Best Pediatrician In Madinaguda | 1.26 KM |
| Lenskart.com At Madinaguda | 1.29 KM |
| Neoskin Clinic Madinaguda (chanda Nagar) | 1.29 KM |
| Dr. Venus Institute Of Skin & Hair Clinic | 1.66 KM |
| Lenskart.com At Chandanagar | 1.76 KM |
| Vijaya Diagnostic Centre | 1.76 KM |
| Dr Vinay Childrens Clinic & Vaccination Centre|kondapur|best Childrens Doctor | 1.79 KM |
| Gym Fitness Near by Bright Space Shagun | |
|---|---|
| Fitness Zone - Available On Cult.fit | Gyms In Hafeezpet. | 0.75 KM |
| Strive Fitness - Madinaguda | 1.22 KM |
| Bodhi Yoga & Ayurveda Panchakarma Therapy Centre - Madinaguda | 1.25 KM |
| Fit Max | 1.36 KM |
| Sky Gym Hafeezpet | 1.42 KM |
| Cult Madinaguda - Gyms In Madinaguda | 1.55 KM |
| Apex Fitness Hub | 1.57 KM |
| Ideal Fitness Gym | 1.61 KM |
| Revive Fitness - Available On Cult.fit | Gyms In Kondapur | 1.74 KM |
| Star Wall On Wall Paper Shop | 1.85 KM |
| Restaurants Near by Bright Space Shagun | |
|---|---|
| Beijing Bistro | 1.31 KM |
| Guntur Kaaram | 1.41 KM |
| Athidhi | 1.46 KM |
| Roast N Toast | 1.58 KM |
| The Bake Factory | 1.58 KM |
| Rasyumm Multi Cuisine Restaurant | 1.62 KM |
| Hotel Sitara Grand | 1.65 KM |
| Southern Kitchen | 1.72 KM |
| Balaji Santosh Family Dhaba | 2.10 KM |
| Swagath Residency | 2.23 KM |
| College and Universities Near by Bright Space Shagun | |
|---|---|
| Vijetha College For Women | 1.39 KM |
| Greek Wings Institute Of Hotel Management - Chanda Nagar | 1.72 KM |
| V. D. Bajaj Degree College For Women | 1.77 KM |
| Mahila Dakshata Samithi And Bansilal Malani College Of Nursing | 1.79 KM |
| Sanskriti Degree College | 2.02 KM |
| New Pragathi Degree College Of Commerce And Science Co-ed | 2.43 KM |
| Pragnya Degree & P.g Colleges (co-ed & Women's) | 2.58 KM |
| Hyderabad Central University | 2.66 KM |
| Health Center | 3.01 KM |
| Govt.degree College | 3.36 KM |
| Temples Near by Bright Space Shagun | |
|---|---|
| Sarovar Jinalaya Digambar Jain Temple | 0.31 KM |
| Alivelumanga Sametha Venkateshwara Swami Devalayam | 1.05 KM |
| Sri Balaji Temple | 1.06 KM |
| Chandeswar Shiva Temple | 2.03 KM |
| Sri Renuka Yellamma Temple | 2.30 KM |
| Sri Sri Sri Venkateswara Swamy Temple | 2.39 KM |
| Calvary Temple | 2.47 KM |
| Sri Sai Baba Satsang Dhyana Mandir | 2.58 KM |
| Shivalayam/vishweswara Temple | 2.60 KM |
| Shri Ayyappa Swami Temple | 2.60 KM |
| Supermarkets Near by Bright Space Shagun | |
|---|---|
| Vijetha Supermarkets - Jsr Mall | 1.33 KM |
| Dmart Hafeezpet | 1.56 KM |
| Vijetha Super Store | 1.98 KM |
| Vijetha Super Market | 2.11 KM |
| Pure-o-natural | 2.42 KM |
| Bigbasket Supermart - Kondapur | 2.51 KM |
| Sri Sai Manikanta Supermarket | 2.72 KM |
| More Supermarket - J P Nagar Hyd | 2.75 KM |
| Vijetha Supermarkets Lake Breeze | 2.84 KM |
| Divis Mart | 2.88 KM |
| Coffee Shops Near by Bright Space Shagun | |
|---|---|
| Heritage Sale Point (super Market Grocery Supplies) | 1.33 KM |
| Heritage Parlour(siddhirameswara Dairy Parlour) | 1.44 KM |
| Chai Amruth | 1.77 KM |
| Heritage Sale Point (ratnadeep Super Market) | 1.86 KM |
| Heritage Parlour (renu's Dairy Parlour) | 1.95 KM |
| Lassi Shop | 2.15 KM |
| Chaiamruth Miyapur | 2.43 KM |
| Hatti Kaapi - Tcs Odc 2 | 2.58 KM |
| Heritage Parlour(vaishnavi Dairy Parlour) | 2.92 KM |
| Heritage Parlour (bhapu Milk Point) | 2.96 KM |
Check Travel Time
Connecting Roads - Bright Space Shagun
If you are an IT professional, Kondapur may just be for you! Kondapur is a suburban locality located in the western part of the city of Hyderabad, Telangana. It is a fast-growing residential and commercial hub that is witnessing rapid infrastructural development. Located in the IT Zone of Hyderabad, Kondapur is considered a posh and luxurious locality with relatively higher living standards. Its location near some of the most prominent
This website is only for the purpose of providing information regarding real estate projects in different geographies. Any information which is being provided on this website is not an advertisement or a solicitation. The company has not verified the information and the compliances of the projects. Further, the company has not checked the RERA* registration status of the real estate projects listed herein. The company does not make any representation in regards to the compliances done against these projects. Please note that you should make yourself aware about the RERA* registration status of the listed real estate projects.
*Real Estate (regulation & development) act 2016.