Structural Works reach 30% completion

100% Service, 0% Brokerage
Highly unlikely, but if you find a lower price anywhere, tell us and we will match it.
Our sales personnel are accountable for every step
Structural Works reach 30% completion
KGR ADVAITHA, developed by KGR INFRA PROJECTS PRIVATE LIMITED, officially launched on 13-Mar-2025 and expected to complete by 13-Mar-2028. Registered under RERA No. P01100009873. The project comprises 1 towers and offers 186 residential units, with unit sizes ranging from 936 to 11969 Square feet with total area of 1.41 Acre.
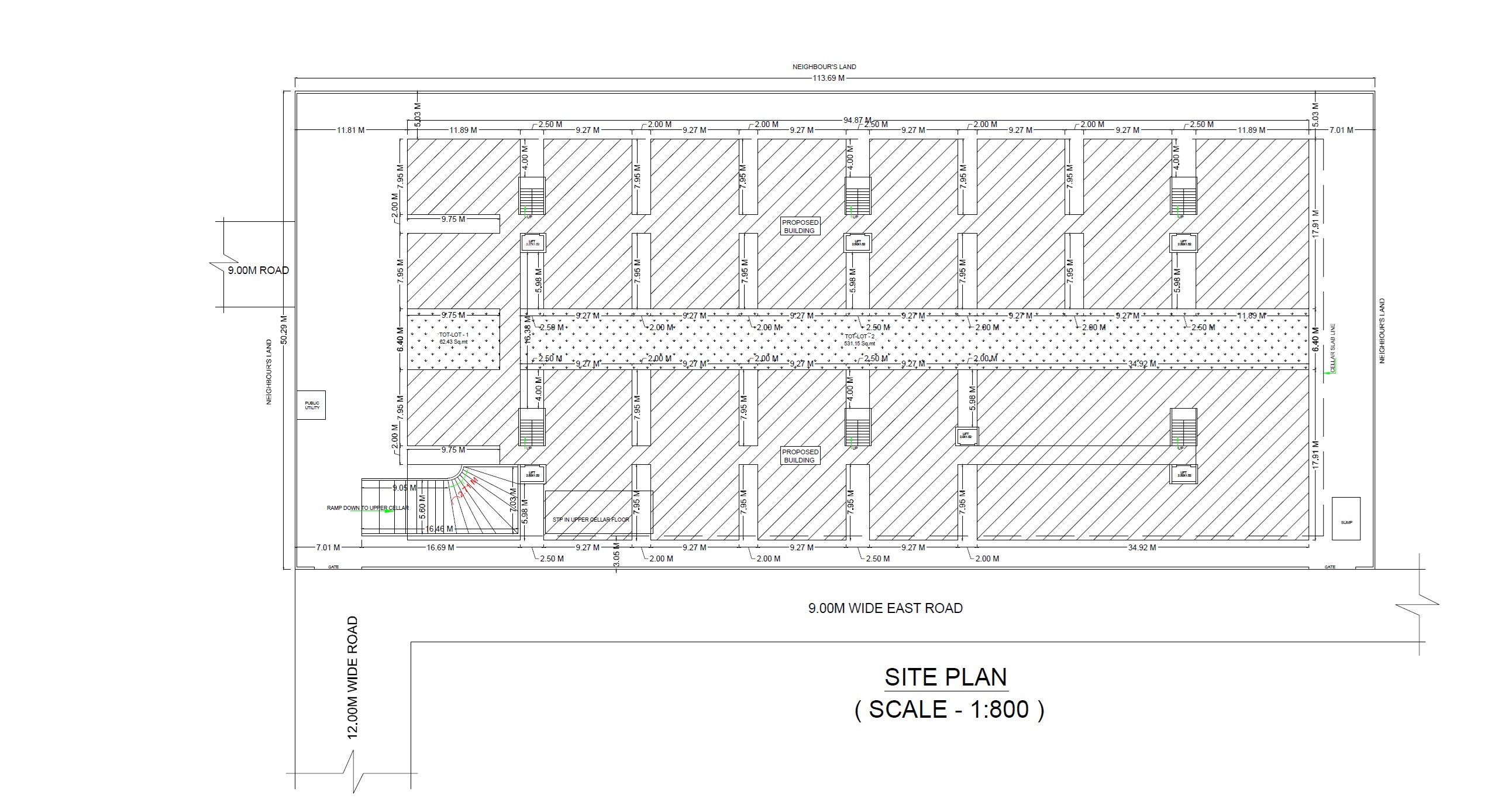
This is KGR Advaitha, a property designed with two main proposed buildings. While the total number of units is not detailed here, this plan provides a clear layout of the site, which benefits from its proximity to NH 65 (1.0 km) and Nehru Outer Ring Road Hyderabad (1.5 km).
The master plan allocates significant space for two distinct 'PROPOSED BUILDING' structures, indicating the primary residential or commercial zones. For recreational purposes, we've included two 'TOT-LOT' areas: one sizable area spans 531.15 Sq.mt, and another smaller one covers 62.43 Sq.mt, providing dedicated open spaces within the property.
| Master Bedroom-Walls | Oil Bound Distemper |
| Master Bedroom-Flooring | Vitrified Tiles |
| Other Bedrooms-Flooring | Vitrified Tiles |
| Walls | Oil Bound Distemper |
| Living Area-Flooring | Vitrified Tiles |
| Structure | RCC Frame Structure |
| Schools Near by KGR Advaitha | |
|---|---|
| Candiidus International School | 1.76 KM |
| Sri Sai Chaitanya School | 2.23 KM |
| Tswr School / Jr. College For Girls | 2.29 KM |
| Amaltas Green School | 2.41 KM |
| Navodaya Techno School | 2.69 KM |
| Gnyan Oak School Cbsc Curriculum | 2.72 KM |
| Manjeera Residential High School | 2.82 KM |
| Sri Vaishnavi High School (isnapur) | 2.85 KM |
| Mega City Resiential School | 3.01 KM |
| Gowtham Techno High School - Gths | 3.15 KM |
| Bus Stops Near by KGR Advaitha | |
|---|---|
| Muttangi | 1.17 KM |
| Muthangi | 1.36 KM |
| Pc Tanda | 1.65 KM |
| Isnapur | 2.45 KM |
| Isnapur X Road | 2.46 KM |
| Navapan Industries | 2.85 KM |
| Navapan | 2.91 KM |
| Pati X Road | 3.19 KM |
| Patancheru Market Road | 3.54 KM |
| Patancheru Bus Terminal | 3.86 KM |
| Hospitals Near by KGR Advaitha | |
|---|---|
| Pranaam Hospitals | 1.24 KM |
| Meenakshi Hospitals | 1.33 KM |
| Bhavani Multispecality Dental Hospital | 2.37 KM |
| Smile Care Dental Hospital | 2.62 KM |
| Medistar Hospital | 2.77 KM |
| Sm Hospital | 2.88 KM |
| Deepshika Hospital | 2.91 KM |
| V Care Hospital | 3.05 KM |
| Dhruva Hospitals | 3.46 KM |
| Max Care Hospitals | 3.46 KM |
| Clinics Near by KGR Advaitha | |
|---|---|
| Jireh Homeopathy Clinic | 1.26 KM |
| Anc Diagnostics Isnapur | 2.32 KM |
| Rl's Advanced Physiotherapy Clinic | 2.57 KM |
| Tesla Diagnostics Center In Isnapur | 2.61 KM |
| Sagar Dental Hospital | 2.63 KM |
| Srinivasa Diagnostics | 2.63 KM |
| Sri Navatha Dental Clinic | 2.63 KM |
| Om Sai H N Clinic And Pharmacy | 2.71 KM |
| Maitri Clinic | 2.76 KM |
| Trio Dentalcare And Diagnostics | 2.80 KM |
| Temples Near by KGR Advaitha | |
|---|---|
| Shivalayam Temple Vijetha Colony Muthangi | 1.69 KM |
| Sri Talla Mallanna Alayam | 1.73 KM |
| Sri Seetha Ramanjaneya Temple | 2.84 KM |
| Shri Kolhapuri Mahalaxmi Devalayam | 2.98 KM |
| Sri Shirdi Sai Baba Alayam | 2.98 KM |
| Shri Shirdi Naga Saibaba Temple | 3.23 KM |
| Shri Jagannath Temple | 3.37 KM |
| Saibaba Mandir Isnapur | 3.38 KM |
| Sri Indreshwara Swamy Devasthanam | 3.92 KM |
| Sri Malikarjuna Swamy Devalayam | 4.05 KM |
| Gym Fitness Near by KGR Advaitha | |
|---|---|
| Be Strong Fitness - Unisex Gym | 2.23 KM |
| Wildfit Gym | 2.52 KM |
| Tribe Fitness Indresham | 2.67 KM |
| The Tribe Fitness | 2.78 KM |
| Force Fitness Factory | 2.78 KM |
| Ss Fitness Unisex Gym | 3.32 KM |
| Olympus Gym Patancheru | 3.61 KM |
| Ultimate Fitness Zone | 3.66 KM |
| Maruthi Gym | 3.78 KM |
| Adithya Home Yoga & Wellness | 4.11 KM |
| College and Universities Near by KGR Advaitha | |
|---|---|
| Vishwa Bharati College Of Law | 1.19 KM |
| Rrs College Of Engineering & Technology | 2.35 KM |
| Manjeera Degree College | 3.37 KM |
| Maheshwara Medical College | 3.61 KM |
| Maheshwara Engineering College | 3.69 KM |
| Apj Abdul Kalam Government Degree College | 3.71 KM |
| Aurora's Seethaiah College Of Engineering (patancheru) | 4.17 KM |
| Trr Medical College | 4.81 KM |
| Ellenki College Of Engineering And Technology (ugc Autonomous) | 5.09 KM |
| Gopal Reddy College Of Engineering And Technology | 5.27 KM |
| Coffee Shops Near by KGR Advaitha | |
|---|---|
| Chai Amruth Indresham | 3.35 KM |
| Chaiamruth Patancheruvu | 3.83 KM |
| Chai Amruth Apr Nagar | 3.93 KM |
| Lassi Spot Patancheru | 4.37 KM |
| Tea Time - Nandigaon | 6.72 KM |
| Heritage Parlour (vinayaka Dairy Parlour) | 6.79 KM |
| Heritage Dairy Parlour | 7.29 KM |
| Tea Time - Beeramguda | 7.43 KM |
| Heritage Sale Point | 7.86 KM |
| Murari Dairy Parlour-hso5 | 7.90 KM |
| Supermarkets Near by KGR Advaitha | |
|---|---|
| D-mart Warehouse | 2.23 KM |
| Value Zone Hyper Mart | 2.50 KM |
| Sri Venkataramana Supermarket | 2.88 KM |
| Anand Mart Supermarket | 5.12 KM |
| Lakshmi Kirana General Store | 5.15 KM |
| Gopal Super Market | 7.62 KM |
| More Supermarket - Bdl Mig Colony | 7.98 KM |
| Vijetha Store - My Home Tridasa | 9.26 KM |
| Sri Mahalakshmi Super Market | 9.30 KM |
| More Supermarket - Ameenpur | 9.85 KM |
| Mosques Near by KGR Advaitha | |
|---|---|
| Jamia Masjid | 1.24 KM |
| Masjid E Ibrahim Khaleelullah (zohar-1:30 | 2.41 KM |
| Sarayae Masjid | 3.25 KM |
| Mohammedia Masjid | 3.66 KM |
| Mohammadiya Masjid | 4.67 KM |
| Masjid-e-khwaja Garib Nawaz (bandalguda Masjid) | 5.01 KM |
| Masjid E Abdullah Bin Saif | 5.64 KM |
| Masjid Mohammedia | 7.01 KM |
| Masjid E Tawheed | 7.19 KM |
| Noorani Masjid Nwrny Msjd | 7.26 KM |
Check Travel Time
Connecting Roads - KGR Advaitha
This website is only for the purpose of providing information regarding real estate projects in different geographies. Any information which is being provided on this website is not an advertisement or a solicitation. The company has not verified the information and the compliances of the projects. Further, the company has not checked the RERA* registration status of the real estate projects listed herein. The company does not make any representation in regards to the compliances done against these projects. Please note that you should make yourself aware about the RERA* registration status of the listed real estate projects.
*Real Estate (regulation & development) act 2016.