Average Asking Price of Properties in Begumpet is around ₹ 11,100 /Sq.ft

100% Service, 0% Brokerage
Highly unlikely, but if you find a lower price anywhere, tell us and we will match it.
Our sales personnel are accountable for every step
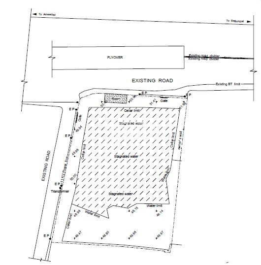
The provided plan outlines the Namishree Terminal project, situated in Begumpet.
The majority of the property's interior is designated as 'Stagnated water,' indicating a prominent water body. A small 'Room' structure is located near the northern entrance. The property boundaries are defined by a 'Cellar limit' and an internal 'Water limit.'
| Walls | Acrylic Emulsion |
| Bathroom | Premium Bath Fittings, Exhaust Fan |
| Structure | RCC Frame Structure |
| Schools Near by Namishree Terminal | |
|---|---|
| Mansura Cyber High School | 0.05 KM |
| New Oxford High School | 0.29 KM |
| Vijaya Modern School | 0.49 KM |
| Kasturba High School | 0.62 KM |
| Udbhav School | 0.81 KM |
| Eureka Model High School | 0.86 KM |
| Gitanjali Senior School | 1.04 KM |
| Gitanjali Primary School | 1.06 KM |
| Victory High School | 1.08 KM |
| Maharishi Veda Vigyan Mahavidyalaya | 1.08 KM |
| Bus Stops Near by Namishree Terminal | |
|---|---|
| Prakash Nagar | 0.09 KM |
| Police Lines | 0.32 KM |
| Begumpet Police Lines | 0.72 KM |
| Bapu Bagh Colony | 0.87 KM |
| Begumpet Shoppers Stop | 0.91 KM |
| Shyamlal | 1.09 KM |
| S.p. Road Anand Theatre | 1.09 KM |
| Wesley College | 1.11 KM |
| Opp. Shyamal Building | 1.17 KM |
| Kims | 1.23 KM |
| Hospitals Near by Namishree Terminal | |
|---|---|
| Cghs Hospital | 0.18 KM |
| American Laser Eye Hospital | 0.24 KM |
| Shamsh Hospital | 0.29 KM |
| Oxycare Multi Speciality Hospitals In Begumpet | General Physician And Diabetologist | 0.36 KM |
| Hrc Hospital | 0.62 KM |
| Columbus Hospital Institute Of Psychiatry And Deaddiction | 0.75 KM |
| V9 Hospitals | 0.79 KM |
| Ushalakshmi Breast Cancer Foundation & Kims-ushalakshmi Centre For Breast Diseases | 1.31 KM |
| Kims Hospital Cochlear Implant Unit Secunderabad & Hyderabad | 1.36 KM |
| Kims Hospitals | 1.36 KM |
| Clinics Near by Namishree Terminal | |
|---|---|
| Lenskart.com At Begumpet | 0.83 KM |
| Hdental | 0.97 KM |
| Dr. Anoop Agrawal I Best Cardiologist In Hyderabad I Tavr Specialist | 1.35 KM |
| Dr Narendranadh Meda - Best Vascular And Endovascular Surgeon Hyderabad | 1.35 KM |
| Dr Praveen Kumar Kulkarni | Senior Physician & Diabetologist In Hyderabad | 1.39 KM |
| Lenskart.com At Mg Road | 1.71 KM |
| Lawrence & Mayo Parklane | 1.92 KM |
| Wellness Hospitals- Nxp Medical Center | 2.12 KM |
| Dr.r.naga Sudha Ashok/best Gastroenterologist And Surgeon In Hyderabad | 2.23 KM |
| Fernandez Op Clinic - Necklace Road | 2.26 KM |
| College and Universities Near by Namishree Terminal | |
|---|---|
| Niit University | 0.12 KM |
| Gesto Institute Of Hotel Management | 0.13 KM |
| Shri Shakti College Of Hotel Management | 0.16 KM |
| Wesley Pg College | 0.99 KM |
| Csi Institute Of Technology | 1.03 KM |
| Krishna Institute Of Medical Sciences Nursing College And School | 1.33 KM |
| Kims College Of Bsc Mlt | 1.35 KM |
| Government Degree College For Women | 1.37 KM |
| St. Francis College For Women | 1.38 KM |
| Osmania University Pg College | 1.40 KM |
| Gym Fitness Near by Namishree Terminal | |
|---|---|
| Cult Begumpet | 0.63 KM |
| Body Station | 1.33 KM |
| Hayath Fitness | 1.77 KM |
| One More Rep Gym & Transformation Centre | 2.00 KM |
| Slim Touch Fitness Zone | 2.01 KM |
| Sd Fitness | 2.57 KM |
| Pradeep Gym | 2.60 KM |
| Fitness Freaks By Cult Fit | 2.60 KM |
| Body Power Gym | 2.64 KM |
| King Of Fitness Unisex Gym | 2.69 KM |
| Restaurants Near by Namishree Terminal | |
|---|---|
| Mujtaba Grills | 0.12 KM |
| Bowl O' China | 0.60 KM |
| Student Biryani | 0.74 KM |
| Chung Hua Restaurant | 0.82 KM |
| Signature Grills | 0.94 KM |
| Viva - Vivanta By Taj | 1.21 KM |
| Sweetheart Restaurant | 1.60 KM |
| 10 Downing Street | 1.76 KM |
| Ohri's Jiva | 1.77 KM |
| Haveli | 1.78 KM |
| Temples Near by Namishree Terminal | |
|---|---|
| The King's Temple Church | 0.89 KM |
| Baps Shri Swaminarayan Mandir | 1.05 KM |
| Sri Ujjaini Mahakali Devasthanam | 2.15 KM |
| Sri Tadbund Veeranjaneya Swamy Devasthanam | 2.24 KM |
| S.r.nagar Peddamma Talli Temple | 2.82 KM |
| Shirdi Sai Baba Temple | 2.85 KM |
| Sri Kalabhairava Swamy Devalayam | 2.90 KM |
| Sri Kanakala Katta Maisamma Devalayam | 3.47 KM |
| Sri Ganesh Temple | 3.52 KM |
| Shri Hanuman Temple | 3.61 KM |
| Supermarkets Near by Namishree Terminal | |
|---|---|
| Vijetha Supermarket Sindhi Colony | 1.08 KM |
| Green Mini Mart | 1.82 KM |
| More Supermarket - S R Nagar | 2.67 KM |
| Gaurav Super Market | 2.79 KM |
| Vijetha Supermarket Sr Nagar | 2.82 KM |
| Super 99 | 2.82 KM |
| Ratandeep | 2.97 KM |
| Star Bazar Shopping Mall | 2.98 KM |
| Baker's Super Mart | 3.06 KM |
| Dmart Store | 3.24 KM |
| Clothings Near by Namishree Terminal | |
|---|---|
| Nalli Silk Sarees Pvt Ltd | 0.82 KM |
| Zudio - P.g Road | 1.00 KM |
| Westside - Mucherla Vasavi Mansion | 1.82 KM |
| Taruni General Bazaar | 1.92 KM |
| Mugdha Silk Saree Shop L Patny Centre | 2.24 KM |
| Taruni Sd Road | 2.25 KM |
| Chandana Brothers | 2.46 KM |
| South India Shopping Mall Textile & Jewellery- Patny | 2.52 KM |
| Style Union - Ameerpet | 2.60 KM |
| Zudio - Ashoka Garden | 2.96 KM |
Check Travel Time
Connecting Roads - Namishree Terminal
Begumpet is a posh neighbourhood in the city of Secunderabad in the state of Telangana in India. Basheer Unnisa Begum, the daughter of the sixth Nizam (Mahbub Ali Khan, Asaf Jah VI), was given this land as part of her bridal dowry when she wed the second Amir of Paigah Shams ul Umra Amir e Kabir. Accordingly, the area was given the name Begumpet in her honour. Begumpet, which can be found to the
Properties in Namishree Terminal & Top Sellers
This website is only for the purpose of providing information regarding real estate projects in different geographies. Any information which is being provided on this website is not an advertisement or a solicitation. The company has not verified the information and the compliances of the projects. Further, the company has not checked the RERA* registration status of the real estate projects listed herein. The company does not make any representation in regards to the compliances done against these projects. Please note that you should make yourself aware about the RERA* registration status of the listed real estate projects.
*Real Estate (regulation & development) act 2016.