Internal finishing stands at 45%, MEP Services including lift and staircases, are now 10% done.

Rajyog Heights Apartments, located in the popular suburb of Palghar, offers a unique blend of comfort and convenience. The project is strategically situated near the Palghar - Manor Road and Boisar-Palghar Road, making it easily accessible from various parts of the city.
The project features a range of modern amenities, including kids play areas/sand pits and power backup, ensuring a comfortable and enjoyable living experience. The apartments are designed with residents needs in mind, with specifications like master bedrooms with oil-bound distemper walls.
Rajyog Heights Apartments is a RERA-approved project with a unique RERA registration number - P99000052630. With a variety of unit options available, including 2 BHK and 3 BHK apartments, the project is an excellent choice for those looking for a modern and convenient living space.
Available Unit OptionsThe following table outlines the available unit options at Rajyog Heights Apartments:
| Unit Type | Area (Sq. Ft.) | Price (Rs.) |
| 2 BHK Apartment | 646 | 68.76 Lac |
| 2 BHK Apartment | 651 | 69.30 Lac |
| 3 BHK Apartment | 998 | 1.06 Cr |
This real estate project is surrounded by several significant landmarks that cater to the needs of residents, making it an attractive choice for those seeking a comfortable and convenient living experience.
Internal finishing stands at 45%, MEP Services including lift and staircases, are now 10% done.
A total of 13 out of 56 launched units have been booked as of February 2026, including 14% of 3 BHK(2 out of 14 units), 26% of 2 BHK(11 out of 42 units).
During Q3'2025, average property prices for Rajyog Heights Apartments moved from ₹ 4,400/sqft to ₹ 4,550/sqft, reflecting a 3.41% rise.
Structural Works reach 80% completion, Internal finishing stands at 15%.
A total of 15 out of 56 launched units have been booked as of May 2025, including 14% of 3 BHK(2 out of 14 units), 31% of 2 BHK(13 out of 42 units).
Structural Works reach 77% completion.
A total of 13 out of 56 launched units have been booked as of February 2025, including 14% of 3 BHK(2 out of 14 units), 26% of 2 BHK(11 out of 42 units).
Structural Works reach 72% completion.
A total of 8 out of 56 launched units have been booked as of November 2024, including 14% of 3 BHK(2 out of 14 units), 14% of 2 BHK(6 out of 42 units).
Structural Works reach 70% completion.
| Master Bedroom-Walls | Oil Bound Distemper |
| Master Bedroom-Flooring | Vitrified Tiles |
| Other Bedrooms-Flooring | Vitrified Tiles |
| Walls | Oil Bound Distemper |
| Living Area-Flooring | Vitrified Tiles |
| Bathroom | Premium Bath Fittings |
| Structure | RCC Frame Structure |
| Schools Near by Rajyog Heights Apartments | |
|---|---|
| Holy Spirit High School And Junior College Palghar | 1.02 KM |
| St John International School | 3.51 KM |
| Mumbai Public School | 12.07 KM |
| Ds Memorial High School | 12.21 KM |
| Hospitals Near by Rajyog Heights Apartments | |
|---|---|
| Rajshree Hospital | 0.82 KM |
| Sharda Hospital | 1.37 KM |
| Rural Hospital Palghar | 1.62 KM |
| Palghar Nursing Home And Child Care Centre | 1.66 KM |
| Gauri Clinic Eye And Skin Care Centre | 1.68 KM |
| Kanta Hospital | 1.85 KM |
| Relief Hospital | 2.11 KM |
| Primary Health Center | 6.31 KM |
| Thunga Hospital | 11.61 KM |
| Metro Phoenix Hospital | 11.71 KM |
| Hotels Near by Rajyog Heights Apartments | |
|---|---|
| Hotel Stay Inn | 2.23 KM |
| Hotel Express Inn | 12.43 KM |
| Hotel Sarovar | 13.57 KM |
| Shopping Malls Near by Rajyog Heights Apartments | |
|---|---|
| Three Star Shopping Centre | 1.10 KM |
| Kuber Shopping Centre | 1.62 KM |
| Rajeshwar Mobile | 6.97 KM |
| Royal Classic Mall | 11.02 KM |
| Shivkala Arcade | 12.29 KM |
| Railway Stations Near by Rajyog Heights Apartments | |
|---|---|
| Palghar Railway Station | 1.96 KM |
| Boisar Railway Station | 12.12 KM |
| Post Offices Near by Rajyog Heights Apartments | |
|---|---|
| Palghar Head Post Office | 1.68 KM |
| Banks Near by Rajyog Heights Apartments | |
|---|---|
| Bank Of India | 11.76 KM |
| Colleges and Universities Near by Rajyog Heights Apartments | |
|---|---|
| Sas Institute Of Management Studies | 10.26 KM |
Check Travel Time
Connecting Roads - Rajyog Heights Apartments
Rajyog Heights Apartments offers a range of amenities such as 24*7 security, power backup, rainwater harvesting, indoor games, and kids play areas, making it an attractive living option.
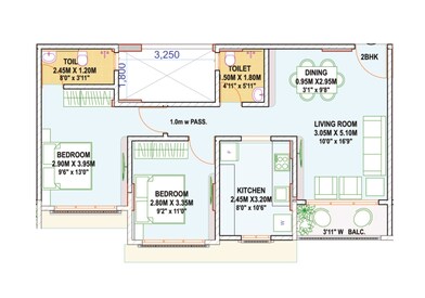
Rajyog Heights Apartments offers 2 BHK and 3 BHK apartments in various configurations, with 646-651 Sq. Ft. for the 2 BHK and 998 Sq. Ft. for the 3 BHK units.
,Yes, Rajyog Heights Apartments is a registered project under RERA with registration number P99000052630.
The expected possession date for Rajyog Heights Apartments is not specified.
Rajyog Heights Apartments features a RCC frame structure with oil-bound distemper walls, vitrified tiles flooring, and premium bath fittings.
This website is only for the purpose of providing information regarding real estate projects in different geographies. Any information which is being provided on this website is not an advertisement or a solicitation. The company has not verified the information and the compliances of the projects. Further, the company has not checked the RERA* registration status of the real estate projects listed herein. The company does not make any representation in regards to the compliances done against these projects. Please note that you should make yourself aware about the RERA* registration status of the listed real estate projects.
*Real Estate (regulation & development) act 2016.