A total of 7 residential transactions has been registered so far for Veddant Ganesh Bella Montana, amounting to ₹ 3 Cr till November 2025.

100% Service, 0% Brokerage
Highly unlikely, but if you find a lower price anywhere, tell us and we will match it.
Our sales personnel are accountable for every step
Own this home with EMIs starting at ₹ 43.39 K/month - Check Cibil Linked Loan Estimate
A total of 7 residential transactions has been registered so far for Veddant Ganesh Bella Montana, amounting to ₹ 3 Cr till November 2025.
During Q1'2025, average property prices for Veddant Ganesh Bella Montana moved from ₹ 9,650/sqft to ₹ 9,700/sqft, reflecting a 0.52% rise.
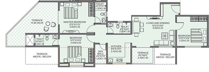
Structural Works reach 50% completion, External Works has reached 30%, Internal finishing stands at 39%, MEP Services including lift and staircases, are now 35% done.
A total of 15 out of 75 launched units have been booked as of March 2023, including 25% of SHOP(2 out of 8 units), 10% of OFFICE SPACE(1 out of 10 units), 44% of 3 BHK(4 out of 9 units), 22% of 2 BHK(8 out of 36 units).
Structural Works reach 36% completion.
A total of 2 out of 52 launched units have been booked as of August 2022, including 11% of 3 BHK(1 out of 9 units), 3% of 2 BHK(1 out of 31 units).
Ganesh Bella Montana, developed by Veddant Shelters, officially launched on 18-Feb-2020 and expected to complete by 30-Dec-2025. Registered under RERA No. P52100024546. with total area of 1.06 Acre.
| Master Bedroom-Walls | Acrylic Emulsion |
| Master Bedroom-Flooring | Vitrified Tiles |
| Other Bedrooms-Flooring | Vitrified Tiles |
| Walls | Acrylic Emulsion |
| Living Area-Flooring | Vitrified Tiles |
| Ceilings | False Ceiling |
| Structure | RCC Frame Structure |
| Schools Near by Veddant Ganesh Bella Montana | |
|---|---|
| Sb Patil Public School | 0.77 KM |
| S.b. Patil Public School- Sbpps Ravet | 0.78 KM |
| Arise International School | 0.86 KM |
| S. B. Patil College Of Science And Commerce | 0.88 KM |
| Planet Wisdom School | 0.96 KM |
| D. Y. Patil Dnyanshanti School | 1.05 KM |
| City Pride School- Ravet | 1.36 KM |
| Jnana Prabodhini Navanagar Vidyalaya (jpnv) | 1.47 KM |
| Christeria High School | 1.78 KM |
| Orchids The International School | 1.79 KM |
| Bus Stops Near by Veddant Ganesh Bella Montana | |
|---|---|
| Mauli Park | 0.03 KM |
| Iskcon Mandir Shinde Wasti Ravet | 0.28 KM |
| Sonigara Apartments Shinde Wasti Ravet | 0.35 KM |
| Ravet Shinde Wasti | 0.51 KM |
| Ravet Sector 29 | 0.75 KM |
| Durgesh Mandir | 0.95 KM |
| Ganesh Talav | 1.00 KM |
| Dharam Raj Chowk | 1.06 KM |
| Dharmaraj Chowk | 1.08 KM |
| D.y. Patil College | 1.10 KM |
| Hospitals Near by Veddant Ganesh Bella Montana | |
|---|---|
| Aditi Multispeciality Hospital | 0.96 KM |
| Yashashree Hospital | 0.97 KM |
| Global Hospital & Research Centre | 0.98 KM |
| Lifeline Multispeciality Hospital | 1.12 KM |
| Kolte Hospital | 1.22 KM |
| Ojass Multispeciality Hospital | 1.25 KM |
| Lokmanya Hospital Nigdi | 1.55 KM |
| Dhanwantari Hospital Nigdi | 1.61 KM |
| Shende Hospital | 1.75 KM |
| Pdea's Ayurveda Rugnalaya & Sterling Multi Speciality Hospital Arsmh | 1.75 KM |
| Clinics Near by Veddant Ganesh Bella Montana | |
|---|---|
| Dr Jadhav's Skin Clinic | 1.08 KM |
| Dr Lal Pathlabs - Patient Service Centre | 1.18 KM |
| Sai Prabha Eye Clinic | 1.19 KM |
| Atharv Homoeocare Clinic | 1.19 KM |
| Dr Chaitali Adkar | 1.20 KM |
| Lenskart.com At Ravet | 1.32 KM |
| Muppra Kerala Ayurvedic | 1.32 KM |
| Dr. Prerna Raina | 1.43 KM |
| Shree Health & Dental Studio | 1.48 KM |
| Orthosquare Dental Clinic In Akurdi-nigdi | 1.48 KM |
| Gym Fitness Near by Veddant Ganesh Bella Montana | |
|---|---|
| Anu's Fitness House | 0.68 KM |
| Planet Fitness | 0.83 KM |
| Ekveera Fitness Hub (ravet) | 0.94 KM |
| Angel's Fitness Club Only For Ladies | 0.95 KM |
| R P Fitness Ravet | 1.08 KM |
| Md Fitness | 1.23 KM |
| Intra Fitness Club | 1.25 KM |
| Sanatoriym Gym Pradhikarn 411044 | 1.42 KM |
| B Fit Step In Fitness Era | 1.44 KM |
| Multifit Pradhikaran | 1.45 KM |
| Temples Near by Veddant Ganesh Bella Montana | |
|---|---|
| Iskcon (shree Govinda Dhama) Ravet | 0.15 KM |
| Mahsoba Mandir | 0.61 KM |
| Shiv Temple | 0.63 KM |
| Vaishno Devi Mandir | 1.26 KM |
| Jankiban Siddhi Vinayak Mandir | 1.27 KM |
| Shree Gajanan Maharaj Mandir | 1.43 KM |
| Shri Siddhivinayak Mandir Ravetgaon | 1.53 KM |
| Shree Mahadev Mandir | 1.66 KM |
| Shree 1008 Bhagwan Mahavir Digambar Jain Temple Nigdi | 1.70 KM |
| Shree Ram Mandir | 1.83 KM |
| Restaurants Near by Veddant Ganesh Bella Montana | |
|---|---|
| Christy Restaurant | 1.21 KM |
| G S Biryani | 1.34 KM |
| Dakkhan Spice | 1.34 KM |
| Top 87 - The Other Place | 1.40 KM |
| Punjabi Treat | 1.43 KM |
| Shawarma King | 1.44 KM |
| Sangrilla Restaurant | 1.50 KM |
| Twelve 21 | 1.52 KM |
| Bridge Point | 1.65 KM |
| Le Stone | 1.79 KM |
| College and Universities Near by Veddant Ganesh Bella Montana | |
|---|---|
| Pcacs Ravet - Pimpri Chinchwad College Of Arts | 0.79 KM |
| Pcet Campus - Akurdi | 0.94 KM |
| Pccoe-ravet | 0.95 KM |
| Pccoe - Pimpri Chinchwad College Of Engineering | 0.96 KM |
| Pcp - Pimpri Chinchwad Polytechnic College | 0.98 KM |
| S. B. Patil College Of Architecture & Design | Best Architecture College | College Of Architecture | 0.98 KM |
| S. B. Patil Institute Of Management | 1.00 KM |
| Pune Business School | 1.00 KM |
| Dr. D. Y. Patil Institute Of Management Studies (dypims) | 1.07 KM |
| Dr. D. Y. Patil College Of Architecture | 1.09 KM |
| Supermarkets Near by Veddant Ganesh Bella Montana | |
|---|---|
| Akash Mart Online | Qualitail | 0.50 KM |
| Om Super Market | 0.78 KM |
| Dmart | 0.94 KM |
| Gokul Super Market | 1.29 KM |
| Anand Super Market | 1.55 KM |
| Grahak Bazar | 1.92 KM |
| Vastimal Sisodia And Sons | 2.69 KM |
| Green Fresh Mart | 3.07 KM |
| D Mart Warehouse | 3.39 KM |
| Geeta Supermarket | 3.42 KM |
| Clothings Near by Veddant Ganesh Bella Montana | |
|---|---|
| Life Styles | 1.17 KM |
| U.s. Polo Assn. | 1.76 KM |
| Louis Philippe Factory Outlet Akurdi | 1.77 KM |
| Body Basics | 1.91 KM |
| Just Casuals | 1.93 KM |
| Peter England Showroom | 2.00 KM |
| Firstcry.com Store Pune Nigdi | 2.34 KM |
| Me N Moms | 2.39 KM |
| Zudio | 2.76 KM |
| Kumar Fashions | 3.62 KM |
Check Travel Time
Connecting Roads - Veddant Ganesh Bella Montana
The peaceful town of Ravet is located on the outskirts of Pune and is a part of the affluent Pimpri-Chinchwad Municipal Corporation. The stunning Tilak Bridge over the Pawana River connects the Ravet to Pune City. The region is situated on the Katraj-Dehu Bypass route, which connects to the Mumbai highway along the Pawana river on the northwest side of Pimpri-Chinchwad. The Pavana River partially forms the neighborhood's southern boundary. What's
Veddant Buildcon, a renowned real estate development firm in Pune, has gained prominence in the industry with their distinguished lineage of two generations. With over 24 years of experience and counting, they have successfully completed more than 51 projects across Pune and PCMC. Now, under the leadership of Mr. Sanjay Patel, Dinesh Jain, Mohit Daga, and Sandeep Kumar Lunawat, they are determined to create a customer-centric organization driven by work
This website is only for the purpose of providing information regarding real estate projects in different geographies. Any information which is being provided on this website is not an advertisement or a solicitation. The company has not verified the information and the compliances of the projects. Further, the company has not checked the RERA* registration status of the real estate projects listed herein. The company does not make any representation in regards to the compliances done against these projects. Please note that you should make yourself aware about the RERA* registration status of the listed real estate projects.
*Real Estate (regulation & development) act 2016.