A total of 45 residential transactions has been registered so far for Shubharambh Clara, amounting to ₹ 35 Cr till October 2025.

 
            100% Service, 0% Brokerage
Highly unlikely, but if you find a lower price anywhere, tell us and we will match it.
Our sales personnel are accountable for every step
Own this home with EMIs starting at ₹ 56.23 K/month - Check Cibil Linked Loan Estimate
A total of 45 residential transactions has been registered so far for Shubharambh Clara, amounting to ₹ 35 Cr till October 2025.
Structural Works reach 16% completion.
A total of 98 out of 248 launched units have been booked as of February 2025, including 55% of 2 BHK LAND OWNER(18 out of 33 units), 35% of 3 BHK(23 out of 66 units), 44% of 2 BHK(47 out of 106 units), 100% of 3 BHK LANDOWNER(10 units).
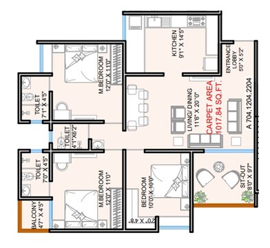
Shubharambh Clara, developed by Shubharambh Landmarks, officially launched on 18-Jun-2024 and expected to complete by 31-Dec-2028. Registered under RERA No. P52100076634. The project comprises 2 towers and offers 248 residential units, including 1 BHK, 2 BHK LAND OWNER, 2 BHK, 3 BHK LAND OWNER, 3 BHK, 3 BHK LANDOWNER, with unit sizes ranging from 441 to 1076 Square feet across a total area of 1.51 Acre.
| Master Bedroom-Walls | Oil Bound Distemper | 
| Master Bedroom-Flooring | Vitrified Tiles | 
| Other Bedrooms-Flooring | Vitrified Tiles | 
| Walls | Oil Bound Distemper | 
| Living Area-Flooring | Vitrified Tiles | 
| Structure | RCC Frame Structure | 
| Schools Near by Shubharambh Clara | |
|---|---|
| City Pride School- Ravet | 0.45 KM | 
| Planet Wisdom School | 0.83 KM | 
| Sb Patil Public School | 0.84 KM | 
| S.b. Patil Public School- Sbpps Ravet | 0.89 KM | 
| St. Joseph Bethany Convent School | 0.94 KM | 
| S. B. Patil College Of Science And Commerce | 1.15 KM | 
| Wisdom English Medium High School | 1.36 KM | 
| Bethany Convent School | 1.76 KM | 
| Vib's English School | 1.92 KM | 
| Arise International School | 2.07 KM | 
| Bus Stops Near by Shubharambh Clara | |
|---|---|
| Aadarsh Nagar | 0.50 KM | 
| Purandare Colony | 0.58 KM | 
| Rajaram Nagar | 0.75 KM | 
| Dattanagar | 0.95 KM | 
| Bhondve Vasti | 1.06 KM | 
| Mukai Chowk | 1.14 KM | 
| Mukai Chowk Kiwale Bus Terminal | 1.17 KM | 
| Ravet Shinde Wasti | 1.31 KM | 
| Mukai Chowk Kiwale | 1.31 KM | 
| Santosa Resort Ravet Phata | 1.31 KM | 
| Hospitals Near by Shubharambh Clara | |
|---|---|
| Ratnaroop Ayurved Hospital And Panchakarma Centre.& Centre For Spine & Joint Disorders | 0.47 KM | 
| Sai Vardan Hospital | 0.64 KM | 
| Aditi Multispeciality Hospital | 0.78 KM | 
| Varad Hospital & Critical Care | 0.82 KM | 
| Yashashree Hospital | 0.84 KM | 
| Bidve Hospital | 0.86 KM | 
| Shree Samarth Hospital | 1.13 KM | 
| Swim Hospital | 1.37 KM | 
| Vithoba Hospital ( Medicine/dental /children/best Piles Surgery ) | 1.49 KM | 
| Ordnance Factory Hospital | 1.64 KM | 
| Clinics Near by Shubharambh Clara | |
|---|---|
| Atharv Homoeocare Clinic | 0.18 KM | 
| Dr. Prerna Raina | 0.20 KM | 
| Dr Lal Pathlabs - Patient Service Centre | 0.25 KM | 
| Dr Jadhav's Skin Clinic | 0.25 KM | 
| Pushpam Dental Clinic (dr Rahul Bari) | 0.54 KM | 
| Anugrah Physiotherapy Clinic | 1.07 KM | 
| Dr. Bora's Med N Smile Polyclinic | 1.07 KM | 
| Ameya Clinic- Child Care And Vaccination Center (dr. Abhijeet Kolsepatil) | 1.11 KM | 
| Curo Dental Clinic And Implant Centre | 1.11 KM | 
| Radiant Sonography Centre | 1.11 KM | 
| Gym Fitness Near by Shubharambh Clara | |
|---|---|
| Royal Fitness Club. | 0.71 KM | 
| Ashu's Fitness Studio | 0.71 KM | 
| Ultimate Hardcore Fitness | Best Gym In Kiwale | 0.72 KM | 
| Ekveera Fitness Hub (ravet) | 0.73 KM | 
| Angel's Fitness Club Only For Ladies | 0.78 KM | 
| Pavillion Fitness | 0.86 KM | 
| Planet Fitness | 0.89 KM | 
| Fit N Fab- Zumba | 0.90 KM | 
| Coach-shubham: -an Exclusive Personal Fitness Coach | 0.94 KM | 
| Golds Gym Ravet | 1.19 KM | 
| Temples Near by Shubharambh Clara | |
|---|---|
| Shree Ganesh Mandir | 0.83 KM | 
| Junawane Datta Mandir | 1.05 KM | 
| Mukai Devi Mandir | 1.34 KM | 
| Shri Siddhivinayak Mandir | 1.43 KM | 
| Iskcon (shree Govinda Dhama) Ravet | 1.46 KM | 
| Bapdeo Temple | 1.49 KM | 
| Shiv Temple | 1.59 KM | 
| Vitthal Mandir | 1.63 KM | 
| Datta Mandir | 1.75 KM | 
| Radha Krishna Mandir | 1.77 KM | 
| Restaurants Near by Shubharambh Clara | |
|---|---|
| Le Stone | 0.92 KM | 
| Twelve 21 | 1.14 KM | 
| Sentosa Multicuisine Restaurant | 1.39 KM | 
| Dakkhan Spice | 2.39 KM | 
| Top 87 - The Other Place | 2.47 KM | 
| G S Biryani | 2.48 KM | 
| Christy Restaurant | 2.53 KM | 
| Bridge Point | 2.54 KM | 
| Punjabi Treat | 2.58 KM | 
| Baba Ramdev Dhaba | 2.65 KM | 
| College and Universities Near by Shubharambh Clara | |
|---|---|
| Pcacs Ravet - Pimpri Chinchwad College Of Arts | 0.92 KM | 
| Pccoe-ravet | 1.26 KM | 
| Pcet Campus - Akurdi | 2.24 KM | 
| S. B. Patil Institute Of Management | 2.24 KM | 
| Pune Business School | 2.25 KM | 
| Pccoe - Pimpri Chinchwad College Of Engineering | 2.26 KM | 
| S. B. Patil College Of Architecture & Design | Best Architecture College | College Of Architecture | 2.26 KM | 
| Pcp - Pimpri Chinchwad Polytechnic College | 2.27 KM | 
| Dr. D. Y. Patil Institute Of Management Studies (dypims) | 2.34 KM | 
| Dr. D. Y. Patil College Of Architecture | 2.40 KM | 
| Supermarkets Near by Shubharambh Clara | |
|---|---|
| Akash Mart Online | Qualitail | 1.54 KM | 
| Om Super Market | 2.02 KM | 
| D Mart Warehouse | 2.07 KM | 
| Dmart | 2.18 KM | 
| Gokul Super Market | 2.38 KM | 
| Anand Super Market | 2.59 KM | 
| Bhavani Mart | 2.84 KM | 
| Grahak Bazar | 3.02 KM | 
| Puneri Fresh Mart | 3.57 KM | 
| Sai Bazar (si Bjhar) | 3.85 KM | 
| Clothings Near by Shubharambh Clara | |
|---|---|
| U.s. Polo Assn. | 0.92 KM | 
| Cottonking Showroom | 2.39 KM | 
| Life Styles | 2.49 KM | 
| Life Style Collection | 2.58 KM | 
| Kumar Fashions | 2.89 KM | 
| Peter England Showroom | 3.01 KM | 
| Just Casuals | 3.02 KM | 
| Body Basics | 3.02 KM | 
| Louis Philippe Factory Outlet Akurdi | 3.09 KM | 
| Zudio | 3.29 KM | 
Check Travel Time
Connecting Roads - Shubharambh Clara
The peaceful town of Ravet is located on the outskirts of Pune and is a part of the affluent Pimpri-Chinchwad Municipal Corporation. The stunning Tilak Bridge over the Pawana River connects the Ravet to Pune City. The region is situated on the Katraj-Dehu Bypass route, which connects to the Mumbai highway along the Pawana river on the northwest side of Pimpri-Chinchwad. The Pavana River partially forms the neighborhood's southern boundary. What's
Properties in Shubharambh Clara & Top Sellers
This website is only for the purpose of providing information regarding real estate projects in different geographies. Any information which is being provided on this website is not an advertisement or a solicitation. The company has not verified the information and the compliances of the projects. Further, the company has not checked the RERA* registration status of the real estate projects listed herein. The company does not make any representation in regards to the compliances done against these projects. Please note that you should make yourself aware about the RERA* registration status of the listed real estate projects.
*Real Estate (regulation & development) act 2016. 
  
             
            
             
             
          
         
           
 
    