A total of 2 residential transactions has been registered so far for Orchid Vasundhara, amounting to ₹ 5 Cr till October 2025.

            100% Service, 0% Brokerage
Highly unlikely, but if you find a lower price anywhere, tell us and we will match it.
Our sales personnel are accountable for every step
Own this home with EMIs starting at ₹ 2.32 L/month - Check Cibil Linked Loan Estimate
A total of 2 residential transactions has been registered so far for Orchid Vasundhara, amounting to ₹ 5 Cr till October 2025.
During Q3'2025, average property prices for Orchid Vasundhara moved from ₹ 38,400/sqft to ₹ 40,250/sqft, reflecting a 4.82% rise.
During Q1'2025, average property prices for Orchid Vasundhara moved from ₹ 23,800/sqft to ₹ 46,200/sqft, reflecting a 94.12% rise.
Structural Works reach 37% completion, MEP Services including lift and staircases, are now 9% done.
Structural Works reach 35% completion.
A total of 4 out of 33 launched units have been booked as of February 2024, including 15% of OFFICE SPACE(4 out of 27 units).
Structural Works reach 20% completion.
ORCHID VASUNDHARA, developed by ORCHID BUILTCON PVT. LTD., officially launched on 24-Jan-2023 and expected to complete by 31-Dec-2026. Registered under RERA No. P51800048969. with total area of 0.35 Acre.
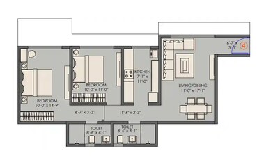
| Master Bedroom-Walls | Oil Bound Distemper | 
| Master Bedroom-Flooring | Vitrified Tiles | 
| Other Bedrooms-Flooring | Vitrified Tiles | 
| Walls | Oil Bound Distemper | 
| Living Area-Flooring | Vitrified Tiles | 
| Structure | RCC Frame Structure | 
| Schools Near by Orchid Vasundhara | |
|---|---|
| Harmony Montessori | 0.33 KM | 
| Suniti Enterprises (school Shoes) | 0.35 KM | 
| Malti Jayant Dalal High School | 0.36 KM | 
| Podar International School - Mumbai (santacruz) | 0.44 KM | 
| Smt. Lilavatibai Podar High School | 0.50 KM | 
| Rn Podar School Santa Cruz | 0.51 KM | 
| Rev. C.f. Andrews High School | 0.53 KM | 
| Taraben Master School | 0.56 KM | 
| St. Lawrence High School | 0.56 KM | 
| Little Angels English High School | 0.58 KM | 
| Bus Stops Near by Orchid Vasundhara | |
|---|---|
| Santacruz Station (w) Road | 0.06 KM | 
| Khira Nagar | 0.12 KM | 
| Kashibai Hospital | 0.17 KM | 
| Khira Nagar (santacruz-w) | 0.17 KM | 
| Santacruz Station | 0.23 KM | 
| Santacruz Police Station | 0.29 KM | 
| Santacruz Station Road | 0.39 KM | 
| Shastri Nagar (juhu) | 0.45 KM | 
| Santacruz Police Station - V.p. Road | 0.47 KM | 
| Santacruz Station (w) | 0.48 KM | 
| Hospitals Near by Orchid Vasundhara | |
|---|---|
| Surya Hospitals | 0.05 KM | 
| World Gastroenterology Institute | 0.06 KM | 
| Sarla Hospital & Icu | 0.17 KM | 
| Mangal Multispeciality Hospital | 0.25 KM | 
| Malpani Eye Hospital And Laser Centre | 0.30 KM | 
| Kenia Eye Hospital | Best Eye Hospital In Mumbai | Lasik Surgery In Mumbai | Cataract Surgery In Mum | 0.46 KM | 
| Navyajyot Eye Hospital | 0.64 KM | 
| Benz Hospital | 0.68 KM | 
| R K Hospital | 0.69 KM | 
| Aastha Eye Hospital | 0.79 KM | 
| Restaurants Near by Orchid Vasundhara | |
|---|---|
| Tequila Sunrise | 0.59 KM | 
| Megumi | 0.67 KM | 
| Dynasty | 0.79 KM | 
| Sorrentina All Day Dining | 1.10 KM | 
| Bombay Adda | 1.16 KM | 
| Tamak | 1.19 KM | 
| One8 Commune | 1.19 KM | 
| Saffron & Soy | 1.21 KM | 
| Cecconi's | 1.21 KM | 
| Little Italy | 1.23 KM | 
| Clinics Near by Orchid Vasundhara | |
|---|---|
| Lenskart.com At Santacruz West | 0.51 KM | 
| Rejua Energy Center- Best Acupuncture Treatment Therapy Near Me In Santacruz West I Best Pain Relief | 0.57 KM | 
| Richfeel | 0.68 KM | 
| Paras Pathology Llp | 0.96 KM | 
| Titan Eye+ At Linking Road | 1.11 KM | 
| Metropolis Healthcare Ltd - Pathology Lab | 1.39 KM | 
| Lenskart.com At Juhu Tara Road | 1.41 KM | 
| Solanki's Dental Care Centre | 1.79 KM | 
| Lenskart.com At Vile Parle | 1.85 KM | 
| Derma Puritys - Best Dermatologist & Skin Care Clinic Mumbai For Hydrafacial | 1.90 KM | 
| College and Universities Near by Orchid Vasundhara | |
|---|---|
| L.s. Raheja College Of Arts & Commerce | 0.58 KM | 
| Smt. Kapila Khandwala College Of Education | 0.59 KM | 
| Sndt Women's University | 0.80 KM | 
| Usha Mittal Institute Of Technology | 0.84 KM | 
| Sir Vithaldas Thackersey College Of Home Science | 0.86 KM | 
| Cu Shah College Of Pharmacy | 0.89 KM | 
| Premlila Vithaldas Polytechnic | 0.91 KM | 
| St. Teresa's Institute Of Education | 0.98 KM | 
| Suvidya Institute Of Technology Pvt. Ltd. | 1.04 KM | 
| Maniben Nanavati Women's College | 1.25 KM | 
| Gym Fitness Near by Orchid Vasundhara | |
|---|---|
| Total Sports & Fitness Santacruz | 0.39 KM | 
| The Yoga Institute- Global Headquarters (santacruz-east) | 0.50 KM | 
| The Solitaire Fitness International | 0.89 KM | 
| Santacruz Gymkhana | 0.92 KM | 
| Tarun Fitness Gym | 1.20 KM | 
| Rhinos Gym Khar West | 1.37 KM | 
| Balmitra Gym | 1.50 KM | 
| Dessus Fitness | 1.53 KM | 
| Khar Gymkhana | 1.76 KM | 
| Fitrath Gym | 1.78 KM | 
| Clothings Near by Orchid Vasundhara | |
|---|---|
| Kalki Flagship Store Santacruz | 0.24 KM | 
| Roopkala Heritage | 0.42 KM | 
| Kora Santacruz | 0.57 KM | 
| Blackberrys | 0.93 KM | 
| Pernia's Pop-up Studio | 1.19 KM | 
| Aza Fashions | 1.23 KM | 
| Aveda X Nykaa Lifesyle Salon | 1.84 KM | 
| The Souled Store Bandra | 2.48 KM | 
| Aishwarya Design Studio | 2.55 KM | 
| Pernia's Pop-up Studio | 2.97 KM | 
| Temples Near by Orchid Vasundhara | |
|---|---|
| Body Temple Yoga Studio | 0.12 KM | 
| Tom Temple Of Miracles | Tarot Cards | 0.63 KM | 
| Shree Simandharswami Digamber Jain Mandir | 1.44 KM | 
| Shree Ghanteshwar Hanuman Mandir | 1.58 KM | 
| Boot Bhavani Temple | 2.33 KM | 
| Swami Samarth Math & Shantadurga Mandir | 2.43 KM | 
| Jari Mari Mata Temple | 3.17 KM | 
| Iskcon Mandir - Juhu | 3.31 KM | 
| Sahar Ayyappa Shiva Parvati Mandir | 3.47 KM | 
| Gaondevi Temple | 3.94 KM | 
| Home Decors Near by Orchid Vasundhara | |
|---|---|
| Livspace - Interior Design Studio | 2.55 KM | 
| Duroflex Experience Centre - Bandra | 2.57 KM | 
| Pepperfry Furniture Shop-store In Bandra | 3.38 KM | 
| Urban Ladder | 3.43 KM | 
| Pepperfry Furniture Shop-store In Juhu | 3.49 KM | 
| Livspace - Interior Design Studio | 4.25 KM | 
| Godrej Interio - Furniture Store In Andheri West | 4.77 KM | 
| Home Centre - Furniture Store | 5.17 KM | 
| Springwel Mattress Store | 5.17 KM | 
| The Sleep Company Experience Store - Phoenix Market City-kurla | 5.21 KM | 
Check Travel Time
Connecting Roads - Orchid Vasundhara
Santacruz West is among the most posh and sought-after localities in Mumbai. Its PIN Code is 400054. Primarily a residential area, the locality boasts excellent infrastructural facilities along with premium living conditions. Santacruz West enjoys close proximity to the Western Express Highway on one side and the Arabian Sea on the other. Santacruz actually is a Portuguese term which translates to ‘Holy Cross’. The historic Holy Cross Church carries the heritage
This website is only for the purpose of providing information regarding real estate projects in different geographies. Any information which is being provided on this website is not an advertisement or a solicitation. The company has not verified the information and the compliances of the projects. Further, the company has not checked the RERA* registration status of the real estate projects listed herein. The company does not make any representation in regards to the compliances done against these projects. Please note that you should make yourself aware about the RERA* registration status of the listed real estate projects.
*Real Estate (regulation & development) act 2016.