A total of 4 residential transactions has been registered so far for Deshpande Anjaneya CHS, amounting to ₹ 3 Cr till January 2026.

100% Service, 0% Brokerage
Highly unlikely, but if you find a lower price anywhere, tell us and we will match it.
Our sales personnel are accountable for every step
A total of 4 residential transactions has been registered so far for Deshpande Anjaneya CHS, amounting to ₹ 3 Cr till January 2026.
During Q4'2025, average property prices for Deshpande Anjaneya CHS moved from ₹ 11,950/sqft to ₹ 12,350/sqft, reflecting a 3.35% rise.
Structural Works reach 31% completion.
During Q3'2025, average property prices for Deshpande Anjaneya CHS moved from ₹ 11,800/sqft to ₹ 11,950/sqft, reflecting a 1.27% rise.
ANJANEYA CO-OPERATIVE HOUSING SOCIETY LTD., developed by DESHPANDE LANDMARK PRIVATE LIMITED, officially launched on 11-Oct-2024 and expected to complete by 31-Mar-2027. Registered under RERA No. P52100077569. The project comprises 1 towers with total area of 0.10 Acre.
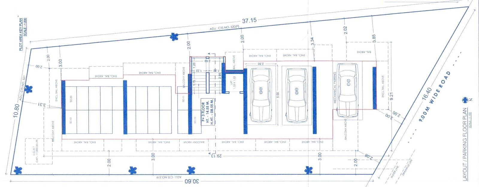
The project, Deshpande Anjaneya CHS, primarily features a P+3 floor structure. While specific total land area, number of individual units, or total number of towers aren't explicitly stated on this layout plan, the drawing details the parking and ground floor configuration. Project launch and completion dates are not visible on this plan.
This layout/parking floor plan primarily details the ground level, which is designated for vehicular parking, including mechanical parking facilities. The presence of 'ENCL. BAL. ABOVE' and 'BALCONY ABOVE' indications signifies that the upper floors are dedicated to residential living. No specific commercial zones or designated open green spaces are shown or measured on this particular plan, and units per acre cannot be determined from the available information.
| Master Bedroom-Walls | Oil Bound Distemper |
| Master Bedroom-Flooring | Vitrified Tiles |
| Other Bedrooms-Flooring | Vitrified Tiles |
| Walls | Oil Bound Distemper |
| Living Area-Flooring | Vitrified Tiles |
| Structure | RCC Frame Structure |
| Schools Near by Deshpande Anjaneya CHS | |
|---|---|
| Millennium National School | 0.32 KM |
| Shree Saraswati Vidya Mandir | 0.37 KM |
| Samrat Ashok Vidya Mandir | 0.55 KM |
| Bvb Paranjape Vidya Mandir | 0.90 KM |
| Mksss Mahilashram Junior College | 0.93 KM |
| Shanu Patel High School Girish Society | 1.04 KM |
| Jeevan Vidya English School Warje | 1.14 KM |
| Mahesh Vidyalaya English Medium | 1.15 KM |
| G R Palkar Primary School | 1.18 KM |
| Pragati Vidya Mandir | 1.20 KM |
| Bus Stops Near by Deshpande Anjaneya CHS | |
|---|---|
| Devyani Hospital | 0.13 KM |
| Dhanukar Colony | 0.17 KM |
| Gandhi Bhawan Phata | 0.21 KM |
| Dahanukar Colony | 0.22 KM |
| Karve Road Bank Of Maharashtra Jawala (up) | 0.33 KM |
| Karve Road Bank Of Maharashtra Samor (down) | 0.34 KM |
| Karve Putla | 0.43 KM |
| Karvenagar Junction Down | 0.46 KM |
| Vadacha | 0.48 KM |
| Gosavi Wasti Karvenagar | 0.51 KM |
| Hospitals Near by Deshpande Anjaneya CHS | |
|---|---|
| Deoyani Multi Speciality Hospital | 0.18 KM |
| Shashwat Hospital Kothrud | 0.19 KM |
| Bindu Madhav Thakarey Hospital | 0.59 KM |
| Agrawal Hospital | 0.63 KM |
| Suyash Hospital Kothrud | Dr. Pathak | 0.65 KM |
| Ingale Womens Hospital-karve Nagar | 0.74 KM |
| Swastik Multispeciality Clinic & Hospital | 0.88 KM |
| Sahawas Hospital | 0.95 KM |
| Sushrut Hospital | 0.99 KM |
| Subudh Hospital And Research Center | 1.04 KM |
| Clinics Near by Deshpande Anjaneya CHS | |
|---|---|
| Sunrise Diagnostics | 0.27 KM |
| Unique Childrens Clinic Dental & Implant Centre | Karve Nagar | 0.29 KM |
| Clear Smile Dental Clinic | 0.49 KM |
| Lenskart.com Flagship Store At Kothrud | 0.75 KM |
| Naik Speciality Clinic | 0.79 KM |
| Dr. Parag Nawalkar | 0.92 KM |
| Unique Children's Clinic Dental And Implant Center - Kothrud | 0.97 KM |
| Taj Skin Hair Laser Clinic | 1.03 KM |
| Krsnaa Diagnostics (sutar Hospital) | 1.13 KM |
| Lenskart.com At Karve Nagar | 1.14 KM |
| Restaurants Near by Deshpande Anjaneya CHS | |
|---|---|
| Pruthvi Vegetarianism | 0.17 KM |
| The Tipsy Duckling | 0.21 KM |
| Mirch Masala Resto Bar | 0.24 KM |
| Le Petit Amour Patisserie & Bistro | 0.69 KM |
| Barometer | 0.90 KM |
| Cafe Eastwood | 0.90 KM |
| Maratha Samrat | 0.93 KM |
| Sheetal Restaurant | 0.99 KM |
| Shraddha Restaurant | 0.99 KM |
| Punjab Canteen | 1.05 KM |
| Gym Fitness Near by Deshpande Anjaneya CHS | |
|---|---|
| Trimurti Gym | 0.73 KM |
| Valeosis Fitness Club | 1.00 KM |
| Sweatbox Fitness & Learning Studio | 1.07 KM |
| Corporation Swimming Pool And Gym | 1.08 KM |
| Nitrro Wellness And Fitness Hub Kothrud | 1.19 KM |
| Faith Fitness | 1.30 KM |
| Fitness Saya | 1.34 KM |
| Stealth Performance Training And Transformation Studio | 1.40 KM |
| Fitness Guru Manoj Surve's Personal Training Studio | 1.41 KM |
| Atenx Performance Studio | Best Fitness Gym In Kothrud Pune | 1.45 KM |
| College and Universities Near by Deshpande Anjaneya CHS | |
|---|---|
| Karve Institute Of Social Service | 0.26 KM |
| Marathwada Mitra Mandal's College Of Engineering | 0.43 KM |
| Dr Bhanuben Nanavati College Of Architecture For Women | 0.93 KM |
| Btine | Smt. Bakul Tambat Institute Of Nursing Education | 0.99 KM |
| Cummins College | 0.99 KM |
| Shri Siddhivinayak Mahila Mahavidyalaya | 1.02 KM |
| Smt. Hiraben Nanavati Institute Of Management & Research For Women | 1.02 KM |
| Mksss's Cummins College Of Engineering For Women | 1.02 KM |
| Choice College Of Arts And Commerce | 1.24 KM |
| Mes Senior College | 1.26 KM |
| Temples Near by Deshpande Anjaneya CHS | |
|---|---|
| Mhatoba | 0.77 KM |
| Shree Swami Samarth Maharaj Temple Pune | 0.83 KM |
| Shri Mrutyunjayeshwar Mandir | 1.14 KM |
| Navgraha Hanuman Mandir | 1.72 KM |
| Shri Dashbhuja Ganpati Mandir | 1.95 KM |
| Shree Vitthal Rukmini Temple Vitthalwadi | 1.96 KM |
| Sri Gajanana Maharaj Mandir | 2.09 KM |
| Tiwari Gajanan Maharaj Temple | 2.17 KM |
| Kaleshwari Mandir Annadan Chhatra Warje Malwadi Pune58 | 2.49 KM |
| Shree Navshya Maruti Temple | 2.49 KM |
| Supermarkets Near by Deshpande Anjaneya CHS | |
|---|---|
| Madhur Super Shopee | 0.16 KM |
| Kirti Supermarket | 0.22 KM |
| Bhagwati Mini Market | 1.44 KM |
| Prem Sagar Supermarket | 1.45 KM |
| For M M Mart | 1.49 KM |
| Star Localmart Paud Road | 1.71 KM |
| Gsmarket (geetanjalee Super Market Pvt. Ltd.) | 1.83 KM |
| Whole Mart | 1.84 KM |
| Om Mangal Mart | 1.93 KM |
| Bharati Bazaar | 2.05 KM |
| Clothings Near by Deshpande Anjaneya CHS | |
|---|---|
| Pantaloons (jva Mall | 0.98 KM |
| Firstcry.com Store Pune Kothrud Success Square | 1.03 KM |
| Zudio - Pune | 1.08 KM |
| Go Colors Store - Karve Nagar | 1.14 KM |
| Peter England Factory Outlet Paud Road | 1.70 KM |
| Firstcry.com Store Pune Warje | 1.81 KM |
| Unlimited Fashion Store - Anand Nagar | 2.31 KM |
| Unlimited | 2.31 KM |
| Cottonking Ketaki Enterprises | 2.57 KM |
| My Urja Outlet | 2.62 KM |
Check Travel Time
Connecting Roads - Deshpande Anjaneya CHS
Kothrud area in Pune first gained prominence after its mention as the fastest-growing suburb of Asia in the Guinness Book of World Records. A couple of decades ago, the area was only a barren land. Today, it has had a facelift, and how! The area has swiftly emerged into one of the most developed areas in the city with lavish residential and commercial properties. Major infrastructural developments follow this change
This website is only for the purpose of providing information regarding real estate projects in different geographies. Any information which is being provided on this website is not an advertisement or a solicitation. The company has not verified the information and the compliances of the projects. Further, the company has not checked the RERA* registration status of the real estate projects listed herein. The company does not make any representation in regards to the compliances done against these projects. Please note that you should make yourself aware about the RERA* registration status of the listed real estate projects.
*Real Estate (regulation & development) act 2016.