A total of 75 residential transactions has been registered so far for Godrej Hillside, amounting to ₹ 59 Cr till November 2025.

Godrej Hillside is a premium residential community situated in Mahalunge, Pune, offering a lifestyle where abundant green spaces meet modern urban conveniences. Designed as part of a 42-hectare integrated township along Baner-Mahalunge Road.
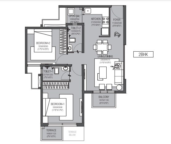
This development spans over 10.5 acres, featuring multiple towers with 1, 2 & 3 BHK homes, ranging from 396 to 878 sq. ft. and is going to offer approximately 1441 units across many clusters.
Godrej Hillside homes are thoughtfully designed with practical layouts, open and private decks, and luxury finishes that intend to maximize space, privacy and cross natural ventilation, ensuring all aspects of function and comfort.
The project features a vibrant community lifestyle with over 8 hectares of accessible greens, 400+ trees, landscaped gardens, a heritage riverside promenade and lifestyle avenues like a retail boulevard and high-street shopping.
Godrej Hillside is designed with a secure and premium experience in mind! It features a 4-tier security scheme, a vehicle-free zone and additional smart features such as video door phone, biometric locks and RFID child-security.
Backed by Godrej Properties, with a 126-year legacy and over 400 accolades, it is well-known for timely delivery, green policies, and customer satisfaction.
Enjoy a World of Amenities at Godrej Hillside, Mahalunge, Pune
It’s not just amenities; it’s a way of life thoughtfully designed around every generation.
Godrej Hillside, Mahalunge, Pune, means a Location That Connects to everything important.
Living at Mahalunge, a place connected to it all, without giving up your peace. The development is surrounded by Baner Hills, Pashan Hills, and Mahalunge Hills for a serene environment.
Key Commute:
Nearby IT Hubs & Business Parks:
Social Infrastructure Highlights:
Upcoming projects near Godrej Hillside, Mahalunge, Pune
Godrej Hillside, Mahalunge, Pune: An Investment That Makes Sense- Now and Later
*This data is derived by the Square Yards data intelligence team. This can change according to the market trends*
Godrej Hillside in Mahalunge, Pune, offers nature, connectivity, and modern living that make it an investment-friendly address promising steady returns, strong appreciation, and a secure lifestyle for the future.
A total of 75 residential transactions has been registered so far for Godrej Hillside, amounting to ₹ 59 Cr till November 2025.
Rent in Godrej Hillside ranges from ₹ 21 K to ₹ 31 K with options available for 1 BHK, 2 BHK, 3 BHK.
A total of 418 out of 493 launched units have been booked as of April 2025, including 96% of 3 BHK(110 out of 114 units), 81% of 2 BHK(308 out of 379 units).
A total of 604 out of 605 launched units have been booked as of January 2025, including 94% of SHOP(16 out of 17 units), 100% of 1 BHK(150 units), 3 BHK(158 units), 2 BHK(280 units).
Structural Works reach 30% completion.
A total of 378 out of 493 launched units have been booked as of January 2025, including 91% of 3 BHK(104 out of 114 units), 72% of 2 BHK(274 out of 379 units).
Internal finishing stands at 100%.
A total of 603 out of 605 launched units have been booked as of October 2024, including 88% of SHOP(15 out of 17 units), 100% of 1 BHK(150 units), 3 BHK(158 units), 2 BHK(280 units).
A total of 548 out of 550 launched units have been booked as of October 2024, including 99% of 3 BHK(145 out of 147 units), 100% of 1 BHK(138 units), 2 BHK(255 units), MLCP(10 units).
Structural Works reach 27% completion.
| Master Bedroom-Walls | Oil Bound Distemper |
| Master Bedroom-Flooring | Vitrified Tiles |
| Other Bedrooms-Flooring | Vitrified Tiles |
| Walls | Oil Bound Distemper |
| Living Area-Flooring | Vitrified Tiles |
| Bathroom | Shower Panel, Premium Bath Fittings, Exhaust Fan |
| Structure | RCC Frame Structure |
| Schools Near by Godrej Hillside | |
|---|---|
| Bharati Vidyapeeths English Medium School | 0.60 KM |
| Dr. Kalmadi Shamarao High-school | 0.86 KM |
| Bharati Vidyapeeth Rabindranath Tagore School Of Excellence | 0.90 KM |
| The Orchid School | 0.92 KM |
| My School Italy | Balewadi | 0.98 KM |
| Daffodil International School | 1.14 KM |
| Aditya English Medium School & Junior School | 1.15 KM |
| Aditya English Medium School | 1.31 KM |
| Laxmibai Nandgude English Medium School | 1.35 KM |
| Pmc School | 1.48 KM |
| Bus Stops Near by Godrej Hillside | |
|---|---|
| Laxmi Mata Mandir | 0.07 KM |
| Era Bakery | 0.21 KM |
| Chakankarmala | 0.62 KM |
| Chaknak Mala | 0.64 KM |
| Bharti Vidyapeeth | 0.65 KM |
| Prabhavee Tech Park | 0.86 KM |
| Jagdhmba Hotel | 0.93 KM |
| Shikshak Society | 0.96 KM |
| Vilas Nandgude Niwas | 0.99 KM |
| Ganraj Mangal Karyalay | 0.99 KM |
| Hospitals Near by Godrej Hillside | |
|---|---|
| Umarji Mother And Child Care Hospital (umrji Mata Ani Lhan Mulamce Rugnaly) | 0.10 KM |
| Dedicate Covid Hospital | 0.87 KM |
| Jupiter Hospital | 0.87 KM |
| Life Line Hospital | 0.91 KM |
| Benecare Mother & Child Superspeciality Hospital | 0.99 KM |
| Madhavbaug Baner-balewadi | 1.15 KM |
| Manipal Hospitals Baner | 1.33 KM |
| Vithai Hospital | 1.33 KM |
| Sharvari Hospital | Pune | Pimpri-chinchwad | Multi-specialty Hospital | 1.44 KM |
| Dhanwantari Hospital | 1.67 KM |
| Clinics Near by Godrej Hillside | |
|---|---|
| Dr. Yash General Physician Clinic - Mbbs Md Medicine | 0.60 KM |
| Health & Smiles Polyclinic/multispecialty Clinic | 0.67 KM |
| Dezy Dental Clinic | 0.82 KM |
| Vitalife Clinic Baner - Multispecialty Clinic | 0.88 KM |
| Dr. Benny Jose - Cardiologist | 0.93 KM |
| Benecare Dental Clinic & Implant Center | 0.97 KM |
| Clear Skin - Hairmd Clinic - Baner - Skin | 0.97 KM |
| Benecare Ivf & Fertility Clinic In Baner | 0.97 KM |
| Neo Plant Advance Hair And Skin Clinic | 1.07 KM |
| Shree Ram Netralaya | 1.07 KM |
| Restaurants Near by Godrej Hillside | |
|---|---|
| Fatcook | 0.18 KM |
| Mekong Folks | 0.59 KM |
| Eskobar | 0.60 KM |
| Butter - Bar & Kitchen | 0.61 KM |
| 24k Kraft Brewzz | 0.63 KM |
| Jalebi Junction | 0.69 KM |
| Bharat Bhavan | 0.69 KM |
| The Urban Foundry | 0.69 KM |
| Mr. Vandal | 0.70 KM |
| Mainland China | 0.70 KM |
| Gym Fitness Near by Godrej Hillside | |
|---|---|
| Primalbase Gyms | 0.51 KM |
| Core Fitness Club-balewadi | 0.52 KM |
| The Yogi Mind | 0.85 KM |
| Dotfit Fitness | 0.88 KM |
| Hatha Yoga Institute | 1.23 KM |
| Clan Fitness Club- (premium Gym) On Cult | 1.26 KM |
| Ultimate Fitness Club (p-town West Mma) | 1.45 KM |
| Six Pax Fitness Centre | 1.51 KM |
| Sudarshan Fitness Club | 1.57 KM |
| Sky Fitness & Wellness | 1.61 KM |
| College and Universities Near by Godrej Hillside | |
|---|---|
| Dnyansagar Institute Of Management And Research | 0.79 KM |
| Dnyansagar Arts & Commerce College | 0.80 KM |
| Nicmar University | 1.32 KM |
| Genba Sopanrao Moze College Of Engineering | 1.40 KM |
| Mima Institute Of Management | 1.63 KM |
| Floret College Of Interior & Fashion Designing | 2.01 KM |
| Sanjay Ghodawat Institutes Global School Of Management | 2.69 KM |
| Baburaoji Gholap College | 3.05 KM |
| Dr. Babasaheb Ambedkar College | 3.22 KM |
| Industrial Training Institute | 3.37 KM |
| Temples Near by Godrej Hillside | |
|---|---|
| Viththl Rukmini Mmdir | 0.55 KM |
| Shri Gurudev Datta Temple | 1.36 KM |
| Navagraha Temple Baner Gaon | 1.54 KM |
| Iskcon Bcec (bhakti Center For Education & Culture) | 1.54 KM |
| Baneshwar Mandir | 1.59 KM |
| Tukai Devi Mandir | 1.67 KM |
| Suvarn Ganesh Mandir | 2.37 KM |
| Shree Suryamukhi Ganesh Mandir | 2.54 KM |
| Shiva Temple Mahalunge Gaon | 2.85 KM |
| Shree Mhatoba Mandir Wakad | 2.88 KM |
| Supermarkets Near by Godrej Hillside | |
|---|---|
| Poonam Super Shopee | Qualitail | 0.07 KM |
| New R Mart | 0.52 KM |
| K K Bazaar | 0.66 KM |
| Bombay Gourmet Market Store Baner | 2.05 KM |
| Platinum Super Store | 2.32 KM |
| Star Bazaar Baner | 2.69 KM |
| Uttam Super Store | 2.80 KM |
| Reliance Fresh | 2.97 KM |
| Nature's Basket | 2.97 KM |
| Surabhi Super Market | 3.08 KM |
| Clothings Near by Godrej Hillside | |
|---|---|
| Zudio - Pune | 1.00 KM |
| Zudio Pimple Nilakh | 1.00 KM |
| Pantaloons (amar Business Zone | 1.02 KM |
| Fabindia Experience Center | 1.14 KM |
| Westside - Baner | 1.42 KM |
| Zudio - Pune | 2.85 KM |
| Me N Moms Baby Care & Kids Store In Aundh Pune | 2.86 KM |
| Firstcry.com Store Pune Aundh | 2.87 KM |
| Me N Moms Baby Care & Kids Store In Wakad | 2.96 KM |
| Max | 3.00 KM |
Check Travel Time
Connecting Roads - Godrej Hillside
Mahalunge is in an ancient city named Pune. In ancient times, this locality had the privilege of witnessing the power of Chatrapati Shivaji Maharaj. Mahalunge is one of the prime localities in the northwestern part of Pune. All sides of Mahalunge are well-connected with the prominent areas. On the north of Mahalunge, we have Pune express highway; on the west, we have a ring road; on the east, we have Baner,
Top Experts in Pune
Real estate firm Godrej Properties Limited is headquartered in Mumbai, India. The company was established in 1990 by Adi Godrej and is a division of Godrej Industries Limited. Currently, the company is working on projects expected to total more than 89.7 million square feet. The Godrej Group has many businesses, including construction, fast-moving consumer products, high-tech engineering, furnishings, safety, and agro-based. Although most of the businesses are privately owned, the
The development provides 1, 2, and 3 BHK apartments ranging in carpet area from 396 to 878 sq. ft.
The residents will be able to indulge in more than 400 amenities, such as an art gallery entrance lobby, vehicle-free zones, and 4-tier security.
The project is situated on NH-48, providing direct access to areas such as Hinjewadi, Baner, and Wakad. It is 20 km from the Pune International Airport and 14 km from the Pune Railway Station.
Yes, the project is RERA registered with IDs P52100022099 for Godrej Hillside 1 and P52100022153 for Godrej Hillside 2, ensuring compliance with regulatory standards.
This website is only for the purpose of providing information regarding real estate projects in different geographies. Any information which is being provided on this website is not an advertisement or a solicitation. The company has not verified the information and the compliances of the projects. Further, the company has not checked the RERA* registration status of the real estate projects listed herein. The company does not make any representation in regards to the compliances done against these projects. Please note that you should make yourself aware about the RERA* registration status of the listed real estate projects.
*Real Estate (regulation & development) act 2016.