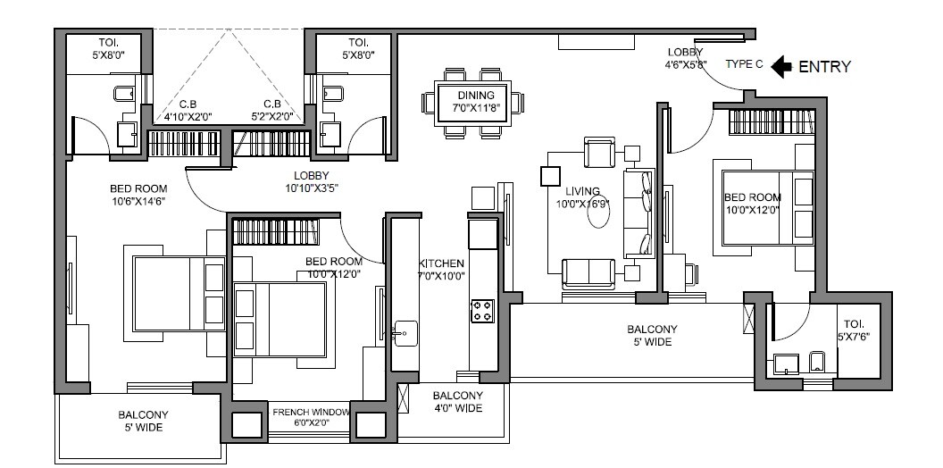
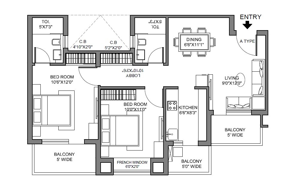
Asking Price
in Radhey Krishna Casa Green I
Radhey Krishna Casa Green I has 9 Listings on Marketplaces with Median Price of ₹ 8.9 k/Sq.Ft.
| Transaction Value | Sale Count |
|---|---|
| 8.5K - 9K | 2 |
| 9K - 9.5K | 7 |






















