A total of 1 residential transactions has been registered so far for Nidhaan Corporate Park, amounting to ₹ 1 Cr till October 2025.

100% Service, 0% Brokerage
Highly unlikely, but if you find a lower price anywhere, tell us and we will match it.
Our sales personnel are accountable for every step
Own this home with EMIs starting at ₹ 93.72 K/month - Check Cibil Linked Loan Estimate
A total of 1 residential transactions has been registered so far for Nidhaan Corporate Park, amounting to ₹ 1 Cr till October 2025.
Structural Works reach 65% completion.
Structural Works reach 48% completion.
Structural Works reach 35% completion.
NIDHAAN CORPORATE PARK, developed by NIDHAAN PROPERTIES LLP, officially launched on 04-Dec-2024 and expected to complete by 30-Dec-2027. Registered under RERA No. P51800078312. with total area of 0.37 Acre.
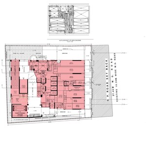
This plan details the ground floor layout of Nidhaan Corporate Park, located in Ghatkopar East, with direct connectivity to Eastern Express Highway (1.0 km) and LBS Marg (1.0 km). This particular drawing focuses on the ground level's integration of commercial and residential functions.
The ground floor layout shows a clear division into commercial and residential zones. We have designated commercial spaces with shops numbered 01 through 08, ranging in size (e.g., Shop 01 is 10.55 x 2.70 units). There's a dedicated residential entrance hall and lifts for residents, and a significant paved recreational ground (R.G.) of 92 square meters on mother earth, serving as an open space.
| Master Bedroom-Walls | Oil Bound Distemper |
| Master Bedroom-Flooring | Vitrified Tiles |
| Walls | Oil Bound Distemper |
| Living Area-Flooring | Vitrified Tiles |
| Structure | RCC Frame Structure |
| Schools Near by Nidhaan Corporate Park | |
|---|---|
| Ramji Assar Vidyalaya | 0.33 KM |
| D. J. Doshi Gurukul English High School | 0.44 KM |
| L.d. Doshi Gurukul Primary School | 0.44 KM |
| D J Doshi Gurukul English Medium High School And Junior College Of Commerce | 0.44 KM |
| Rushikul Gurukul English Medium School | 0.44 KM |
| Shree V.s Gurukul Technical High School | 0.45 KM |
| Mumbai Public School Cbse Rajawadi | 0.46 KM |
| Mumbai Pradesh Arya Vidya Sabha | 0.47 KM |
| R N Gandhi High School | 0.50 KM |
| Garodia International Centre For Learning Mumbai | 0.52 KM |
| Bus Stops Near by Nidhaan Corporate Park | |
|---|---|
| Rajawadi Hospital | 0.04 KM |
| Sindhuwadi | 0.14 KM |
| Gandhi Market (ghatkopar-e) | 0.23 KM |
| Somaiya Mahavidyalaya | 0.44 KM |
| Sommaiya College (vidyavihar-e) | 0.48 KM |
| Odeon Cinema | 0.51 KM |
| Derasar Lane | 0.52 KM |
| Jain Mandir (ghatkopar-e) | 0.57 KM |
| S.l.d.t College | 0.57 KM |
| Gorodiya Nagar | 0.58 KM |
| Hospitals Near by Nidhaan Corporate Park | |
|---|---|
| Bakul Parekh Children's Hospital | 0.03 KM |
| Ashirwad Heart Hospital | 0.37 KM |
| Mumbai Eye Care | 0.50 KM |
| Pancholi Hospital | 0.58 KM |
| Vatsal Nicu And Children's Hospital | 0.69 KM |
| Excel Ent Hospital | 0.71 KM |
| Parakh Hospital | 0.74 KM |
| Lotus Ent Hospital - Best Ent Specialist Dr. Navelkar | 0.74 KM |
| H. J. Doshi Ghatkopar Hindu Sabha Hospital | 0.76 KM |
| Jeevan Jyot Hospital | 0.79 KM |
| Restaurants Near by Nidhaan Corporate Park | |
|---|---|
| The Chocolate Room | 0.06 KM |
| Guru Krupa | 0.27 KM |
| New York Burrito Company | 0.33 KM |
| Pure Milk And Snack Centre | 0.42 KM |
| Blossom- The Fusion Spot | 0.45 KM |
| Mi Favorito | 0.48 KM |
| Hotel Popular | 0.73 KM |
| Bharat Cafe | 0.82 KM |
| Shuruwat- Veg Food Journey | 0.83 KM |
| Bouganvilla | 0.91 KM |
| Clinics Near by Nidhaan Corporate Park | |
|---|---|
| Dr Jay Mehta's - Shree Ivf & Endometriosis Clinic | Gynaecologist | Laparoscopic Surgeon (obs & Gyn) | 0.03 KM |
| Neptune Diagnostics And Fetal Medicine Center | 0.09 KM |
| Aanvii Hearing Care Clinic - Ghatkopar East | 0.21 KM |
| Maxis Diagnostic Centre Or Krsnaa Diagnostic Centre | 0.35 KM |
| Hiren Pasad's Career & Study Counseiing Centre I Best Career Counselor In Mumbai Maharashtra India | 0.45 KM |
| Aspira Pathlab - Pathology Lab Near Me | Sonography Near Me | Pathology Lab Ghatkopar | 0.87 KM |
| Dr. Pooja Yadav Physiotherapy & Fitness Clinic | 0.92 KM |
| Titan Eye+ At Ghatkopar East | 0.93 KM |
| Aesthetic Art- Dr. Gaurav Shalya | 0.99 KM |
| Nidan Hi-tech Imaging Centre | 1.00 KM |
| College and Universities Near by Nidhaan Corporate Park | |
|---|---|
| Universal Msg-sgkm College Of Arts | 0.31 KM |
| H.v.k Tanna College | 0.32 KM |
| Ramji Vidyalaya Group Of Schools & Laxmichand Golwala College Of Commerce & Economics | 0.32 KM |
| Gurukul College Of Commerce | 0.44 KM |
| Grahin Art Institute Ghatkopar Center | 0.45 KM |
| Shri V S Gurukul Technical School And College | 0.49 KM |
| Garodia International College | 0.52 KM |
| Smt. P.n. Doshi Women's College | 0.56 KM |
| S K Somaiya College | 0.59 KM |
| S K Somaiya Degree College Of Arts | 0.60 KM |
| Gym Fitness Near by Nidhaan Corporate Park | |
|---|---|
| Reshape Fitness | 0.55 KM |
| Ghatkopar Jolly Gymkhana Ground | 0.55 KM |
| Ren Kick Boxing Mma & Self-defence Academy | 0.57 KM |
| Global Gym Ghatkopar | 0.65 KM |
| Sayujya Yoga | 0.83 KM |
| Ifsa - Intellectual Fitness And Sports Academy | 0.86 KM |
| Shri Thorat Yoga | 0.87 KM |
| Squat Up Fitness Center | 0.88 KM |
| Saturn Fitness | 1.02 KM |
| Gym Mantra Fitness Studio | 1.03 KM |
| Temples Near by Nidhaan Corporate Park | |
|---|---|
| Shri Tirupati Balaji Temple | 0.19 KM |
| Shree Swaminarayan Mandir Ghatkopar (vadtal Sansthan) | 0.47 KM |
| Ghatkopar Bhajan Samaj Temple | 0.58 KM |
| Thiruchembur Murugan Temple | 1.22 KM |
| Shri Siddhiganesh Mandir | 1.90 KM |
| Sri Jangleshwar Mahadev Mandir | 2.53 KM |
| Jari Mari Mandir | 2.67 KM |
| Someshwar Khandoba Temple | 2.92 KM |
| Shanni Mandir | 3.86 KM |
| Shani Mandir | 3.88 KM |
| Clothings Near by Nidhaan Corporate Park | |
|---|---|
| Westside - Amar Mahal | 1.11 KM |
| Babyhug Store Mumbai Vidyavihar | 1.21 KM |
| Pantaloons (phoenix Market City | 1.66 KM |
| Zudio - Phoenix Market City Mall | 1.75 KM |
| Decathlon Sports Kurla | 1.94 KM |
| Cotton Cottage - Chembur | 2.03 KM |
| Dressline - Chembur | 2.12 KM |
| Decathlon Kurla Turf | 2.14 KM |
| Decathlon Sports R City Mall | 2.63 KM |
| Zudio-mumbai | 2.77 KM |
| Home Decors Near by Nidhaan Corporate Park | |
|---|---|
| Royale Touche Laminates | 1.12 KM |
| Wakefit - Furniture Store In Phoenix Marketcity Kurla | 1.74 KM |
| The Sleep Company Experience Store - Phoenix Market City-kurla | 1.81 KM |
| Home Centre - Furniture Store | 1.88 KM |
| Mahavir Home Store | 2.13 KM |
| The Sleep Company Experience Store - R City | 2.68 KM |
| Godrej Interio Healthcare Experience Center Near Me | 2.86 KM |
| Godrej Interio Modular Kitchen Gallery Near Me | 3.05 KM |
| Livspace - Interior Design Studio | 3.06 KM |
| Oliver Metal Furniture Works | 3.19 KM |
Check Travel Time
Connecting Roads - Nidhaan Corporate Park
Mumbai's Ghatkopar East is a posh neighbourhood. This community's pin code is 400086. This area is close to Chirag Nagar, Bhatwadi, and Vidyavihar West. There are many properties available for purchase and rental in this area. This is a significant residential area in eastern Mumbai. What's Great about Ghatkopar East, Mumbai The Ghatkopar Metro Station on the Blue Line I serves the area (Versova-Andheri-Ghatkopar). Within nine km are Andheri (East) employment centres
This website is only for the purpose of providing information regarding real estate projects in different geographies. Any information which is being provided on this website is not an advertisement or a solicitation. The company has not verified the information and the compliances of the projects. Further, the company has not checked the RERA* registration status of the real estate projects listed herein. The company does not make any representation in regards to the compliances done against these projects. Please note that you should make yourself aware about the RERA* registration status of the listed real estate projects.
*Real Estate (regulation & development) act 2016.