A total of 9 residential transactions has been registered so far for 2KV The Heritage Heights, amounting to ₹ 6 Cr till October 2025.

100% Service, 0% Brokerage
Highly unlikely, but if you find a lower price anywhere, tell us and we will match it.
Our sales personnel are accountable for every step
Own this home with EMIs starting at ₹ 46.23 K/month - Check Cibil Linked Loan Estimate
A total of 9 residential transactions has been registered so far for 2KV The Heritage Heights, amounting to ₹ 6 Cr till October 2025.
A total of 11 out of 35 launched units have been booked as of April 2025, including 43% of 3 BHK(3 out of 7 units), 29% of 2 BHK(8 out of 28 units).
External Works has reached 100%, Internal finishing stands at 90%, MEP Services including lift and staircases, are now 90% done.
A total of 8 out of 35 launched units have been booked as of February 2025, including 43% of 3 BHK(3 out of 7 units), 18% of 2 BHK(5 out of 28 units).
External Works has reached 95%, Internal finishing stands at 88%, MEP Services including lift and staircases, are now 88% done.
A total of 2 out of 35 launched units have been booked as of October 2024, including 14% of 3 BHK(1 out of 7 units), 4% of 2 BHK(1 out of 28 units).
Internal finishing stands at 83%, MEP Services including lift and staircases, are now 75% done.
External Works has reached 85%, Internal finishing stands at 65%, MEP Services including lift and staircases, are now 70% done.
Structural Works reach 60% completion, External Works has reached 80%, Internal finishing stands at 43%, MEP Services including lift and staircases, are now 40% done.
A total of 2 out of 35 launched units have been booked as of June 2023, including 14% of 3 BHK(1 out of 7 units), 4% of 2 BHK(1 out of 28 units).
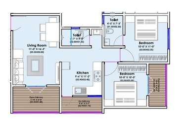
| Master Bedroom-Walls | Oil Bound Distemper |
| Master Bedroom-Flooring | Vitrified Tiles |
| Other Bedrooms-Flooring | Vitrified Tiles |
| Walls | Oil Bound Distemper |
| Living Area-Flooring | Vitrified Tiles |
| Kitchen-Equipments | Chimney |
| Structure | RCC Frame Structure |
| Schools Near by 2KV The Heritage Heights | |
|---|---|
| Juniors Orchid School | 0.03 KM |
| Pune International Public School | 0.17 KM |
| Divine English Medium School | 0.29 KM |
| Ganesh English Medium School & Junior College | 0.70 KM |
| Saraswati Bhuvan English School | 0.79 KM |
| Kashi Vishweshwar English Medium School | 0.83 KM |
| Mount Carmel Public School | 0.85 KM |
| Mar Ivanios Convent School - Pimpri-chinchwad | 1.03 KM |
| Kilbil School | 1.07 KM |
| Kendriya Vidyalaya Cme | 1.15 KM |
| Bus Stops Near by 2KV The Heritage Heights | |
|---|---|
| Ramkrushna Mangal Karyalay | 0.45 KM |
| Suvarna Park - Pimple Gurav | 0.56 KM |
| Suvarna Park | 0.57 KM |
| Ravi Raj Hotel | 0.63 KM |
| Pimple Gurav | 0.69 KM |
| Phugewadi Jakat Naka | 0.76 KM |
| Pimple Gurav Bus Station | 0.77 KM |
| Navin Manapa Shala | 0.77 KM |
| Kashi Vishweshwar School | 0.80 KM |
| Gangarde Nagar | 0.82 KM |
| Hospitals Near by 2KV The Heritage Heights | |
|---|---|
| Vishwamauli Hospital & Maternity Home & Ayuryog Garbhsanskar Center | 0.03 KM |
| Shraddha Hospital | 0.46 KM |
| Vidhata Hospital | 0.53 KM |
| Pooja Hospital | 0.56 KM |
| Vedant Eye Hospital And Laser Centre | 0.61 KM |
| Sudarshan Hospital | 0.74 KM |
| Siddhi Hospital | 0.75 KM |
| Krishna Hospital | Gynaecologist In Sangvi | 0.81 KM |
| Pagare Hospital | 0.83 KM |
| Kathole Hospital Multispeciality & Trauma Centre | 0.83 KM |
| Clinics Near by 2KV The Heritage Heights | |
|---|---|
| Aaptashri Ayurved & Panchkarma Clinic | 0.59 KM |
| Divya Women's Clinic | Dr. Divya Pawar - Gynaecologist & Obstetrician | 0.81 KM |
| Expert's Dental Clinic - Best Dentist Pcmc | 0.91 KM |
| Vintage Diagnostic Centre- Best Sonography | 0.96 KM |
| Hairfree & Hairgrow | Best Hair Transplant Clinic In Pune | 0.98 KM |
| Dr.patil's Heart & Skin Clinic | 1.00 KM |
| Urban Skin & Hair Clinic | 1.00 KM |
| Matrix Imaging Center | 1.06 KM |
| Dr.sachin's Dental Clinic | 1.12 KM |
| Dr. Babasaheb Ambedkar Statue | 1.26 KM |
| Restaurants Near by 2KV The Heritage Heights | |
|---|---|
| 3 Idiots - The Friendly Bar | 1.76 KM |
| Anaya Family Resto | 2.23 KM |
| Golden Chopsticx | 2.41 KM |
| Shaolin | 2.44 KM |
| Kimling Rush | 2.45 KM |
| Govind Garden | 2.46 KM |
| Aaoji Khhaoji | 2.96 KM |
| Pasco - An Epitome Of Wine & Dine | 3.00 KM |
| Rahul Restaurant & Bar | 3.20 KM |
| Rosso Bianco | 3.25 KM |
| Gym Fitness Near by 2KV The Heritage Heights | |
|---|---|
| Powerline Gym | 0.83 KM |
| Fitbox Fitness | 0.91 KM |
| Fit Studio Unisex Gym | 0.95 KM |
| Infinity Fitness | 0.99 KM |
| 2n Sports And Fitness | 1.00 KM |
| New Image Fitness Gym | 1.17 KM |
| Antrang Yoga Class | 1.36 KM |
| The Gym | 1.63 KM |
| Transformers Fitness Club | 1.75 KM |
| Getfit Fitness And Health Solutions | 1.77 KM |
| College and Universities Near by 2KV The Heritage Heights | |
|---|---|
| Smt. C. K. Goyal Arts And Commerce College | 1.35 KM |
| College Of Military Engineering | 1.47 KM |
| Parmanand College Of Fire Engineering And Safety Management | 1.90 KM |
| Baburaoji Gholap College | 2.07 KM |
| Spicer Adventist University | 2.79 KM |
| Dr. Babasaheb Ambedkar College | 2.92 KM |
| Tikaram Jagannath College | 3.17 KM |
| Rayat Shikshan Sanstha's Mahatma Phule Mahavidyalaya | 3.29 KM |
| Government Iti | 3.52 KM |
| Dr. D. Y. Patil College Of Education | 3.56 KM |
| Temples Near by 2KV The Heritage Heights | |
|---|---|
| Shiva Mandir Shree Mahakaleshwar Mandir | 0.53 KM |
| Shri Aai Mataji Mandir | 0.81 KM |
| Shree Krishna Temple Jawalkar Nagar | 1.38 KM |
| Mahadev Mandir | 1.54 KM |
| Shree Sant Gajanan Maharaj Mandir | 1.62 KM |
| Hanuman And Shani Mandir | 1.80 KM |
| Shree Atmalingeshwar Mahadev Mandir | 3.21 KM |
| Ayyappa Temple Range Hills | 3.48 KM |
| Agarwal Samaj Mandir | 3.56 KM |
| Shri Munisuvratswami Jain Temple Trust | 3.64 KM |
| Supermarkets Near by 2KV The Heritage Heights | |
|---|---|
| V-mart | 0.75 KM |
| Star Market | 1.03 KM |
| K.mart | 1.57 KM |
| Jmart India | 1.86 KM |
| Gokul Food Bazaar | Qualitail | 2.05 KM |
| Chandradeep Super Market | 2.68 KM |
| Nature's Basket | 3.56 KM |
| Stop & Shop | 3.72 KM |
| Shyam Sunder Mart | 3.74 KM |
| Tirathdas Grocery Shop | 3.99 KM |
| Clothings Near by 2KV The Heritage Heights | |
|---|---|
| Unlimited Fashion Store - Dapodi | 0.96 KM |
| Sanskruti Lawns (sanskriti Mangal Karyalay) | 1.56 KM |
| Pantaloons (gk Mall | 3.13 KM |
| Firstcry.com Store Pune Aundh | 3.15 KM |
| Westside - Gk Mall | 3.15 KM |
| Me N Moms Baby Care & Kids Store In Aundh Pune | 3.16 KM |
| Tasva | 3.18 KM |
| Raj Woollens | 3.48 KM |
| Max | 3.61 KM |
| Fabindia Experience Center | 3.85 KM |
Check Travel Time
Connecting Roads - 2KV The Heritage Heights
Chinchwad, the township history of which can be traced several hundred years back. The legendary Hindu King Bhoj ruled this township nearly two thousand years ago, and the present 'Bhosari' was the capital of his erstwhile Empire. It was then known as Bhojapuri. The Maharashtra Industrial Development Corporation (MIDC) is based in Bhojapuri. Chinchwad is said to have derived its name from the trees – tamarind (called Chinch in Marathi) and
This website is only for the purpose of providing information regarding real estate projects in different geographies. Any information which is being provided on this website is not an advertisement or a solicitation. The company has not verified the information and the compliances of the projects. Further, the company has not checked the RERA* registration status of the real estate projects listed herein. The company does not make any representation in regards to the compliances done against these projects. Please note that you should make yourself aware about the RERA* registration status of the listed real estate projects.
*Real Estate (regulation & development) act 2016.