A total of 37 residential transactions has been registered so far for Croissance Ra Urbania, amounting to ₹ 25 Cr till October 2025.

 
            100% Service, 0% Brokerage
Highly unlikely, but if you find a lower price anywhere, tell us and we will match it.
Our sales personnel are accountable for every step
Own this home with EMIs starting at ₹ 52.02 K/month - Check Cibil Linked Loan Estimate
A total of 37 residential transactions has been registered so far for Croissance Ra Urbania, amounting to ₹ 25 Cr till October 2025.
During Q1'2025, average property prices for Croissance Ra Urbania moved from ₹ 7,800/sqft to ₹ 9,300/sqft, reflecting a 19.23% rise.
Structural Works reach 60% completion, External Works has reached 30%, Internal finishing stands at 50%, MEP Services including lift and staircases, are now 30% done.
A total of 82 out of 123 launched units have been booked as of February 2025, including 64% of 3 BHK(36 out of 56 units), 73% of 2 BHK(46 out of 63 units).
Structural Works reach 28% completion.
A total of 12 out of 92 launched units have been booked as of November 2023, including 16% of 3 BHK(7 out of 43 units), 11% of 2 BHK(5 out of 45 units).
RA URBANIA, developed by Ms Croissance Buildcon, officially launched on 12-Apr-2023 and expected to complete by 30-Jun-2025. Registered under RERA No. P52100050429. The project comprises 1 towers and offers 123 residential units, including SHOP, 2 BHK, 3 BHK, with unit sizes ranging from 291 to 990 Square feet across a total area of 0.74 Acre.
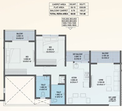
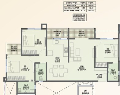
| Master Bedroom-Walls | Oil Bound Distemper | 
| Master Bedroom-Flooring | Vitrified Tiles | 
| Other Bedrooms-Flooring | Vitrified Tiles | 
| Walls | Oil Bound Distemper | 
| Living Area-Flooring | Vitrified Tiles | 
| Structure | RCC Frame Structure | 
| Schools Near by Croissance Ra Urbania | |
|---|---|
| Sb Patil Public School | 0.73 KM | 
| S.b. Patil Public School- Sbpps Ravet | 0.76 KM | 
| Planet Wisdom School | 0.93 KM | 
| S. B. Patil College Of Science And Commerce | 0.93 KM | 
| Arise International School | 1.12 KM | 
| City Pride School- Ravet | 1.23 KM | 
| D. Y. Patil Dnyanshanti School | 1.29 KM | 
| Jnana Prabodhini Navanagar Vidyalaya (jpnv) | 1.50 KM | 
| Orchids The International School | 1.94 KM | 
| Christeria High School | 1.94 KM | 
| Bus Stops Near by Croissance Ra Urbania | |
|---|---|
| Mauli Park | 0.25 KM | 
| Ravet Shinde Wasti | 0.36 KM | 
| Sonigara Apartments Shinde Wasti Ravet | 0.43 KM | 
| Iskcon Mandir Shinde Wasti Ravet | 0.46 KM | 
| Ravet Sector 29 | 0.97 KM | 
| Durgesh Mandir | 0.98 KM | 
| Ganesh Talav | 1.11 KM | 
| Patidar Bhawan | 1.23 KM | 
| Dharam Raj Chowk | 1.27 KM | 
| Dharmaraj Chowk | 1.29 KM | 
| Hospitals Near by Croissance Ra Urbania | |
|---|---|
| Aditi Multispeciality Hospital | 0.90 KM | 
| Yashashree Hospital | 0.93 KM | 
| Global Hospital & Research Centre | 1.24 KM | 
| Lifeline Multispeciality Hospital | 1.35 KM | 
| Kolte Hospital | 1.48 KM | 
| Ojass Multispeciality Hospital | 1.50 KM | 
| Ratnaroop Ayurved Hospital And Panchakarma Centre.& Centre For Spine & Joint Disorders | 1.58 KM | 
| Lokmanya Hospital Nigdi | 1.63 KM | 
| Dhanwantari Hospital Nigdi | 1.69 KM | 
| Sai Vardan Hospital | 1.76 KM | 
| Clinics Near by Croissance Ra Urbania | |
|---|---|
| Dr Jadhav's Skin Clinic | 0.89 KM | 
| Dr Lal Pathlabs - Patient Service Centre | 0.96 KM | 
| Atharv Homoeocare Clinic | 1.01 KM | 
| Dr. Prerna Raina | 1.25 KM | 
| Muppra Kerala Ayurvedic | 1.36 KM | 
| Lenskart.com At Ravet | 1.42 KM | 
| Sai Prabha Eye Clinic | 1.44 KM | 
| Dr Chaitali Adkar | 1.45 KM | 
| Shree Health & Dental Studio | 1.65 KM | 
| Orthosquare Dental Clinic In Akurdi-nigdi | 1.65 KM | 
| Gym Fitness Near by Croissance Ra Urbania | |
|---|---|
| Planet Fitness | 0.81 KM | 
| Ekveera Fitness Hub (ravet) | 0.87 KM | 
| Angel's Fitness Club Only For Ladies | 0.90 KM | 
| Anu's Fitness House | 0.94 KM | 
| R P Fitness Ravet | 1.33 KM | 
| Intra Fitness Club | 1.34 KM | 
| B Fit Step In Fitness Era | 1.44 KM | 
| Md Fitness | 1.49 KM | 
| Golds Gym Ravet | 1.54 KM | 
| Sanatoriym Gym Pradhikarn 411044 | 1.58 KM | 
| Temples Near by Croissance Ra Urbania | |
|---|---|
| Iskcon (shree Govinda Dhama) Ravet | 0.35 KM | 
| Mahsoba Mandir | 0.71 KM | 
| Shiv Temple | 0.84 KM | 
| Jankiban Siddhi Vinayak Mandir | 1.38 KM | 
| Vaishno Devi Mandir | 1.47 KM | 
| Shree Gajanan Maharaj Mandir | 1.54 KM | 
| Shree 1008 Bhagwan Mahavir Digambar Jain Temple Nigdi | 1.69 KM | 
| Shri Siddhivinayak Mandir Ravetgaon | 1.69 KM | 
| Shree Mahadev Mandir | 1.92 KM | 
| Shree Ganesh Mandir | 1.94 KM | 
| Restaurants Near by Croissance Ra Urbania | |
|---|---|
| Dakkhan Spice | 1.38 KM | 
| Christy Restaurant | 1.42 KM | 
| Twelve 21 | 1.50 KM | 
| G S Biryani | 1.60 KM | 
| Shawarma King | 1.63 KM | 
| Top 87 - The Other Place | 1.65 KM | 
| Punjabi Treat | 1.69 KM | 
| Le Stone | 1.70 KM | 
| Sangrilla Restaurant | 1.76 KM | 
| Baba Ramdev Dhaba | 1.83 KM | 
| College and Universities Near by Croissance Ra Urbania | |
|---|---|
| Pcacs Ravet - Pimpri Chinchwad College Of Arts | 0.78 KM | 
| Pccoe-ravet | 1.02 KM | 
| Pcet Campus - Akurdi | 1.11 KM | 
| S. B. Patil Institute Of Management | 1.13 KM | 
| Pccoe - Pimpri Chinchwad College Of Engineering | 1.13 KM | 
| S. B. Patil College Of Architecture & Design | Best Architecture College | College Of Architecture | 1.14 KM | 
| Pune Business School | 1.14 KM | 
| Pcp - Pimpri Chinchwad Polytechnic College | 1.15 KM | 
| Dr. D. Y. Patil College Of Architecture | 1.32 KM | 
| Dr. D. Y. Patil Institute Of Management Studies (dypims) | 1.32 KM | 
| Supermarkets Near by Croissance Ra Urbania | |
|---|---|
| Akash Mart Online | Qualitail | 0.72 KM | 
| Om Super Market | 0.90 KM | 
| Dmart | 1.19 KM | 
| Gokul Super Market | 1.34 KM | 
| Anand Super Market | 1.59 KM | 
| Grahak Bazar | 1.99 KM | 
| Vastimal Sisodia And Sons | 2.85 KM | 
| Green Fresh Mart | 3.10 KM | 
| D Mart Warehouse | 3.18 KM | 
| Geeta Supermarket | 3.41 KM | 
| Clothings Near by Croissance Ra Urbania | |
|---|---|
| Life Styles | 1.38 KM | 
| U.s. Polo Assn. | 1.67 KM | 
| Louis Philippe Factory Outlet Akurdi | 1.97 KM | 
| Body Basics | 1.98 KM | 
| Just Casuals | 1.99 KM | 
| Peter England Showroom | 2.03 KM | 
| Firstcry.com Store Pune Nigdi | 2.41 KM | 
| Me N Moms | 2.45 KM | 
| Zudio | 2.95 KM | 
| Kumar Fashions | 3.37 KM | 
Check Travel Time
Connecting Roads - Croissance Ra Urbania
The peaceful town of Ravet is located on the outskirts of Pune and is a part of the affluent Pimpri-Chinchwad Municipal Corporation. The stunning Tilak Bridge over the Pawana River connects the Ravet to Pune City. The region is situated on the Katraj-Dehu Bypass route, which connects to the Mumbai highway along the Pawana river on the northwest side of Pimpri-Chinchwad. The Pavana River partially forms the neighborhood's southern boundary. What's
This website is only for the purpose of providing information regarding real estate projects in different geographies. Any information which is being provided on this website is not an advertisement or a solicitation. The company has not verified the information and the compliances of the projects. Further, the company has not checked the RERA* registration status of the real estate projects listed herein. The company does not make any representation in regards to the compliances done against these projects. Please note that you should make yourself aware about the RERA* registration status of the listed real estate projects.
*Real Estate (regulation & development) act 2016. 
  
             
            
             
             
          
         
           
 
    