A total of 17 residential transactions has been registered so far for VTP Urban Life, amounting to ₹ 4 Cr till March 2026.

VTP Urban Life, located in the heart of Talegaon Dabhade, offers a unique blend of comfort and convenience to its residents. This stunning project is just a short distance away from the Old Pune Mumbai Highway, making it a prime location for those who commute frequently. Moreover, the proximity to Talegaon Chakan Road ensures seamless connectivity to major hubs and attractions.
This project offers a range of amenities and specifications that cater to the modern lifestyle of its residents. The residents can enjoy the convenience of power back up, ensuring that their daily needs are met with ease. In addition, the modern sports amenities, including a well-equipped gymnasium, provide a perfect setting for a healthy and active lifestyle. The master bedroom comes with oil-bound distemper walls, adding to the overall elegance and sophistication of the apartment.
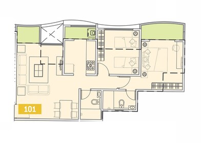
At VTP Urban Life, you can choose from a variety of unit options to suit your needs and budget. From spacious 1 BHK apartments to 2 BHK apartments with ample space, there s something for everyone. To name a few options, the 1 BHK apartments come with an area of 372 Sq. Ft. and a price of 31.60 lac, while the 2 BHK apartments start from 348 Sq. Ft. at a price of 29.56 lac.
Available Unit OptionsThe following table outlines the available unit options at VTP Urban Life:
| Unit Type | Area (Sq. Ft.) | Price (Rs.) |
| 1 BHK Apartment | 372 | 31.60 Lac |
| 2 BHK Apartment | 348 | 29.56 Lac |
| 2 BHK Apartment | 428 | 42.98 Lac |
| 2 BHK Apartment | 741 | 74.41 Lac |
The residential property is strategically located near several noteworthy landmarks, providing residents with easy access to essential amenities and services. These landmarks not only enhance the quality of life for residents but also offer a unique blend of convenience and comfort.
The real estate market has witnessed significant activity in the recent past, with a total of 22 government-registered sales transactions recorded over the past year, reflecting a gross sales value of 8 Cr. This is a marked increase from the previous 6-month period, which saw 15 transactions with a combined value of 4 Cr. Furthermore, a closer examination of the 3-month aggregate reveals 5 transactions worth 1 Cr, with a notable price movement of + 50. The current rate of 6,074 remains steady across all aggregation periods, suggesting a stable market trend. Despite minor fluctuations, the overall trend suggests a thriving market with consistent sales activity.
A total of 17 residential transactions has been registered so far for VTP Urban Life, amounting to ₹ 4 Cr till March 2026.
During Q4'2025, average property prices for VTP Urban Life moved from ₹ 5,550/sqft to ₹ 6,100/sqft, reflecting a 9.91% rise.
During Q2'2025, average property prices for VTP Urban Life moved from ₹ 5,550/sqft to ₹ 6,100/sqft, reflecting a 9.91% rise.
A total of 179 out of 343 launched units have been booked as of March 2025, including 43% of 1 BHK(46 out of 108 units), 57% of 2 BHK(132 out of 233 units), 50% of STUDIO(1 out of 2 units).
A total of 176 out of 343 launched units have been booked as of February 2025, including 44% of 1 BHK(48 out of 108 units), 55% of 2 BHK(127 out of 233 units), 50% of STUDIO(1 out of 2 units).
A total of 170 out of 343 launched units have been booked as of January 2025, including 44% of 1 BHK(47 out of 108 units), 52% of 2 BHK(122 out of 233 units), 50% of STUDIO(1 out of 2 units).
Structural Works reach 72% completion, External Works has reached 95%, Internal finishing stands at 63%, MEP Services including lift and staircases, are now 63% done.
A total of 159 out of 333 launched units have been booked as of December 2024, including 44% of 1 BHK(47 out of 108 units), 50% of 2 BHK(111 out of 223 units), 50% of STUDIO(1 out of 2 units).
Structural Works reach 64% completion, External Works has reached 59%, Internal finishing stands at 55%, MEP Services including lift and staircases, are now 54% done.
Internal finishing stands at 54%, MEP Services including lift and staircases, are now 54% done.
| Master Bedroom-Walls | Oil Bound Distemper |
| Master Bedroom-Flooring | Vitrified Tiles |
| Other Bedrooms-Flooring | Vitrified Tiles |
| Walls | Oil Bound Distemper |
| Living Area-Flooring | Vitrified Tiles |
| Fittings & Fixtures | Air Conditioner Fittings |
| Kitchen-Equipments | Modular Kitchen |
| Bathroom | Jacuzzi, Shower Panel, Geyser, Premium Bath Fittings |
| Structure | RCC Frame Structure |
| Schools Near by VTP Urban Life | |
|---|---|
| Podar International School | 0.88 KM |
| Mount St Ann High School | 1.13 KM |
| Mamasaheb Khandge English School | 1.56 KM |
| Jain English School | 3.96 KM |
| Venkateshwar World School | 10.01 KM |
| Yoga And Aerobic Classes | 10.83 KM |
| Bethany Convent School | 10.85 KM |
| Symbiosis Skills And Professional University | 11.08 KM |
| Pandit Neharu Vidyalaya | 11.70 KM |
| St Joseph Nirmal Bethany School Dehuroad | 11.70 KM |
| Hospitals Near by VTP Urban Life | |
|---|---|
| Attharva Multispeciality Hospital | 1.37 KM |
| Sevadham Hospital | 1.64 KM |
| Mimer Medical College And Talegaon General Hospital | 1.86 KM |
| Pratab Memorial Hospital | 2.30 KM |
| Morya Speciality Hospital | 3.51 KM |
| Shaishav Mulanche Hospital | 3.52 KM |
| Sparsh Multispeciality Hospital | 5.06 KM |
| Pawana Hospital | 5.21 KM |
| Bade Accident And Multispecialty Hospital | 5.34 KM |
| Dr Bansal Hospital | 10.48 KM |
| Hotels Near by VTP Urban Life | |
|---|---|
| Hotel Paradise Inn | 1.56 KM |
| Maval Grrand Hotel | 3.38 KM |
| Eastin Easy Aishwarya | 3.63 KM |
| Ratnaa Resort | 11.77 KM |
| Hotel Vrindavan | 14.64 KM |
| ATMs Near by VTP Urban Life | |
|---|---|
| Dcb Bank | 10.02 KM |
| City Union Bank | 10.13 KM |
| Axis Bank | 10.39 KM |
| Icici Bank | 10.51 KM |
| Canara Bank | 10.63 KM |
| Axis Bank | 10.83 KM |
| Hdfc Bank | 10.91 KM |
| Icici Bank | 11.57 KM |
| Indusind Bank | 11.72 KM |
| Hdfc Bank | 11.92 KM |
| Banks Near by VTP Urban Life | |
|---|---|
| Punjab National Bank | 1.74 KM |
| Icici Bank Ltd | 3.50 KM |
| Rural Cooperative Bank | 10.63 KM |
| Bandhan Bank | 10.89 KM |
| Bandhan Bank | 11.54 KM |
| Rural Cooperative Bank | 11.77 KM |
| Axis Bank | 13.28 KM |
| Dsu Bank | 13.96 KM |
| Bank Of India | 14.41 KM |
| Icici Bank | 14.62 KM |
| Post Offices Near by VTP Urban Life | |
|---|---|
| Talegaon Post Office | 1.61 KM |
| Poonam Petroleum Company | 7.06 KM |
| Dehu Sub Post Office | 11.42 KM |
| Post Office Kamshet | 11.47 KM |
| Yamunanagar Sub Post Office | 11.62 KM |
| Ravet Branch Office | 14.29 KM |
| Punawale Branch Office | 14.64 KM |
| Talawade Branch Office | 14.79 KM |
| Parks Near by VTP Urban Life | |
|---|---|
| Green Park | 11.72 KM |
| The Enchanted Gardens | 14.00 KM |
| Maharana Pratap Udyan | 14.48 KM |
| Amusement Park | 14.53 KM |
| Veer Savarkar Udyan | 14.57 KM |
| Globe Green Touch | 14.83 KM |
| Tukai Exotics | 14.91 KM |
| Shopping Malls Near by VTP Urban Life | |
|---|---|
| Pl Khandge Plaza | 2.09 KM |
| Aansh Plaza | 2.92 KM |
| Maval Mart | 3.54 KM |
| Shrimant Abhay Singh Raje Bhegade Shopping Complex | 3.54 KM |
| One Mall | 13.15 KM |
| Office Parks Near by VTP Urban Life | |
|---|---|
| Aayush Business Square | 3.00 KM |
| Center One | 3.24 KM |
| Nv Business Center | 5.23 KM |
| Talwade It Park | 14.49 KM |
| Basant Plaza | 14.78 KM |
| Railway Stations Near by VTP Urban Life | |
|---|---|
| Talegaon Dabhade Railway Station | 1.54 KM |
| Kanhe Railway Station | 7.30 KM |
| Dehu Road Railway Station | 10.48 KM |
| Kamshet Railway Station | 11.71 KM |
Check Travel Time
Connecting Roads - VTP Urban Life
Properties in VTP Urban Life & Top Sellers
VTP Realty is a leading real estate brand in Pune. This accomplishment was made possible by years of enduring goodwill and a well-deserved reputation as a trustworthy turnaround expert who has seized over big, unviable enterprises and turned them around. Codename Township Pegasus and Codename Township Blue Waters in East and West Pune, respectively, serve as examples. VTP Realty also gains from the group's 37-year history in the building sector.
The price range for units in VTP Urban Life starts from 29.56 Lac for a 2 BHK Apartment and goes up to 74.41 Lac for a 2 BHK Apartment.
VTP Urban Life offers a range of configurations, including 1 BHK and 2 BHK apartments, with options available in different sizes and price ranges.
Yes, VTP Urban Life is a gated community that features 24 x 7 security, providing a safe and secure living environment for its residents.
The developer of VTP Urban Life is VTP Realty, a well-established builder with a reputation for delivering quality projects.
VTP Urban Life is located near Old Pune Mumbai Highway and Talegaon Chakan Road, with nearby infrastructure developments that include schools, hospitals, and malls.
The homes in VTP Urban Life feature flooring options such as Vitrified Tiles in the living area, master bedroom, and other bedrooms, along with premium bath fittings and air conditioner fittings.
This website is only for the purpose of providing information regarding real estate projects in different geographies. Any information which is being provided on this website is not an advertisement or a solicitation. The company has not verified the information and the compliances of the projects. Further, the company has not checked the RERA* registration status of the real estate projects listed herein. The company does not make any representation in regards to the compliances done against these projects. Please note that you should make yourself aware about the RERA* registration status of the listed real estate projects.
*Real Estate (regulation & development) act 2016.