During Q2'2025, average property prices for VVIP Addresses Greater Noida West moved from ₹ 6,850/sqft to ₹ 11,700/sqft, reflecting a 70.80% rise.

100% Service, 0% Brokerage
Highly unlikely, but if you find a lower price anywhere, tell us and we will match it.
Our sales personnel are accountable for every step
Own this home with EMIs starting at ₹ 2.46 L/month - Check Cibil Linked Loan Estimate
During Q2'2025, average property prices for VVIP Addresses Greater Noida West moved from ₹ 6,850/sqft to ₹ 11,700/sqft, reflecting a 70.80% rise.
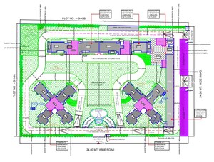
The master plan for VVIP Addresses Greater Noida West, located in Sector 12, Greater Noida, outlines a development featuring six primary structures: four distinct residential towers, one dedicated community building, and a commercial block.
The plan delineates specific zones for residential towers, a commercial facility, a community building, and substantial open green spaces, including a designated area labeled 'LANDASCREE-21'. The layout incorporates dedicated fire tender paths, internal driveways, and integrates essential utilities like underground tanks and a sewage treatment plant below ground level.
VVIP Addresses Greater Noida West, situated in Sector 12 Greater Noida, encompasses four distinct residential blocks designated as Unit-01, Unit-02, Unit-03, and Unit-04. The development includes Tower-43 and Tower-04. The master plan does not specify the total land area, exact number of units, or project launch and completion dates.
This master plan allocates distinct zones for residential living, commercial activities, and extensive open spaces for recreation and nature. Residential areas are organized into four unit blocks. Commercial facilities are supported by a dedicated commercial area, a restaurant, and a combined club/commercial drop-off zone. A significant portion of the site is dedicated to diverse green spaces, including various themed gardens, lawns, and a nature trail, complemented by a central waterbody system.
| Master Bedroom-Walls | Oil Bound Distemper |
| Master Bedroom-Flooring | Vitrified Tiles |
| Other Bedrooms-Flooring | Vitrified Tiles |
| Walls | Oil Bound Distemper |
| Living Area-Flooring | Vitrified Tiles |
| Structure | RCC Frame Structure |
| Schools Near by VVIP Addresses Greater Noida West | |
|---|---|
| N.m.public School | 1.02 KM |
| Seth Anandram Jaipuria School Greater Noida West | 1.06 KM |
| Bbs Inter College | 1.08 KM |
| Gd Goenka International School | 1.35 KM |
| Aster Public School | 1.58 KM |
| St. Mary's School | 1.77 KM |
| Sahil Public School | 1.96 KM |
| Radcliffe Group Of Schools - Greater Noida West | Best Cbse School In Greater Noida | 1.97 KM |
| Rainbow Public School | 1.97 KM |
| St. Francis School | 2.07 KM |
| Bus Stops Near by VVIP Addresses Greater Noida West | |
|---|---|
| Surajpur Gol Chakkar | 5.35 KM |
| Noida Phase-2 | 7.60 KM |
| C-block Hosiery Complex | 7.75 KM |
| B-block Hosiery Complex | 8.17 KM |
| Nsez Metro Station | 8.98 KM |
| Sector 106 | 9.59 KM |
| Knowledge Park (beta 1) | 9.75 KM |
| Sharda University | 9.84 KM |
| Tigri Gol Chakar | 10.22 KM |
| Delta 1 Metro Station | 10.24 KM |
| Hospitals Near by VVIP Addresses Greater Noida West | |
|---|---|
| Shiv Medicity - Best Hospital In Greater Noida | 2.96 KM |
| Numed Super Speciality Hospital | Greater Noida West | 2.97 KM |
| Arogaya Hospital | 3.27 KM |
| Tekram Hospital Multi Speciality Hospital Noida Sector-1 | 3.51 KM |
| Unity Health Care Hospital | 3.92 KM |
| Yatharth Super Speciality Hospital Noida Extension | 4.06 KM |
| Saini Hospital | 4.65 KM |
| Primary Health Center [phc] Govt Hospital | 4.68 KM |
| Utkarsh Hospital Greater Noida | 4.72 KM |
| Rudra Fracture Hospital And Diagnostics - Best Hospital In Greater Noida | Best Orthopedic Hospital | 4.75 KM |
| Clinics Near by VVIP Addresses Greater Noida West | |
|---|---|
| Max Lab By Max Hospital | 0.49 KM |
| Sangal's Dental & Implant Centre | 0.92 KM |
| Sneh Dental Care | 0.93 KM |
| Dr Mandakini - Expert Gynecologist | 0.97 KM |
| The Learning Tree Early Intervention Centre | 1.40 KM |
| Ayurvedic Prakartik Chikitsa Kendra | 1.81 KM |
| Dr Sanjay Singh Negi Mch (gi Surgeon | 2.57 KM |
| Swastik Physiotherapy And Wellness Centre | 2.72 KM |
| 4u Physio Clinic | 2.73 KM |
| Truecare Clinic | Dr Rajat Bajaj | Best Oncologist In Greater Noida | Best Cancer Doctor In Greater | 2.73 KM |
| Gym Fitness Near by VVIP Addresses Greater Noida West | |
|---|---|
| Spirit Fitness Club | 0.66 KM |
| Lifetime Fitness Gym | 1.48 KM |
| The Wellness Club Gym Xpress Greater Noida Sec-10 | 2.23 KM |
| Go Strong Gym & Nutrition | 2.33 KM |
| Neo Fitness Club | 2.42 KM |
| Way 2 Fitness | 3.01 KM |
| Fitt Lounge Greater Noida West | 3.37 KM |
| Mukhiya Gym | 3.47 KM |
| Yogiflex | 3.49 KM |
| Fitness First Gym | 3.54 KM |
| College and Universities Near by VVIP Addresses Greater Noida West | |
|---|---|
| Iti Habibpur | 3.31 KM |
| Km. Mayawati Government Girls P.g. College Badalpur | 4.62 KM |
| Keshav Madhav College Campus | 5.53 KM |
| Jims Noida Extension College | 5.87 KM |
| Iti College | 7.96 KM |
| Shri Aditya Sangeet Mahavidyalaya | 8.38 KM |
| Shri Aditya Sangeet Mahavidyalaya | 8.61 KM |
| Abesit Group Of Institutions | 8.68 KM |
| Aster College Of Education | 8.74 KM |
| Ims Ghaziabad | 8.74 KM |
| Restaurants Near by VVIP Addresses Greater Noida West | |
|---|---|
| Maati | 4.12 KM |
| Rolls Mania | 5.25 KM |
| Namaste Punjab | 6.89 KM |
| Pind Balluchi | 7.21 KM |
| Black Cafe | 7.23 KM |
| The Smoke Factory | 7.24 KM |
| The Yellow Chilli | 7.25 KM |
| Punjab Grill | 7.28 KM |
| The Food Stories | 8.03 KM |
| Momo Hut | 8.05 KM |
| Supermarkets Near by VVIP Addresses Greater Noida West | |
|---|---|
| Nsg Mart | 3.16 KM |
| G One Fresh Shopping Mart | 3.39 KM |
| 7 Days Mart | 3.59 KM |
| All In Store Legarden Gen-x | 3.59 KM |
| Citi Super Mart | 3.70 KM |
| Peppertop Supermart | 4.04 KM |
| Abhishek Departmental Store | 4.33 KM |
| Deepak Grocery Mart | 4.38 KM |
| Maheshwari Mart | 4.46 KM |
| Sai Mart Grocery | 4.58 KM |
| Home Decors Near by VVIP Addresses Greater Noida West | |
|---|---|
| Rubio Monocoat India | 3.42 KM |
| Refresh Mattress - Greater Noida | 3.47 KM |
| Office Chair | 3.79 KM |
| Frequip - Rent Furniture & Appliances Online In Noida And Greater Noida | 3.81 KM |
| Sleepwell World (d.s Traders) At Bisrakh Jalalpur | 3.89 KM |
| Sleepwell World (two Pillars Living) At Sector-116 | 4.55 KM |
| Orientbell Tiles Dealer - Om Sai Tiles | 4.91 KM |
| Ideas Wall Decor | 5.60 KM |
| Sleepwell World Haute Living | 5.73 KM |
| Dmk | 6.12 KM |
| Clothings Near by VVIP Addresses Greater Noida West | |
|---|---|
| Firstcry.com Store Greater Noida West | 3.94 KM |
| Life Style | 3.95 KM |
| United Colors Of Benetton | 4.40 KM |
| Spykar Store Gaur City Mall | 4.87 KM |
| Jockey Store | 5.69 KM |
| Gaur World Smartstreet | 6.50 KM |
| Paramount Golfmart | 6.82 KM |
| Westside - Sapphire Mall | 6.92 KM |
| Firstcry.com Store Noida Gaur City Mall | 7.26 KM |
| Jockey Exclusive Store | 7.26 KM |
Check Travel Time
Connecting Roads - VVIP Addresses Greater Noida West
Properties in VVIP Addresses Greater Noida West & Top Sellers
VVIP Builders or Vibhor Vaibhav Infrahome Private Limited is one of the leading real estate companies in the country with experience of more than a decade in the industry. The company counts experience, dedication and expertise as its biggest strengths and key differentiators. The company is spearheaded by its CMD Praveen Tyagi and aims at offering world class and luxury homes to buyers that are equipped with all necessary amenities
This website is only for the purpose of providing information regarding real estate projects in different geographies. Any information which is being provided on this website is not an advertisement or a solicitation. The company has not verified the information and the compliances of the projects. Further, the company has not checked the RERA* registration status of the real estate projects listed herein. The company does not make any representation in regards to the compliances done against these projects. Please note that you should make yourself aware about the RERA* registration status of the listed real estate projects.
*Real Estate (regulation & development) act 2016.