A total of 2 residential transactions has been registered so far for Shraddha Paramount, amounting to ₹ 1 Cr till November 2025.

Own this home with EMIs starting at ₹ 39.57 K/month - Check Cibil Linked Loan Estimate
A total of 2 residential transactions has been registered so far for Shraddha Paramount, amounting to ₹ 1 Cr till November 2025.
Rent in Shraddha Paramount ranges from ₹ 27 K to ₹ 33 K with options available for 1 BHK.
During Q3'2025, average property prices for Shraddha Paramount moved from ₹ 28,450/sqft to ₹ 32,050/sqft, reflecting a 12.65% rise.
During Q2'2025, average property prices for Shraddha Paramount moved from ₹ 24,200/sqft to ₹ 28,450/sqft, reflecting a 17.56% rise.
During Q1'2025, average property prices for Shraddha Paramount moved from ₹ 22,750/sqft to ₹ 24,200/sqft, reflecting a 6.37% rise.
Structural Works reach 100% completion, External Works has reached 100%, Internal finishing stands at 100%, MEP Services including lift and staircases, are now 100% done.
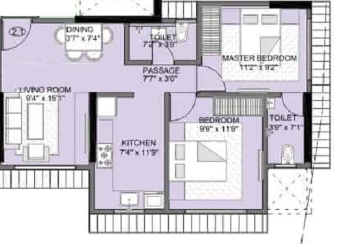
A total of 116 out of 117 launched units have been booked as of August 2023, including 98% of 1 BHK(65 out of 66 units), 100% of 2 BHK(10 units), 1 RK(41 units).
Structural Works reach 20% completion.
SHRADDHA PARAMOUNT, developed by SHRADDHA LANDMARK PRIVATE LIMITED, officially launched on 12-Mar-2020 and expected to complete by 30-Dec-2024. Registered under RERA No. P51800024933. with total area of 0.20 Acre.
| Master Bedroom-Walls | Acrylic Emulsion |
| Master Bedroom-Flooring | Vitrified Tiles |
| Other Bedrooms-Flooring | Vitrified Tiles |
| Walls | Acrylic Emulsion |
| Living Area-Flooring | Vitrified Tiles |
| Kitchen-Equipments | Modular Kitchen |
| Bathroom | Premium Bath Fittings |
| Structure | RCC Frame Structure |
| Schools Near by Shraddha Paramount | |
|---|---|
| Veekays English High School | 0.18 KM |
| National High School | 0.19 KM |
| Municipal School Tagore Nagar Vikhroli East Mumbai | 0.29 KM |
| Adhyayan Plus | 0.38 KM |
| Vikas High School & Jr. College | 0.41 KM |
| Shree Siddhi Vinayagar English High School | 0.45 KM |
| Abhay International School | 0.49 KM |
| Al-rehman English School | 0.52 KM |
| Dr. Babasaheb Ambedkar Vidyalaya | 0.59 KM |
| St Josephs High School | 0.71 KM |
| Bus Stops Near by Shraddha Paramount | |
|---|---|
| Tagore Nagar Udyan | 0.04 KM |
| Rabindra Nath Tagore Udyan | 0.05 KM |
| Tagore Nagar Post Office | 0.19 KM |
| Kannamwar Nagar No.1 | 0.26 KM |
| Kinnari Hall (kannamwar Nagar) | 0.28 KM |
| Kannamwar Nagar | 0.39 KM |
| Vikhroli Court | 0.42 KM |
| Vikroli Station Road | 0.43 KM |
| Kannamwar Nagar | 0.43 KM |
| Kannamwar Nagar Hospital | 0.43 KM |
| Hospitals Near by Shraddha Paramount | |
|---|---|
| Siddhivinayak Hospital | 0.14 KM |
| Yashwant Hospital | 0.19 KM |
| Romeen Medico Surgical Hospital | 0.32 KM |
| Modi General Hospital & Iccu | 0.40 KM |
| Vin-r Eye Care Centre | Dr Agarwals Eye Hospital | 0.47 KM |
| Atul Lok Hospital | 0.63 KM |
| Krantiveer Mahatma Jyotiba Phule Hospital | 0.82 KM |
| Samarth Hospital | 0.83 KM |
| Godrej Memorial Hospital | 1.24 KM |
| Dr L H Hiranandani Hospital | 1.86 KM |
| Restaurants Near by Shraddha Paramount | |
|---|---|
| Amar Fast Food & Restaurant | 0.14 KM |
| Malvan Samudra | 0.65 KM |
| Backyard 79 | 0.91 KM |
| Mitran Da Dhaba | 0.97 KM |
| Shanghai Xpress | 1.16 KM |
| Sandoitchi | 1.58 KM |
| The Butter Kitchen | 1.59 KM |
| Bombay Martini | 1.61 KM |
| Sadak Chaap - Tandoori Chaaps & Snackss | 1.61 KM |
| Kofuku | 1.68 KM |
| Clinics Near by Shraddha Paramount | |
|---|---|
| Agilus Diagnostics Dr. Phadke Labs - Tagore Nagar Vikhroli West | 0.16 KM |
| Implant & Aligners Happy Dental Clinic | 0.16 KM |
| Dr. Manisha Kshirsagar Cosmo Derma Clinic | 0.17 KM |
| Dr Bharati Agrawal's Clinic | 0.17 KM |
| Healing Hands Physiotherapy Clinic - Dr Kruti Mehta | 0.20 KM |
| Dr.pravin's Advanced Physiotherapy Clinic & Home Physiotherapy | 0.29 KM |
| Balaji Diagnostic Center | 0.48 KM |
| Kopikar Dermatology - Dr. Radhika Kopikar | 0.54 KM |
| Manipal Trutest - Mumbai (vikhroli) | 0.61 KM |
| Dr Neha Rajput Jadhav Dental Clinic | 0.76 KM |
| College and Universities Near by Shraddha Paramount | |
|---|---|
| Agrawal Institute Of Management & Technology | 0.29 KM |
| Sandesh College Of Law | 0.29 KM |
| Sandesh College Of Arts Commerce & Science | 0.30 KM |
| Krantijyoti Savitribai Phule College Of Education (d.t.ed. | 0.49 KM |
| Rajarshi Shahu College Of Law | 0.49 KM |
| Vikas College Of Arts Science And Commerce | 0.83 KM |
| Asmita Law College | 0.95 KM |
| Khan Fruit Carving | 1.23 KM |
| Devi Mahalaxmi College | 1.83 KM |
| Icfai Business School (ibs) - Mumbai | 1.93 KM |
| Gym Fitness Near by Shraddha Paramount | |
|---|---|
| Tagore Nagar Gym | 0.11 KM |
| A Fitness House Gym | 0.29 KM |
| Ultimate Studio ( Dance | 0.29 KM |
| Adiyash Gym | 0.52 KM |
| Muscle Studio Gym | 0.64 KM |
| Art Of Living Yoga And Meditation Centre | 0.72 KM |
| Hardcore Fitness Gym | 0.72 KM |
| Bombay Fitness | 0.73 KM |
| We_gofit Wellness & Fitness Coach Supriya | 0.83 KM |
| Fitness Thirst | 0.83 KM |
| Temples Near by Shraddha Paramount | |
|---|---|
| Shree Ayyappa Vishnu Temple | 1.69 KM |
| Ganesh Temple | 2.43 KM |
| Shree Suvarna Temple | 2.65 KM |
| Shree Ganesh Mandir | 2.73 KM |
| Bhandupeshwar Mahadev Temple | 3.39 KM |
| Durga Mata Vidya Mandir | 3.69 KM |
| Shri Siddhiganesh Mandir | 3.90 KM |
| Sri Jangleshwar Mahadev Mandir | 3.91 KM |
| Swami Chinmayananda (shiva Temple) | 4.24 KM |
| Jagadeeshwara Mandir | 4.25 KM |
| Clothings Near by Shraddha Paramount | |
|---|---|
| Van Heusen - Mumbai - Kurla Phoenix Market City | 1.86 KM |
| Louis Philippe - Phoenix Market City | 1.87 KM |
| Westside - Haiko Mall | 2.37 KM |
| Decathlon Sports R City Mall | 2.40 KM |
| Firstcry.com Store Bhandhup West | 3.20 KM |
| Zudio-mumbai | 3.70 KM |
| Tasva | 3.75 KM |
| New Look Men's Wear | 4.38 KM |
| Cotton Cottage India Pvt. Ltd. | 4.55 KM |
| Voi Jeans | 5.19 KM |
| Home Decors Near by Shraddha Paramount | |
|---|---|
| Pepperfry House | 0.79 KM |
| Godrej Interio - Modular Kitchen Near Me | 1.35 KM |
| Godrej Interio - Furniture Store In Vikhroli West | 1.51 KM |
| Nitco - Marble Showroom | 1.70 KM |
| Nitco Tiles - Le Studio | 1.72 KM |
| Godrej Interio Healthcare Experience Center Near Me | 2.13 KM |
| The Sleep Company Experience Store - R City | 2.31 KM |
| Duroflex - Mattress | 2.38 KM |
| Pepperfry Furniture Shop-store In Bhandup | 3.15 KM |
| A1 Furnitures | 3.57 KM |
Check Travel Time
Connecting Roads - Shraddha Paramount
Tagore Nagar is a suburban locality situated in the eastern part of Mumbai. The locality is well-connected to other parts of Mumbai, with excellent road and rail connectivity. It is surrounded by areas such as Vikhroli, Kanjurmarg, and Ghatkopar, making it a popular residential area for people working in nearby commercial hubs. The locality has a mix of residential and commercial establishments, providing its residents with easy access to daily
This website is only for the purpose of providing information regarding real estate projects in different geographies. Any information which is being provided on this website is not an advertisement or a solicitation. The company has not verified the information and the compliances of the projects. Further, the company has not checked the RERA* registration status of the real estate projects listed herein. The company does not make any representation in regards to the compliances done against these projects. Please note that you should make yourself aware about the RERA* registration status of the listed real estate projects.
*Real Estate (regulation & development) act 2016.