A total of 6 residential transactions has been registered so far for Capricorn One Green Park, amounting to ₹ 11 Cr till December 2025.

A total of 6 residential transactions has been registered so far for Capricorn One Green Park, amounting to ₹ 11 Cr till December 2025.
Rent in Capricorn One Green Park ranges from ₹ 38 K to ₹ 46 K with options available for 4 BHK.
During Q3'2025, average property prices for Capricorn One Green Park moved from ₹ 10,700/sqft to ₹ 12,800/sqft, reflecting a 19.63% rise.
During Q2'2025, average property prices for Capricorn One Green Park moved from ₹ 10,400/sqft to ₹ 10,700/sqft, reflecting a 2.88% rise.
| Master Bedroom-Walls | Acrylic Emulsion |
| Master Bedroom-Flooring | Vitrified Tiles |
| Other Bedrooms-Flooring | Vitrified Tiles |
| Walls | Acrylic Emulsion |
| Living Area-Flooring | Vitrified Tiles |
| Fittings & Fixtures | Air Conditioner Fittings |
| Kitchen-Equipments | Modular Kitchen |
| Bathroom | Shower Panel, Premium Bath Fittings, Exhaust Fan |
| Structure | RCC Frame Structure |
| Schools Near by Capricorn One Green Park | |
|---|---|
| Mansukhbhai Kothari National School | 0.38 KM |
| Iqra English School | 0.55 KM |
| Leads High School - Best School In Kondhwa | 0.57 KM |
| Pratibhatai Pawar High School | 0.62 KM |
| Blue Bells High School | 0.91 KM |
| Olive National School | 1.07 KM |
| New Grace English School | 1.17 KM |
| Diamond International School Kondhwa Pune | 1.20 KM |
| Attaqwa International School | 1.33 KM |
| Rasiklal M. Dhariwal English Medium School And Junior College | 1.37 KM |
| Bus Stops Near by Capricorn One Green Park | |
|---|---|
| Ramdas Maral | 0.26 KM |
| Talav Kondhwa Road | 0.29 KM |
| Kondhwa Budruk | 0.60 KM |
| Kondhwa Police Station / Sai Service | 0.71 KM |
| Thosar Nagar / Godown | 0.76 KM |
| Khadi Machine Chowk | 0.78 KM |
| Khadi Machine Katraj Kondhwa Road | 0.79 KM |
| Balaji Hotel | 0.85 KM |
| Shamshan Bhoomi (growyard Bjp Office) | 0.86 KM |
| Khadi Machine (kondawa Road) | 0.90 KM |
| Hospitals Near by Capricorn One Green Park | |
|---|---|
| Bliss Multispeciality Hospital | 0.37 KM |
| Aaryaa Multispeciality Hospital | 0.42 KM |
| Care Hospital Multispeciality | 0.59 KM |
| Adarsh Hospital. Khondwa Bk | 0.68 KM |
| Mirza Hospital | 0.97 KM |
| Satyanand Hospital | 1.29 KM |
| New Pune Hospital | 1.31 KM |
| National Hospital | 1.36 KM |
| Global Health Care Hospital | 1.38 KM |
| Namo Multispeciality Hospital | Orthopedic Care | General Surgery | Diabetes | Kondhwa | 1.42 KM |
| Clinics Near by Capricorn One Green Park | |
|---|---|
| Clinic -shri Sadguru Krupa Holistic Centre | 1.13 KM |
| Diagnopein Diagnostic | 1.28 KM |
| Dr.face Skin Clinic | 1.43 KM |
| Lenskart.com At Kondhwa Budruk | 1.43 KM |
| Qtest Lab Dental Diagnostics | 1.44 KM |
| Prakruti Ayurveda | 1.44 KM |
| Mr.dentist Family Dental Care And Implant Center | 1.44 KM |
| The Spine Clinic | 1.48 KM |
| Refilling Hair Transplant Center | 1.50 KM |
| Lotus Multispeciality Clinic | 1.86 KM |
| Restaurants Near by Capricorn One Green Park | |
|---|---|
| Srinidhi Veg | 0.24 KM |
| Beer & Beans | 1.36 KM |
| Beto's | 1.42 KM |
| Gokul Pure Veg | 1.46 KM |
| Cafe Zam Zam | 1.56 KM |
| Kanha Veg | 1.56 KM |
| Upper Deck | 1.95 KM |
| Village Roof Top Lounge And Dining | 2.00 KM |
| Jyoti | 2.10 KM |
| Spice Culture Bar & Kitchen | 2.38 KM |
| Gym Fitness Near by Capricorn One Green Park | |
|---|---|
| Dynamo Fitness Club ( Haji Anisbhai Kazi Group) | 0.75 KM |
| Trypod Fitness | 1.12 KM |
| Musclebar Nibm | 1.26 KM |
| Divine Gym | 1.33 KM |
| Fit-holiq Gym | 1.38 KM |
| Gold's Gym | 1.39 KM |
| Muscle Max Fitness | 1.50 KM |
| Nature Sports And Fitness Centre (nsfc) | 1.72 KM |
| Warrior Fitness Nibm | 1.75 KM |
| Taurus Fitness | 1.76 KM |
| College and Universities Near by Capricorn One Green Park | |
|---|---|
| Viit College | 0.85 KM |
| Vishwakarma University | 0.86 KM |
| Vishwakarma College Of Arts Commerce And Science | 0.90 KM |
| Shrimati Kalawati Badhe Arts & Commerce Mahila Mahavidyalaya | 0.99 KM |
| Hillgreen High School & Junior College | 1.59 KM |
| Paschim Maharashtra Education Trust College Of Education | 1.82 KM |
| Sinhgad Institute Of Business Administration And Research | 1.84 KM |
| Guardian College Of Education (b.ed) | 1.95 KM |
| Sinhgad College Of Commerce | 2.05 KM |
| Smt. Kashibai Navale College Of Pharmacy | 2.07 KM |
| Temples Near by Capricorn One Green Park | |
|---|---|
| Service Gate | 1.65 KM |
| Shree Shatrunjay Bhaktamar Jain Temple | 1.69 KM |
| Iskcon Nvcc Pune | 1.73 KM |
| Kheteshwar (mandir) Ashram Pune (rajpurohit) | 1.77 KM |
| Shree Balaji Temple | 1.81 KM |
| Sankatharan Temple | 1.88 KM |
| Shri Kedareshwar Mandir | 2.06 KM |
| Aashapura Mata Mandir | 2.22 KM |
| Sant Sadguru Balumama Temple | 2.26 KM |
| Magnum Shri Ganesha Mandir | 2.27 KM |
| Supermarkets Near by Capricorn One Green Park | |
|---|---|
| S S Enterprises Kakade Nagar Lane No 3 Katraj Kondwa Road Pune | 1.30 KM |
| Dhan Moti Super Market | 1.33 KM |
| Star Bazaar | 1.59 KM |
| Dorabjee's Nibm | 1.69 KM |
| Tawakkal Super Market | 1.70 KM |
| Shree Mart | 2.08 KM |
| D Mart Undri | 2.21 KM |
| Bhosale Super Market | 3.22 KM |
| Crown Mart | 3.23 KM |
| Royal Fresh Mart | 3.56 KM |
| Clothings Near by Capricorn One Green Park | |
|---|---|
| Bearberry Iskcon Kbk | 1.51 KM |
| Zudio | 1.65 KM |
| Firstcry.com Store Pune Nibm | 1.65 KM |
| Louis Philippe(factory Outlet) | 1.77 KM |
| Pantaloons (royale Heritage Mall | 1.77 KM |
| Jockey Store Undri Pune | 2.20 KM |
| Westside - Nibm | 2.60 KM |
| Firstcry.com Store Pune Bibwewadi | 2.94 KM |
| Go Colors Store - Bibewadi | 3.02 KM |
| Zivame (wanawadi | 3.29 KM |
Check Travel Time
Connecting Roads - Capricorn One Green Park
Kondhwa is an urban district that is a part of Pune. It is located in the Southeastern part of the city. The area is quite popular for several residential developments. Several companies have also set up their offices and factories in the area. The place is also known as the IT hub, as several IT companies are in the locality. Some of the communities around Kondhwa include Bibwewadi, Mohammed Wadi,
Properties in Capricorn One Green Park & Top Sellers
Capricorn One Green Park features amenities such as Gymnasium, Swimming Pool, Power Backup, Treated Water Supply, 24 x 7 Security, CCTV / Video Surveillance, Reading Room/Library, Sauna, Rain Water Harvesting, Sewage Treatment Plant.
Unlike other projects in Kondhwa, Capricorn One Green Park stands out for its Gymnasium, Swimming Pool, Power Backup, Treated Water Supply, 24 x 7 Security, CCTV / Video Surveillance, Reading Room/Library, Sauna, Rain Water Harvesting, Sewage Treatment Plant.
Additional charges include PLC/parking/floor rise/maintenance/security deposit, depending on the unit selected. The detailed cost sheet is available on request.
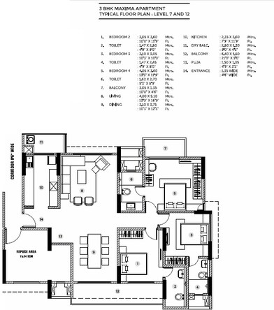
Yes, Capricorn One Green Park features well-planned layouts with optimal space utilization, good ventilation, and natural light across all unit types.
The project is located in Kondhwa, Pune, positioned close to Ramdas Maral, Talav Kondhwa Road, Kondhwa Budruk, Kondhwa Police Station / Sai Service, Thosar Nagar / Godown, ensuring convenient access to Ramdas Maral, Talav Kondhwa Road, Kondhwa Budruk, Kondhwa Police Station / Sai Service, Thosar Nagar / Godown.
This website is only for the purpose of providing information regarding real estate projects in different geographies. Any information which is being provided on this website is not an advertisement or a solicitation. The company has not verified the information and the compliances of the projects. Further, the company has not checked the RERA* registration status of the real estate projects listed herein. The company does not make any representation in regards to the compliances done against these projects. Please note that you should make yourself aware about the RERA* registration status of the listed real estate projects.
*Real Estate (regulation & development) act 2016.