A total of 67 residential transactions has been registered so far for Nivasa Ananya, amounting to ₹ 35 Cr till October 2025.

Nivasa Ananya, a premium residential project located in Lohegaon, offers a unique blend of luxury and comfort. Nestled amidst serene surroundings, the project is strategically connected to Dhanori Road, making it easily accessible from various parts of the city. The project boasts of modern amenities such as a well-equipped gymnasium and reliable power backup, ensuring a comfortable living experience for its residents.
With its prime location and world-class amenities, Nivasa Ananya is an ideal choice for those seeking a tranquil and luxurious living experience. The project specification includes oil-bound distemper on master bedroom walls, ensuring a smooth and long-lasting finish.
Experience the best of living at Nivasa Ananya, where every moment is filled with joy and comfort. Dont miss this opportunity to own your dream home in Lohegaon, a rapidly growing and sought-after location in Pune.
Available Unit OptionsThe following table outlines the available unit options at Nivasa Ananya:
| Unit Type | Area (Sq. Ft.) | Price (Rs.) |
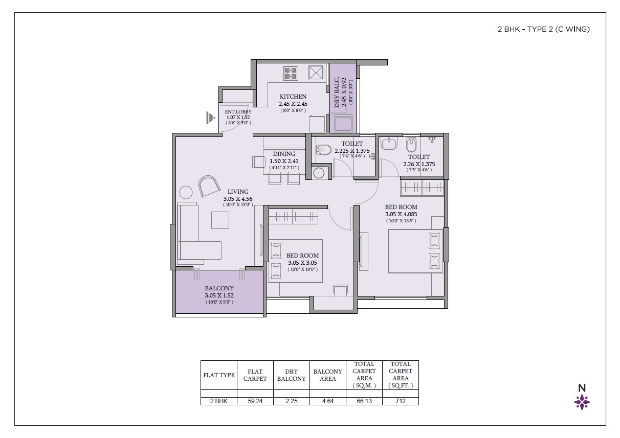
| 2 BHK Apartment | 536 | On request (Lac) |
| 3 BHK Apartment | 882 | On request (Lac) |
The residential property is strategically located near several notable landmarks, providing residents with easy access to essential amenities and services.
In resale we have 4 properties available ranging from (unit type) having price from {Price}
| Listing Type | Total Listings | Unit Type Range | Price Range |
| Resale | 4 | 2 BHK - 3 BHK | 63.00 L - 96.00 L |
The residential real estate market has witnessed a substantial surge in government-registered sales transactions and sales value over the past year, with a total of 7 transactions aggregating to a gross sales value of 4 Cr. Within the same period, the current rental rate has remained stable at 8,896. A similar trend is observed when examining the market over the past 6 months, with the current rental rate and 7 sales transactions contributing to a gross sales value of 4 Cr. Furthermore, the 3-month aggregation also mirrors this stability, reinforcing the notion that the residential sector has maintained a consistent pace.
Own this home with EMIs starting at ₹ 46.09 K/month - Check Cibil Linked Loan Estimate
A total of 67 residential transactions has been registered so far for Nivasa Ananya, amounting to ₹ 35 Cr till October 2025.
Structural Works reach 37% completion.
A total of 55 out of 196 launched units have been booked as of April 2025, including 4% of 2 BHK MHADA(1 out of 26 units), 30% of 3 BHK(9 out of 30 units), 31% of 2 BHK(30 out of 96 units), 13% of 2 BHK SALE(2 out of 16 units), 46% of 2.5 BHK(13 out of 28 units).
During Q1'2025, average property prices for Nivasa Ananya moved from ₹ 10,000/sqft to ₹ 10,150/sqft, reflecting a 1.50% rise.
A total of 37 out of 196 launched units have been booked as of February 2025, including 17% of 3 BHK(5 out of 30 units), 21% of 2 BHK(20 out of 96 units), 13% of 2 BHK SALE(2 out of 16 units), 36% of 2.5 BHK(10 out of 28 units).
Structural Works reach 25% completion.
A total of 24 out of 196 launched units have been booked as of December 2024, including 10% of 3 BHK(3 out of 30 units), 11% of 2 BHK(11 out of 96 units), 13% of 2 BHK SALE(2 out of 16 units), 29% of 2.5 BHK(8 out of 28 units).
NIVASA ANANYA PHASE I, developed by NIVASA BUILDCON, officially launched on 18-Jun-2024 and expected to complete by 31-Dec-2026. Registered under RERA No. P52100076606. The project comprises 4 towers and offers 196 residential units, including 2 BHK MHADA, 2 BHK, 2 BHK SALE, 2.5 BHK, 3 BHK, with unit sizes ranging from 527 to 872 Square feet across a total area of 2.22 Acre.
| Master Bedroom-Walls | Oil Bound Distemper |
| Master Bedroom-Flooring | Vitrified Tiles |
| Other Bedrooms-Flooring | Vitrified Tiles |
| Walls | Oil Bound Distemper |
| Living Area-Flooring | Vitrified Tiles |
| Structure | RCC Frame Structure |
| Schools Near by Nivasa Ananya | |
|---|---|
| Bridge Blooming School | 0.48 KM |
| Jj English Medium School | 0.55 KM |
| Proxima International School | 0.98 KM |
| Pragatti International Schools- Best School In Dhanori | 1.04 KM |
| Kendriya Vidyalaya No. 1 | 1.16 KM |
| Narayan Rao Genba Moze Vidyalaya | 1.21 KM |
| Kendriya Vidyalaya No.1 Afs Pune | 1.22 KM |
| Dr. Mar Theophilus School | 1.30 KM |
| Pragati English Medium School | 1.34 KM |
| Kendriya Vidyalaya No.2 Afs Pune | 1.34 KM |
| Bus Stops Near by Nivasa Ananya | |
|---|---|
| Khese Park | 0.54 KM |
| Kalwad | 0.57 KM |
| Air Force Station | 0.61 KM |
| Officers Mess | 0.78 KM |
| Khalsa Dairy | 0.84 KM |
| Dhanori Jakat Naka | 0.84 KM |
| Kamal Park | 0.95 KM |
| Sathe Wasti | 1.10 KM |
| Jagatguru Chowk | 1.14 KM |
| Mahadev Nagar | 1.14 KM |
| Hospitals Near by Nivasa Ananya | |
|---|---|
| Vimal Multispeciality Hospital & Research Centre | 0.84 KM |
| Shreekalyani Hospital | 0.86 KM |
| Sparsh Orthopaedic & General Hospital | 0.97 KM |
| Ct Nursing Home | 1.16 KM |
| Orchid Speciality Hospital | 1.19 KM |
| Bapat Multi-speciality Hospital | 1.30 KM |
| Crysta Ivf Fertility Centre In Pune | Affordable Ivf Clinic/ Hospital In Pune | 1.62 KM |
| Vaibhav Hospital | 2.22 KM |
| Jeewan Jyot Multi-speciality Medicare Centres - Viman Nagar | 2.78 KM |
| Aayush Hospital | 3.06 KM |
| Clinics Near by Nivasa Ananya | |
|---|---|
| Dr. Babasaheb Ambedkar Garden Mangal Karyalay | 0.83 KM |
| Image5dcare Diagnostic Centre | 1.01 KM |
| Dr Dinanath Chavan | 1.02 KM |
| Lenskart.com At Dhanori | 1.07 KM |
| Sabka Dentist - Dhanori | 1.09 KM |
| Dr Konde's Ultrasound & Diagnostics Center (sonography) | 1.14 KM |
| K Care Clinic | Hernia | Piles | Gallbladder | Surgeon | Charholi | Dhanori | 1.18 KM |
| Lupin Diagnostics | 1.19 KM |
| Atharva Child Clinic - Best Pediatrician In Vishrantwadi | 1.20 KM |
| Kait Child And Family Clinic | 1.20 KM |
| Gym Fitness Near by Nivasa Ananya | |
|---|---|
| The Fit Bar | 0.89 KM |
| Shree Yoga Fitness | 0.99 KM |
| Revolve Fitness (formerly Reps Fitness) | 1.05 KM |
| Fitness Mantras Dhanori Branch | 1.15 KM |
| Rk Fitness | 1.32 KM |
| Fkc Dhanori | 1.33 KM |
| All Time Fitness Gym | 1.43 KM |
| Ms Fitness Club | 1.50 KM |
| S2 Fitness Club | 1.56 KM |
| Anytime Fitness Pune | Gym Near Me Viman Nagar | 1.62 KM |
| Restaurants Near by Nivasa Ananya | |
|---|---|
| Zaika Caterers & Restaurants | 0.80 KM |
| Chulbul Dhaba | 0.93 KM |
| Vimanzza Cafe | 2.10 KM |
| The Mafia | 2.38 KM |
| Where Else Diner | 2.44 KM |
| Largo Pizzeria | 2.48 KM |
| Perks N Brews | 2.52 KM |
| Lazeez By Hyderabadi Delicacies | 2.56 KM |
| Farmaaish | 2.67 KM |
| Chaats And Wraps | 2.70 KM |
| College and Universities Near by Nivasa Ananya | |
|---|---|
| Symbiosis Law School | 1.58 KM |
| Nmims Vimannagar | 2.51 KM |
| Symbiosis Centre For Media & Communication (scmc) | 2.61 KM |
| Symbiosis International University | 2.64 KM |
| Symbiosis Centre For Management Studies | 2.64 KM |
| International Institute Of Hotel Management | 2.98 KM |
| Dr D Y Patil School Of Architecture | 3.28 KM |
| D Y Patil Dental School | 3.42 KM |
| D Y Patil School Of Management | 3.44 KM |
| Ajeenkya Dy Patil School Of Engineering | 3.45 KM |
| Temples Near by Nivasa Ananya | |
|---|---|
| Shree Vitthal Rukhmini Mandir | 1.39 KM |
| Vitthal Maruti Mandir | 1.54 KM |
| Shree Swami Samarth Maharaj Mandir | 1.55 KM |
| Navagrah Shani Shri Hanuman Mandir | 1.94 KM |
| Navlai Mata Mandir Inside A House | 2.10 KM |
| Uttareshwer Temple | 2.10 KM |
| Amruteshwar Mahadev Mandir | 2.12 KM |
| Ayyappa Temple - Dhanori | 2.14 KM |
| Premal Datta Mandir | 2.16 KM |
| Digamber Jain Mandir Vimannagar | 2.89 KM |
| Supermarkets Near by Nivasa Ananya | |
|---|---|
| Mahalaxmi Super Market | 0.19 KM |
| Star Bazar | 0.27 KM |
| Royal Mart | 1.21 KM |
| Bhawani Super Market | 1.41 KM |
| Market Point Food Bazaar | 1.44 KM |
| Sf Mart | 1.48 KM |
| Pooja Super Market | 1.54 KM |
| Krishna Mart | 1.63 KM |
| Gaurav Fresh Mart | Qualitail | 1.73 KM |
| Smart Point | 1.81 KM |
| Clothings Near by Nivasa Ananya | |
|---|---|
| Gini And Jony | 1.07 KM |
| Zivame (dhanori | 1.09 KM |
| Mufti | 1.14 KM |
| Da Milano Italia | 1.14 KM |
| Go Colors - Dhanore | 1.25 KM |
| Zudio - Aero Mall | 1.30 KM |
| Go Colors Store - Aero Mall | 1.32 KM |
| Zudio - Lohegaon | 1.83 KM |
| Born Babies Phoenix Marketcity Pune | 3.16 KM |
| The Souled Store Phoenix Viman Nagar Pune | 3.18 KM |
Check Travel Time
Connecting Roads - Nivasa Ananya
Nivasa Group, based in Pune, is a real estate project developer with a portfolio of 7 projects. The company prides itself on its core values of honesty and hard work, which it believes lead to success.With a team of fresh minds and exemplary talent, Nivasa Group is committed to delivering quality even in the most challenging situations. Their work is a testament to their belief, showcasing precision and perfection across
Nivasa Ananya offers a range of amenities including a gymnasium, power backup, 24 x 7 security, a party hall, and a normal park or central green area.
The project features 2 BHK apartments with an area of 536 Sq. Ft. and 3 BHK apartments with an area of 882 Sq. Ft.
Nivasa Ananya is developed by Nivasa Group, which has completed a total of 8 projects to date.
The construction status of Nivasa Ananya is currently listed as a new launch.
Nivasa Ananya is conveniently located with a bus stop 0.54 km away, a school 0.48 km away, and a hospital 0.84 km away, along with a supermarket just 0.19 km away.
This website is only for the purpose of providing information regarding real estate projects in different geographies. Any information which is being provided on this website is not an advertisement or a solicitation. The company has not verified the information and the compliances of the projects. Further, the company has not checked the RERA* registration status of the real estate projects listed herein. The company does not make any representation in regards to the compliances done against these projects. Please note that you should make yourself aware about the RERA* registration status of the listed real estate projects.
*Real Estate (regulation & development) act 2016.