A total of 2 residential transactions has been registered so far for Kulswamini Sukrya Heights, amounting to ₹ 89 L till December 2025.

Kulswamini Sukrya Heights is a proudly presented residential project located in the heart of Kumbharkhan Pada, making it a perfect haven for those seeking a tranquil and serene living experience. The project is strategically connected to Agra Road and Kalyan Shil Road, offering unparalleled convenience to its residents, with Agra Road being just 7 km away and Kalyan Shil Road being a mere 4.5 km away.
At Kulswamini Sukrya Heights, we have thoughtfully designed every aspect of our project to ensure that our residents live life to the fullest. From the sports enthusiasts to the young parents looking for a place to raise their children, we have something for everyone. Enjoy a game with your kids at our designated kids play areas or hang out with your friends at the comfort of your own home with power backup.
Our meticulously planned apartments feature the finest specifications, ensuring a lifestyle that is not just comfortable but also aesthetically pleasing. Notice the elegance of our master bedroom walls, beautifully done with oil-bound distemper.
Available Unit OptionsThe following table outlines the available unit options at Kulswamini Sukrya Heights:
| Unit Type | Area (Sq. Ft.) |
| 1 BHK Apartment | 322 Sq. Ft. |
| 1 BHK Apartment | 341 Sq. Ft. |
| 2 BHK Apartment | 438 Sq. Ft. |
This residential property is located in a prime area, surrounded by several essential landmarks, offering a comfortable and convenient living experience to its residents. These landmarks provide residents with easy access to various amenities and services, making life simpler and more enjoyable.
A total of 2 residential transactions has been registered so far for Kulswamini Sukrya Heights, amounting to ₹ 89 L till December 2025.
During Q3'2025, average property prices for Kulswamini Sukrya Heights moved from ₹ 7,350/sqft to ₹ 12,700/sqft, reflecting a 72.79% rise.
Structural Works reach 24% completion
SUKRYA HEIGHTS, developed by KULSWAMINI BUILDERS & DEVELOPERS, officially launched on 06-Feb-2025 and expected to complete by 31-Dec-2028. Registered under RERA No. P51700079126. The project comprises 1 towers and offers 72 residential units, including LAND LORD 1 BHK, SALE 1 BHK, LANDLORD 1 BHK, SALE 2 BHK, LANDLORD 2 BHK, with unit sizes ranging from 312 to 431 Square feet across a total area of 0.71 Acre.
| Master Bedroom-Walls | Oil Bound Distemper |
| Master Bedroom-Flooring | Vitrified Tiles |
| Other Bedrooms-Flooring | Vitrified Tiles |
| Walls | Oil Bound Distemper |
| Living Area-Flooring | Vitrified Tiles |
| Structure | RCC Frame Structure |
| Schools Near by Kulswamini Sukrya Heights | |
|---|---|
| Model English School | 0.20 KM |
| Holy Cross English Medium School | 0.35 KM |
| Lalit English High School | 0.61 KM |
| Tondwalkar School | 1.02 KM |
| Gei's Blossom International School | 1.23 KM |
| Joshi High School Blossom | 1.23 KM |
| Don Bosco High School | 1.30 KM |
| Shree Vailankanni English School | 1.33 KM |
| Mahila Samiti English High School | 1.35 KM |
| Mahatma Gandhi Vidyamandir | 1.41 KM |
| Bus Stops Near by Kulswamini Sukrya Heights | |
|---|---|
| H-ward Office | 0.92 KM |
| Umesh Nagar | 1.13 KM |
| Satyavan Chowk | 1.31 KM |
| Madan Thackeray Chowk | 1.51 KM |
| Retibunder Naka | 1.54 KM |
| Samrat Hotel | 1.55 KM |
| Ganpati Mandir | 1.57 KM |
| Municipal Hospital | 1.60 KM |
| Dombivali Parking | 1.64 KM |
| Brahman Sabha | 1.67 KM |
| Hospitals Near by Kulswamini Sukrya Heights | |
|---|---|
| Maruti Multispeciality Hopsital | 1.22 KM |
| Vedanta Multispeciality Hospital | 1.23 KM |
| Sushrut Ent Hospital | 1.26 KM |
| Nath Krupa Nursing Home | 1.27 KM |
| Galaxy Criticare Hospital | Cardiology-2d Echo&ecg Test In Dombivali-diabatologist-stress Test-tmt-p | 1.32 KM |
| Spandan Hospital | 1.34 KM |
| Ashwamedh Orthopaedic Hospital | 1.36 KM |
| Apex Hospital | 1.38 KM |
| City Hospital & Polyclinic - Joint Replacement Center | 1.38 KM |
| Shree Sadguru Krupa Hospital | 1.39 KM |
| Clinics Near by Kulswamini Sukrya Heights | |
|---|---|
| Smilecafe Dental Care | 0.50 KM |
| Dr Snehal Deore Dental Clinic | 0.51 KM |
| Twacha Yog Clinic | 0.69 KM |
| Pristine Family Dental Care & Implant Centre | 0.69 KM |
| Dr.pradnya D Gaonkar | 0.70 KM |
| Shree Ashtavinayak Clinic (dr.sanjay Aghav) | 1.09 KM |
| Dr.v.m.shetty | 1.28 KM |
| Dr. Ashwini Kendre | 1.40 KM |
| Lenskart.com At Phadke Road | 1.41 KM |
| Samarth Multispeciality Dental Clinic | 1.42 KM |
| Gym Fitness Near by Kulswamini Sukrya Heights | |
|---|---|
| Real Fitness & Hardcore - Unisex | 0.36 KM |
| Body Pulse The Fitness Hub | 0.64 KM |
| Shree Fitness | 0.76 KM |
| Bhoir Gymkhana | 0.94 KM |
| Body Glow Gym | 1.02 KM |
| Am Fitness By Dr. Abhijit Mhatre | 1.05 KM |
| Rcfitness Hub | 1.10 KM |
| Fun And Fit Gym In Dombivli West | 1.12 KM |
| Ozone Fitness Center | 1.27 KM |
| Iron Gym And Fitness Centre | 1.28 KM |
| College and Universities Near by Kulswamini Sukrya Heights | |
|---|---|
| Matrushri Kashiben Motilal Patel Senior College Of Commerce And Science | 1.19 KM |
| Perfect Institute (short Hand And Typewriting). Govt Recg. | 1.50 KM |
| Royal College | 1.65 KM |
| Anjarlekars Tech World Institute Automobile Courses | 1.74 KM |
| S. H Jondhale Polytechnic | 1.81 KM |
| R. B. T. College Of Education | 2.06 KM |
| Keraleeya Samajam's Model College (autonomous) | 2.07 KM |
| Manjunatha College Of Commerce | 2.09 KM |
| Artech College Of Professional Studies | 2.09 KM |
| Sarathi School Of Hotel Management And Catering Technology | 2.11 KM |
| Restaurants Near by Kulswamini Sukrya Heights | |
|---|---|
| The Legend | 1.50 KM |
| New Modern Cafe | 1.51 KM |
| Modern's China Kitchen | 1.89 KM |
| Kamaths Govindashram | 2.05 KM |
| Domino's Pizza | 2.05 KM |
| Al Fresco | 2.07 KM |
| Nakshatra Village | 2.25 KM |
| Tankstelle Bistro | 2.28 KM |
| La Celebrita Food Studio | 2.51 KM |
| Kuba | 3.96 KM |
| Food Others Near by Kulswamini Sukrya Heights | |
|---|---|
| Vadilal | 0.24 KM |
| The Belgian Waffle Co | 1.34 KM |
| The Waffle Co. | 1.34 KM |
| Nic Honestly Crafted Icecreams Dombivali East. | 1.35 KM |
| Tender Fresh Icecream | 1.40 KM |
| Ribbons And Balloons - The Cake Shop In Dombivli West (vishnu Nagar) | 1.50 KM |
| Souffle Cake Shop Samrat Chowk | 1.57 KM |
| Merwans Cake Stop Dombivali | 1.67 KM |
| O-cakes Dombivli Station | 1.85 KM |
| Natural Ice Cream | 1.85 KM |
| Home Decors Near by Kulswamini Sukrya Heights | |
|---|---|
| Ultra Fresh Prestige (dombivli) | 1.94 KM |
| Ramesh Steel(godrej Interio) | 2.55 KM |
| Ambience Surface Decor | 2.77 KM |
| Delite Furniture | 2.78 KM |
| Godrej Inspire Hub - Lassi Traders | 3.51 KM |
| Hitesh Tiles | 3.57 KM |
| Auradecor Pvt Ltd ( Bhiwandi | 4.13 KM |
| Godrej Interio - Furniture Store In Kalyan | 4.56 KM |
| Royaloak Furniture Bhiwandi | 4.62 KM |
| Godrej Interio Store | 4.68 KM |
| Temples Near by Kulswamini Sukrya Heights | |
|---|---|
| Ragai Devi Temple | 0.47 KM |
| Shree Jagdamba Mandir | 0.99 KM |
| Hanuman Templ | 1.25 KM |
| Girija Mata Mandir | 1.91 KM |
| Shiva Temple | 2.02 KM |
| Khandoba Mandir | 2.08 KM |
| Kalyan | 2.20 KM |
| Shiv Mandir Ramnagar | 2.21 KM |
| Ayyappa Temple | 2.38 KM |
| Amba Bhavani Temple | 2.40 KM |
Check Travel Time
Connecting Roads - Kulswamini Sukrya Heights
Properties in Kulswamini Sukrya Heights & Top Sellers
Kulswamini Sukrya Heights offers a range of amenities including kids play areas, power backup, 24 x 7 security, a central green park, and indoor games for leisure activities.
Kulswamini Sukrya Heights is currently in the new launch phase.
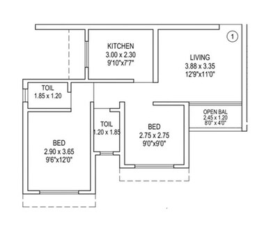
The project features 1 BHK apartments of sizes 322 Sq. Ft. and 341 Sq. Ft., as well as 2 BHK apartments sized at 438 Sq. Ft.
Kulswamini Sukrya Heights is developed by Kulswamini Buildcon, which has successfully completed a total of two projects.
Kulswamini Sukrya Heights is conveniently located near several landmarks, including Model English School, Maruti Multispeciality Hospital, and a bus stop, all within a short distance.
The apartments at Kulswamini Sukrya Heights feature vitrified tiles flooring and oil-bound distemper finishes on the walls, ensuring a modern and stylish appearance.
This website is only for the purpose of providing information regarding real estate projects in different geographies. Any information which is being provided on this website is not an advertisement or a solicitation. The company has not verified the information and the compliances of the projects. Further, the company has not checked the RERA* registration status of the real estate projects listed herein. The company does not make any representation in regards to the compliances done against these projects. Please note that you should make yourself aware about the RERA* registration status of the listed real estate projects.
*Real Estate (regulation & development) act 2016.