A total of 24 residential transactions has been registered so far for Imperial Shreesha Icon, amounting to ₹ 10 Cr till January 2026.

A total of 24 residential transactions has been registered so far for Imperial Shreesha Icon, amounting to ₹ 10 Cr till January 2026.
During Q4'2025, average property prices for Imperial Shreesha Icon moved from ₹ 6,400/sqft to ₹ 6,700/sqft, reflecting a 4.69% rise.
During Q2'2025, average property prices for Imperial Shreesha Icon moved from ₹ 6,500/sqft to ₹ 6,700/sqft, reflecting a 3.08% rise.
Structural Works reach 30% completion.
A total of 2 out of 80 launched units have been booked as of April 2025, including 8% of 3 BHK(1 out of 13 units), 2% of 2 BHK(1 out of 66 units).
SHREESHA ICON, developed by IMPERIAL BUILDCON, officially launched on 03-Mar-2025 and expected to complete by 30-Jul-2029. Registered under RERA No. P52100079397. The project comprises 1 towers and offers 80 residential units, including 2 BHK LANDOWNER, 2 BHK, 3 BHK, with unit sizes ranging from 560 to 732 Square feet across a total area of 0.96 Acre.
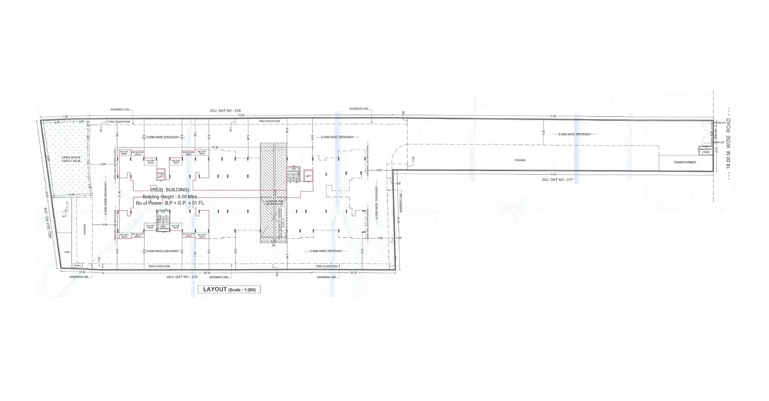
This is the master plan for Imperial Shreesha Icon, located in Dudulgaon. The project features a residential building designed with a basement, ground floor, and one additional floor, reaching a total height of 6.00 meters.
The plan clearly designates areas for the residential building, an open space of 200.51 square meters, ample parking zones, and dedicated tree plantation areas, creating a balanced and functional environment.
| Master Bedroom-Walls | Oil Bound Distemper |
| Master Bedroom-Flooring | Vitrified Tiles |
| Other Bedrooms-Flooring | Vitrified Tiles |
| Living Area-Flooring | Vitrified Tiles |
| Structure | RCC Frame Structure |
| Schools Near by Imperial Shreesha Icon | |
|---|---|
| Dnyanbhakti International School | 1.22 KM |
| Adwait Public School | 1.74 KM |
| Aditya International School | 1.98 KM |
| New Indrayani English Medium School | 2.15 KM |
| Shri Nageshwar Secondary School | 2.19 KM |
| Radcliffe School Pune | 2.33 KM |
| Jayashree English Medium School And Junior College | 2.37 KM |
| Radcliffe Group Of Schools - Dighi | Best Cbse School In Dighi | 2.38 KM |
| Paradise International School | 2.46 KM |
| Preeti English Medium School | 2.52 KM |
| Bus Stops Near by Imperial Shreesha Icon | |
|---|---|
| Arambha Society | 0.54 KM |
| Savata Mala | 0.77 KM |
| Hawaldar Vasti | 1.03 KM |
| Dhayarkar Wasti (rajmata College) | 1.27 KM |
| Sastevasti | 1.47 KM |
| Dudul Gaon | 1.50 KM |
| Lakshmi Wasti | 1.82 KM |
| Sharad Pawar College | 2.01 KM |
| Moshi Phata | 2.22 KM |
| Moshi Gaon | 2.23 KM |
| Hospitals Near by Imperial Shreesha Icon | |
|---|---|
| Sunrise Hospital | 0.50 KM |
| Unity Hospital Moshi | 0.82 KM |
| Dhaara Hospital And Nursing Home | 1.32 KM |
| Kamlesh Multispeciality Hospital | 1.84 KM |
| Aai Mother & Child Care Hospital | 1.90 KM |
| Shree Multispeciality Hospital Moshi - Unit 2 | 1.96 KM |
| Varad Multispeciality Hospital | 1.98 KM |
| Dr Lata's Nirmiti Hospital: Best Gynaecologist | 2.09 KM |
| Pcmc Hospital Moshi | 2.22 KM |
| Spandan Hospital Moshi ( Gynac | 2.23 KM |
| Clinics Near by Imperial Shreesha Icon | |
|---|---|
| Anishha Medicals And General Stores | 0.41 KM |
| Aadhar Clinic | 0.47 KM |
| Dr Nagrik's Child Clinic (mbbs Md) | 0.75 KM |
| Dr. Devyani's Dental Clinic | 0.90 KM |
| Mauli Dental Clinic | 1.33 KM |
| Venus Speciality Clinic And Bharati Diabetes Center | 1.78 KM |
| Ekdant Dental Care & Implant Center ( Dr. Mhavarkar's) | 1.92 KM |
| Swasthya Clinic Moshi | 1.96 KM |
| Smaran Advance Dental Clinic | 2.12 KM |
| Samruddhi Clinic | 2.34 KM |
| Gym Fitness Near by Imperial Shreesha Icon | |
|---|---|
| Icon Fitness | 0.60 KM |
| Samrat Unisex Gym | 0.90 KM |
| Morya Fitness Club | 1.45 KM |
| Max Fit Club | 1.68 KM |
| Lifestyle Fitness Club | 1.75 KM |
| Samrat Gym And Crossfit Studio Moshi | 2.11 KM |
| Titanium Fitness | 2.27 KM |
| Vriddhi Yoga Classes | 2.58 KM |
| Narendra Gym & Unisex Fitness Centre | 2.59 KM |
| Om Sai Gym | 2.67 KM |
| Temples Near by Imperial Shreesha Icon | |
|---|---|
| Adbangnath Temple | 0.83 KM |
| Hanuman Temple Dudulgaon Moshi Alandi Rd | 0.93 KM |
| Prati Yermala Shree Yedeshwari Sarvajanik Mandir | 1.49 KM |
| Shree Khandoba Mandir Devasthan | 1.51 KM |
| Shree Raghunath Maharaj Mandir | 1.59 KM |
| Mahalaxmi Temple | 1.96 KM |
| Shree Ganesh Mandir Shivajiwadi Shivtej Colony | 1.97 KM |
| Sawtamali Mandir | 2.02 KM |
| Nageshwar Maharaj Devsthan | 2.08 KM |
| Lingaleshwar Temple | 2.17 KM |
| College and Universities Near by Imperial Shreesha Icon | |
|---|---|
| Rjspm's College Of Pharmacy | 1.21 KM |
| Rajmata Jijau Shikshan Prasarak Mandal College Of Pharmacy | 1.33 KM |
| Dnyanvilas College Of Pharmacy | 2.07 KM |
| Mit Academy Of Engineering | 2.62 KM |
| Pes Modern College Of Pharmacy (for Ladies) | 3.05 KM |
| Coep Technological University Pune (extended Campus) Chikhali Pcmc | 4.92 KM |
| Rani Putalabai Women's Law College | 6.10 KM |
| Vishwanath College Pune- I.t.i. I Fire Safety I Paramedical Nursing Diploma | 6.61 KM |
| Csit Junior College | 6.64 KM |
| Siddhi College Of Pharmacy | 6.68 KM |
| Restaurants Near by Imperial Shreesha Icon | |
|---|---|
| 360 Degree Multicuisine Family Restaurant | 4.82 KM |
| Reddy's Hyderabadi Biryani | 6.71 KM |
| Lotus Court Family Resto Bar | 8.39 KM |
| Tiranga Veg Non-veg | 9.23 KM |
| Little Italy | 9.33 KM |
| Hotel Silver Seven | 9.90 KM |
| Savali | 10.19 KM |
| Domino's Pizza | 10.23 KM |
| 3 Idiots - The Friendly Bar | 10.35 KM |
| Zaika Caterers & Restaurants | 10.43 KM |
| Supermarkets Near by Imperial Shreesha Icon | |
|---|---|
| 99 Pune | 0.88 KM |
| M Marts | 1.76 KM |
| Hyperpure | 2.21 KM |
| M R Shopping Mall | 2.48 KM |
| Nikhil Grocery World | 2.64 KM |
| Morya Mart | 3.20 KM |
| Mall Mart Retails | 3.25 KM |
| Mahaveer Super Shopee | 3.27 KM |
| Super Bazar Alandi | 3.91 KM |
| M-mart | 4.13 KM |
| Clothings Near by Imperial Shreesha Icon | |
|---|---|
| Cottonking Moshi | 2.95 KM |
| C' Lai Word | 3.21 KM |
| Brainbees Branch Firstcry | 3.55 KM |
| Zudio - Pune | 3.87 KM |
| Rabit N Turtle Little Hearts World | 4.20 KM |
| Allen Solly Factory Outlet | 4.83 KM |
| Peter England Outlet | 4.84 KM |
| Zudio - Pune | 5.62 KM |
| Cottonking Dsk Enterprises | 6.61 KM |
| Linenking | 6.72 KM |
Check Travel Time
Connecting Roads - Imperial Shreesha Icon
This website is only for the purpose of providing information regarding real estate projects in different geographies. Any information which is being provided on this website is not an advertisement or a solicitation. The company has not verified the information and the compliances of the projects. Further, the company has not checked the RERA* registration status of the real estate projects listed herein. The company does not make any representation in regards to the compliances done against these projects. Please note that you should make yourself aware about the RERA* registration status of the listed real estate projects.
*Real Estate (regulation & development) act 2016.