A total of 224 out of 836 launched units have been booked as of November 2025, including 68% of 4 BHK(26 out of 38), 27% of 3 BHK(51 out of 192), 24% of 2 BHK(147 out of 606).

Pacifica Hillcrest Phase 2, a prestigious residential project, is strategically located in Gachibowli, one of the most sought-after sublocations in Hyderabad. This project offers an unparalleled living experience, with its proximity to the Nehru Outer Ring Road, making it an ideal choice for those seeking a serene and convenient lifestyle.
The project boasts of a range of modern amenities designed to cater to the needs of its discerning residents. These include a state-of-the-art gymnasium, ensuring a healthy and active lifestyle, and a reliable power backup system for uninterrupted living. With Pacifica Hillcrest Phase 2, you can indulge in the perfect blend of luxury and comfort.
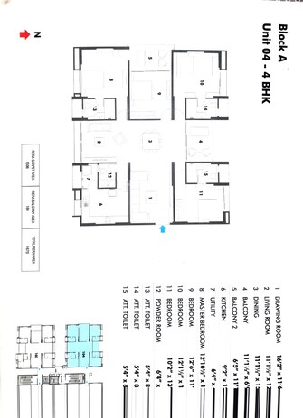
The project comprises various types of apartments, ranging from 2 BHK to 4 BHK, with areas varying from 787 Sq. Ft. to 1699 Sq. Ft. Each apartment is designed to provide maximum space and natural light, making it an ideal choice for families and individuals alike. The project also offers a range of specifications, including oil-bound distemper finish for the master bedroom walls, ensuring a high-quality finish and a comfortable living experience.
Available Unit OptionsThe following table outlines the available unit options at Pacifica Hillcrest Phase 2:
| Unit Type | Area (Sq. Ft.) |
| 2 BHK Apartment | 787 Sq. Ft. |
| 2 BHK Apartment | 940 Sq. Ft. |
| 3 BHK Apartment | 1199 Sq. Ft. |
| 3 BHK Apartment | 1215 Sq. Ft. |
| 4 BHK Apartment | 1670 Sq. Ft. |
| 4 BHK Apartment | 1699 Sq. Ft. |
This residential property offers residents a unique blend of convenience, comfort, and community, with several notable landmarks within a short distance. From educational institutions to healthcare facilities, and entertainment options to shopping centers, youll find everything you need right at your doorstep.
We have total 44 options available in Pacifica Hillcrest Phase 2 for resale and rental, In resale we have 41 properties available ranging from 2 BHK - 3 BHK having sizes from 77.13 L - 1.20 CR
For rent you can check 3 properties having options for 2 BHK with price ranging from 40000 - 60000.
| Listing Type | Total Listings | Unit Type Range | Price Range |
| Resale | 41 | 2 BHK - 3 BHK | 77.13 L - 1.20 CR |
| Rental | 3 | 2 BHK | 40000 - 60000 |
A total of 224 out of 836 launched units have been booked as of November 2025, including 68% of 4 BHK(26 out of 38), 27% of 3 BHK(51 out of 192), 24% of 2 BHK(147 out of 606).
Structural Works reach 80% completion, External Works has reached 50%, Internal finishing stands at 33%, MEP Services including lift and staircases, are now 52% done.
External Works has reached 100%, Internal finishing stands at 100%, MEP Services including lift and staircases, are now 100% done.
Structural Works reach 80% completion.
A total of 753 out of 1007 launched units have been booked as of November 2025, including 80% of 4 BHK(35 out of 44 units), 84% of 3 BHK(222 out of 263 units), 71% of 2 BHK(496 out of 700 units).
A total of 753 out of 1007 launched units have been booked as of November 2025, including 80% of 4 BHK(35 out of 44 units), 84% of 3 BHK(222 out of 263 units), 71% of 2 BHK(496 out of 700 units).
Structural Works reach 80% completion, External Works has reached 50%, Internal finishing stands at 33%, MEP Services including lift and staircases, are now 52% done.
A total of 753 out of 1007 launched units have been booked as of October 2025, including 80% of 4 BHK(35 out of 44 units), 84% of 3 BHK(222 out of 263 units), 71% of 2 BHK(496 out of 700 units).
During Q3'2025, average property prices for Pacifica Hillcrest Phase 2 moved from ₹ 9,700/sqft to ₹ 11,500/sqft, reflecting a 18.56% rise.
During Q2'2025, average property prices for Pacifica Hillcrest Phase 2 moved from ₹ 9,550/sqft to ₹ 9,700/sqft, reflecting a 1.57% rise.
Hillcrest Phase 2 is a residential development with RERA NO: P02400000630, registered with rera.telangana.gov.in. The project features 24 distinct residential plots and is located in Gachibowli, connecting to Nehru Outer Ring Road Hyderabad at 0.4 km. No specific launch or completion dates are visible on this plan.
The master plan for Hillcrest Phase 2 designates areas for residential plots, a central amenities block, and various green spaces identified as 'LAWN.' The residential units are organized into several blocks, each containing individually numbered plots from 1 to 12. There is one clearly labeled 'AMENITIES BLOCK' positioned centrally within the development.
| Master Bedroom-Walls | Oil Bound Distemper |
| Master Bedroom-Flooring | Vitrified Tiles |
| Other Bedrooms-Flooring | Vitrified Tiles |
| Walls | Oil Bound Distemper |
| Living Area-Flooring | Vitrified Tiles |
| Structure | RCC Frame Structure |
| Schools Near by Pacifica Hillcrest Phase 2 | |
|---|---|
| Keystone International School | 0.65 KM |
| Keystone School | 0.69 KM |
| The Shri Ram Universal School | 1.03 KM |
| The Future Kid's School | 1.05 KM |
| Future Kids | 1.05 KM |
| The Gaudium School | 1.33 KM |
| Sattva Academy - Kokapet | 1.86 KM |
| Phoenix Greens International School | 1.87 KM |
| Phoenix Greens School Of Learning - Best Cbse School In Hyderabad & Cambridge Schools In Hyderabad | 1.94 KM |
| The Global Edge School | 2.16 KM |
| Bus Stops Near by Pacifica Hillcrest Phase 2 | |
|---|---|
| Waverock | 1.12 KM |
| Nanakramguda | 1.17 KM |
| Madhapur | 1.19 KM |
| Icici Junction | 1.26 KM |
| Nanak Ram Guda | 1.29 KM |
| Kokapet Exit 1 | 1.33 KM |
| Gar (kokapet Sez) | 1.49 KM |
| Nanak Ram Guda Junction | 1.72 KM |
| Wipro Circle | 1.86 KM |
| Q City | 1.97 KM |
| Hospitals Near by Pacifica Hillcrest Phase 2 | |
|---|---|
| Continental Hospitals | 0.77 KM |
| Sankara Eye Hospital Hyderabad | 1.35 KM |
| Star Hospitals - Nanakramguda | 1.48 KM |
| Rainbow Children's Hospital & Birthright - Financial District | 1.48 KM |
| Sri Sidhi Superspeciality Dental Hospital | 1.93 KM |
| Gagana Eye Hospital | 2.13 KM |
| Ankura Hospital For Women & Children - Gachibowli | 2.33 KM |
| 9m Hospitals - Gachibowli | 2.33 KM |
| Cadabams Mental Health Rehab Centre Hyderabad | 2.58 KM |
| Srija Hospital | 2.69 KM |
| Clinics Near by Pacifica Hillcrest Phase 2 | |
|---|---|
| Dr. Pujitha Devi Suraneni High Risk Obstetrician Laparoscopic And Robotic Surgeon | 0.12 KM |
| Dr Satish Reddy Pullalrevu | 0.63 KM |
| Dr. Manisha Mareddy - Dermatologist | 0.78 KM |
| Atlas Multi Speciality Clinics (orthopedics | 0.79 KM |
| Say Cheese Advanced Dental Clinic | 0.80 KM |
| Lenskart.com At Financial District | 1.34 KM |
| The Dental Experts | 1.48 KM |
| Dr. Manasa Badveli - Best Gynecologist In Hyderabad | 1.48 KM |
| Finedent Dental Clinic | 1.56 KM |
| Rooted Dental | 1.69 KM |
| Restaurants Near by Pacifica Hillcrest Phase 2 | |
|---|---|
| Mrs. Mage - Hyatt Hyderabad | 0.78 KM |
| Mamalola Penthouse Bar & Kitchen | 0.78 KM |
| Collage - Hyatt Hyderabad Gachibowli | 0.78 KM |
| Asie | 0.81 KM |
| The Fisherman's Wharf | 1.11 KM |
| T Grill | 1.15 KM |
| Tabula Rasa | 1.20 KM |
| Driven Cafe | 1.27 KM |
| Feast - Sheraton Hyderabad Hotel | 1.28 KM |
| Zega - Sheraton Hyderabad Hotel | 1.28 KM |
| College and Universities Near by Pacifica Hillcrest Phase 2 | |
|---|---|
| Padala Rama Reddi Colleges | 2.60 KM |
| Usha Sewing & Fashion Designing Institute | 2.82 KM |
| Manuu Polytechnic College | 2.87 KM |
| Mahatma Gandhi Institute Of Technology (mgit) | 3.12 KM |
| Gokul Degree College | 3.17 KM |
| Samana College Of Design Studies | 3.19 KM |
| Chaitanya Bharathi Institute Of Technology | 3.26 KM |
| Stargate College Of Design And Animation | 3.32 KM |
| Iiit-h | The International Institute Of Information Technology - Hyderabad | 3.81 KM |
| International Institute Of Hotel Management (iihm) Hyderabad | 3.83 KM |
| Gym Fitness Near by Pacifica Hillcrest Phase 2 | |
|---|---|
| Cult Financial District | Hyderabad - Best Gyms In Nanakramguda | 1.56 KM |
| The Little Gym Of Kokapet | 1.70 KM |
| Wipro Gym | 1.76 KM |
| Fitness Resurrection | 1.83 KM |
| Ar Styrke Fitness | 2.06 KM |
| Qcity Gym | 2.13 KM |
| K5 Fitness Planet Gym | 2.18 KM |
| One Fitness Gym | 2.19 KM |
| Rk Body And Soul | 2.34 KM |
| Aspire Atria | 2.39 KM |
| Temples Near by Pacifica Hillcrest Phase 2 | |
|---|---|
| Sri Ranganathaswamy Temple | 1.32 KM |
| Sri Krishna Goshala | 1.61 KM |
| Jalaram Temple | 1.72 KM |
| Hanuman And Shiva Temple | 1.93 KM |
| Sri Anantha Padmanabha Swamy Temple | 2.17 KM |
| Sri Mahalakshmi Temple | 2.77 KM |
| Mahadev Mandir | 2.78 KM |
| Rakta Maisamma Temple | 3.05 KM |
| Thulja Ram Bagh Temple | 3.24 KM |
| Sri Lakshmi Narasimha Swamy Temple Puppalguda Manikonda | 3.28 KM |
| Supermarkets Near by Pacifica Hillcrest Phase 2 | |
|---|---|
| Ashok Kirana & General Stores | 0.69 KM |
| Va Mart | 2.20 KM |
| Green Leaf Stores - Kokapet | 2.28 KM |
| Vijetha Supermarket My Home Vihanga | 2.59 KM |
| Vijetha Supermarket | 2.62 KM |
| Balaji Super Market @ 7 Hills | 2.64 KM |
| Bharat Bazar | 2.80 KM |
| 24 Mantra Organic Farm Shop | 2.87 KM |
| Sri Balaji Grand Mart | 2.92 KM |
| The Quality Freshmart Super Market | 2.96 KM |
| Clothings Near by Pacifica Hillcrest Phase 2 | |
|---|---|
| Tees Graphy | 1.71 KM |
| Cloudtailor Kokapet | 1.90 KM |
| Louis Philippe - Kokapet | 1.95 KM |
| Blackberrys | 3.18 KM |
| Smr Vinay Symphony | 3.21 KM |
| Firstcry.com Store Hyderabad Narsingi | 3.46 KM |
| Neerus Gachibowli | 3.82 KM |
| Taruni Gachibowli | 3.83 KM |
| South India Shopping Mall Textile & Jewellery - Gachibowli | 3.83 KM |
| Zudio Preston Prime Mall - Hyderabad | 3.93 KM |
Check Travel Time
Connecting Roads - Pacifica Hillcrest Phase 2
Gachibowli, Hyderabad, is an affluent IT neighbourhood in West Hyderabad's Ranga Reddy district. It is near the city's primary IT centre, HITEC City, which is about 5 kilometres away. The location is very near Hyderabad's Financial District. It is a well-planned corporate zone with business parks, IT firm headquarters, large campuses of prestigious foreign schools, and even the University of Hyderabad. The neighbourhood also has numerous high-rise residences as well
Properties in Pacifica Hillcrest Phase 2 & Top Sellers
Pacifica Developers was founded in 1978 with a view towards offering quality properties in residential, commercial, retail and hospitality sectors. It also undertakes mixed use projects, master planned communities, single family communities, single tenant lease ventures, senior citizen housing assets, etc. across Mexico, India and the United States. It also offers multifamily spaces for sale or rent with offices in New Delhi, Bangalore, Hyderabad and Chennai apart from the headquarters
Pacifica Hillcrest Phase 2 features a gymnasium, 24 x 7 security, power backup, a cafe/coffee bar, and a central green park.
The project offers 2 BHK, 3 BHK, and 4 BHK apartments with varying sizes ranging from 787 Sq. Ft. to 1699 Sq. Ft.
The developer of Pacifica Hillcrest Phase 2 is Pacifica, which has successfully completed a total of 18 projects.
The construction of Pacifica Hillcrest Phase 2 is currently at the mid-stage.
Yes, Pacifica Hillcrest Phase 2 is RERA-registered with the registration numbers P02400000630 and P02400003989.
The price range for resale units in Pacifica Hillcrest Phase 2 is between 77.13 L and 1.20 CR.
This website is only for the purpose of providing information regarding real estate projects in different geographies. Any information which is being provided on this website is not an advertisement or a solicitation. The company has not verified the information and the compliances of the projects. Further, the company has not checked the RERA* registration status of the real estate projects listed herein. The company does not make any representation in regards to the compliances done against these projects. Please note that you should make yourself aware about the RERA* registration status of the listed real estate projects.
*Real Estate (regulation & development) act 2016.