During Q3'2025, average property prices for Ekta Vistabella moved from ₹ 48,500/sqft to ₹ 55,000/sqft, reflecting a 13.40% rise.

During Q3'2025, average property prices for Ekta Vistabella moved from ₹ 48,500/sqft to ₹ 55,000/sqft, reflecting a 13.40% rise.
EKTA VISTABELLA, developed by EKTA SHELTERS PRIVATE LIMITED, officially launched on 27-Mar-2025 and expected to complete by 31-Dec-2028. Registered under RERA No. P51900079841. with total area of 0.24 Acre.
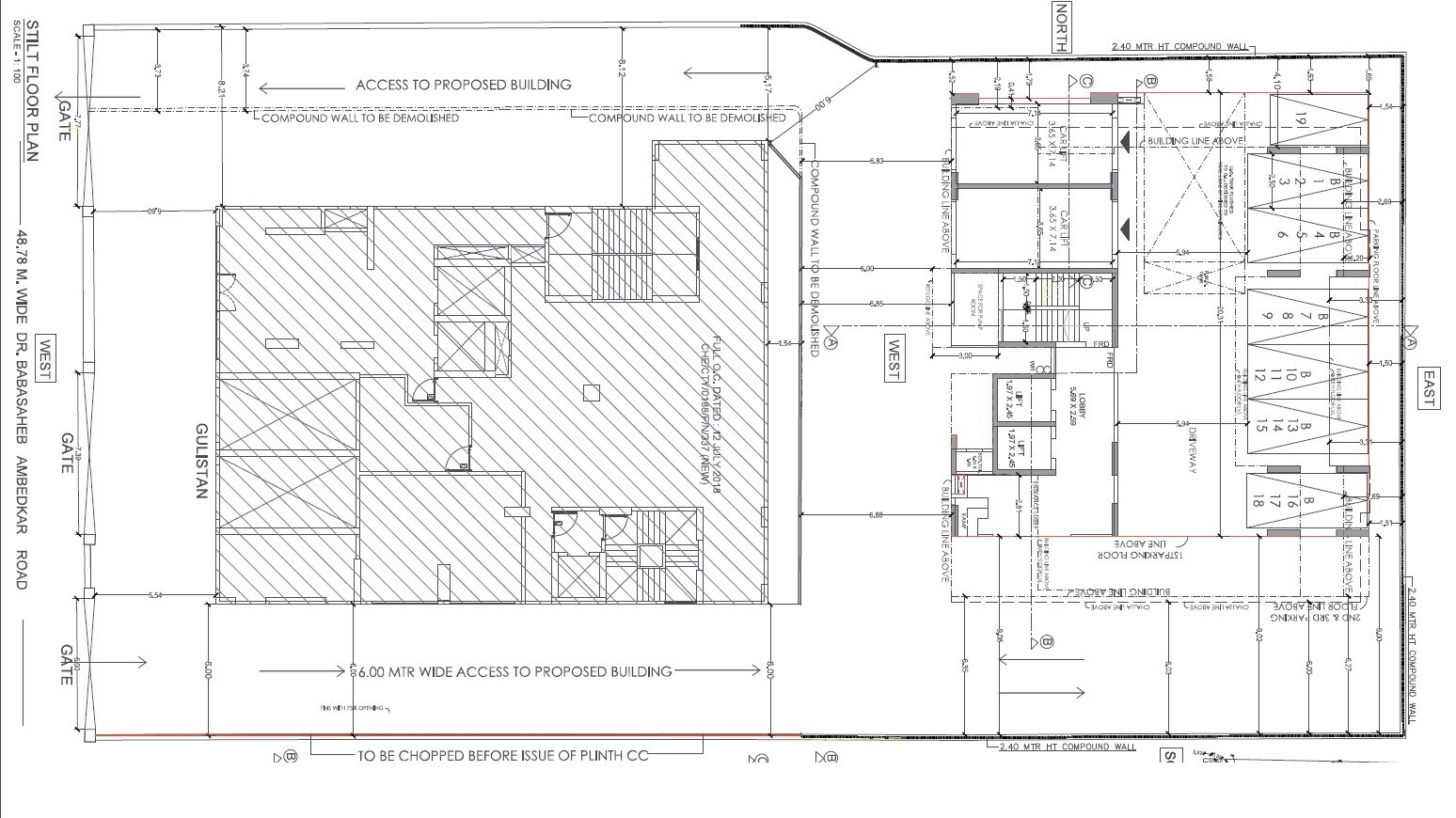
Ekta Vistabella, located in Matunga East, offers a well-planned stilt floor for parking and essential services. This stilt floor plan, scaled at 1:100, is part of a larger proposed building. The project has received its Full Occupancy Certificate (O.C.) on July 12, 2018. Its strategic location is further enhanced by its proximity to the Eastern Express Highway (0.1 km) and Rafi Ahmed Kidwai Marg (1.0 km).
This stilt floor plan primarily depicts areas designated for vehicular parking, building access, and essential services. It includes specific allocations for a lobby, a pump room, and vertical transportation systems such as car and passenger lifts within the building's footprint. The plan does not provide details on the total land area, overall unit count, or units per acre.
| Master Bedroom-Walls | Oil Bound Distemper |
| Master Bedroom-Flooring | Vitrified Tiles |
| Other Bedrooms-Flooring | Vitrified Tiles |
| Walls | Oil Bound Distemper |
| Living Area-Flooring | Vitrified Tiles |
| Structure | RCC Frame Structure |
| Schools Near by Ekta Vistabella | |
|---|---|
| J.b. Vachha High School For Girls | 0.27 KM |
| Indian Education Society Orion | 0.27 KM |
| I.e.s. Digambar Patkar Vidyalaya | 0.29 KM |
| I.e.s.v.n.sule Guruji English Medium Secondary School | 0.30 KM |
| Peoples Education Societys Secondary English Medium School | 0.30 KM |
| I.e.s.padmakar Dhamdhere English Medium Primary School | 0.33 KM |
| The Dadar Parsee Youths Assembly High School | 0.38 KM |
| Shishuvihar Madhyamik Vidhyala | 0.40 KM |
| Tarabai Modak Pre Primary English Medium School | 0.41 KM |
| Auxilium Convent High School | 0.55 KM |
| Bus Stops Near by Ekta Vistabella | |
|---|---|
| Kharghat Road | 0.14 KM |
| Dadar Tt Circle | 0.20 KM |
| Ruia College (matunga-e) | 0.21 KM |
| Dadar Workshop | 0.21 KM |
| Ruia College Bus Stop | 0.22 KM |
| Dadar (e) Tt Circle | 0.28 KM |
| Dadar Tt | 0.28 KM |
| Dadar Workshop - Khodadad Circle | 0.31 KM |
| Ruia College | 0.35 KM |
| Raja Shivaji High School | 0.37 KM |
| Hospitals Near by Ekta Vistabella | |
|---|---|
| Pai Hospital | 0.31 KM |
| Bnd Onco Center - Specialised Cancer Centre | 0.38 KM |
| Delight Women's Hospital - Ivf Centre|best Female Gynaecologist Hospital|maternity Hospital|infertil | 0.70 KM |
| Symbiosis Speciality Hospital | 0.75 KM |
| Acworth Municipal Hospital For Leprosy | 0.93 KM |
| Sobti Hospital | 0.96 KM |
| Aditya Jyot Eye Hospital | Unit Of Dr Agarwals Eye Hospital | 0.97 KM |
| Dhanwantari Hospital & Research Centre | 1.09 KM |
| Tb Hospital | 1.15 KM |
| Thakur Hospital | 1.21 KM |
| Restaurants Near by Ekta Vistabella | |
|---|---|
| Pritam Da Dhaba | 0.51 KM |
| Mrp - My Regular Place | 0.53 KM |
| Rasoi | 0.60 KM |
| Hotel Rishi | 0.62 KM |
| Great Punjab | 0.77 KM |
| Durga Restaurant And Bar | 0.79 KM |
| Trupti | 0.85 KM |
| The Yellow Chilli | 0.91 KM |
| Gomantak | 0.91 KM |
| D.p's | 1.00 KM |
| College and Universities Near by Ekta Vistabella | |
|---|---|
| Dadar Athornan Institute | 0.42 KM |
| Icar-central Institute For Research On Cotton Technology (circot) | 0.52 KM |
| Dr. Babasaheb Ambedkar College Of Arts | 0.57 KM |
| R A Podar College Of Commerce & Economics | 0.58 KM |
| Dr.ambedkar College Of Commerce & Economics | 0.60 KM |
| Welingkar Institute Of Management Development And Research | 0.61 KM |
| Computer Engineering & Information Technology Dept. Vjti. | 0.68 KM |
| Zarapkar College | 0.69 KM |
| St. John College | 0.70 KM |
| Veermata Jijabai Technological Institute | 0.72 KM |
| Clinics Near by Ekta Vistabella | |
|---|---|
| Gangar Eyenation - Dadar | 0.26 KM |
| Sujyot Heart Clinic | 0.42 KM |
| Titan Eye+ At Dadar | 0.79 KM |
| Lenskart.com At Dadar | 1.00 KM |
| Deepak Digital Portable X-ray & Ecg Services | 1.07 KM |
| Vein Clinic | 1.09 KM |
| Titan Eye+ At Dadar Sena Bhavan | 1.17 KM |
| Sabka Dentist Dadar West | 1.29 KM |
| Edoctorsahab | 1.30 KM |
| Agilus Diagnostics Dr. Phadke Labs - Mahim West | 1.39 KM |
| Gym Fitness Near by Ekta Vistabella | |
|---|---|
| Total Sports & Fitness Dadar | 0.22 KM |
| Free Open Gym - Five Gardens | 0.46 KM |
| Sparnod Fitness Equipment | 0.90 KM |
| Elon Fitness - Available On Cult.fit - Gyms In Wadala | 0.90 KM |
| Talwalkars Gym Wadala | 0.93 KM |
| Colosseum Gym | 1.04 KM |
| Smartflex Fitness | 1.20 KM |
| Vfitness Gym | 1.25 KM |
| My Fitness Club Dadar | 1.42 KM |
| 10 Gym | 1.46 KM |
| Clothings Near by Ekta Vistabella | |
|---|---|
| Fabindia | 0.35 KM |
| Manyavar | 0.91 KM |
| Beautiful - Matunga | 0.95 KM |
| Westside - Kohinoor Square | 1.12 KM |
| Anmol Mobile And Electronic | 1.50 KM |
| Retail Mills Cloth Stores | 1.83 KM |
| Rynox Exclusive Store | 1.83 KM |
| Sameer Collection | 2.39 KM |
| Decathlon Sports Prabhadevi | 2.59 KM |
| Z-bat Clinic | 2.71 KM |
| Temples Near by Ekta Vistabella | |
|---|---|
| Albela Hanuman Mandir | 0.44 KM |
| Baps Shri Swaminarayan Mandir | 0.62 KM |
| The Asthika Samaj Kochu Guruvayoor Sree Ram Mandir | 0.99 KM |
| Shri Shantinath Bhagwan Shwetambar Jain Temple | 1.02 KM |
| Shri Saath Aasra Manmala Devi Mandir | 1.24 KM |
| Shree Siddhivinayak Temple | 2.07 KM |
| Ravindra Natya Mandir | 2.08 KM |
| Baradevi Temple | 2.10 KM |
| Prabhadevi Mandir | 2.44 KM |
| Kali Mata Mandir | 2.49 KM |
| Home Decors Near by Ekta Vistabella | |
|---|---|
| Royale Touche Laminates | 1.58 KM |
| Vagmi - Vaibhav Enterprises ~ Vitra Furniture Showroom Mumbai | 1.70 KM |
| Vlite Furnitech - Modular Office Furniture Manufacturer In Mumbai | 1.87 KM |
| Sai Furniture | 2.11 KM |
| Malaikafurnishing - Sleepwell Mattresses - Ddecor - Curtains - Blinds - Wallpapers - Sofa - Upholste | 2.11 KM |
| Sleepwell Mattress Exclusive Dealer - Exclusive Premium Luxury Mattress Showroom And Shop In Mumbai | 2.12 KM |
| Springwel Mattress Store | 2.33 KM |
| Marshalls Wallcoverings | 2.34 KM |
| Exclusive Dealer(nensey Furnishing & Mattresses) At Ganesh Housing Society | 2.59 KM |
| Arihant Mattress And Furniture | 2.85 KM |
Check Travel Time
Connecting Roads - Ekta Vistabella
Ekta World is one of the best real estate companies in Mumbai. The real estate company was established in 1987. They have a reputation for building innovative and luxurious buildings in India. They are devoted to transforming local landscapes with global lifestyles. They aim to make living experiences refreshing and authentic while positively impacting the society we live in. The company aims to bring smiles globally by enhancing lifestyles through
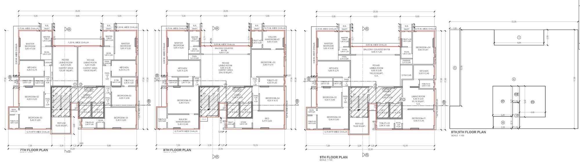
Ekta Vistabella features 2 BHK (658 sq ft) and two configurations of 3 BHK (1,197 & 1,259 sq ft carpet) floor plans.
Constructed with RCC frame, vitrified flooring, oil-bound distemper walls, and branded fittings.
Comprises basic comforts: 24×7 water & power backup, high-speed lifts, CCTV & security, kids' sandpit, indoor games, yoga zone, jogging & cycle track, and landscaped central greens.
Located in proximity to Matunga East railway station, close to the Western and Central lines; walking distance from premier schools (J. B. Vachha), hospitals (Pai Hospital), temples, food centers, and Dadar Circle.
This website is only for the purpose of providing information regarding real estate projects in different geographies. Any information which is being provided on this website is not an advertisement or a solicitation. The company has not verified the information and the compliances of the projects. Further, the company has not checked the RERA* registration status of the real estate projects listed herein. The company does not make any representation in regards to the compliances done against these projects. Please note that you should make yourself aware about the RERA* registration status of the listed real estate projects.
*Real Estate (regulation & development) act 2016.