Average Asking Price of Properties in Dhanori is around ₹ 9,350 /Sq.ft

100% Service, 0% Brokerage
Highly unlikely, but if you find a lower price anywhere, tell us and we will match it.
Our sales personnel are accountable for every step
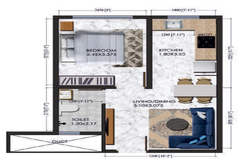
There is no information visible in the provided master plan regarding the total land area, number of units, number of towers, or project launch and completion dates for Xrbia Singa Dhanori Phase 3.
The master plan clearly designates significant portions for residential blocks, complemented by extensive green spaces and amenity zones. It integrates areas for organic gardening and urban farming, reflecting a focus on sustainable living, alongside a variety of recreational and social facilities distributed across three distinct development phases.
| Master Bedroom-Walls | Acrylic Emulsion |
| Master Bedroom-Flooring | Vitrified Tiles |
| Other Bedrooms-Flooring | Vitrified Tiles |
| Walls | Acrylic Emulsion |
| Living Area-Flooring | Vitrified Tiles |
| Structure | RCC Frame Structure |
| Schools Near by Xrbia Singa Dhanori Phase 3 | |
|---|---|
| D Y Patil International School | 0.45 KM |
| Dr. Mar Theophilus School | 1.92 KM |
| Aarambh Public School | 2.12 KM |
| Isabellas International School | 2.14 KM |
| Jagadguru International School | 2.41 KM |
| Neuron Labs School - Cbse Centre Dhanori | 2.71 KM |
| Bridge Blooming School | 2.73 KM |
| Pragatti International Schools- Best School In Dhanori | 2.76 KM |
| Proxima International School | 2.78 KM |
| Jj English Medium School | 2.89 KM |
| Bus Stops Near by Xrbia Singa Dhanori Phase 3 | |
|---|---|
| D.y. Patil Vidhypith | 0.44 KM |
| Ajinkya Dy Patil Vidyapeeth Lohgaon | 0.44 KM |
| Park Spring Society | 0.89 KM |
| Pride World City Lohgaon | 1.02 KM |
| Pride Ashiyana Society | 1.06 KM |
| Ajinkya D.y.patil College Lohgaon | 1.35 KM |
| Jijau Chowk | 1.79 KM |
| Jagatguru Chowk | 2.07 KM |
| Kamal Park | 2.31 KM |
| Dhanori Jakat Naka | 2.38 KM |
| Hospitals Near by Xrbia Singa Dhanori Phase 3 | |
|---|---|
| Orchid Speciality Hospital | 2.04 KM |
| Vimal Multispeciality Hospital & Research Centre | 2.36 KM |
| Shreekalyani Hospital | 2.36 KM |
| Sparsh Orthopaedic & General Hospital | 2.39 KM |
| Ct Nursing Home | 2.50 KM |
| Gangotri Hospital | 3.21 KM |
| Bapat Multi-speciality Hospital | 3.28 KM |
| Dhavan Hospital | 3.44 KM |
| Charu Eye Hospital | 3.49 KM |
| Dighi Multispeciality Hospital | Orthopedic | Eye | Harnia | Gynaec | Surgery Hospital In Dighi | 3.49 KM |
| Clinics Near by Xrbia Singa Dhanori Phase 3 | |
|---|---|
| Nextcare Dental Clinic | 0.71 KM |
| Nutrihit Health Plus | 0.72 KM |
| Dr. Bathe's Ayurvidhi Clinic - Ayurvedic & Panchakarma Clinic | 0.73 KM |
| Dr Varsha's Homoeopathic Clinic | 0.94 KM |
| Opal Dental & Implant Clinic | 0.98 KM |
| Novacure Dentistry | 1.17 KM |
| Thyrocare Pathology Services Dhanori Porwal Road | 1.30 KM |
| Pathkind Labs | 1.49 KM |
| Titan Eye+ Dhanori | 1.62 KM |
| Mothers Bliss |dr Swati Pullewar | Gynaecologist-ivf Specialist(iui Centre) Dhanori | 1.65 KM |
| Gym Fitness Near by Xrbia Singa Dhanori Phase 3 | |
|---|---|
| Fitness Mantras Porwal Branch | 0.71 KM |
| Power X Gym | 1.08 KM |
| The Muscle Studio | 1.21 KM |
| Fitworld | 1.42 KM |
| Ample Fitness Center | 1.49 KM |
| Physique Elite Gym Pvt Ltd | 1.55 KM |
| Fitness Mantras Porwal 2nd Branch | 1.60 KM |
| Sunshine Fitness Clubb | 1.60 KM |
| All Time Fitness Gym | 1.91 KM |
| Fitniq Gym | 2.19 KM |
| Restaurants Near by Xrbia Singa Dhanori Phase 3 | |
|---|---|
| Chulbul Dhaba | 2.40 KM |
| Zaika Caterers & Restaurants | 2.40 KM |
| Vimanzza Cafe | 5.29 KM |
| The Mafia | 5.58 KM |
| Where Else Diner | 5.60 KM |
| Largo Pizzeria | 5.65 KM |
| Perks N Brews | 5.68 KM |
| Lazeez By Hyderabadi Delicacies | 5.70 KM |
| Farmaaish | 5.87 KM |
| Chaats And Wraps | 5.90 KM |
| College and Universities Near by Xrbia Singa Dhanori Phase 3 | |
|---|---|
| Dr D Y Patil School Of Architecture | 0.43 KM |
| D Y Patil Dental School | 0.47 KM |
| Ajeenkya Dy Patil School Of Engineering | 0.50 KM |
| D Y Patil School Of Management | 0.52 KM |
| Dr D Y Patil Technical Campus | 0.61 KM |
| D.y.patil School Of Mca | 0.64 KM |
| Dypdc Center For Automotive Research And Studies | 0.64 KM |
| Ajeenkya Dy Patil University | 0.66 KM |
| School Of Hotel Management | 0.68 KM |
| Marathwada Mitra Mandal's Institute Of Technology | 3.62 KM |
| Temples Near by Xrbia Singa Dhanori Phase 3 | |
|---|---|
| Shree Aranyeshwar Ganesh Mandir | 0.79 KM |
| Pirsaheb Mandir | 1.09 KM |
| Amruteshwar Mahadev Mandir | 1.18 KM |
| Khandoba Temple | 1.49 KM |
| Shree Swami Samarth Maharaj Mandir | 2.15 KM |
| Shiv Temple And Datta Mandir | 2.31 KM |
| Shri Dattatraya Temple | 2.38 KM |
| Vitthal Maruti Mandir | 2.45 KM |
| Shree Vitthal Rukhmini Mandir | 2.63 KM |
| Uttareshwer Temple | 2.85 KM |
| Supermarkets Near by Xrbia Singa Dhanori Phase 3 | |
|---|---|
| Diamond Food Bazzar | Qualitail | 1.29 KM |
| Smart Point | 1.41 KM |
| Gaurav Fresh Mart | Qualitail | 1.52 KM |
| Market Point Food Bazaar | 1.86 KM |
| Pooja Super Market | 2.12 KM |
| Krishna Mart | 2.23 KM |
| Sf Mart | 2.33 KM |
| Royal Mart | 2.34 KM |
| Megha Super Market | 2.72 KM |
| H Mart | Qualitail | 2.89 KM |
| Clothings Near by Xrbia Singa Dhanori Phase 3 | |
|---|---|
| Zudio - Lohegaon | 1.41 KM |
| Gini And Jony | 2.37 KM |
| Zivame (dhanori | 2.37 KM |
| Go Colors - Dhanore | 2.38 KM |
| Cottonking Dighi | 3.52 KM |
| Mufti | 4.34 KM |
| Da Milano Italia | 4.34 KM |
| Zudio - Aero Mall | 4.49 KM |
| Go Colors Store - Aero Mall | 4.52 KM |
| C' Lai Word | 4.99 KM |
Check Travel Time
Connecting Roads - Xrbia Singa Dhanori Phase 3
Dhanori is a rapidly developing neighbourhood of Pune. It is located on the northeast periphery of the city. Away from the saturated city centre, this residential cum industrial area draws the attention of home seekers and investors alike. With well-developed residential complexes nestled in the lap of nature, Dhanori promises an awesome living experience to the residents. The neighbourhood is bound by Khandwa Nagar in the east, Nimbalkar Nagar in the
Founded in 2012, Xrbia Developers has quickly become one of the best real estate companies in Pune and Mumbai with its affordable and sustainable properties. The company began with a vision of building 100 future-ready cities' by 2030. Today, it is developing and selling 2,000 quality houses monthly to manage India's rising demand for affordable housing. The company has won numerous awards and recognitions for its work in the real
This website is only for the purpose of providing information regarding real estate projects in different geographies. Any information which is being provided on this website is not an advertisement or a solicitation. The company has not verified the information and the compliances of the projects. Further, the company has not checked the RERA* registration status of the real estate projects listed herein. The company does not make any representation in regards to the compliances done against these projects. Please note that you should make yourself aware about the RERA* registration status of the listed real estate projects.
*Real Estate (regulation & development) act 2016.