A total of 33 residential transactions has been registered so far for Yashada Vivanta Vantage Twenty One, amounting to ₹ 48 Cr till November 2025.

Own this home with EMIs starting at ₹ 87.11 K/month - Check Cibil Linked Loan Estimate
A total of 33 residential transactions has been registered so far for Yashada Vivanta Vantage Twenty One, amounting to ₹ 48 Cr till November 2025.
During Q2'2025, average property prices for Yashada Vivanta Vantage Twenty One moved from ₹ 16,950/sqft to ₹ 17,200/sqft, reflecting a 1.47% rise.
During Q1'2025, average property prices for Yashada Vivanta Vantage Twenty One moved from ₹ 15,500/sqft to ₹ 16,950/sqft, reflecting a 9.35% rise.
Structural Works reach 95% completion, External Works has reached 93%, Internal finishing stands at 91%, MEP Services including lift and staircases, are now 92% done.
A total of 328 out of 398 launched units have been booked as of November 2024, including 57% of OFFICE SPACE(67 out of 117 units), 92% of 4 BHK(22 out of 24 units), 98% of 3 BHK(177 out of 181 units), 83% of 2 BHK(62 out of 75 units).
A total of 301 out of 398 launched units have been booked as of October 2024, including 34% of OFFICE SPACE(40 out of 117 units), 92% of 4 BHK(22 out of 24 units), 98% of 3 BHK(177 out of 181 units), 83% of 2 BHK(62 out of 75 units).
A total of 301 out of 398 launched units have been booked as of May 2024, including 34% of OFFICE SPACE(40 out of 117 units), 92% of 4 BHK(22 out of 24 units), 98% of 3 BHK(177 out of 181 units), 83% of 2 BHK(62 out of 75 units).
External Works has reached 83%, Internal finishing stands at 85%, MEP Services including lift and staircases, are now 82% done.
Structural Works reach 94% completion, External Works has reached 63%, Internal finishing stands at 54%, MEP Services including lift and staircases, are now 49% done.
Internal finishing stands at 40%.
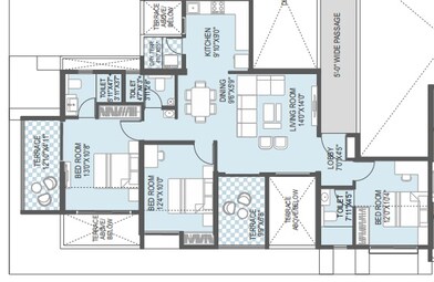
As the builder of Yashada Vivanta Vantage Twenty One, located in Pimpri, this master plan gives you a clear overview of our community. While specific details on total land area, number of units, or exact timelines aren't visible in this particular overview, it provides a comprehensive look at the thoughtful layout and amenities we offer.
The master plan distinctly shows our residential building, segmented into blocks A, B, and C, centrally located within ample green spaces. These extensive open areas are designed for leisure and active recreation, effectively balancing built-up and natural environments. A main road runs adjacent to the property, ensuring direct access.
| Master Bedroom-Walls | Acrylic Emulsion |
| Master Bedroom-Flooring | Vitrified Tiles |
| Other Bedrooms-Flooring | Vitrified Tiles |
| Walls | Acrylic Emulsion |
| Living Area-Flooring | Vitrified Tiles |
| Bathroom | Exhaust Fan |
| Structure | RCC Frame Structure |
| Schools Near by Yashada Vivanta Vantage Twenty One | |
|---|---|
| P.k International English School | 0.16 KM |
| Challenger Public School - Pimple Saudagar | 0.26 KM |
| Rose Kids International | 0.39 KM |
| G K Gurukul | 0.52 KM |
| New City Pride School | 0.63 KM |
| The Raika School Pimple Saudagar | 0.65 KM |
| Shanti Juniors Katevasti Pimple Saudagar | 0.73 KM |
| Modern Public School | 0.75 KM |
| Pcmc Annasaheb Magar Secondary High School | 0.82 KM |
| Vibgyor Rise Cbse School Pimple Saudagar Pune | 0.86 KM |
| Bus Stops Near by Yashada Vivanta Vantage Twenty One | |
|---|---|
| Rose Land / Nisarg Nirmiti Society | 0.25 KM |
| Vishwa Shanti Colony / Pk Chowk | 0.35 KM |
| Roseland Residency Dutta Mandir | 0.35 KM |
| Rose Icon Society | 0.50 KM |
| Zinger Planet Millennium | 0.54 KM |
| Sindhupark Society | 0.58 KM |
| Govind Garden / Sukhwani Lawns | 0.60 KM |
| Kunal Icon Society | 0.62 KM |
| Kokane Chowk / Pimple Saudagar | 0.63 KM |
| Kokane Chowk | 0.64 KM |
| Hospitals Near by Yashada Vivanta Vantage Twenty One | |
|---|---|
| Lotus Multi-specialty Hospital | 0.40 KM |
| Vithai | 0.41 KM |
| Ayushmaan Ayurved Hospital & Panchakarma Center | 0.43 KM |
| Onp Leela Hospital | 0.45 KM |
| Siddhivinayak Eyecare & Research Institute | 0.48 KM |
| Galaxy Hospital | 0.48 KM |
| Nandadeep Seri Eye Hospital | 0.49 KM |
| Rhythm Maternity Hospital | 0.49 KM |
| Cloudnine Hospital- Pimple Saudagar | 0.51 KM |
| Synergy Heart & Multispeciality Hospital | 0.55 KM |
| Clinics Near by Yashada Vivanta Vantage Twenty One | |
|---|---|
| Vitalife Clinic Pimple Saudagar - Multispecialty Clinic | Pathology Lab | Sonography Centre | 0.45 KM |
| Anas Sheikh Hair Solution | Hair Patch Pune | Hair Transplant In Pune | Hair Extension In Pune | 0.59 KM |
| Lenskart.com At Samrat Nagar Pimple Saudagar | 0.59 KM |
| Excell Speciality Hospital | Dr. Jagdish Patil | Orthopaedic Spine & Joint Surgeon | 0.78 KM |
| Hairmd - Hair Loss Treatment & Transplant Clinic - Pimple Saudagar | 0.88 KM |
| Clear Skin - Laser Skin And Hair Clinic - Pimple Saudagar | 0.91 KM |
| Pune Aesthetic Skin And Hair Clinic | 0.95 KM |
| Advika Ent Clinic-best Ent Clinic In Pimple Saudagar | 1.36 KM |
| Avishkar Neurosurgery And Dental Clinic | 1.45 KM |
| Shivshree Clinic-dr.vivek Yadav | 1.88 KM |
| Restaurants Near by Yashada Vivanta Vantage Twenty One | |
|---|---|
| Pasco - An Epitome Of Wine & Dine | 0.34 KM |
| Lollapalooza | 0.49 KM |
| Bay Leaf Bistro | 0.50 KM |
| Govind Garden | 0.60 KM |
| K9 The Coast Line | 0.61 KM |
| Rhythm Rooftop Kitchen & Bar | 0.61 KM |
| Kimling Rush | 0.65 KM |
| Golden Chopsticx | 0.65 KM |
| Shaolin | 0.67 KM |
| Barrio Roof Top Kitchen And Bar | 0.78 KM |
| Gym Fitness Near by Yashada Vivanta Vantage Twenty One | |
|---|---|
| Mahantt Fittnesss | 0.36 KM |
| Fitness Hub | 0.44 KM |
| Solaris Pimple Saudagar | 0.45 KM |
| Indian Fitness Club Pimple Saudagar | 0.61 KM |
| Gold's Gym Pimple Saudagar | 0.65 KM |
| S-square Fitness Club | 0.76 KM |
| Arogyaraksha Yoga Pune | 0.94 KM |
| Multifit - Available On Cult.fit | Gyms In Pimple Saudagar | 1.13 KM |
| Rsf Fitness Club | 1.35 KM |
| Fitness Naturo - Best Nutrition And Dietician Center In Pimpri-chinchwad | 1.90 KM |
| College and Universities Near by Yashada Vivanta Vantage Twenty One | |
|---|---|
| Rayat Shikshan Sanstha's Mahatma Phule Mahavidyalaya | 1.74 KM |
| National College Of Fine Art | 1.99 KM |
| Marathwada Mitra Mandal's College Of Pharmacy | 2.41 KM |
| Manghanmal Udharam College Of Commerce | 2.42 KM |
| Marathwada Mitra Mandal's Polytechnic | 2.45 KM |
| Baburaoji Gholap College | 2.50 KM |
| Arya Samaj Vidyalaya | 2.86 KM |
| A. P. J. College Of Science And Commerce. | 2.95 KM |
| Parmanand College Of Fire Engineering And Safety Management | 3.06 KM |
| Dnyansagar Arts & Commerce College | 3.58 KM |
| Temples Near by Yashada Vivanta Vantage Twenty One | |
|---|---|
| Shri Charbhuja Mandir Vishnu Dham(vishnu Temple) | 1.57 KM |
| Iskcon Bcec (bhakti Center For Education & Culture) | 2.15 KM |
| Shree Krishna Temple Jawalkar Nagar | 2.28 KM |
| Durga Mata Mandir | 2.40 KM |
| Vaishno Devi Mata Mandir | 2.55 KM |
| Hanuman And Shani Mandir | 2.63 KM |
| Viththl Rukmini Mmdir | 2.83 KM |
| Lal Mandir | 2.94 KM |
| Shree 1008 Chandaprabhu Digambar Jain Mandir Wakad (new Location) | 3.31 KM |
| Shiva Mandir Shree Mahakaleshwar Mandir | 3.38 KM |
| Supermarkets Near by Yashada Vivanta Vantage Twenty One | |
|---|---|
| K.mart | 2.14 KM |
| Tirathdas Grocery Shop | 2.35 KM |
| Sahyadri Bazaar | 2.40 KM |
| Star Market | 2.45 KM |
| Shyam Sunder Mart | 2.52 KM |
| Ashtavinayak Super Mart | 2.53 KM |
| United Mart | 2.95 KM |
| T Mart | 3.03 KM |
| Poonam Super Shopee | Qualitail | 3.20 KM |
| New R Mart | 3.30 KM |
| Clothings Near by Yashada Vivanta Vantage Twenty One | |
|---|---|
| Pantaloons (gk Mall | 0.10 KM |
| Westside - Gk Mall | 0.12 KM |
| Zudio Pimple Nilakh | 2.22 KM |
| Sanskruti Lawns (sanskriti Mangal Karyalay) | 2.80 KM |
| Me N Moms Baby Care & Kids Store In Wakad | 2.85 KM |
| Firstcry.com Store Pune Wakad | 2.86 KM |
| Zudio - Wakad | 3.48 KM |
| Blackberrys | 3.53 KM |
| Firstcry.com Store Pune Aundh | 3.56 KM |
| Me N Moms Baby Care & Kids Store In Aundh Pune | 3.56 KM |
Check Travel Time
Connecting Roads - Yashada Vivanta Vantage Twenty One
Pimpri, blessed with rich culture and history, is an affluent neighborhood in the northwestern city limits of Pune, India. It was the birthplace of legendary freedom fighters like the Chapekar Brothers. The Maharashtra Industrial Development Corporation (MIDC) also has its base in Bhosari. What is Great About Pimpri? One of the most important things that make Pimpri great is the infrastructure. It is one of the most developed places in Pune. The
Properties in Yashada Vivanta Vantage Twenty One & Top Sellers
This website is only for the purpose of providing information regarding real estate projects in different geographies. Any information which is being provided on this website is not an advertisement or a solicitation. The company has not verified the information and the compliances of the projects. Further, the company has not checked the RERA* registration status of the real estate projects listed herein. The company does not make any representation in regards to the compliances done against these projects. Please note that you should make yourself aware about the RERA* registration status of the listed real estate projects.
*Real Estate (regulation & development) act 2016.