A total of 20 residential transactions has been registered so far for Krishna Sai Mangalam, amounting to ₹ 13 Cr till October 2025.

            100% Service, 0% Brokerage
Highly unlikely, but if you find a lower price anywhere, tell us and we will match it.
Our sales personnel are accountable for every step
Own this home with EMIs starting at ₹ 65.95 K/month - Check Cibil Linked Loan Estimate
A total of 20 residential transactions has been registered so far for Krishna Sai Mangalam, amounting to ₹ 13 Cr till October 2025.
During Q3'2025, average property prices for Krishna Sai Mangalam moved from ₹ 6,350/sqft to ₹ 6,500/sqft, reflecting a 2.36% rise.
During Q1'2025, average property prices for Krishna Sai Mangalam moved from ₹ 7,750/sqft to ₹ 10,550/sqft, reflecting a 36.13% rise.
External Works has reached 50%, Internal finishing stands at 25%.
A total of 25 out of 58 launched units have been booked as of October 2024, including 38% of 3 BHK(10 out of 26 units), 58% of 2 BHK(15 out of 26 units).
Structural Works reach 65% completion, External Works has reached 25%, Internal finishing stands at 13%.
A total of 25 out of 58 launched units have been booked as of March 2024, including 38% of 3 BHK(10 out of 26 units), 58% of 2 BHK(15 out of 26 units).
Structural Works reach 50% completion.
Structural Works reach 46% completion.
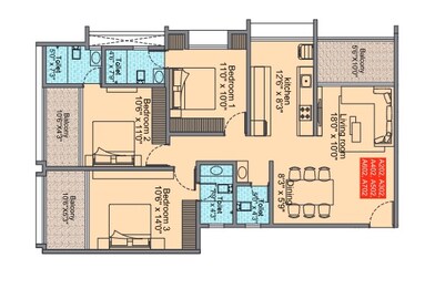
SAI MANGALAM, developed by Krishna Rama Developer, officially launched on 03-Feb-2022 and expected to complete by 31-Dec-2027. Registered under RERA No. P52100033019. The project comprises 2 towers and offers 58 residential units, including SHOP, 2 BHK, 3 BHK, 4 BHK, with unit sizes ranging from 570 to 1518 Square feet across a total area of 0.37 Acre.
| Master Bedroom-Walls | Oil Bound Distemper | 
| Master Bedroom-Flooring | Vitrified Tiles | 
| Other Bedrooms-Flooring | Vitrified Tiles | 
| Walls | Oil Bound Distemper | 
| Living Area-Flooring | Vitrified Tiles | 
| Structure | RCC Frame Structure | 
| Schools Near by Krishna Sai Mangalam | |
|---|---|
| Beacon High School | 0.58 KM | 
| Abhinav Vidyalay | 0.83 KM | 
| Sri Sri Ravishankar Vidya Mandir (ssrvm) | 1.11 KM | 
| Impact English Medium School & Junior College | 1.43 KM | 
| Dheeraj International School | 1.63 KM | 
| My School Italy | Purna Nagar | 1.69 KM | 
| Abhishek Arts | 1.75 KM | 
| Abhishek Vidyalayam | 1.76 KM | 
| Wisdom International School | 1.85 KM | 
| Vh English Medium School | 1.91 KM | 
| Bus Stops Near by Krishna Sai Mangalam | |
|---|---|
| Tata Gate | 0.28 KM | 
| Tata Material Gate | 0.28 KM | 
| Cng Pump Corner | 0.31 KM | 
| Richwood Society | 0.42 KM | 
| Savitribai Phule Chowk | 0.48 KM | 
| Tulsi Landmark | 0.67 KM | 
| Savata Mali Mandir | 0.85 KM | 
| Jadhavwadi Chikhali | 0.99 KM | 
| Shri Ganesh Chowk | 1.15 KM | 
| Khandewasti Chowk Spine Road | 1.18 KM | 
| Hospitals Near by Krishna Sai Mangalam | |
|---|---|
| Venus Women's Hospital | 0.22 KM | 
| Dhanvantari General And Pediatric Hospital | 0.85 KM | 
| Star Speciality Hospital | 1.37 KM | 
| Siddhivinayak Hospital | 1.51 KM | 
| Vithai Piles Hopital | 1.57 KM | 
| Sevadharam Multispeciality Hospital | 1.66 KM | 
| Yashshree Hospital | 1.71 KM | 
| Care&cure Multi-speciality Hospital | 1.73 KM | 
| Vindhya Grace Hospital | 1.77 KM | 
| Wagaj Homeopathic Hospital | 1.87 KM | 
| Clinics Near by Krishna Sai Mangalam | |
|---|---|
| Shaishav Child Care Clinic- Dr Pradyumna Ratnakar | 0.70 KM | 
| Lavanya Skin Hair Laser Clinic | 0.85 KM | 
| Goverdhan Cardiodiabetic Clinic | 1.81 KM | 
| Dental Care Multispecialty Clinic | 1.82 KM | 
| Dr. Rizwan Malik's Cardio Diabetic Clinic | 2.07 KM | 
| Nimi Netralay | 2.20 KM | 
| Iris Eye Care | Eye Specialist Moshi | Eye Clinic Moshi | Cataract Surgery | Dr.vasundhara Kulkarni | 2.24 KM | 
| Dr. Vishwajeet Gaikwad Mbbs Md (medicine ) Sunshine Speciality Clinic | 2.25 KM | 
| Lenskart.com At Moshi | 2.26 KM | 
| Dr. Kiran Thorat Mbbs | 2.46 KM | 
| Gym Fitness Near by Krishna Sai Mangalam | |
|---|---|
| Gold's Gym Moshi Pune | 0.55 KM | 
| Pulse Fitness | 0.94 KM | 
| Niyamit Yog | 1.56 KM | 
| Rg Fitness Mantra & Dance Academy | 1.62 KM | 
| Golden's Gym | 1.84 KM | 
| Yc's Powerhouse Gym | 1.95 KM | 
| S3 Fitness Gym (shivtejnagar Branch) | 2.02 KM | 
| K Fitness - Best Gym In Chikhali | 2.19 KM | 
| Samrat Gym | 2.34 KM | 
| Yc's Powerhouse Gym Moshi | 2.52 KM | 
| Temples Near by Krishna Sai Mangalam | |
|---|---|
| Kailas Mansarovar Mandir | 0.87 KM | 
| Trivrks Smgm Dtt Mmdir Datta Mandir | 1.71 KM | 
| Ashtavinayak Ganapati Temple | 1.75 KM | 
| Shri Swami Samarth Temple | 2.07 KM | 
| Shiv Shambho Temple Siv Smbho Mmdir | 2.10 KM | 
| Vaghjai Temple Pune | 2.44 KM | 
| Shree Siddhivinayak Mandir | 2.47 KM | 
| Mohaneshwar Mahadev Mandir | 2.52 KM | 
| Mahalaxmi Or Kalubai Temple | 2.70 KM | 
| Tal Mandir | 2.73 KM | 
| Restaurants Near by Krishna Sai Mangalam | |
|---|---|
| 360 Degree Multicuisine Family Restaurant | 1.95 KM | 
| Reddy's Hyderabadi Biryani | 2.18 KM | 
| Lotus Court Family Resto Bar | 3.81 KM | 
| Little Italy | 4.11 KM | 
| Tiranga Veg Non-veg | 4.34 KM | 
| Hotel Silver Seven | 4.83 KM | 
| Savali | 5.19 KM | 
| Domino's Pizza | 5.24 KM | 
| Deli Belly | 5.76 KM | 
| Mazzedar | 5.79 KM | 
| College and Universities Near by Krishna Sai Mangalam | |
|---|---|
| Coep Technological University Pune (extended Campus) Chikhali Pcmc | 0.34 KM | 
| Csit Junior College | 1.48 KM | 
| Mother's University By Priyanka Kalbhor | 1.92 KM | 
| Dr. D. Y. Patil College Of Computer & Business Studies | 2.02 KM | 
| Dnyanvardhini College Of Arts | 2.10 KM | 
| Dr. D Y Patil Center For Management & Research | 2.36 KM | 
| Siddhi College Of Pharmacy | 2.48 KM | 
| Pes Modern College Of Pharmacy (for Ladies) | 2.49 KM | 
| Sanghvi Keshri Arts | 3.00 KM | 
| Rasiklal M. Dhariwal College Of Pharmacy | 3.00 KM | 
| Supermarkets Near by Krishna Sai Mangalam | |
|---|---|
| Big City Mart | 0.87 KM | 
| M-mart | 1.50 KM | 
| Balaji Super Market | 1.64 KM | 
| Vishvaprit Super Shopee | 2.18 KM | 
| Hanuman Trading Company | 2.22 KM | 
| Hitesh Super Market | 2.37 KM | 
| Mahesh Super Market | 3.05 KM | 
| New Prem Mart | Qualitail | 3.15 KM | 
| Ashirwad Super Market | 3.27 KM | 
| Mahesh Super Market | Qualitail | 3.29 KM | 
| Clothings Near by Krishna Sai Mangalam | |
|---|---|
| Abhivyakti Collection | 1.91 KM | 
| Allen Solly Factory Outlet | 1.95 KM | 
| Peter England Outlet | 1.98 KM | 
| Zudio - Pune | 2.21 KM | 
| Cottonking Moshi | 2.61 KM | 
| Rabit N Turtle Little Hearts World | 2.85 KM | 
| Zudio - Pune | 3.50 KM | 
| Mahindra Nestalgia | 3.83 KM | 
| Taneira Sarees (pimpri | 4.07 KM | 
| Manyavar & Mohey | 4.11 KM | 
Check Travel Time
Connecting Roads - Krishna Sai Mangalam
Pimpri, blessed with rich culture and history, is an affluent neighborhood in the northwestern city limits of Pune, India. It was the birthplace of legendary freedom fighters like the Chapekar Brothers. The Maharashtra Industrial Development Corporation (MIDC) also has its base in Bhosari. What is Great About Pimpri? One of the most important things that make Pimpri great is the infrastructure. It is one of the most developed places in Pune. The
This website is only for the purpose of providing information regarding real estate projects in different geographies. Any information which is being provided on this website is not an advertisement or a solicitation. The company has not verified the information and the compliances of the projects. Further, the company has not checked the RERA* registration status of the real estate projects listed herein. The company does not make any representation in regards to the compliances done against these projects. Please note that you should make yourself aware about the RERA* registration status of the listed real estate projects.
*Real Estate (regulation & development) act 2016.