THE SOUTH BAY Achieves 100% Construction Completion, Ready for Possession.

100% Service, 0% Brokerage
Highly unlikely, but if you find a lower price anywhere, tell us and we will match it.
Our sales personnel are accountable for every step
THE SOUTH BAY Achieves 100% Construction Completion, Ready for Possession.
A total of 1 out of 4 launched units have been booked as of January 2026, including 50% of GRANDE APARTMENT(1 out of 2).
During Q4'2025, average property prices for Mesacon The South Bay moved from ₹ 53,550/sqft to ₹ 54,200/sqft, reflecting a 1.21% rise.
During Q3'2025, average property prices for Mesacon The South Bay moved from ₹ 52,150/sqft to ₹ 53,550/sqft, reflecting a 2.68% rise.
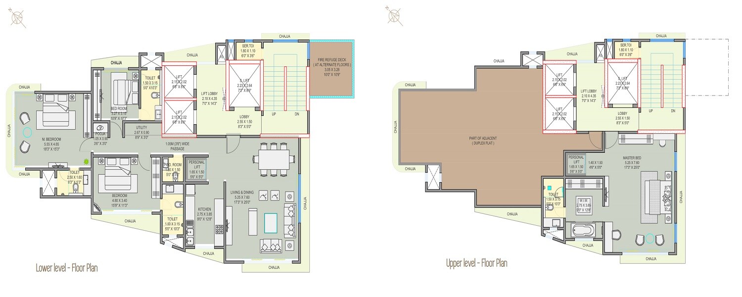
THE SOUTH BAY, developed by MESACON TRIUMPH DEVELOPERS, officially launched on 04-Aug-2017 and expected to complete by 30-Oct-2020. Registered under RERA No. P51900002722. The project comprises 1 towers and offers 4 residential units, including GRANDE APARTMENT, PRESIDENTIAL SUITE, ROYAL SUITE, with unit sizes ranging from 1539 to 2530 Square feet across a total area of 0.15 Acre.
| Master Bedroom-Walls | Acrylic Emulsion |
| Master Bedroom-Flooring | Laminated Wooden |
| Other Bedrooms-Flooring | Vitrified Tiles |
| Walls | Acrylic Emulsion |
| Living Area-Flooring | Vitrified Tiles |
| Bathroom | Shower Panel, Premium Bath Fittings, Exhaust Fan |
| Ceilings | Double height ceiling |
| Structure | RCC Frame Structure |
| Schools Near by Mesacon The South Bay | |
|---|---|
| Sava Sadan Society School | 0.30 KM |
| Queen Mary School | 0.56 KM |
| Edubridge International School | 0.59 KM |
| Villa Theresa High School | 0.77 KM |
| Greenlawns High School | 1.05 KM |
| Gopi Birla Memorial School | 1.10 KM |
| Vanita Vishram High School | 1.13 KM |
| Bai Ruttonbai F D Panday Girls High School | 1.20 KM |
| Nmt Academy School | 1.22 KM |
| St Teresa High School | 1.27 KM |
| Bus Stops Near by Mesacon The South Bay | |
|---|---|
| Gavdevi Police Station | 0.23 KM |
| August Kranti Maidan Bus Stand | 0.37 KM |
| Irani Bridge | 0.51 KM |
| Grant Road Bridge | 0.54 KM |
| Simla House | 0.75 KM |
| Sai Dham Grant Road | 0.77 KM |
| Petrol Pump Maheshwari Mansion | 0.91 KM |
| Novelty Cinema Dr Bhadkamkar Road | 0.95 KM |
| Railway Hotel Charni Road Junction | 1.09 KM |
| Cumbala Hill Post Office | 1.11 KM |
| Hospitals Near by Mesacon The South Bay | |
|---|---|
| Smt Motiben B Dalvi Hospital | 0.17 KM |
| Blue Eyes Hospital | 0.20 KM |
| Ruxmani Hospital | 0.23 KM |
| Gita Nursing Home | 0.24 KM |
| Rukmani Lying In Hospital | 0.24 KM |
| Babulnath Hospital | 0.29 KM |
| Nana Chowk Municipal Dispensary Fire Brigade Compound | 0.37 KM |
| Dr Behram Old Address | 0.40 KM |
| Woman Care Hospital | 0.40 KM |
| Dr Gala Day Care Nursing Home | 0.41 KM |
| ATMs Near by Mesacon The South Bay | |
|---|---|
| Hdfc Bank Atm | 0.02 KM |
| Hdfc Bank Atm | 0.59 KM |
| Axis Bank Atm | 0.79 KM |
| Bankof India Atm | 0.86 KM |
| Dena Bank Atm | 0.91 KM |
| Hdfc Bank Atm | 0.91 KM |
| Bankof India Atm | 0.98 KM |
| Canara Bank Atm | 1.06 KM |
| Hdfc Bank Atm | 1.12 KM |
| Bankof India Atm | 1.13 KM |
| Banks Near by Mesacon The South Bay | |
|---|---|
| Icici Bank | 0.07 KM |
| Sbi Bank | 0.25 KM |
| Bank Of Maharashtra | 0.58 KM |
| Central Bank Of India | 0.60 KM |
| Icici Bank | 0.61 KM |
| Standard Chartered Bank | 0.63 KM |
| Central Bankof India? | 0.79 KM |
| Icici Bank | 0.88 KM |
| Icici Bank | 0.96 KM |
| Kotak Mahindra Bank | 1.11 KM |
| Mosques Near by Mesacon The South Bay | |
|---|---|
| Grant Road Masjid | 0.77 KM |
| Dawoodi Masjid | 1.27 KM |
| Taheri Mosque | 1.35 KM |
| Chota Sonapur Masjid | 1.60 KM |
| Bada Sonapur Masjid | 1.61 KM |
| Muslim Jamat Mosque | 1.64 KM |
| Mangli Kandori Masjid | 1.66 KM |
| Islampura Masjid | 1.77 KM |
| Juma Masjid Bldg | 1.85 KM |
| Baugh E Rehmat Masjid | 1.86 KM |
| Shopping Malls Near by Mesacon The South Bay | |
|---|---|
| Artlivocom Home Decor And Furniture | 0.61 KM |
| Aditya Arcade | 0.90 KM |
| Rajshi Constructions | 0.96 KM |
| Shree Swaminarayan Stores | 1.05 KM |
| Apsara Mall | 1.06 KM |
| Earth Castle Mall | 1.37 KM |
| Rubberwala The Platinum Mall | 1.55 KM |
| Cb Shopping Mall | 1.62 KM |
| Faraka Mandir | 1.73 KM |
| Orchid City Centre Mall | 1.78 KM |
| Post Offices Near by Mesacon The South Bay | |
|---|---|
| R S Vatcha And Co | 0.05 KM |
| Malabar Hill Post Office | 0.16 KM |
| Petroleum And Minerals Ltd | 0.27 KM |
| Gowalia Tank Sub Post Office | 0.39 KM |
| Bharat Nagar Sub Post Office | 0.69 KM |
| Malabar Hill Sub Post Office | 0.74 KM |
| Grant Road Sub Post Office | 0.96 KM |
| Grant Road Post Office | 0.96 KM |
| Tardeo Sub Post Office | 0.98 KM |
| Tradeo Post Office | 0.99 KM |
| Temples Near by Mesacon The South Bay | |
|---|---|
| Sri Sri Radha Gopinath Mandir | 0.24 KM |
| Gamdevi Temple | 0.32 KM |
| New Amrutwadi Ganesh Mandir | 1.22 KM |
| Madhav Baug Mandir | 1.85 KM |
| Venkateshwara Balaji Temple At Fanaswadi ??????? | 1.85 KM |
| Panchamukhi Hanuman & Vitthal Rakhumai Temple | 1.97 KM |
| Shree Swaminarayan Temple | 2.24 KM |
| Walkeshwar Temple | 2.32 KM |
| Shree Mumba Devi Temple | 2.37 KM |
| Markandeshwar Mahadev Mandir | 3.62 KM |
| Colleges and Universities Near by Mesacon The South Bay | |
|---|---|
| Bm Ruia Girls' College | 0.07 KM |
| Bharatiya Vidya Bhavans Hazarimal Somani College Of Arts & Science | 0.32 KM |
| Wilson College | 0.40 KM |
| John Wilson Education Societys | 0.40 KM |
| Yashwantrao Chavan Maharashtra Open University Regional Centre | 0.54 KM |
| Sophia College For Women | 1.14 KM |
| Bes Sant Gadge Maharaj College Of Commerce & Economics | 1.17 KM |
| Kpb Hinduja College Of Commerce | 1.20 KM |
| Nagrik Shikshan Sansthas College Of Commerce & Economics | 1.56 KM |
| Anjuman-i-islams Akbar Peerbhoy College Of Commerce & Economics | 1.71 KM |
Check Travel Time
Connecting Roads - Mesacon The South Bay
Mesacon The South Bay has received its completion and occupancy approvals. With a possession status of Ready to Move, buyers can move in immediately after completing purchase formalities.
Yes, purchasing apartment at Mesacon The South Bay is legally safe, as the project has a possession status of Ready to Move and is registered under RERA with registration number P51900002722. Being a completed development, it significantly reduces construction, delivery, and compliance risks compared to under-construction projects
Mesacon The South Bay enjoys excellent connectivity via Eastern Express Highway, Vallabhabhai Patel Road and is well connected to the Mumbai South area.
Yes, since Mesacon The South Bay is ready and legally compliant, owners can rent out their flats soon after registration. Rental demand is supported by the locality’s ranking of 183 and connectivity indices.
Mesacon The South Bay is located in Malabar Hill, Mumbai, with the complete address being Malabar Hill Mumbai, 400006.
This website is only for the purpose of providing information regarding real estate projects in different geographies. Any information which is being provided on this website is not an advertisement or a solicitation. The company has not verified the information and the compliances of the projects. Further, the company has not checked the RERA* registration status of the real estate projects listed herein. The company does not make any representation in regards to the compliances done against these projects. Please note that you should make yourself aware about the RERA* registration status of the listed real estate projects.
*Real Estate (regulation & development) act 2016.