A total of 5 residential transactions has been registered so far for Rishabraj 63 Gold Medal Avenue, amounting to ₹ 20 Cr till October 2025.

Rishabraj 63 Gold Medal Avenue is a prime commercial property located in Goragaon West, one of the most sought-after locations in Mumbai. Enjoy seamless connectivity to major roads, including Veer Savarkar Rd, Swami Vivekanand Road, and Western Express Highway, making it an ideal spot for businesses to thrive. With a RERA registration number P51800027330, this project is a symbol of transparency and commitment to quality.
Step into the world of luxury retail and office spaces at Rishabraj 63 Gold Medal Avenue. Our commercial property boasts top-notch amenities and specifications to ensure that your business runs smoothly. From kids play areas to sand pits, we have everything to keep your employees happy and focused. Plus, our power backup ensures that your operations dont suffer due to any power outages. With our expertly designed fittings and fixtures, including wardrobes, our commercial spaces are a cut above the rest.
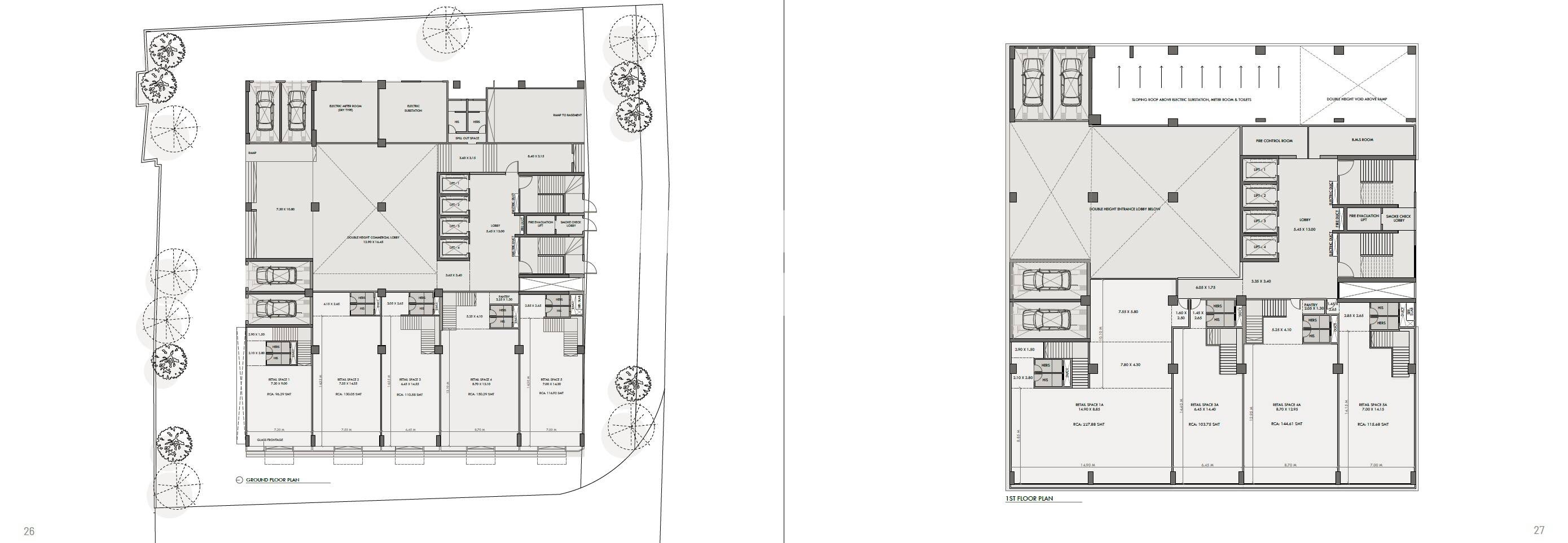
Whether youre looking for a retail shop or office space, Rishabraj 63 Gold Medal Avenue has the perfect option for you. Our available unit options include a range of sizes to suit your specific needs. Take a look at our available unit options below:
Available Unit OptionsThe following table outlines the available unit options at Rishabraj 63 Gold Medal Avenue:
| Unit Type | Area (Sq. Ft.) |
| Retail Shop | 2479 |
| Retail Shop | 3145 |
| Office Space | 3666 |
| Office Space | 10976 |
The commercial property is situated near multiple notable landmarks, making it an attractive option for businesses looking for easy access to essential amenities and services. These landmarks not only provide convenience but also enhance the overall customer experience.
A total of 5 residential transactions has been registered so far for Rishabraj 63 Gold Medal Avenue, amounting to ₹ 20 Cr till October 2025.
External Works has reached 90%, Internal finishing stands at 50%, MEP Services including lift and staircases, are now 90% done.
External Works has reached 85%, Internal finishing stands at 43%, MEP Services including lift and staircases, are now 80% done.
Structural Works reach 100% completion, External Works has reached 80%, Internal finishing stands at 40%, MEP Services including lift and staircases, are now 75% done.
Structural Works reach 98% completion, External Works has reached 70%, Internal finishing stands at 30%, MEP Services including lift and staircases, are now 70% done.
Structural Works reach 96% completion, MEP Services including lift and staircases, are now 38% done.
Structural Works reach 38% completion.
63 GOLDMEDAL AVENUE, developed by RISHABRAJ ESTATE DEVELOPERS PVT LTD, officially launched on 02-Dec-2020 and expected to complete by 30-May-2027. Registered under RERA No. P51800027330. with total area of 0.89 Acre.
| Fittings & Fixtures | Wardrobes, Air Conditioner Fittings |
| Bathroom | Premium Bath Fittings, Exhaust Fan |
| Structure | RCC Frame Structure |
| Schools Near by Rishabraj 63 Gold Medal Avenue | |
|---|---|
| Punarvas Special School - Donate Now! | 0.06 KM |
| Nutan Vidya Mandirs Maharashtra Vidyalaya | 0.37 KM |
| Unnat Nagar Municipal School | 0.42 KM |
| Murarao Rane High School & Junior College | 0.45 KM |
| St. Thomas High School | 0.48 KM |
| Umedbhai Patel High School | 0.51 KM |
| Ib Patel School | 0.64 KM |
| Durgadevi Saraf Junior College | 0.66 KM |
| Sanskar Dham Vidyalaya | 0.70 KM |
| Ramniwas Bajaj English High School | 0.70 KM |
| Bus Stops Near by Rishabraj 63 Gold Medal Avenue | |
|---|---|
| Madina Manzil (malad-w) | 0.17 KM |
| Patkar College (goregaon-w) | 0.21 KM |
| Patkar Mahavidyalaya | 0.28 KM |
| Madina Manzil | 0.36 KM |
| Sundar Nagar (malad-w) | 0.53 KM |
| State Bank (goregaon-w) | 0.58 KM |
| Pandurang Wadi | 0.64 KM |
| Sarvodaya Balika Vidyalaya (malad-w) | 0.68 KM |
| Rajasthani Sammelan Campus | 0.69 KM |
| Filmistan | 0.71 KM |
| Hospitals Near by Rishabraj 63 Gold Medal Avenue | |
|---|---|
| Infinity Multispeciality Hospital | 0.23 KM |
| Shree Sai Clinic | Parvatibai Shankarrao Chavan Hospital & Research Centre | 0.27 KM |
| Lifeline Medicare Hospitals | 0.44 KM |
| Le Nest Hospital | 0.65 KM |
| Goregaon (topiwala) Municipal Maternity Home | 0.66 KM |
| Shilpa Children's Hospital | 0.70 KM |
| Vinay Kumkum Shopping Arcade - Agarwal Group | 0.73 KM |
| Raaj Eye Hospital | 0.78 KM |
| Vishwa Kripa Hospital | 0.78 KM |
| Shreeji Women's Hospital And Ivf Clinic | 0.82 KM |
| Restaurants Near by Rishabraj 63 Gold Medal Avenue | |
|---|---|
| Image | 0.27 KM |
| Goma - Asian Experience | 0.31 KM |
| Boho Bar & Kitchen | 0.40 KM |
| Cafe' Urbana | 0.54 KM |
| The Green Door | 0.56 KM |
| Pizza Caprina | 0.61 KM |
| Lucky Restaurant (since 1938 ) | 0.70 KM |
| Lalit Fine Dine | 0.75 KM |
| Satkar Rice Plate House | 0.75 KM |
| Sai Veg World | 0.79 KM |
| Clinics Near by Rishabraj 63 Gold Medal Avenue | |
|---|---|
| Agilus Diagnostics Limited | 0.04 KM |
| Dr. Saurabh Ramuka's Admire Eye Care | 0.25 KM |
| Turakhia Vision Care - Optical Store | 0.42 KM |
| Gynoveda | 0.45 KM |
| Health Tree - The Family Clinic : Dr. Ameya Phansalkar | 0.78 KM |
| Lenskart.com At Goregaon West | 0.82 KM |
| K.k Diagnostics Center:best Diagnostic Home Visit Pathology 3d & 4d Sonography 2d Echo Digital & Por | 0.84 KM |
| Dr Shinjini Pande | 0.94 KM |
| Dr. Pooja Shukla | 1.01 KM |
| Lenskart.com At Inorbit Mall | 1.05 KM |
| College and Universities Near by Rishabraj 63 Gold Medal Avenue | |
|---|---|
| Chikitsak Samuha's Sir Sitaram & Lady Shantabai | 0.32 KM |
| Patkar College Science Building(for Practical) | 0.33 KM |
| Institute Of Actuarial And Quantitative Studies | 0.33 KM |
| Patkar College | 0.34 KM |
| Ladhidevi Ramdhar Maheshwari Night College Of Commerce | 0.67 KM |
| Ghanshyamdas Saraf College Of Arts & Commerce | 0.67 KM |
| Durgadevi Saraf Institute Of Management Studies | 0.68 KM |
| Lords Universal College | 0.69 KM |
| International College Of Financial Planning | 0.69 KM |
| Jashbhai Maganbhai Patel College Of Commerce | 0.72 KM |
| Gym Fitness Near by Rishabraj 63 Gold Medal Avenue | |
|---|---|
| Adyashakti Wellness | 0.60 KM |
| The Cloud 9 Fitness Club - Malad | 0.81 KM |
| Fitlife Gym Malad | 0.95 KM |
| Jupito Fitness | 1.09 KM |
| Impact The Fitness Mantra | 1.10 KM |
| The Flex Gym | 1.14 KM |
| Empire Gym & Fitness Center | 1.25 KM |
| The India Fitness Connect Pvt. Ltd. (tifc) | 1.47 KM |
| The Muscle Bar Fitness Studio | 1.49 KM |
| Shantanand Yoga By Bhavya Shah | 1.53 KM |
| Clothings Near by Rishabraj 63 Gold Medal Avenue | |
|---|---|
| Mumkins Kids Wear | 0.15 KM |
| Babyhug Store Mumbai Malad | 1.01 KM |
| Zudio - Mumbai | 1.05 KM |
| H&m | 1.08 KM |
| Killer Jeans | 1.17 KM |
| Kala-kendra Malad | 1.21 KM |
| Nalli | 1.55 KM |
| The Souled Store | 1.60 KM |
| Zara Store In Oberoi Mall | 1.67 KM |
| Guess | 1.74 KM |
| Temples Near by Rishabraj 63 Gold Medal Avenue | |
|---|---|
| Umiya Mata Mandir | 0.83 KM |
| Chincholi Hanuman Temple | 0.83 KM |
| Shri Patladevi Temple | 1.41 KM |
| Shri Icchapurti Hanuman Mandir Malad West Mumbai | 1.45 KM |
| Sai Baba Temple | 1.52 KM |
| Sri Ram Mandir | 1.56 KM |
| Saraf Matru Mandir Hall | 1.61 KM |
| Shri Ayyappa Temple | 1.68 KM |
| Shri Ichhapurti Wagheshwari Mandir | 1.83 KM |
| Krishna Vatika Mandir | 2.36 KM |
| Home Decors Near by Rishabraj 63 Gold Medal Avenue | |
|---|---|
| Durian Furniture - Mumbai - Goregaon | 1.15 KM |
| Nilkamal Limited | 1.74 KM |
| Pepperfry Furniture Shop-store In Malad West Mumbai | 1.89 KM |
| The Sleep Company - Corporate Office | 2.81 KM |
| The Sleep Company Experience Store - Kandivali West | 3.34 KM |
| Dreampod Mattress | 4.10 KM |
| The Sleep Company Experience Store - Andheri West | 4.14 KM |
| Sleepwell Shoppe - Lokhandwala | 4.22 KM |
| Godrej Interio - Furniture Store In Andheri West | 4.74 KM |
| Kurlon Mattress Store | 4.85 KM |
Check Travel Time
Connecting Roads - Rishabraj 63 Gold Medal Avenue
Goregaon, one of the numerous Mumbai suburbs, is a bustling neighbourhood that is teeming with activity and opportunity.It is a part of the Greater Mumbai Municipal Corporation and the Mumbai Suburban District.The Mumbai local trains, one of the most well-known attractions in Mumbai and even Maharashtra, start and end at Goregaon.It is a popular residential area in Mumbai's western suburbs and is home to a number of renowned colonies, including
Top Experts in Mumbai
H Rishabraj Builders and Developers, based in Mumbai, is an esteemed real estate project developer led by the visionary Mr. Harrish Kumar Jain. With a strong lineage in entrepreneurship and philanthropy, Mr. Jain has successfully carved a niche for his company in the redevelopment space.Having gained valuable experience in the textile business, Mr. Jain recognized the immense potential in the redevelopment of societies, which prompted him to embark on this
The construction of Rishabraj 63 Gold Medal Avenue is currently at the mid-stage.
The developer of Rishabraj 63 Gold Medal Avenue is H Rishabraj Builders and Developers, who have completed a total of 37 projects.
Rishabraj 63 Gold Medal Avenue offers amenities such as kids play areas, power backup, 24 x 7 security, a central green park, and multi-brand retail options.
Yes, Rishabraj 63 Gold Medal Avenue is RERA-registered with the project number P51800027330.
Rishabraj 63 Gold Medal Avenue offers retail shops ranging from 2,479 to 3,145 square feet and office spaces ranging from 3,666 to 10,976 square feet.
Rishabraj 63 Gold Medal Avenue is conveniently located near various essential services, such as schools, hospitals, and public transport, with notable distances including a bus stop just 0.17 km away and Infinity Multispeciality Hospital 0.23 km away.
This website is only for the purpose of providing information regarding real estate projects in different geographies. Any information which is being provided on this website is not an advertisement or a solicitation. The company has not verified the information and the compliances of the projects. Further, the company has not checked the RERA* registration status of the real estate projects listed herein. The company does not make any representation in regards to the compliances done against these projects. Please note that you should make yourself aware about the RERA* registration status of the listed real estate projects.
*Real Estate (regulation & development) act 2016.