A total of 81 residential transactions has been registered so far for Siddha Sky, amounting to ₹ 108 Cr till December 2025.

Siddha Sky was launched and developed by Siddha Group, a leading real estate developer. This project is a premium residential complex situated in Wadala, Mumbai. It is spread across a wide area of 8.06 acres. It contains 1306 units. The Siddha Sky project offers comfort. luxury, and convenience to the residents.
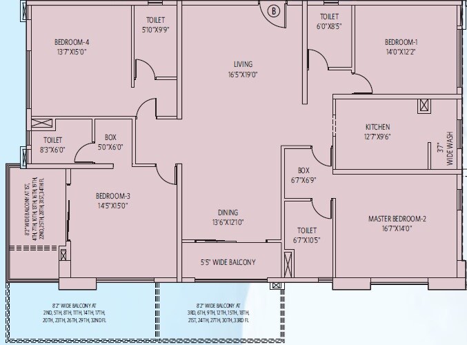
Siddha Sky, Mumbai, features spacious 1, 2, 3, and 4-BHK luxury apartments with modern interiors. The Siddha Sky project offers excellent architecture. The project offers exceptional connectivity to commercial centers, schools, colleges, shopping malls, and hospitals. It offers a rooftop skywalk and a star gazing area as well. The project is designed to offer 60+ amenities to the residents.
A total of 81 residential transactions has been registered so far for Siddha Sky, amounting to ₹ 108 Cr till December 2025.
External Works has reached 30%, Internal finishing stands at 40%, MEP Services including lift and staircases, are now 10% done.
A total of 309 out of 356 launched units have been booked as of November 2025, including 90% of 1 BHK(187 out of 208 units), 80% of 3 BHK(28 out of 35 units), 83% of 2 BHK(94 out of 113 units).
A total of 305 out of 366 launched units have been booked as of November 2025, including 89% of 1 BHK(188 out of 212 units), 67% of 3 BHK(26 out of 39 units), 79% of 2 BHK(91 out of 115 units).
A total of 246 out of 326 launched units have been booked as of November 2025, including 75% of 1 BHK(113 out of 150 units), 84% of 3 BHK(63 out of 75 units), 69% of 2 BHK(70 out of 101 units).
During Q3'2025, average property prices for Siddha Sky moved from ₹ 29,650/sqft to ₹ 30,100/sqft, reflecting a 1.52% rise.
During Q2'2025, average property prices for Siddha Sky moved from ₹ 28,600/sqft to ₹ 29,650/sqft, reflecting a 3.67% rise.
During Q1'2025, average property prices for Siddha Sky moved from ₹ 27,800/sqft to ₹ 28,600/sqft, reflecting a 2.88% rise.
Structural Works reach 78% completion.
A total of 44 out of 257 launched units have been booked as of February 2025, including 16% of 3 BHK(21 out of 134 units), 19% of 2 BHK(23 out of 123 units).
The Siddha Sky project is located in Sion and features four residential towers: Tower 1, Tower 2, Tower 3, and Tower 4. The overall design emphasizes a 'Skywalk' master plan, integrating residential living with extensive amenity spaces.
The master plan shows the four residential towers integrated within a significant area dedicated to green spaces and communal amenities. These amenity areas are designed to connect the towers, forming a continuous recreational zone for residents.
Siddha Sky's master plan outlines a residential development featuring five distinct towers: Tower-1A, Tower-1B, Tower-2A, Tower-2B, and Tower-3.
The property is designed with clearly defined residential zones for the towers, integrated with significant open spaces dedicated to green areas and various recreational facilities. These include expansive lawns, sports courts, and landscaped gardens.
| Master Bedroom-Walls | Acrylic Emulsion |
| Master Bedroom-Flooring | Vitrified Tiles |
| Fittings & Fixtures | Double Glazed Windows |
| Other Bedrooms-Flooring | Vitrified Tiles |
| Walls | Acrylic Emulsion |
| Living Area-Flooring | Vitrified Tiles |
| Ceilings | False Ceiling |
| Bathroom | Shower Panel, Geyser, Premium Bath Fittings, Exhaust Fan |
| Structure | RCC Frame Structure |
| Schools Near by Siddha Sky | |
|---|---|
| Sardar Nagar Municipal School | 0.34 KM |
| Shri Sanatan Dharam High School & Junior College | 0.40 KM |
| S K Roy Memorial High School | 0.40 KM |
| K. D. Gaikwad Municipal Upper Primary Marathi School | 0.43 KM |
| Karmaveer Bhaurao Patil Vidyalaya(kbpv). | 0.74 KM |
| New English Secondary School | 0.74 KM |
| Sion Mumbai Public School | 0.87 KM |
| Shri Gauridutt Mittal Vidyalaya Junior College | 0.87 KM |
| Shree Vallabh Ashram English Medium School | 0.96 KM |
| P.w.s School | 0.97 KM |
| Bus Stops Near by Siddha Sky | |
|---|---|
| M.m.r.d.a. Colony | 0.12 KM |
| M.m.r.d.a. Colony Kokari Depot | 0.16 KM |
| Rawli Camp | 0.23 KM |
| Sardar Nagar Number 4 | 0.29 KM |
| Sardar Nagar No.4 (gtb Nagar) | 0.32 KM |
| Wadala Monorail Station Road | 0.34 KM |
| Samaj Mandir Hall (sion Koliwada) | 0.39 KM |
| Karmaveer Dada Saheb Gayakwad Nagar | 0.40 KM |
| Shri Sanatan Dharm Vidyalaya | 0.44 KM |
| Karmaveer Dadasaheb Gaikwad Nagar (antop Hill) | 0.46 KM |
| Hospitals Near by Siddha Sky | |
|---|---|
| Baba Multispecialty Hospital & Medical Centre | 0.22 KM |
| Antop Hill Hospital | 0.50 KM |
| Micro Care Hospital | 0.72 KM |
| Mata Laxmi Hospital | 0.95 KM |
| Ashtaang Ayurveda Multispeciality Hospital And Research Centre | 0.96 KM |
| Sion Blood Component And Apheresis Centre | 0.99 KM |
| Samadhan Hospital - Top Maternity Hospital | Best Hospital For Laparoscopic | 1.00 KM |
| Krishna Eye Centre - Eye Hospital In Sion | Eye Specialist In Sion | Ophthalmologist In Sion | Lasik | 1.04 KM |
| Sion Hospital | 1.09 KM |
| Lion Tarachand Bapa Hospital | 1.18 KM |
| Restaurants Near by Siddha Sky | |
|---|---|
| Spring Onion | 0.71 KM |
| Hardeep Punjab | 0.76 KM |
| Mini Punjab | 0.77 KM |
| Peninsula Next | 0.86 KM |
| Peninsula | 0.87 KM |
| Hanuman Restaurant | 0.91 KM |
| Central Peninsula | 0.93 KM |
| Sion Lunch Home | 1.19 KM |
| Pizza Kitchen By 1tablespoon | 1.66 KM |
| Garnish | 1.71 KM |
| College and Universities Near by Siddha Sky | |
|---|---|
| Gnvs Institute Of Management | 0.56 KM |
| Guru Nanak College Of Arts | 0.57 KM |
| Sies College Of Commerce And Economics | 0.86 KM |
| Madarsa Ahle Sunnat Gulshan E Bagdad | 0.94 KM |
| Graphology Institute World School Of Handwriting | 0.97 KM |
| Rajaram Fine Art Institute | 1.00 KM |
| Rajarshi Shahu Sr. College Of Arts | 1.07 KM |
| K. J. Somaiya Institute Of Technology | 1.08 KM |
| Sies College Of Arts | 1.10 KM |
| Evolve Institute Of Design | 1.28 KM |
| Clinics Near by Siddha Sky | |
|---|---|
| Lenskart.com At Sion Koliwada | 0.23 KM |
| Dr Chandrashekhar's Sion Plastic Surgery Clinic | 0.50 KM |
| Nirmiti Clinic | 0.52 KM |
| Vistadent - Multispeciality Dental & Implant Clinic | 0.75 KM |
| Zenta Denta | 0.78 KM |
| Dr Seema Pallawkar Patil-eye Surgeon-pratiksha Nagar Eye Clinic | 0.78 KM |
| Aanvii Hearing Care Clinic - Sion | 1.04 KM |
| Titan Eye+ At Sion | 1.10 KM |
| Smt S R Mehta & Sir K P Cardiac Institute | 1.21 KM |
| Metropolis Healthcare Ltd - Best Diagnostic Centre In Wadala East | 1.22 KM |
| Gym Fitness Near by Siddha Sky | |
|---|---|
| The Cloud 9 Fitness Club - Sion | 1.02 KM |
| The Body Project Gym - Best Unisex Gym In Sion | 1.17 KM |
| Hb Fusion Fitness | 1.39 KM |
| Modern Fitness Gym-3 | 1.45 KM |
| Dosti Acres Club | 1.50 KM |
| Power Fitness Gym | 1.60 KM |
| Modern Fitness Gym-2 | 1.61 KM |
| Cult Gym Sion | 1.63 KM |
| My Fitness Club Dharavi | 1.80 KM |
| Colosseum Gym | 1.81 KM |
| Clothings Near by Siddha Sky | |
|---|---|
| Beautiful - Matunga | 2.01 KM |
| Anmol Mobile And Electronic | 2.16 KM |
| Rynox Exclusive Store | 2.38 KM |
| Firstcry.com Store Mumbai Chembur East | 2.63 KM |
| Mulmul- Bandra East | 2.81 KM |
| Fabindia | 3.18 KM |
| Westside - Kohinoor Square | 3.32 KM |
| Manyavar | 3.54 KM |
| Pantaloons (k-star Mall | 3.72 KM |
| Dressline - Chembur | 4.10 KM |
| Temples Near by Siddha Sky | |
|---|---|
| Trimbakeshwar Temple | 0.48 KM |
| Kali Mata Mandir | 0.73 KM |
| Bhakti Dham Mandir | 1.85 KM |
| The Asthika Samaj Kochu Guruvayoor Sree Ram Mandir | 1.96 KM |
| Kali -bari Mandir | 2.59 KM |
| Shri Saath Aasra Manmala Devi Mandir | 2.80 KM |
| Someshwar Khandoba Temple | 3.00 KM |
| Albela Hanuman Mandir | 3.01 KM |
| Baps Shri Swaminarayan Mandir | 3.42 KM |
| Shri Shantinath Bhagwan Shwetambar Jain Temple | 3.70 KM |
| Home Decors Near by Siddha Sky | |
|---|---|
| Rentalwaala | 0.50 KM |
| Exclusive Dealer(nensey Furnishing & Mattresses) At Ganesh Housing Society | 0.55 KM |
| Oliver Metal Furniture | 0.74 KM |
| Sleepmax Mattresses | 0.95 KM |
| Prestige Xclusive - Sion | 1.05 KM |
| Vlite Furnitech - Modular Office Furniture Manufacturer In Mumbai | 1.78 KM |
| Duroflex - Mattress | 2.66 KM |
| Springwel Mattress Store | 2.98 KM |
| Godrej Interio Modular Kitchen Gallery Near Me | 3.00 KM |
| Malaikafurnishing - Sleepwell Mattresses - Ddecor - Curtains - Blinds - Wallpapers - Sofa - Upholste | 3.20 KM |
Check Travel Time
Connecting Roads - Siddha Sky
Sion is a vibrant area in the centre of Mumbai, India. It is well-known for its thriving marketplaces, educational institutions, and religious sites. Sion is home to many notable schools and institutions, including the Sion College of Engineering, the SIES College of Arts, Science, and Commerce, and the Indian Education Society's School. The neighbourhood is also known for its prominent religious structures, including the Sion Fort, the Sion Hanuman Mandir,
Properties in Siddha Sky & Top Sellers
The Siddha Group is a leading real estate conglomerate that is known for reliability, quality construction and affordability. Siddha Developers is led by Sanjay Jain and Chandra Prakash Jain and aims at selling high quality housing at affordable prices throughout the country. The portfolio of Siddha properties encompasses multiple landmark projects in Kolkata, Jaipur and Bangalore. The Group was founded in the year 1986 and creates both residential and commercial
This website is only for the purpose of providing information regarding real estate projects in different geographies. Any information which is being provided on this website is not an advertisement or a solicitation. The company has not verified the information and the compliances of the projects. Further, the company has not checked the RERA* registration status of the real estate projects listed herein. The company does not make any representation in regards to the compliances done against these projects. Please note that you should make yourself aware about the RERA* registration status of the listed real estate projects.
*Real Estate (regulation & development) act 2016.