Structural Works reach 25% completion.

Structural Works reach 25% completion.
Structural Works reach 21% completion.
Structural Works reach 19% completion.
Structural Works reach 14% completion.
A total of 8 out of 24 launched units have been booked as of October 2024, including 32% of OFFICE SPACE(6 out of 19 units), 40% of SHOP(2 out of 5 units).
Structural Works reach 8% completion.
A total of 5 out of 24 launched units have been booked as of August 2024, including 26% of OFFICE SPACE(5 out of 19 units).
Structural Works reach 2% completion.
A total of 2 out of 7 launched units have been booked as of April 2024, including , 100% of OFFICE SPACE(2 units).
Jhamtani SpaceBiz, developed by JHAMTANI REALTY PRIVATE LIMITED, officially launched on 25-Jan-2024 and expected to complete by 31-Dec-2027. Registered under RERA No. P52100054460. The project comprises 1 towers and offers 24 residential units, including OFFICE SPACE, SHOP, with unit sizes ranging from 1249 to 8353 Square feet across a total area of 0.70 Acre.
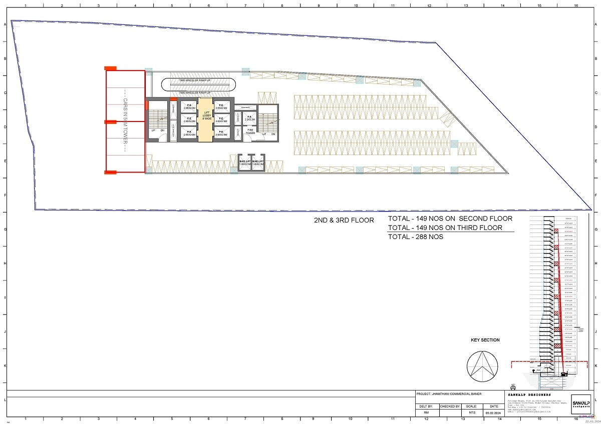
This is the master plan for Jhamtani Space Biz. The total land area for this project is 2850 square meters. The plan shows 'A' Building, which will have 3 basements, a lower ground, an upper ground, and 5 additional floors, reaching a total height of 24.85 meters.
The property includes commercial spaces, specifically showrooms designated as UG-01 and UG-02. There's also a dedicated Parking Tower. Basement levels are designed for various utilities and parking.
| Structure | RCC Frame Structure |
| Schools Near by Jhamtani Space Biz | |
|---|---|
| Vidyanchal School | 0.21 KM |
| D A V Public School | 0.72 KM |
| Dr. Kalmadi Shamarao High School | 1.34 KM |
| Aw Sindhu Vidya Bhavan | 1.36 KM |
| Shri Shivaji Vidyamandir And Kanishtha Mahavidyalaya Aundh | 1.70 KM |
| Kendriya Vidyalaya Ganeshkhind | 1.73 KM |
| Pmc School | 1.77 KM |
| Spicer Higher Secondary School | 1.94 KM |
| Sahyadri International School & Junior College | 1.97 KM |
| Lokseva E School | 2.04 KM |
| Bus Stops Near by Jhamtani Space Biz | |
|---|---|
| Trimurti Bungalow (mauli Garden) | 0.14 KM |
| Green Park | 0.30 KM |
| Mahabaleshwar Hotel | 0.33 KM |
| Baner Road Hotel Mahabaleshwar (down) | 0.34 KM |
| Rajwada Hotel | 0.56 KM |
| Ambedkar Nagar Baner | 0.67 KM |
| Govind Mangal Karyalay | 0.78 KM |
| Sarjaa Restaurant (tanishq Jewellery) | 0.82 KM |
| Ojhal Mall (baner) | 0.84 KM |
| Food Bazar | 0.84 KM |
| Hospitals Near by Jhamtani Space Biz | |
|---|---|
| Shashwat Hospital Aundh | 0.67 KM |
| Dr Agarwals Eye Hospital Aundh | 0.71 KM |
| Saishree Hospital | 0.80 KM |
| Dr. Kishore Pandit Lifeline Hospital | 0.85 KM |
| Parmar Maternity And General Hospital | 0.90 KM |
| Kotbagi Hospital | 0.96 KM |
| Nathsuman Multispeciality Ayurved | 0.96 KM |
| Sanjivani Medipoint Hospital | 1.24 KM |
| Ankura Hospital For Women & Children - Pune | 1.33 KM |
| 9m Hospitals - Aundh | 1.33 KM |
| Clinics Near by Jhamtani Space Biz | |
|---|---|
| Clove Dental Clinic - Top Dentist In Pune - Baner Road For Rct | 0.19 KM |
| Radiovision Diagnostics - Aundh | 0.78 KM |
| Dermaplus Skin Clinic | 0.80 KM |
| Progenesis Fertility Center - Best Ivf Center In Pune | 0.80 KM |
| Doctor's Apothecary - Skin And Hair Clinic | 0.85 KM |
| Titan Eye+ At Aundh | 0.85 KM |
| Secure Hair Transplant Centre | 1.01 KM |
| Lenskart.com At Westend Mall | 1.05 KM |
| Dr Shah's Clinic & Wellness | 1.14 KM |
| Benchmark : General Physician & Superspeciality Clinic - Skin & Eye | 1.29 KM |
| Restaurants Near by Jhamtani Space Biz | |
|---|---|
| Bhairavee Pure Veg Restaurant | 0.25 KM |
| Ttf - The Tenth Floor | 0.38 KM |
| Highland | 0.44 KM |
| Talli | 0.47 KM |
| The Blue Plate | 0.55 KM |
| Rajwada | 0.55 KM |
| Wadeshwar | 0.77 KM |
| Taaareef | 0.80 KM |
| Sigree | 0.80 KM |
| Marrakesh | 0.82 KM |
| Gym Fitness Near by Jhamtani Space Biz | |
|---|---|
| Yogsutras By Samidha | 0.49 KM |
| B2b Gym | 0.51 KM |
| Gold's Gym Aundh | 0.62 KM |
| Danzofit - The Happiest Fitness Studio In Aundh | 0.84 KM |
| Multifit Aundh | 1.01 KM |
| The Yog Circle | 1.01 KM |
| Generation Hench - Aundh | 1.02 KM |
| Urbounce Gym Baner Pashan | 1.16 KM |
| Ultimate Fitness Club (p-town West Mma) | 1.69 KM |
| Multifit - Baner | 1.82 KM |
| College and Universities Near by Jhamtani Space Biz | |
|---|---|
| Sanjay Ghodawat Institutes Global School Of Management | 0.32 KM |
| Indian Institute Of Science Education And Research | 0.97 KM |
| Industrial Training Institute | 1.02 KM |
| Floret College Of Interior & Fashion Designing | 1.03 KM |
| Government Iti | 1.39 KM |
| Dr. Babasaheb Ambedkar College | 1.67 KM |
| Indian Institute Of Tropical Meteorology | 1.87 KM |
| N C L Jr College | 2.04 KM |
| Spicer Adventist University | 2.11 KM |
| Pune Vidyapeeth | 2.24 KM |
| Temples Near by Jhamtani Space Biz | |
|---|---|
| Shree Someshwar Mandir | 0.88 KM |
| Hare Krishna Mandir | 1.33 KM |
| Tukai Devi Mandir | 1.48 KM |
| Navagraha Temple Baner Gaon | 1.57 KM |
| Baneshwar Mandir | 1.63 KM |
| Balaji Mandir | 1.73 KM |
| Shri Gurudev Datta Temple | 1.83 KM |
| Sri Ahobila Mutt Sri Balaji Mandir | 1.85 KM |
| Swami Samarth Maharaj Temple | 1.92 KM |
| Vighnaharta Ganpati Mandir | 2.31 KM |
| Supermarkets Near by Jhamtani Space Biz | |
|---|---|
| Reliance Fresh | 0.50 KM |
| Star Bazaar Baner | 0.75 KM |
| Shree Hanuman Super Market | 0.80 KM |
| Nature's Basket | 1.03 KM |
| Uttam Super Store | 1.26 KM |
| Chandradeep Super Market | 2.07 KM |
| Mamta Super Market | 2.14 KM |
| Usha Super Shopee | 2.17 KM |
| Gokul Food Bazaar | Qualitail | 2.59 KM |
| New Bazaar | 2.70 KM |
| Clothings Near by Jhamtani Space Biz | |
|---|---|
| Fabindia Experience Center | 0.86 KM |
| Max | 0.98 KM |
| Zudio - Pune | 1.26 KM |
| Me N Moms Baby Care & Kids Store In Aundh Pune | 1.45 KM |
| Firstcry.com Store Pune Aundh | 1.46 KM |
| Pantaloons (amar Business Zone | 2.88 KM |
| Zudio - Pune | 2.88 KM |
| Sanskruti Lawns (sanskriti Mangal Karyalay) | 3.04 KM |
| Zudio Pimple Nilakh | 3.07 KM |
| Fabindia Experience Center | 3.39 KM |
Check Travel Time
Connecting Roads - Jhamtani Space Biz
Baner is a rapidly developing locality with a mix of residential and commercial properties. It is home to several prominent schools, hospitals, shopping centres, and restaurants, making it a preferred destination for families and young professionals. The area also boasts several green spaces, including the Baner Pashan biodiversity park and the Balewadi sports complex. What's Great about Baner Pune Maharashtra Baner is known for its proximity to the Hinjewadi IT park, which
Built on a legacy of over 60 years of honored commitments, integrity and innovation in the field of trading of construction material, real estate, manufacturing and construction. JHAMTANI GROUP is a name that exudes TRUST. With over 10 retail outlets, 3 manufacturing units and several godowns, Jhamtani Group can cater to over 90% of the material required for construction industry in and around PMC and PCMC area.
This website is only for the purpose of providing information regarding real estate projects in different geographies. Any information which is being provided on this website is not an advertisement or a solicitation. The company has not verified the information and the compliances of the projects. Further, the company has not checked the RERA* registration status of the real estate projects listed herein. The company does not make any representation in regards to the compliances done against these projects. Please note that you should make yourself aware about the RERA* registration status of the listed real estate projects.
*Real Estate (regulation & development) act 2016.