A total of 2 residential transactions has been registered so far for RK Lunkad Alankapuram, amounting to ₹ 56 L till December 2025.

A total of 2 residential transactions has been registered so far for RK Lunkad Alankapuram, amounting to ₹ 56 L till December 2025.
Rent in RK Lunkad Alankapuram ranges from ₹ 14 K to ₹ 17 K with options available for 2 BHK.
During Q3'2025, average property prices for RK Lunkad Alankapuram moved from ₹ 6,650/sqft to ₹ 6,700/sqft, reflecting a 0.75% rise.
During Q1'2025, average property prices for RK Lunkad Alankapuram moved from ₹ 6,650/sqft to ₹ 6,900/sqft, reflecting a 3.76% rise.
| Master Bedroom-Walls | Oil Bound Distemper |
| Master Bedroom-Flooring | Vitrified Tiles |
| Other Bedrooms-Flooring | Vitrified Tiles |
| Walls | Oil Bound Distemper |
| Living Area-Flooring | Vitrified Tiles |
| Structure | RCC Frame Structure |
| Schools Near by RK Lunkad Alankapuram | |
|---|---|
| Crystal Modern School | 0.80 KM |
| Radcliffe Group Of Schools - Dighi | Best Cbse School In Dighi | 1.07 KM |
| Radcliffe School Pune | 1.12 KM |
| Nurture International School | 1.22 KM |
| Mindword International School | 1.55 KM |
| Paradise International School | 1.64 KM |
| Jayashree English Medium School And Junior College | 1.84 KM |
| Aditya International School | 1.87 KM |
| Sayajinath Maharaj School | 1.96 KM |
| Oxford International School | 1.98 KM |
| Bus Stops Near by RK Lunkad Alankapuram | |
|---|---|
| Alankapuram | 0.08 KM |
| Rkl Galaxy School | 0.22 KM |
| Wadmukhwadi | 0.25 KM |
| Wadmukhwadi Fata | 0.29 KM |
| Chovisawadi | 0.49 KM |
| Gokhalemala | 0.49 KM |
| Chovisawadi Fata | 0.54 KM |
| Sankalp Garden | 0.54 KM |
| Ravikiran Society Alankapuram | 0.71 KM |
| Charholi Fata | 0.84 KM |
| Hospitals Near by RK Lunkad Alankapuram | |
|---|---|
| K K Care Hospital- Multispeciality Hospital In Charholi | 0.29 KM |
| Rahane Hospital | 0.85 KM |
| Rode Multispeciality Hospital | 1.34 KM |
| Pushpa Hospital | 1.59 KM |
| Ghadge Hospital Charoli | 1.77 KM |
| Shree Multispecialty Hospital | 1.77 KM |
| Lokhande Hospital | 2.07 KM |
| Siddhivinayak Maternity Hospital & Infertility Center | 2.08 KM |
| Kachare Hospital | 2.09 KM |
| Anand Multispeciality Hospital | 2.10 KM |
| Clinics Near by RK Lunkad Alankapuram | |
|---|---|
| Dr Rajan Chauhan- Pediatrician In Charholi | 0.28 KM |
| Dr. Mahavir Bagrecha | 0.29 KM |
| Dr. Varsha Kurhade - Pain Management Specialist | 0.29 KM |
| Dr Vinod Devmore General Physician -kk Care Multispeciality Hospital | 0.29 KM |
| Suvarna Dental Care | 1.04 KM |
| Dr. Atul Tambade | 1.42 KM |
| Paramdevi Polyclinic And Diagnostics | 1.48 KM |
| Dr Disha Shinde Aai Women's Clinic | 1.50 KM |
| Dr. Jadhav's Kilbil Children's Clinic | 1.50 KM |
| Smiling Tooth Multispeciality Dental Clinic. Best Dentist In Charholi | 1.81 KM |
| Gym Fitness Near by RK Lunkad Alankapuram | |
|---|---|
| Rockfit Fitness Hub | 0.54 KM |
| Madhavi's Yog Mantra | 0.91 KM |
| The Wellness Club Gym Xpress Pune | 1.10 KM |
| Captain Fit Gym & Swimming Pool | 1.12 KM |
| Physique Elite Gym | 1.25 KM |
| Fitness Empire Unisex Gym | 1.72 KM |
| Perform Yoga - The Best Yoga Classes | 1.73 KM |
| Vriddhi Yoga Classes | 2.12 KM |
| Narendra Gym & Unisex Fitness Centre | 2.12 KM |
| Morya Fitness Club | 2.34 KM |
| Restaurants Near by RK Lunkad Alankapuram | |
|---|---|
| 360 Degree Multicuisine Family Restaurant | 4.46 KM |
| Reddy's Hyderabadi Biryani | 6.37 KM |
| Zaika Caterers & Restaurants | 7.04 KM |
| Chulbul Dhaba | 7.13 KM |
| Lotus Court Family Resto Bar | 7.69 KM |
| Tiranga Veg Non-veg | 8.76 KM |
| 3 Idiots - The Friendly Bar | 8.79 KM |
| Little Italy | 9.64 KM |
| Vimanzza Cafe | 9.72 KM |
| The Mafia | 10.01 KM |
| Temples Near by RK Lunkad Alankapuram | |
|---|---|
| Padmavti Devi Temple | 0.60 KM |
| Shrinath Mhaskoba Mandir | 0.70 KM |
| Shree Venkatesh Balaji Devsthan | 0.98 KM |
| Lingaleshwar Temple | 1.22 KM |
| Gayatri Mata Temple | 1.48 KM |
| Shri Sant Dnyaneshwer Maharaj Thorlya Paduka Mandir | 1.55 KM |
| Shri Gajanan Maharaj Mandir | 1.96 KM |
| Gajanan Maharaj Hill Top Temple Alandi | 2.02 KM |
| Prati Yermala Shree Yedeshwari Sarvajanik Mandir | 2.17 KM |
| Wagheshwar Maharaj Temple | 2.52 KM |
| College and Universities Near by RK Lunkad Alankapuram | |
|---|---|
| Dnyanvilas College Of Pharmacy | 1.82 KM |
| Rajmata Jijau Shikshan Prasarak Mandal College Of Pharmacy | 2.25 KM |
| Rjspm's College Of Pharmacy | 2.29 KM |
| Mit Academy Of Engineering | 2.51 KM |
| Vishwanath College Pune- I.t.i. I Fire Safety I Paramedical Nursing Diploma | 4.26 KM |
| Rani Putalabai Women's Law College | 4.37 KM |
| Ajeenkya Dy Patil University | 4.72 KM |
| Dypdc Center For Automotive Research And Studies | 4.79 KM |
| Dr D Y Patil Technical Campus | 4.91 KM |
| Ajeenkya Dy Patil School Of Engineering | 4.91 KM |
| Supermarkets Near by RK Lunkad Alankapuram | |
|---|---|
| Morya Mart | 1.06 KM |
| Nikhil Grocery World | 1.91 KM |
| M R Shopping Mall | 2.15 KM |
| 99 Pune | 2.57 KM |
| Mall Mart Retails | 3.08 KM |
| Mahaveer Super Shopee | 3.12 KM |
| M Marts | 3.70 KM |
| Mahesh Super Market | 3.96 KM |
| Ke Mart | 4.05 KM |
| Global Mart | 4.08 KM |
| Clothings Near by RK Lunkad Alankapuram | |
|---|---|
| C' Lai Word | 0.56 KM |
| Rabit N Turtle Little Hearts World | 3.40 KM |
| Zudio - Pune | 4.15 KM |
| Cottonking Dsk Enterprises | 4.17 KM |
| Linenking | 4.40 KM |
| Cottonking Dighi | 4.42 KM |
| Peter England Outlet | 4.45 KM |
| Allen Solly Factory Outlet | 4.46 KM |
| Leicester Denim Bhosari | 4.94 KM |
| Firstcry.com Factory Outlet Pune Bhosari | 4.94 KM |
Check Travel Time
Connecting Roads - RK Lunkad Alankapuram
R K Lunkad Housing Corporation is a prominent real estate developer based in Pune. With a strong presence in Pune's real estate market, it has established itself as a trusted name in the industry since its establishment in 1999. The company is well known for designing and constructing innovative residential and commercial properties in different parts of Pune. One of the key focuses of R K Lunkad Housing Corporation is
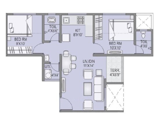
RK Lunkad Alankapuram offers 1, 2 BHK apartments with multiple layout options to suit different family needs and budgets.
Yes, RK Lunkad Alankapuram features well-planned layouts with optimal space utilization, good ventilation, and natural light across all unit types.
Reputed schools like Crystal Modern School, Radcliffe Group Of Schools - Dighi | Best Cbse School In Dighi, Radcliffe School Pune, Nurture International School, Mindword International School are located within a short distance.
With factors like Alankapuram, Rkl Galaxy School, Wadmukhwadi, Wadmukhwadi Fata, Chovisawadi location, brand value, upcoming infrastructure, quality of amenities, the project is expected to maintain healthy resale demand.
Additional charges include PLC/parking/floor rise/maintenance/security deposit, depending on the unit selected. The detailed cost sheet is available on request.
This website is only for the purpose of providing information regarding real estate projects in different geographies. Any information which is being provided on this website is not an advertisement or a solicitation. The company has not verified the information and the compliances of the projects. Further, the company has not checked the RERA* registration status of the real estate projects listed herein. The company does not make any representation in regards to the compliances done against these projects. Please note that you should make yourself aware about the RERA* registration status of the listed real estate projects.
*Real Estate (regulation & development) act 2016.