
Puraniks Rahayu, Ghodbunder Road, Thane, offers a calm, resort-like lifestyle with its Balinese-style theme while being well-connected to the city. Located on Ghodbunder Road, it provides easy access to Eastern and Western Express Highways.
The project includes well-designed 1 BHK and 2 BHK apartments spread across a large land parcel of around 10 acres. With fewer homes on each floor, residents get better privacy and a less crowded living experience. This project offers many modern facilities with a simple and well-designed layout.
The project features a total of 518 thoughtfully planned residential units. The project focuses on healthy and comfortable living that includes a gym, swimming pool, yoga and meditation areas, jogging track, kids’ play area, and landscape gardens. Homes are designed to get good sunlight and airflow.
It is developed by Puraniks Group, a trusted name in real estate. With 30 years of experience, the builder is known for delivering good-quality homes. They focus on strong construction, simple design, and comfortable living.
Location Advantage of Puraniks Rahayu, Ghodbunder Road, Thane
Key Commute
Nearby IT Hubs
Social Infrastructure Highlights
Upcoming Projects near Puraniks Rahayu, Ghodbunder Road, Thane
Puraniks Rahayu, Ghodbunder Road, Thane: An Investment Marvel
A smart investment in a fast-growing area with strong future price growth potential.
| Master Bedroom-Walls | Oil Bound Distemper |
| Master Bedroom-Flooring | Vitrified Tiles |
| Other Bedrooms-Flooring | Vitrified Tiles |
| Walls | Oil Bound Distemper |
| Living Area-Flooring | Vitrified Tiles |
| Structure | RCC Frame Structure |
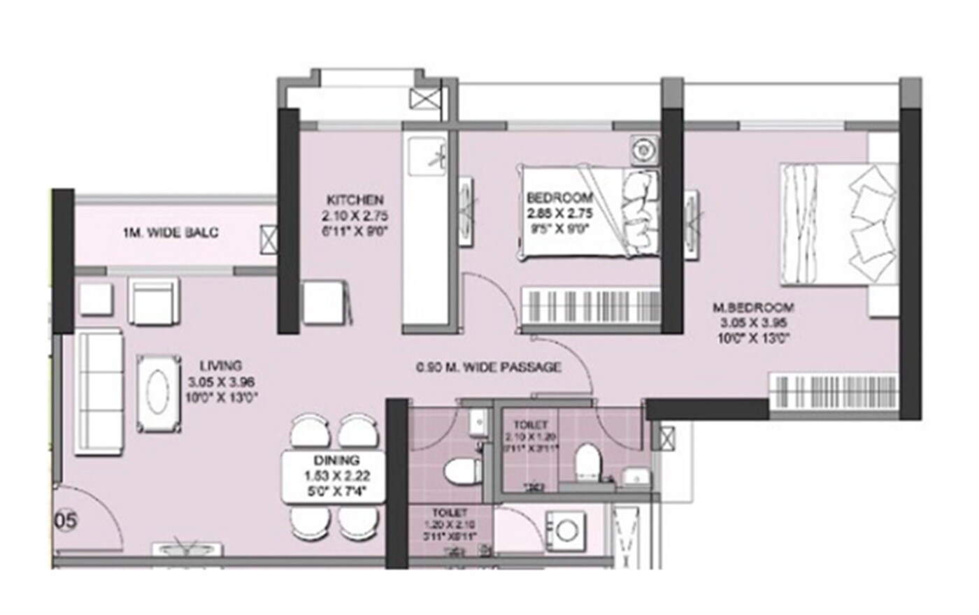
Download brochure, master plan & walkthrough video of Puraniks Rahayu to explore floor plans, layout, and complete project details in Ghodbunder Road, Thane.
| Schools Near by Puraniks Rahayu | |
|---|---|
| Trinurti English High School And Jr College | 0.59 KM |
| Little Angels School | 1.75 KM |
| Seven Square Academy | 1.76 KM |
| Adarsh Vidya Mandir | 1.85 KM |
| Ap Shah Institute Of Technology | 2.04 KM |
| Aspit Ap Shaha Institute Of Tech | 2.10 KM |
| Eva World School Thane | 2.13 KM |
| Psis International School | 2.26 KM |
| Sg English School | 2.34 KM |
| New Horizon Scholars School | 4.31 KM |
| Bus Stops Near by Puraniks Rahayu | |
|---|---|
| Dahisar Bus Station | 8.77 KM |
| Shejal Park Dahisar | 9.47 KM |
| Nlcomplex | 9.59 KM |
| Fish Market Borivali | 9.64 KM |
| Rameshwar Mandir Trust | 9.73 KM |
| Bmcoffice Dahisar | 9.95 KM |
| Rajshiv Building | 9.97 KM |
| Municipal Market Saibaba Mandir | 10.05 KM |
| Rajashree Cinema | 10.07 KM |
| Saraswati Complex Dahisar | 10.09 KM |
| Hospitals Near by Puraniks Rahayu | |
|---|---|
| Shree Ram Hospital | 0.82 KM |
| Vedant Hospital | 1.43 KM |
| Tmc Hospital | 1.93 KM |
| Fortune Plus Hospital | 2.17 KM |
| Jijai Womens Hospital | 2.21 KM |
| Currae Gynaec Ivf Birthing Hospital | 3.39 KM |
| Apollo Fertility | 4.34 KM |
| Horizon Prime Hospital In Thane | 4.35 KM |
| Horizon Prime Hospital | 4.36 KM |
| Horizon Hospital | 5.03 KM |
| Hotels Near by Puraniks Rahayu | |
|---|---|
| Treebo Trend De Grandeur Hotel | 2.39 KM |
| Royal Plaza Blossom Hotels And Banquets | 2.39 KM |
| Blossom Hotels | 2.39 KM |
| The Byke Suraj Plaza | 2.58 KM |
| Silverador Boutique Hotel Best Hotel | 6.42 KM |
| Silverador Boutique Hotel | 6.42 KM |
| Hotel Vihangs Inn | 6.95 KM |
| Hotel Grand Residency | 7.70 KM |
| Hotel Capitol | 7.76 KM |
| Gcc Northside Hotel | 7.76 KM |
| ATMs Near by Puraniks Rahayu | |
|---|---|
| Axis Bank | 0.26 KM |
| City Union Bank | 0.79 KM |
| Icici Bank | 1.18 KM |
| Idbi Bank | 1.51 KM |
| Hdfc Atm | 1.75 KM |
| Hdfc Bank | 1.77 KM |
| State Of India | 1.83 KM |
| Hdfc Bank | 2.04 KM |
| Punjab National Bank | 2.07 KM |
| Kotak Mahindra Bank | 2.08 KM |
| Banks Near by Puraniks Rahayu | |
|---|---|
| Syndicate Bank | 1.77 KM |
| Bank Of India | 1.82 KM |
| Corporation Bank | 2.22 KM |
| Icici Bank Ghodbunder Road | 2.23 KM |
| Icici Bank | 2.23 KM |
| State Of India | 2.23 KM |
| Maharashtra Gramin Bank | 2.34 KM |
| Uco Bank | 2.64 KM |
| Citibank | 3.34 KM |
| Punjab National Bank | 3.70 KM |
| Temples Near by Puraniks Rahayu | |
|---|---|
| Saidham Temple | 1.99 KM |
| Sai Dham Mandir | 6.07 KM |
| Jari Mari Mata Mandir | 7.07 KM |
| Shri Hanuman Temple | 7.11 KM |
| Shree Hatkesh Mahadev Temple | 7.63 KM |
| Mahavishnu Mandir | 8.14 KM |
| Sai Baba Temple | 8.35 KM |
| Mahadev Temple | 8.63 KM |
| Shree Aai Mataji Mandir | 8.71 KM |
| Om Sai Seva Mandal Sai Temple | 8.76 KM |
| Shopping Malls Near by Puraniks Rahayu | |
|---|---|
| Hypercity | 1.88 KM |
| R Mall | 6.16 KM |
| Regal Plaza | 6.36 KM |
| New Mansi Complex | 7.06 KM |
| Infinity Shopping Arcade | 7.09 KM |
| Cinemax Wonder Mall | 7.12 KM |
| High Street Mall | 7.66 KM |
| Lake City Mall | 7.67 KM |
| My D Mall | 7.67 KM |
| Reliance Digital | 7.97 KM |
| Parks Near by Puraniks Rahayu | |
|---|---|
| Sanjay Gandhi National Park | 6.31 KM |
| Viceroy Park | 8.08 KM |
| Delta Garden | 8.36 KM |
| Shivar Garden | 9.16 KM |
| Aacharya Shru Balchandra Udyan | 9.24 KM |
| Park Palaza Queens Park Mira Road | 9.53 KM |
| Shree Datta Mandir | 9.80 KM |
| Navghar Navin Talao Udyan | 9.82 KM |
| Navghar June Talao Udyan | 9.84 KM |
| Mbmc Play Ground | 9.91 KM |
| Post Offices Near by Puraniks Rahayu | |
|---|---|
| Kasarvadavali Post Office | 1.92 KM |
| Chitalsar Manpada Branch Office | 5.64 KM |
| India Post Apna Bazar | 5.71 KM |
| Apna Bazar Sub Post Office | 5.71 KM |
| Sandozbaugh Sub Post Office | 6.33 KM |
| Kalher Post Office Grampanchayat | 7.65 KM |
| Balkum Sub Post Office | 7.69 KM |
| Jekegram Sub Post Office | 8.49 KM |
| Unique Filling Point | 8.73 KM |
| Mira Bhayander Maha Nagar Palika | 9.55 KM |
Check Travel Time
Connecting Roads - Puraniks Rahayu
Properties in Puraniks Rahayu & Top Sellers
Puranik Builders Pvt Ltd is a real estate development company based in India, headquartered in Thane, Maharashtra. The company was founded in 1990 by Mr. Gopal Puranik and has since grown to become one of the leading real estate developers in the region. The company has a diverse portfolio of projects, including residential apartments, commercial complexes, IT parks, and townships. They have completed over 47 projects and have ongoing projects
This website is only for the purpose of providing information regarding real estate projects in different geographies. Any information which is being provided on this website is not an advertisement or a solicitation. The company has not verified the information and the compliances of the projects. Further, the company has not checked the RERA* registration status of the real estate projects listed herein. The company does not make any representation in regards to the compliances done against these projects. Please note that you should make yourself aware about the RERA* registration status of the listed real estate projects.
*Real Estate (regulation & development) act 2016.