During Q3'2025, average property prices for Alphacorp Gurgaon One 84 moved from ₹ 11,350/sqft to ₹ 11,450/sqft, reflecting a 0.88% rise.

Nestled in the bustling city of Gurgaon, Alphacorp Gurgaon One 84 emerges as a residential haven, harmonizing contemporary living with strategic urban connectivity. Developed by Alphacorp, a name synonymous with quality and innovation, this project is designed to cater to the diverse needs of modern families, offering a blend of comfort, convenience, and sophistication.
Situated in the heart of Gurgaon, Alphacorp Gurgaon One 84 enjoys a strategic location that provides residents with seamless connectivity to major business hubs, educational institutions, healthcare facilities, and recreational zones. The Sector 84 is known for its vibrant atmosphere, ensuring that residents have access to a plethora of amenities and services.
Alphacorp Gurgaon One 84 boasts architectural brilliance that captures the essence of modern living. The design is a testament to Alpha Corp’s commitment to creating structures that not only stand out aesthetically but also provide functional and comfortable living spaces. The project spans 1270-3434 Sq.Ft and caters to various family sizes and preferences. From well-appointed apartments to spacious penthouses, each unit is crafted with attention to detail, ensuring a harmonious balance of aesthetics and functionality.
Alpha Corp places a strong emphasis on sustainable living at Alphacorp Gurgaon One 84. The project incorporates eco-friendly features, energy-efficient systems, and green spaces, aligning with the growing demand for environmentally conscious and responsible living.
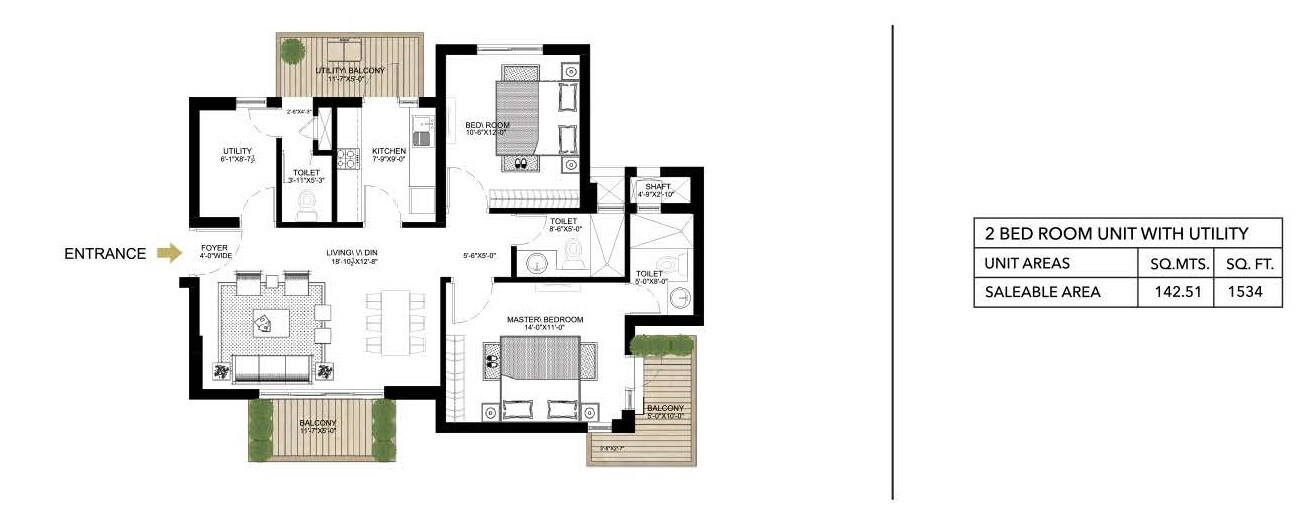
Photos of Alphacorp Gurgaon One 84 Sector 84 Gurgaon
Take a tour of the Alphacorp Gurgaon One 84 through the stunning image gallery.
Alphacorp Gurgaon One 84 Sector 84 Address
The address of Alphacorp Gurgaon One 84 is Sector 84, Gurgaon, Haryana, Pincode- 122004.
Alphacorp Gurgaon One 84 Sector 84 Gurgaon
The project Alphacorp Gurgaon One 84 is located in Sector 84, Gurgaon. Sector 84 is a known residential locality with numerous location advantages and amenities available.
Alphacorp Gurgaon One 84 Sector 84 Apartments
Alphacorp Gurgaon One 84 offers 2 to 4 BHK Flat From 1270 to 3434 Sq.Ft residential apartments.
Alphacorp Gurgaon One 84 Sector 84 2 to 4 BHK Flat From 1270 to 3434 Sq.Ft
Alphacorp Gurgaon One 84 offers well-designed and space-optimized 2 to 4 BHK Flat From 1270 to 3434 Sq.Ft residential apartments for buyers and investors.
Price List of Alphacorp Gurgaon One 84 Sector 84 Apartments
The price list of Alphacorp Gurgaon One 84 apartments can be found in the brochure that is given below.
Alphacorp Gurgaon One 84 Sector 84 Builder
Alphacorp Gurgaon One 84 is a premium-quality yet reasonably priced Residential project by Alpha Corp.
Alphacorp Gurgaon One 84 Sector 84 Construction Status
Alphacorp Gurgaon One 84’s construction update is Ready to Move.
Alphacorp Gurgaon One 84 Gurgaon Description
Alphacorp Gurgaon One 84 in Gurgaon epitomizes modern living with a perfect blend of style, convenience, and connectivity. Strategically located in the heart of Gurgaon at Sector 84, this residential project by Alpha Corp offers contemporary apartments and penthouses designed for optimal comfort. The architectural brilliance is complemented by a host of amenities, including fitness centers, recreational spaces, and lush green landscapes. The community-oriented design fosters social interactions, creating a sense of belonging for residents. With 24/7 security and easy access to retail and dining options, Alphacorp Gurgaon One 84 ensures a secure and hassle-free living experience in one of Gurgaon vibrant neighborhoods.
| Unit Type (Saleable) | Price* | |
|
2 BHK
Apartment
1270
Sq. Ft
|
₹ 1.13 Cr | Check Availability |
|
2 BHK
Apartment
1534
Sq. Ft
|
₹ 1.36 Cr | Check Availability |
|
3 BHK
Apartment
1963
Sq. Ft
|
₹ 1.75 Cr | Check Availability |
|
3 BHK
Apartment
2067
Sq. Ft
|
₹ 1.84 Cr | Check Availability |
|
3 BHK
Apartment
2244
Sq. Ft
|
₹ 1.99 Cr | Check Availability |
|
4 BHK
Apartment
3434
Sq. Ft
|
₹ 3.05 Cr | Check Availability |
Own this home with EMIs starting at ₹ 78.38 K/month - Check Cibil Linked Loan Estimate
During Q3'2025, average property prices for Alphacorp Gurgaon One 84 moved from ₹ 11,350/sqft to ₹ 11,450/sqft, reflecting a 0.88% rise.
Rent in Alphacorp Gurgaon One 84 ranges from ₹ 6 K to ₹ 42 K with options available for Studio, 2 BHK, 3 BHK, 4 BHK.
During Q2'2025, average property prices for Alphacorp Gurgaon One 84 moved from ₹ 11,150/sqft to ₹ 11,350/sqft, reflecting a 1.79% rise.
| Master Bedroom-Walls | Oil Bound Distemper |
| Master Bedroom-Flooring | Laminated Wooden |
| Other Bedrooms-Flooring | Vitrified Tiles |
| Walls | Oil Bound Distemper |
| Living Area-Flooring | Vitrified Tiles |
| Bathroom | Shower Panel, Premium Bath Fittings |
| Structure | RCC Frame Structure |
| Schools Near by Alphacorp Gurgaon One 84 | |
|---|---|
| Euro International School Sector 84 | 0.23 KM |
| Delhi Public School | 0.51 KM |
| Matrikiran School | 0.91 KM |
| Knowledge Tree World School | 0.94 KM |
| St. Andrews World School Gurgaon | 1.11 KM |
| Sri Chaitanya School | 1.13 KM |
| S D Heritage Pride School | 1.36 KM |
| R L International School | 1.50 KM |
| Yaduvanshi Shiksha Niketan | 1.50 KM |
| Chhikara Public School | 1.78 KM |
| Bus Stops Near by Alphacorp Gurgaon One 84 | |
|---|---|
| Circle 3 / Sector 83 | 0.92 KM |
| Casa Bella | 1.20 KM |
| Sapphire Mall Sector 83 | 1.70 KM |
| Badha Village/reliance Mart | 1.77 KM |
| Circle 4 / Rao Jai Singh Chowk | 1.86 KM |
| Dadi Sati Chowk | 2.00 KM |
| Kherki Daula - Nh48 | 2.25 KM |
| Next Vatika Chowk | 2.39 KM |
| Dlf Corporate Greens | 2.51 KM |
| Nawada Bus Stop | 2.63 KM |
| Hospitals Near by Alphacorp Gurgaon One 84 | |
|---|---|
| Foresight Eye Hospital | 0.59 KM |
| Genesis Hospital | 0.79 KM |
| Saksham Healthcare | 0.86 KM |
| Star Eye Centre & General Surgery Clinic 1 | 1.80 KM |
| Nouveau Medics Multispeciality Opd | 1.89 KM |
| Miracles Apollo Cradle/spectra Sec 82 - Hospital | 1.94 KM |
| Arc Multi Speciality Hospital | 2.01 KM |
| Artemis Lite - 82a | 2.18 KM |
| Eye-q Super-speciality Eye Hospitals | 2.36 KM |
| Aarvy Healthcare Pvt Ltd. | 2.36 KM |
| Clinics Near by Alphacorp Gurgaon One 84 | |
|---|---|
| Bone And Joint Clinic. Dr. Anil Kumar Mbbs.ms Orthopedics | 0.13 KM |
| Preswitch Physiotherapy Clinic | 0.16 KM |
| Shabd Rehab Center (online Therapy) Speech Therapy Center | 0.34 KM |
| Petkar's Dental Studio | 0.40 KM |
| Ojas Dental Care | 0.62 KM |
| Medcure Clinic | 0.80 KM |
| Dietician Ila Sharrma | Certified Lactation Consultant | 0.86 KM |
| Dr Raktima Chakrabarti-best Pediatrician In New Gurgoan | 0.95 KM |
| Avni Clinic | 1.06 KM |
| Sunshine Speech Therapy And Occupational Therapy Center | 1.38 KM |
| Gym Fitness Near by Alphacorp Gurgaon One 84 | |
|---|---|
| Shakti Yogashala | 1.26 KM |
| My Fitness Goal | 1.37 KM |
| The Bodyline Gym & Cross Fit | 1.49 KM |
| Welcome Spa 83 | 1.49 KM |
| Empire Of Fitness | 1.59 KM |
| Rehav- Physiotherapy | 1.59 KM |
| Muscle Verse Gym | 1.63 KM |
| Pranav Yoga And Physiotherapy | 1.65 KM |
| Guru Dronacharya Sports Academy | 1.71 KM |
| Flexifit Gymnastics Academy Vatika | 1.77 KM |
| Restaurants Near by Alphacorp Gurgaon One 84 | |
|---|---|
| Bhai Ki Rasoi | 1.48 KM |
| The Pizza Square | 1.50 KM |
| Food Frolic | 1.52 KM |
| The Hyve | 1.84 KM |
| Kitchen District - Hyatt Regency | 1.93 KM |
| Taste Of Gurgaon | 2.75 KM |
| Under The Neem | 4.94 KM |
| Punjab On My Plate | 6.95 KM |
| Sagar Ratna | 7.36 KM |
| Shri Ram Dhaba | 7.50 KM |
| Temples Near by Alphacorp Gurgaon One 84 | |
|---|---|
| Temple | 0.84 KM |
| Open Temple | 1.35 KM |
| Bhole Baba Temple | 1.65 KM |
| Arya Samaj Mandir | 1.82 KM |
| Baba Piplinaath Temple Johar | 2.65 KM |
| Baba Budhnath Mandir | 3.14 KM |
| New Shiv Mandir | 3.17 KM |
| Shri Hanumaan Mandir | 3.84 KM |
| Eklavya Mandir (khandsa) | 4.28 KM |
| Mata Temple | 4.67 KM |
| Food Others Near by Alphacorp Gurgaon One 84 | |
|---|---|
| Warmoven Cake & Desserts | 0.57 KM |
| Harish Bakers & Sweets Sector 83 | 1.48 KM |
| Giani's Icecream | 1.49 KM |
| Harish Bakery | 1.50 KM |
| Havmor Ice Cream | 1.67 KM |
| Theobroma | 1.71 KM |
| Nirula's Sector 86 | 1.79 KM |
| Giani's Ice Cream | 2.75 KM |
| Fnp Manesar | 2.76 KM |
| Kwality Walls | 4.86 KM |
| Clothings Near by Alphacorp Gurgaon One 84 | |
|---|---|
| Cladway Uniform | 0.56 KM |
| Me N Moms | 1.01 KM |
| Zudio - Gurugram | 1.02 KM |
| Pantaloons (sapphire 83 | 1.50 KM |
| Firstcry.com Store Gurgaon Sector 83 | 1.54 KM |
| Newu | 1.69 KM |
| Jockey@iris Broadway 85 | 1.70 KM |
| W For Woman | 1.87 KM |
| Givo Exclusive Store | 2.23 KM |
| Pantaloons (sapphire 90 | 2.81 KM |
| Supermarkets Near by Alphacorp Gurgaon One 84 | |
|---|---|
| Sodhi's Supermarket | 1.88 KM |
| 24seven | 1.99 KM |
| Home Shopee | 2.86 KM |
| Vishal Mega Mart- Gurgaon | 3.84 KM |
| G.s.daily Needs | 4.91 KM |
| Dmart | 5.47 KM |
| Tapodhani Modern Bazar | 5.60 KM |
| Max Mart | 5.84 KM |
| Rg Grocery | 5.90 KM |
| More Hypermart | 5.91 KM |
Check Travel Time
Connecting Roads - Alphacorp Gurgaon One 84
Average Asking Price of Properties in Sector 84 is around ₹ 10,600 /Sq.ft
Sector 84 holds the 207 position in the city for overall livability.
| Transaction Value | Sale Count |
|---|---|
| 10K - 10.5K | 3 |
| 10.5K - 11K | 32 |
| 11K - 11.5K | 18 |
| 11.5K - 12K | 19 |
| 12K - 12.5K | 7 |
| 12.5K - 13K | 4 |
| Configurations | In Alphacorp Gurgaon One 84 | In Sector 84 |
|---|---|---|
| STUDIO | ₹ 5.5 k | ₹ 5.5 k |
| 1 BHK | - | ₹ 15.8 K |
| 2 BHK | ₹ 29.3 K | ₹ 19.8 K |
| 3 BHK | ₹ 31.1 K | ₹ 35.4 K |
| 4 BHK | ₹ 42.4 K | ₹ 45.9 K |
| 5 BHK | - | ₹ 64.9 K |
Properties in Alphacorp Gurgaon One 84 & Top Sellers
Discover your dream home in the serene and secure locality of Sector 84, Gurgaon.<br><ul><li>This exquisite semifurnished apartment in the prestigious project, Alphacorp Gurgaon One 84, offers a perfect blend of comfort and luxury.</li><li> Spanning an impressive area of 1,270 square feet, this property features 2 spacious bedrooms and 2 wellappointed bathrooms, making it ideal for families or individuals seeking a tranquil lifestyle.As you step into the apartment, youll immediately appreciate the ample sunlight streaming through its wellventilated layout.</li><li> Situated on the 3rd floor of a 22story building, this home provides a delightful road view, enhancing the overall ambiance.</li><li> The apartment is designed for modern living and is equipped with a host of amenities that cater to your leisure and fitness needs.</li><li> Enjoy active weekends at the gymnasium, swimming pool, or indulge in a friendly match at the badminton, tennis, or squash courts.</li><li> For families, the kids play areas and jogging/cycle track offer a safe space for children to frolic and explore.Safety and convenience are paramount, with 24 x 7 security, CCTV surveillance, and maintenance staff ensuring peace of mind.</li><li> The property also includes a dedicated parking space and waste disposal services, making everyday living hasslefree.</li></ul>At a competitive price of 1.45 crore, this apartment presents a quick deal opportunity for home buyers and investors alike.
Discover an exceptional opportunity to own a beautiful 2bedroom apartment in the heart of Gurgaon, located in the vibrant Sector 84 within the prestigious Alphacorp Gurgaon One 84 project.<br><ul><li>Priced attractively at 1.45 Cr, this semifurnished residence spans an impressive 1270 square feet and is perfectly positioned on the 18th floor, providing a stunning garden view that enhances your living experience.</li><li> This apartment is not just a home it’s a lifestyle choice.</li><li> With 2 wellappointed bathrooms and a designated parking space, it offers both comfort and convenience.</li><li> The property is relatively new, aged just 24 years, ensuring modern amenities and a fresh living environment.</li><li> The community boasts a plethora of topnotch amenities designed for both relaxation and recreation.</li><li> Enjoy daily workouts in the gymnasium, refreshing swims in the swimming pool, or engage in friendly matches at the badminton, tennis, and squash courts.</li><li> Families will appreciate the dedicated kids play areas and jogging tracks, while the clubhouse serves as a social hub for residents.</li></ul>Safety and security are paramount, with 24 x 7 security and power backup ensuring peace of mind.Set in a safe and secure locality, this apartment not only promises a peaceful living experience but also serves as a fantastic investment opportunity, thanks to its proximity to the city center and other essential facilities.
Welcome to the epitome of luxury living in Sector 84, Gurgaon, where your dream apartment awaits at a breakthrough price of 1.7 crore.<br><ul><li>Nestled within the esteemed Alphacorp Gurgaon One 84 project, this semifurnished 2bedroom, 2bathroom apartment spans an impressive 1534 square feet and is situated on the 11th floor of a wellmaintained 24floor building.</li><li> With a stunning community view, this home promises not just comfort but a lifestyle that resonates with modern elegance and convenience.Designed by a reputed builder, this property is an excellent investment opportunity for those seeking a blend of luxury and practicality.</li><li> The apartment features builtin wardrobes and a walkin closet, providing ample storage space.</li><li> Enjoy the myriad of amenities that this community offers, including a refreshing swimming pool, dedicated sports courts for badminton, tennis, and squash, and kids play areas that ensure fun for the little ones.</li><li> For fitness enthusiasts, there’s a jogging and cycle track, alongside a spacious clubhouse perfect for social gatherings.Safety and convenience are paramount, with 24 x 7 security, power backup, and a wellequipped maintenance team ensuring your peace of mind.</li><li> Additionally, the property includes a pet area, visitors parking, and service elevators, making it suitable for families of all sizes.</li></ul>Experience the essence of upscale living, surrounded by greenery and thoughtful amenities that cater to all your lifestyle needs.
Your search for a spacious and well-located home in Gurgaon ends here with this ready-to-move-in apartment in the prestigious Alphacorp Gurgaon One 84 project.<br><ul><li>This unfurnished 2 bedroom, 2 bathroom home spans 1270 square feet and is situated on the 22nd floor of a 24-story building, offering a pleasant garden view.</li><li> The property boasts a dedicated parking space and is located in a safe and secure locality, perfect for families who value peace of mind.</li><li> You'll have access to a wide array of amenities, including a gymnasium, swimming pool, badminton and tennis courts, a squash court, kids' play areas, and a jogging/cycle track, ensuring there always something to keep you active and entertained.</li><li> With 24/7 security and power backup, you can relax knowing your comfort and safety are well taken care of, all within a prime location developed by a reputed builder.</li></ul>Secure this advantageous property and begin building your future in a community designed for a fulfilling lifestyle.
Alphacorp Gurgaon One 84, a prestigious project by a reputed builder, offers a spacious and Vastu compliant 2.5 BHK apartment for sale in Sector 84, Gurgaon.<br><ul><li>Located in a safe and secure locality with a wide road, this property is perfect for those seeking a comfortable and convenient living experience.Spread across an area of 1400 square feet, the semi-furnished apartment offers a breathtaking view of the road.</li><li> The apartment features 2 well-appointed bedrooms, perfect for small families or individuals looking for extra space.</li><li> The well-maintained bathrooms ensure a relaxing and refreshing experience.Additionally, this apartment comes with one parking space for your convenience.</li><li> The project boasts a total of 19 floors, and this apartment is situated on the 5th floor giving you a sense of privacy and tranquility.</li><li> With an age between 5-7 years, the property has stood the test of time and provides a solid foundation for a new home.Alphacorp Gurgaon One 84 offers a range of amenities to enhance your living experience.</li><li> Whether you are looking for a gymnasium, swimming pool, or a clubhouse, these facilities cater to all your recreational and fitness needs.Priced at 1.3 Crore, this apartment is a great investment opportunity.</li><li> With its prime location, excellent facilities, and comfortable living space, this property is a dream come true for potential homebuyers.</li></ul>Dont miss out on the chance to own a piece of luxury in Gurgaon.
Seeking a home that offers both convenience and a touch of class in Gurgaon Sector 84.<br><ul><li>This semi-furnished 3-bedroom, 4-bathroom apartment in Alphacorp Gurgaon One 84 is a fantastic find, spanning a generous 1923 square feet.</li><li> It a place designed for those who appreciate a quick deal and a fully renovated living space within a gated society, promising a luxury lifestyle in a prime location.</li><li> You'll have the use of a gymnasium, swimming pool, badminton and tennis courts, a squash court, and kids' play areas, plus a jogging and cycle track.</li><li> Convenience is key here with power backup, central air conditioning and Wi-Fi, an attached market, restaurant, home automation, and 24/7 security.</li><li> There also a clubhouse, high-speed elevators, a pre-school, medical facilities, a day-care center, a pet area, and indoor games, all adding to the comfortable living experience.</li><li> You will also benefit from a conference room, a large green area, a concierge desk, visitor parking, and even a golf course nearby.</li><li> With ample parking for two vehicles, built-in wardrobes, a walk-in closet, and a lobby in the building, every detail is considered for your comfort, including barbeque areas and double-glazed windows for added peace.</li></ul>Come experience this well-appointed apartment and start creating your new chapter in this vibrant community.
Nestled in the serene and secure locality of Sector 84, Gurgaon, this stunning semifurnished apartment offers an unparalleled living experience, perfect for families and discerning investors alike.<br><ul><li>With a generous area of 1,923 square feet, this residence boasts three spacious bedrooms and four wellappointed bathrooms, ensuring comfort and privacy for every member of the household.</li><li> Located on the 12th floor of the prestigious Alphacorp Gurgaon One 84, this home presents a captivating garden view, enhancing your everyday living with a touch of nature.This property, priced at an attractive 2.29 crore, is a prime investment opportunity due to its freehold status and the reputation of its builder.</li><li> The apartment is designed to provide a peaceful environment while being conveniently close to essential amenities.</li><li> Residents can enjoy a plethora of facilities including a modern gymnasium, a refreshing swimming pool, and courts for badminton, tennis, and squash.</li><li> For families with children, the presence of kids play areas and a preschool adds to the appeal.The apartment is equipped with essential modern conveniences such as power backup, central air conditioning, and highspeed WiFi, ensuring a comfortable and connected lifestyle.</li><li> Safety is paramount with 24 x 7 security services and a clubhouse for community gatherings.</li></ul>Additional features such as a jogging/cycle track, attached market, restaurant, medical facility, and pet area further enhance the living experience, making it an ideal choice for those seeking a balanced lifestyle in a vibrant community.
Discover a remarkable opportunity to own a stunning semifurnished apartment in the desirable Sector 84 of Gurgaon, designed for those who seek comfort and luxury.<br><ul><li>This exquisite property, located on the 11th floor of the prestigious Alphacorp Gurgaon One 84, spans an impressive area of 1923 square feet, offering ample space for your lifestyle needs.</li><li> With three spacious bedrooms and four modern bathrooms, this apartment is perfect for families or anyone looking for a peaceful retreat in a safe and secure locality.The garden view from the apartment enhances the serene ambiance, making it an ideal place to unwind after a long day.</li><li> The community boasts a wealth of amenities that cater to all your recreational and fitness needs, including a wellequipped gymnasium, a refreshing swimming pool, and various sports courts such as badminton, tennis, and squash.</li><li> For families, the kids play areas and jogging/cycle track provide excellent outdoor activities, ensuring a balanced lifestyle for residents of all ages.This property, priced at 2.29 crore, presents an incredible investment opportunity in a rapidly developing area.</li><li> With power backup and 24 x 7 security, you can enjoy peace of mind knowing that your home is both safe and comfortable.</li></ul>The clubhouse adds an extra touch of community living, making it easy to connect with neighbors and enjoy social gatherings.
Introducing a luxurious apartment in the prestigious Sector 84, Gurgaon.<br><ul><li>This spacious 3 BHK apartment is located in the highly sought-after Alphacorp Gurgaon One 84 project.</li><li> With a price of 2.4 Cr, it offers a great investment opportunity in a reputed builders development.Spread across 1923 Square Feet, this apartment features a semi-furnished layout that is perfect for urban living.</li><li> The apartment is well-maintained and is just 2-4 years old, ensuring a modern and sleek living space.</li><li> The property boasts a picturesque pool view, with plenty of natural light and air.</li><li> Furthermore, the location of the apartment provides a completely safe and secure locality, making it ideal for families.Residents of Alphacorp Gurgaon One 84 will enjoy an array of amenities, including a gymnasium, swimming pool, badminton courts, tennis courts, squash courts, kids play areas, jogging/cycle track, and even a clubhouse.</li><li> The building also provides power backup, central AC, and central Wi-Fi for convenience.Additionally, there are various other facilities available within the premises such as an attached market, restaurant, home automation, 24x7 security, balcony, high-speed elevators, pre-school, medical facilities, day-care center, pet area, indoor games, conference room, and a large green area for recreation.The apartment is located on the 7th floor of a 20-floor building, providing a peaceful living experience and excellent views.</li><li> With 3 bedrooms and 4 bathrooms, there is ample space for a growing family.</li><li> The apartment also comes with one dedicated parking space.Dont miss out on the opportunity to own a piece of luxury in Sector 84, Gurgaon.</li></ul>The prime location, reputed builder, spacious layout, and a plethora of amenities make this apartment a perfect choice for those looking to invest or settle down.
Welcome to your new home in the heart of Sector 84, Gurgaon! This stunning semifurnished apartment in the wellregarded Alphacorp Gurgaon One 84 project is perfect for families seeking a safe and secure locality.<br><ul><li>Spanning an impressive 1,300 square feet, this spacious 2bedroom, 2bathroom residence is located on the 12th floor of a modern 27floor building, offering breathtaking garden views that can be enjoyed from the comfort of your living room.The apartment is designed with both comfort and convenience in mind, featuring a wellmaintained interior that is just 24 years old.</li><li> The rental price of just 30 thousand makes it an affordable option for those looking to settle in one of Gurgaons vibrant neighborhoods.</li><li> The property also includes a dedicated parking space, ensuring that your vehicle is secure.Residents of this wonderful community can take advantage of a range of topnotch amenities, including a gymnasium, swimming pool, badminton and tennis courts, squash court, kids play areas, and a jogging/cycle track.</li></ul>Additional features such as power backup, 24 x 7 security, and a clubhouse enhance the overall living experience, making it a delightful choice for families or individuals looking for a balanced lifestyle.
Discover your next home in the heart of Sector 84, Gurgaon, where comfort meets convenience in this stunning semifurnished 2bedroom apartment at Alphacorp Gurgaon One 84.<br><ul><li>Spanning an impressive 1300 square feet, this wellmaintained residence is perfect for families seeking a spacious and affordable living option in a safe and secure locality.</li><li> Situated on the 12th floor of a wellstructured 27floor building, this apartment boasts a delightful garden view, ensuring a tranquil environment to unwind after a long day.</li><li> With two bathrooms and a dedicated parking space, this property accommodates your familys needs effortlessly.</li><li> The apartment is designed to provide ample natural light and ventilation, enhancing your living experience.The amenities offered are truly exceptional, featuring a fully equipped gymnasium, refreshing swimming pool, and multiple sports facilities including badminton, tennis, and squash courts.</li><li> Children will love the designated play areas, while fitness enthusiasts can enjoy jogging or biking along the tracks.</li><li> The 24 x 7 security and power backup ensure peace of mind, making it an ideal place for you and your loved ones.</li></ul>With a rental price of just 30 thousand, this apartment stands out as an attractive option for those looking to invest in a vibrant community that prioritizes both lifestyle and safety.
Experience comfortable living in this spacious 2bedroom apartment available for rent in the desirable Sector 84 of Gurgaon.<br><ul><li>Nestled within the wellmaintained project, Alphacorp Gurgaon One 84, this semifurnished home spans an impressive 1300 square feet, offering ample space for families to thrive.</li><li> The apartment is situated on the 12th floor of a 27story building, providing a serene garden view that enhances the overall living experience.Safety and security are top priorities in this locality, making it an ideal choice for families seeking a peaceful environment.</li><li> At an affordable rent of 30 thousand, this apartment not only meets your housing needs but also fits within your budget.</li><li> The property is relatively new, aged between 24 years, ensuring modern finishes and fixtures.Residents can enjoy a host of amenities designed for a balanced lifestyle, including a wellequipped gymnasium, swimming pool, and courts for badminton, tennis, and squash.</li><li> The kids play areas and jogging/cycle tracks cater to all age groups, while power backup and 24 x 7 security provide peace of mind.</li></ul>Additionally, a clubhouse serves as a social hub for gatherings and activities.With one dedicated parking space and easy access to local conveniences, this apartment is perfect for those looking for a blend of comfort, security, and community living in the heart of Gurgaon.
Consider making your next home in Alphacorp Gurgaon One 84, a prime Sector 84 location in Gurgaon, where this well-maintained, newly built 2-bedroom, 2-bathroom apartment is available for rent at 30 thousand per month.<br><ul><li>Spanning 1181 square feet on the 12th floor of a 24-story building, this semi-furnished apartment offers a refreshing road view and excellent ventilation, making your living space bright and airy.</li><li> Living here means enjoying a host of top-notch amenities designed for a comfortable and active lifestyle, including a gymnasium, swimming pool, badminton and tennis courts, squash court, and dedicated kids' play areas.</li><li> You can stay active on the jogging and cycle track, and with features like power backup and 24x7 security, you will have peace of mind.</li><li> The society also boasts a clubhouse for socializing and community events, all within a secure gated environment.</li><li> With 1 parking space included and the property being only 2-4 years old, this apartment presents a blend of modern living and convenience that makes it an attractive choice for settling down.</li></ul>Come experience a lifestyle where all your daily needs and leisure activities are easily accessible right at your doorstep.
Nestled in the vibrant Sector 84 of Gurgaon, this semifurnished 3bedroom apartment offers a perfect blend of comfort, style, and convenience, all at a breakthrough rental price of 30 thousand.<br><ul><li>Spanning an impressive 1826 square feet, the apartment is designed with a thoughtful layout that ensures ample ventilation and a serene park view, making it an ideal sanctuary for families.Situated on the 23rd floor of the prestigious Alphacorp Gurgaon One 84 project, residents will enjoy breathtaking views and a sense of tranquility away from the citys hustle.</li><li> The property is relatively new, with an age of 24 years, providing modern amenities and facilities that cater to contemporary living.</li><li> With 3 wellappointed bathrooms, a spacious living area, and a balcony, this home is perfect for families seeking both space and comfort.The apartment boasts a wealth of amenities that enhance daily living.</li><li> Enjoy access to a gymnasium, swimming pool, and various sports courts including badminton, tennis, and squash.</li><li> For families with children, there are dedicated kids play areas, a preschool, and a day care center.</li><li> Additionally, the community features extensive green spaces, jogging tracks, and a clubhouse, ensuring a balanced lifestyle.Safety and security are paramount, with 24 x 7 security, CCTV surveillance, and maintenance staff onsite.</li><li> The property also includes convenient features such as power backup, visitor parking, and service elevators.</li></ul>With all these offerings, this apartment not only promises a comfortable home but also a vibrant community lifestyle.
Live a life of elegance in Gurgaon Sector 84 at Alphacorp Gurgaon One 84, where this spacious 2250 square feet, 3.5-bedroom, 4-bathroom semi-furnished apartment is available for rent at 42,000 per month.<br><ul><li>Situated on the 15th floor of a 23-story building, this home boasts a desirable park view and comes with 2 dedicated parking spots, offering a sense of calm and connection with nature right from your balcony.</li><li> You will be part of a community that values luxury and convenience, with access to a vast array of amenities including a gymnasium, swimming pool, badminton and tennis courts, squash court, jogging track, and kids' play areas, ensuring there always something engaging to do.</li><li> The building also provides essential services like 24x7 security, power backup, central Wi-Fi, a clubhouse, and high-speed elevators, all within a well-maintained and beautifully designed complex.</li><li> Additional conveniences like an attached market, restaurant, and day-care center add to the seamless living experience, making daily life easier and more enjoyable.</li></ul>Embrace a lifestyle where comfort, leisure, and security are paramount, creating a truly exceptional living environment.
Welcome to your dream rental apartment in the highly soughtafter Sector 84 of Gurgaon, where convenience meets luxury.<br><ul><li>This stunning semifurnished apartment spans an impressive 1980 square feet and boasts a spacious layout featuring 3.5 bedrooms and 3 modern bathrooms, perfect for families looking for comfort and style.</li><li> Located on the 12th floor of the prestigious Alphacorp Gurgaon One 84, you will enjoy breathtaking garden views that create a serene atmosphere right from your balcony.Set within a gated society, this property promises a safe and secure living environment, complemented by ample parking space.</li><li> The wide road access makes commuting hasslefree, and the wellmaintained surroundings enhance the overall appeal.</li><li> The apartment is designed with tasteful interiors, ensuring a warm and inviting ambiance.Residents will have access to an array of topnotch amenities, including a wellequipped gymnasium, swimming pool, badminton and tennis courts, and a squash court.</li><li> For families, the kids play areas and day care center provide entertainment and convenience, while fitness enthusiasts can enjoy the jogging and cycle tracks.</li><li> Additional features such as power backup, 24 x 7 security, and CCTV security ensure peace of mind.With an attached market and restaurant within the premises, daily essentials are just a stones throw away.</li><li> The large green area enhances the living experience, offering a space for relaxation and leisure.</li><li> This property, with a maintenance staff ready to assist, is ideal for anyone looking to invest in a vibrant community lifestyle.</li></ul>Available for rent at an attractive price of 40 thousand, this apartment is a perfect blend of elegance and functionality.
Securing a spacious 4-bedroom, 5-bathroom semi-furnished apartment for rent at 50 thousand in Sector 84, Gurgaon, presents a remarkable chance to experience a luxury lifestyle with stunning park views from the 15th floor.<br><ul><li>This residence within Alphacorp Gurgaon One 84 offers an expansive 3434 square feet of living space and boasts an impressive array of amenities, including a gymnasium, swimming pool, badminton and tennis courts, squash court, kids' play areas, jogging and cycle tracks, 24x7 security, a clubhouse, high-speed elevators, and even a helipad and golf course.</li><li> Imagine having a central Wi-Fi, power backup, central AC, and an attached market, along with conveniences like a day-care center, medical facility, and concierge desk all within the complex.</li><li> The apartment itself features a balcony, built-in wardrobes, and ample parking for two vehicles, all within a well-maintained building constructed by a reputed builder.</li></ul>This is an ideal rental for those who value comfort, convenience, and a premium living experience.
Alpha Corp is a renowned real estate development company based in Noida and Gurgaon. With a total of four projects in their portfolio, they have established themselves as a leading player in the industry. The company is driven by a commitment to professionalism, integrity, transparency, respect for people, innovation, quality, and sustainability. They strive to be customer-focused and differentiate themselves in the crowded market through their adherence to industry best
Read the reviews about Alphacorp Gurgaon One 84 located at Sector 84 Gurgaon and see what residents and real estate experts have to say about the project.
Premium, ready-to-move project with spacious 3-side open flats and good amenities. Ideal for end-users seeking peaceful living. Limited connectivity and some maintenance issues – best for clients prioritizing space and gated security over location. Thanks
Best maintenance
We are enjoying our livelihood. They provided us with good facilities. This project fulfilled all expectations here. We are satisfied with the amenities. So, all over this project is providing me with a good deal. I would 100% recommend buying your own house here.
They provide us with a luxurious project that offers a host of amenities that will make our stay truly wonderful. Their power backup and 24 hours water supplies are incredible. The swimming pool is one of the favorite parts of my choice.
The project has great connectivity to all parts of the city. The nearest railway station is 4.5 km away also, and the international airport is 5.5 km away. Many markets, schools, and hospitals are near this sector. That is very beneficial for us in daily life.
Alphacorp Gurgaon One 84’s provided us with exquisitely designed specifications. That makes it an incomparable residential paradise for us. Premium bath fittings, Oil Bound Distemper bedroom walls, and tiles are fascinating. They provide us with well-built construction. Works are very innovative.
I completely fell in love with the project of Alphacorp Gurgaon One 84. It is located in Sector 84 at Gurgaon. I feel so lucky to live here. Despite being on a busy road, the flat is quiet. The project has everything you need. The whole place made us feel at ease.
This website is only for the purpose of providing information regarding real estate projects in different geographies. Any information which is being provided on this website is not an advertisement or a solicitation. The company has not verified the information and the compliances of the projects. Further, the company has not checked the RERA* registration status of the real estate projects listed herein. The company does not make any representation in regards to the compliances done against these projects. Please note that you should make yourself aware about the RERA* registration status of the listed real estate projects.
*Real Estate (regulation & development) act 2016.|
|
|
|
|
|
|
|
|
|
|
|
|
|
|
|
|
|
|
|
|
|
|
|
|
|
|
|
|
|
|
|
|
|
|
|