A total of 9 residential transactions has been registered so far for Valencia And Mishal One Marina, amounting to ₹ 32 Cr till December 2025.

A total of 9 residential transactions has been registered so far for Valencia And Mishal One Marina, amounting to ₹ 32 Cr till December 2025.
A total of 195 out of 250 launched units have been booked as of November 2025, including 43% of 4 BHK(9 out of 21 units), 91% of 3 BHK(117 out of 129 units), 105% of 2 BHK(65 out of 62 units), 100% of SHOP(4 units).
During Q3'2025, average property prices for Valencia And Mishal One Marina moved from ₹ 34,700/sqft to ₹ 35,550/sqft, reflecting a 2.45% rise.
A total of 195 out of 250 launched units have been booked as of May 2025, including 43% of 4 BHK(9 out of 21 units), 91% of 3 BHK(117 out of 129 units), 105% of 2 BHK(65 out of 62 units), 100% of SHOP(4 units).
A total of 123 out of 250 launched units have been booked as of July 2024, including 33% of 4 BHK(7 out of 21 units), 72% of 3 BHK(93 out of 129 units), 31% of 2 BHK(19 out of 62 units), 100% of SHOP(4 units).
Structural Works reach 55% completion.
A total of 123 out of 250 launched units have been booked as of May 2024, including 33% of 4 BHK(7 out of 21 units), 72% of 3 BHK(93 out of 129 units), 31% of 2 BHK(19 out of 62 units), 100% of SHOP(4 units).
Structural Works reach 41% completion.
Structural Works reach 40% completion.
Structural Works reach 30% completion.
This is the podium floor plan for Valencia And Mishal One Marina, showing the main amenity deck of the property. The plan focuses on the recreational and landscaped areas, with details regarding total land area, number of units, or towers not visible on this specific overview.
The podium level is dedicated entirely to communal open spaces, including extensive recreational facilities, various lounge areas, and landscaped gardens. There are no explicit residential or commercial zones indicated on this specific floor plan, nor are units per acre specified.
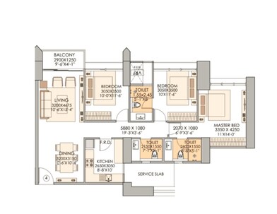
| Master Bedroom-Walls | Oil Bound Distemper |
| Master Bedroom-Flooring | Vitrified Tiles |
| Other Bedrooms-Flooring | Vitrified Tiles |
| Walls | Oil Bound Distemper |
| Living Area-Flooring | Vitrified Tiles |
| Structure | RCC Frame Structure |
| Schools Near by Valencia And Mishal One Marina | |
|---|---|
| Little Flower Of Jesus High School | 0.07 KM |
| Bai M.n.gamadia Girls High School | 0.09 KM |
| Our Lady Of Dolours High School | 0.26 KM |
| Barretto High School | 0.31 KM |
| Marwari Commercial High School & Jr. College Now M C H School And Junior College | 0.36 KM |
| Marwari Commercial High School & Junior Collage | 0.38 KM |
| Shakuntala Kantilal Ishwarlal Jain High School | 0.42 KM |
| Hvb Global Academy | 0.46 KM |
| St. Annes Girls High School | 0.47 KM |
| St. Xaviers High School | 0.47 KM |
| Bus Stops Near by Valencia And Mishal One Marina | |
|---|---|
| Princess Street (kalbadevi) | 0.11 KM |
| Princess Street - Chandan Wadi | 0.11 KM |
| Chandan Wadi - Princess Street | 0.12 KM |
| Princess Street | 0.17 KM |
| Marine Lines Railway Station | 0.21 KM |
| Marine Lines Station | 0.28 KM |
| Kalbadevi | 0.30 KM |
| Kalba Devi | 0.30 KM |
| Dava Bazar (kalbadevi) | 0.32 KM |
| Vasudev Balwant Phadke Chowk Bus Stop | 0.36 KM |
| Hospitals Near by Valencia And Mishal One Marina | |
|---|---|
| Bombay Hospital & Medical Research Centre | 0.56 KM |
| Bombay Hospital College Of Nursing | 0.56 KM |
| Gokuldas Tejpal Hospital Nursing College | 0.57 KM |
| Suryakant Wagal Maternity Hospital | 0.67 KM |
| Cama And Albless Hospital | 0.77 KM |
| K.g.mittal Ayurvedic College | 0.78 KM |
| K.g. Mittal Medical College And Hospital | 0.78 KM |
| Conwest And Manjula S. Badani Jain Hospital | 1.12 KM |
| Daily Medical 24 Hours Next To Noor Hospital | 1.14 KM |
| Noor Hospital | 1.16 KM |
| Restaurants Near by Valencia And Mishal One Marina | |
|---|---|
| Gughan Supreme South Indian | 0.29 KM |
| Jaffer Bhai's Delhi Darbar | 0.36 KM |
| Sunlight Restaurant And Bar | 0.36 KM |
| Mao Family Restaurant | 0.37 KM |
| Cafe Metro | 0.41 KM |
| Shree Thaker Bhojanalay | 0.62 KM |
| Balwas' Restaurant | 0.73 KM |
| Onomato Pizza | 0.74 KM |
| Hotel Shree G. Bhagat Tarachand | 0.79 KM |
| Ustaadi | 0.83 KM |
| College and Universities Near by Valencia And Mishal One Marina | |
|---|---|
| Nifd Global South Mumbai - Fashion Design & Interior Design Institute In Mumbai | 0.33 KM |
| Maharashtra State Skills University(mssu) - Maharashtra's First Skills University | 0.46 KM |
| Elphinstone Technical College | 0.51 KM |
| Grant Medical College Students Association Gymkhana | 0.56 KM |
| Xavier Institute Of Management And Research | 0.67 KM |
| St. Xavier's College (autonomous) | 0.67 KM |
| Smt Kamaladevi Gauridatta Mittal Punarvasu Ayurvedic Medical College | 0.78 KM |
| Sir J J College Of Architecture | 0.83 KM |
| The Byramjee Jeejeebhoy College Of Commerce | 0.83 KM |
| Leelabai Thackersey College Of Nursing | 0.88 KM |
| Clinics Near by Valencia And Mishal One Marina | |
|---|---|
| Dr Shailey Chheda | 0.53 KM |
| One Spine - Best Spine Clinic In South Mumbai | Osteoporosis | 0.57 KM |
| Qi Spine Clinic | 0.78 KM |
| Dr. Ritesh Agrawal | 1.01 KM |
| Dr. Gaurav Gangwani (dnb | 1.11 KM |
| Saifee Dental Clinic | 1.16 KM |
| Mahavir Diagnostic Centre & Interventional Radiology Clinic (best Sonography Near Me- Blood Test- 2d | 1.17 KM |
| Dr Viral Maru Pediatric Dentist | 1.21 KM |
| Lenskart.com At Girgaon | 1.29 KM |
| Pujari Clinic | 1.38 KM |
| Gym Fitness Near by Valencia And Mishal One Marina | |
|---|---|
| Navroop Yoga - Yoga Classes In Mumbai | 0.20 KM |
| Yoga By Suravi - Yoga Classes At Home In Mumbai | 0.23 KM |
| Style Gym | 0.35 KM |
| Rishi Yog - Yoga Classes At Home In Mumbai | 0.49 KM |
| Powermax Fitness Exclusive (j Walk Fitness Store) | 0.51 KM |
| Bombay Gymkhana | 1.09 KM |
| Physio Active Pro Fitness Gym | 1.26 KM |
| Only Talent The Activity N Fitness Studio | 1.47 KM |
| Soulnbody Power Yoga Health Is Wealth | 1.84 KM |
| Ofc Gym | 1.84 KM |
| Clothings Near by Valencia And Mishal One Marina | |
|---|---|
| The New Ahmedabad Sports Depot | 0.26 KM |
| Mahavir Nx | 0.52 KM |
| Dawood Khan Tailors And Clothier | 1.35 KM |
| Nykaa Luxe | 1.38 KM |
| Fabindia | 1.47 KM |
| Babubhai Jagjivandas | 1.55 KM |
| Kala-kendra Grant Road | 1.58 KM |
| Sabyasachi | 1.69 KM |
| Kora Hughes Road | 1.93 KM |
| Fabindia Experience Center | 2.00 KM |
| Cinema Halls Near by Valencia And Mishal One Marina | |
|---|---|
| Edward Cinema | 0.30 KM |
| Wave Vr | 0.32 KM |
| Metro Inox Cinema | 0.47 KM |
| Carnival Cinemas Liberty | 0.51 KM |
| Sterling Cineplex | 1.10 KM |
| New Excelsior Mukta A2 Cinemas | 1.19 KM |
| New Empire Cinema | 1.20 KM |
| Alankar Theater | 1.33 KM |
| Moti Talkies | 1.38 KM |
| Roxy Cinemas | 1.41 KM |
| Home Decors Near by Valencia And Mishal One Marina | |
|---|---|
| Godrej Interio - Furniture Store In Fort | 1.28 KM |
| Soho Mattress | 1.66 KM |
| Godrej Interio - Furniture Store In Byculla | 2.39 KM |
| Duroflex Experience Centre - Kemps Corner | 2.86 KM |
| Hawkins Cookers Limited | 3.31 KM |
| Duroflex - Mattress | 3.50 KM |
| India Circus By Krsnaa Mehta | 3.56 KM |
| Kozee Sleep Products | 3.60 KM |
| Caspian Furniture | 3.67 KM |
| Pepperfry Furniture Shop-store In Lower Parel | 5.30 KM |
Check Travel Time
Connecting Roads - Valencia And Mishal One Marina
Marine Lines is a premium residential neighbourhood in South Mumbai that overlooks the Arabian Sea and is located on the Mumbai Suburban Railway's Western Line. It is one of India's most expensive areas, with multi-story apartments, individual bungalows, and some prominent commercial establishments. It is a developed area characterised by a seaside alameda, close proximity to employment hubs and social amenities, and seamless connectivity to the rest of Mumbai. It
Valencia and Mishal Ventures, a renowned real estate developer in Mumbai, aims at transforming dreams into reality. With an impressive project count of 1, they have proven their commitment towards building a successful business empire. Understanding the needs and comforts of their customers, they strive to create spaces that go beyond lifestyle choices.Valencia and Mishal Ventures are dedicated to providing true value for money, where customers not only get a
This website is only for the purpose of providing information regarding real estate projects in different geographies. Any information which is being provided on this website is not an advertisement or a solicitation. The company has not verified the information and the compliances of the projects. Further, the company has not checked the RERA* registration status of the real estate projects listed herein. The company does not make any representation in regards to the compliances done against these projects. Please note that you should make yourself aware about the RERA* registration status of the listed real estate projects.
*Real Estate (regulation & development) act 2016.