Structural Works reach 25% completion

Balaji Oriana World is a radiant new-age residential landmark rising in the fast-growing neighbourhood of Tathawade, Pune. It blends modern architecture with seamless connectivity, expansive spaces and lifestyle experiences crafted for today’s urban families.
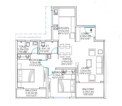
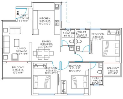
Spread across a vast 4.5-acre land parcel, Balaji Oriana World features 5 iconic towers soaring up to 26 storeys, offering premium 1, 2 & 3 BHK residences with sizes ranging from 480 to 1070 sq. ft.
Every home is intelligently planned with zero-wastage layouts, sunlit interiors, excellent cross-ventilation, and South-West facing balconies that bring in natural light, energy efficiency, and enhanced indoor comfort.
At the heart of this development is an extraordinary 320 ft. high skywalk, creating a one-of-a-kind elevated experience with panoramic city views, refreshing air, and a peaceful open-air retreat.
Designed as a holistic lifestyle destination, the project brings 45+ thoughtfully curated amenities across 3 levels. Balaji Oriana World is also an IGBC-certified green community, offering sustainable planning, eco-friendly features, greenery-rich landscapes, and long-term value with property tax benefits.
Developed by Balaji Builders, a trusted name with 25+ years of excellence, 12+ completed projects, 10+ lakh sq. ft. delivered, and 600+ happy families, the project reflects a legacy built on independence, integrity, and hands-on execution.
The possession date as per RERA number (P52100080096)- December 2028
Enjoy a World of Amenities at Balaji Oriana World, Tathawade, Pune
It’s not just amenities; it’s a way of life thoughtfully designed around every generation.
Balaji Oriana World, Tathawade, Pune, means a Location Connected to Everything Important
Tathawade, Pune, is a developing residential pocket with planned connectivity, contemporary living and development.
Convenience:
Nearby IT Parks and Hubs:
Social Infrastructure Highlights:
Upcoming projects near Balaji Oriana World, Tathawade, Pune
These updates will make daily life smoother and real estate values soar.
Balaji Oriana World, Tathawade, Pune: An Investment That Makes Sense- Now and Later
*This data is derived by the Square Yards data intelligence team. This can change according to the market trends*
Balaji Oriana World offers a future-ready lifestyle with premium homes, 45+ amenities, and exceptional connectivity, making it a smart, high-growth investment opportunity in Tathawade’s fast-rising real estate market.
Structural Works reach 25% completion
ORIANA WORLD, developed by BALAJI BUILDERS, officially launched on 24-Apr-2025 and expected to complete by 31-Dec-2028. Registered under RERA No. P52100080096. The project comprises 2 towers and offers 315 residential units, including 1.5 BHK, 2 BHK, 2.5 BHK, 3 BHK, with unit sizes ranging from 463 to 947 Square feet across a total area of 1.53 Acre.
The property primarily dedicates space to a residential building, complemented by significant open green areas and specific zones for resident amenities.
| Master Bedroom-Walls | Oil Bound Distemper |
| Master Bedroom-Flooring | Vitrified Tiles |
| Other Bedrooms-Flooring | Vitrified Tiles |
| Walls | Oil Bound Distemper |
| Living Area-Flooring | Vitrified Tiles |
| Structure | RCC Frame Structure |
| Schools Near by Balaji Oriana World | |
|---|---|
| Blossom Public School | 0.80 KM |
| Orchids The International School- Tathwade | 0.82 KM |
| Podar International School - Pune (wakad) (cambridge International) | 1.31 KM |
| Podar International School - Pune (wakad) (cbse) | 1.31 KM |
| My School Wakad | Best Cbse School In Wakad | 1.32 KM |
| My School | 1.59 KM |
| Akshara International School | 1.68 KM |
| Akshara International School & Junior College | 1.68 KM |
| Indira National School | 1.75 KM |
| Bal Seva English Medium School | 1.82 KM |
| Bus Stops Near by Balaji Oriana World | |
|---|---|
| Ashoknagar Tathwade | 0.26 KM |
| Jadhav Wasti Tathwade | 0.38 KM |
| Tathawade Phata / Shahu College | 0.56 KM |
| Tathwade Corner | 0.70 KM |
| Pawar Vasti | 0.73 KM |
| Tathawade Chowk | 0.77 KM |
| Punvale | 0.82 KM |
| D.y. Patil / Shirole Petrol Pump | 0.84 KM |
| Vittbhatti Xps Company | 1.00 KM |
| Dairy Farm | 1.02 KM |
| Hospitals Near by Balaji Oriana World | |
|---|---|
| Pulse Multispeciality Hospital | 0.69 KM |
| Shree Haridham Balaji Panchkarma Multi-speciality Hospital | 1.53 KM |
| Punawale Hospital Research Center Pcmc Pune | 1.66 KM |
| Saijyoti Hospital & Icu | 1.67 KM |
| Punawale Multispeciality Hospital | 1.68 KM |
| Rhythm Multispeciality Hospital | 1.71 KM |
| Swarn Hospital | 1.73 KM |
| Swamy Hospital | 1.75 KM |
| Bhoir Hospital | 1.75 KM |
| Amruta Maternity Hospital | 1.77 KM |
| Clinics Near by Balaji Oriana World | |
|---|---|
| Toothbooth Dr.kalyani's Dental Clinic | 0.93 KM |
| Lenskart.com At Sai Millenium Punawale | 1.26 KM |
| Dr. Mohan Pawar Best Gynaecologist I Obstetrician I Infertility Consultant In Punawale | 1.38 KM |
| Shraddha Dental Clinic-dr. Shraddha Paraskar | 1.60 KM |
| Infinity Diagnostics | 1.63 KM |
| Jyotiramay Surgical Clinic - Dr Rutuja Gore | 1.68 KM |
| Grinsen Dental Clinic | 1.68 KM |
| Medimap Diagnostics | 1.91 KM |
| Vishwakar Ayurved & Panchakarma Clinic | 1.97 KM |
| Dentofit Dental Clinic Datamca Dvakhana (first Floor Phila Mjla) Implant | Dental | Skin-hair | 1.97 KM |
| Gym Fitness Near by Balaji Oriana World | |
|---|---|
| Workout Club - Tathwade | 0.66 KM |
| Wellness Home Of Fitness | 1.17 KM |
| Nitrro Gym Punawale 24/7 | 1.30 KM |
| Empire Fitness Club | 1.41 KM |
| Fitsoul Wellness Club | 1.58 KM |
| Asan Yoga Pune | 1.66 KM |
| M.k Fitness Club | 1.67 KM |
| Gladiator Gym | 1.67 KM |
| Power Factory Thergaon | 1.74 KM |
| C5 Training Space | 1.97 KM |
| Temples Near by Balaji Oriana World | |
|---|---|
| Narasimha Temple | 0.85 KM |
| Ghanekar Datta Mandir | 0.88 KM |
| Balaji Temple Punawale | 1.56 KM |
| Shri Kalyan Venkateshwara Swamy || Balaji Temple | 1.56 KM |
| Khandoba Temple Punawale Khmdoba Mmdir Punavle | 1.61 KM |
| Mayureshwar Ganesh Mandir | 1.71 KM |
| Shree Ram Mandir | 1.92 KM |
| Shree Mahadev Mandir | 2.02 KM |
| Shri Chintamani Ganesh Temple | 2.35 KM |
| Shri Siddhivinayak Mandir Ravetgaon | 2.36 KM |
| Restaurants Near by Balaji Oriana World | |
|---|---|
| Raaga Imperio | 1.05 KM |
| Blue Water | 1.46 KM |
| Rose Wood | 1.85 KM |
| Bridge Point | 1.86 KM |
| The Wise Guys | 1.97 KM |
| Neo Wood Ambassador | 2.12 KM |
| Top 87 - The Other Place | 2.12 KM |
| Sangrilla Restaurant | 2.15 KM |
| Punjabi Treat | 2.18 KM |
| G S Biryani | 2.24 KM |
| College and Universities Near by Balaji Oriana World | |
|---|---|
| Jspm Rajarshi Shahu College Of Engineering | 0.38 KM |
| Dr. D. Y. Patil Unitech Arts | 0.40 KM |
| Rajarshi Shahu College Of Pharmacy And Research | 0.49 KM |
| Riim - Tasbm (rajeev Business School) | 0.72 KM |
| Balaji College Of Arts | 0.75 KM |
| Balaji Law College | 0.75 KM |
| Dr. D. Y. Patil Institute Of Hotel Management & Catering Technology | 0.87 KM |
| Dr. D. Y. Patil B-school | 0.88 KM |
| Global Business School & Research Centre | 0.92 KM |
| Dr. D. Y. Patil Biotechnology & Bioinformatics Institute | 0.95 KM |
| Supermarkets Near by Balaji Oriana World | |
|---|---|
| Dmart Ready | 1.42 KM |
| R Fresh Mart | 1.45 KM |
| R Mart | Qualiitail | Wholesale Market | 1.47 KM |
| The Fresh Mart | 2.36 KM |
| Dmart | 2.71 KM |
| United Mart | 2.86 KM |
| Akash Mart Online | Qualitail | 3.02 KM |
| Star Bazaar Wakad | 3.03 KM |
| Ashtavinayak Super Mart | 3.18 KM |
| D Mart | 3.55 KM |
| Clothings Near by Balaji Oriana World | |
|---|---|
| Zudio | 1.31 KM |
| Decathlon Sports Wakad | 1.59 KM |
| Firstcry.com Store City Avenue Pune Wakad | 2.39 KM |
| Zudio - Wakad | 3.07 KM |
| Life Styles | 3.13 KM |
| Louis Philippe Factory Outlet Akurdi | 3.20 KM |
| Firstcry.com Store Pune Wakad | 3.38 KM |
| Reliance Mall | 3.49 KM |
| Shoppers Stop | 3.55 KM |
| Firstcry Store Pune Elpro City Square | 3.56 KM |
Check Travel Time
Connecting Roads - Balaji Oriana World
Tathawade is a suburban area on the peripheries of north-western Pune. Until a few years back, this region was majorly known for its farms due to its fertile ground. However, with the IT growth, the scene changed for Tathawade. Businesses came in, employment grew, infrastructure grew, and the city saw amenities coming. Thus came a revived future for Tathawade. Demand for residences grew. Due to this, real estate escalated in Tathawade.
This website is only for the purpose of providing information regarding real estate projects in different geographies. Any information which is being provided on this website is not an advertisement or a solicitation. The company has not verified the information and the compliances of the projects. Further, the company has not checked the RERA* registration status of the real estate projects listed herein. The company does not make any representation in regards to the compliances done against these projects. Please note that you should make yourself aware about the RERA* registration status of the listed real estate projects.
*Real Estate (regulation & development) act 2016.