A total of 3 residential transactions has been registered so far for Basileo Apartment, amounting to ₹ 3 Cr till December 2025.

A total of 3 residential transactions has been registered so far for Basileo Apartment, amounting to ₹ 3 Cr till December 2025.
Structural Works reach 80% completion. External Works has reached 93%. Internal finishing stands at 71%. MEP Services including lift and staircases, are now 88% done
Basileo Phase 2, developed by Kate Jagtap Associates, officially launched on 11-Aug-2017 and expected to complete by 17-Feb-2020. Registered under RERA No. P52100005652. with total area of 1.93 Acre.
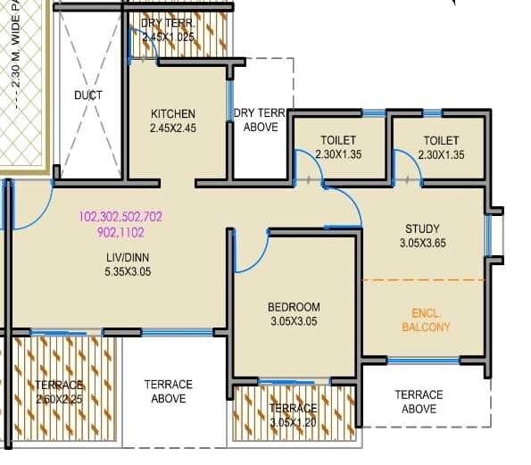
| Master Bedroom-Flooring | Vitrified Tiles |
| Other Bedrooms-Flooring | Vitrified Tiles |
| Living Area-Flooring | Vitrified Tiles |
| Schools Near by Basileo Apartment | |
|---|---|
| New Millenium English Medium School | 0.33 KM |
| Mastermind School | 0.39 KM |
| Samarth Gurukul Abhyasika | 0.43 KM |
| Mount Carmel Public School | 0.56 KM |
| S.j.h. Gurunanak High School / Blossom Primary School | 0.72 KM |
| Mar Ivanios Convent School - Pimpri-chinchwad | 0.82 KM |
| Ganesh English Medium School & Junior College | 0.83 KM |
| Pune International Public School | 0.85 KM |
| Kashi Vishweshwar English Medium School | 0.88 KM |
| Juniors Orchid School | 0.91 KM |
| Bus Stops Near by Basileo Apartment | |
|---|---|
| Krishna Chowk | 0.46 KM |
| Ramkrushna Mangal Karyalay | 0.47 KM |
| Ravi Raj Hotel | 0.48 KM |
| Kate Puram Chowk | 0.52 KM |
| Kate Puram Chowk Pimple Gurav | 0.58 KM |
| New Sangavi | 0.67 KM |
| Dhore Nagar / Om Medical | 0.70 KM |
| Mahadev Mandir Sangvi | 0.79 KM |
| Sangavi / Shetole Nagar | 0.81 KM |
| Yantriki Bhavan | 0.82 KM |
| Hospitals Near by Basileo Apartment | |
|---|---|
| Energy Multi-speciality Hospital | 0.13 KM |
| Pratima Eye & Dental Hospital | 0.41 KM |
| Deshmukh Maternity Hospital: Best Gynaecologist In Sangvi: Government Abortion Center In Sangvi | 0.42 KM |
| Siddhi Hospital | 0.43 KM |
| Sangvi Multispeciality Hospital | 0.43 KM |
| Shraddha Hospital | 0.45 KM |
| Sai Multispeciality Hospital | 0.45 KM |
| Shri Samarth Multispeciality Hospital | 0.46 KM |
| Dr.nilapwar Hospital & Icu(dnh) | 0.46 KM |
| Lifecare Speciality Hospital - Gynecologist | Pcos | Pcod | Overian Cyst | 0.46 KM |
| Clinics Near by Basileo Apartment | |
|---|---|
| Matrix Imaging Center | 0.16 KM |
| Aaptashri Ayurved & Panchkarma Clinic | 0.45 KM |
| Urban Skin & Hair Clinic | 0.46 KM |
| Hairfree & Hairgrow | Best Hair Transplant Clinic In Pune | 0.47 KM |
| Dr.patil's Heart & Skin Clinic | 0.47 KM |
| Rajshree Ayurveda Opd Center | 0.49 KM |
| Vintage Diagnostic Centre- Best Sonography | 0.54 KM |
| Dr Baban Dolas | Unit Of Dr Agarwals Eye Hospital | 0.70 KM |
| Divya Women's Clinic | Dr. Divya Pawar - Gynaecologist & Obstetrician | 0.82 KM |
| Naidu Diagnostic Centre | 0.96 KM |
| Restaurants Near by Basileo Apartment | |
|---|---|
| Shaolin | 2.24 KM |
| Golden Chopsticx | 2.25 KM |
| Kimling Rush | 2.26 KM |
| Anaya Family Resto | 2.29 KM |
| Rahul Restaurant & Bar | 2.30 KM |
| Aaoji Khhaoji | 2.38 KM |
| Govind Garden | 2.39 KM |
| 3 Idiots - The Friendly Bar | 2.40 KM |
| Greens & Olives | 2.44 KM |
| Kimling | 2.49 KM |
| Gym Fitness Near by Basileo Apartment | |
|---|---|
| 2n Sports And Fitness | 0.21 KM |
| Infinity Fitness | 0.47 KM |
| The Gym | 0.79 KM |
| Antrang Yoga Class | 0.80 KM |
| Transformers Fitness Club | 0.91 KM |
| Fit Studio Unisex Gym | 1.09 KM |
| Powerline Gym | 1.13 KM |
| Gymholics Fitness & Wellness Club | 1.18 KM |
| The Fitness Hub Gym | 1.44 KM |
| New Image Fitness Gym | 1.66 KM |
| College and Universities Near by Basileo Apartment | |
|---|---|
| Smt. C. K. Goyal Arts And Commerce College | 1.02 KM |
| Baburaoji Gholap College | 1.25 KM |
| College Of Military Engineering | 1.86 KM |
| Spicer Adventist University | 1.97 KM |
| Dr. Babasaheb Ambedkar College | 2.02 KM |
| Government Iti | 2.65 KM |
| Parmanand College Of Fire Engineering And Safety Management | 2.68 KM |
| Industrial Training Institute | 2.80 KM |
| Pune Vidyapeeth | 3.03 KM |
| Tikaram Jagannath College | 3.10 KM |
| Temples Near by Basileo Apartment | |
|---|---|
| Shiva Mandir Shree Mahakaleshwar Mandir | 0.72 KM |
| Mahadev Mandir | 0.80 KM |
| Shree Sant Gajanan Maharaj Mandir | 0.83 KM |
| Hanuman And Shani Mandir | 0.94 KM |
| Shri Aai Mataji Mandir | 1.69 KM |
| Shree Krishna Temple Jawalkar Nagar | 1.95 KM |
| Ayyappa Temple Range Hills | 3.10 KM |
| Agarwal Samaj Mandir | 3.53 KM |
| Shree Atmalingeshwar Mahadev Mandir | 3.61 KM |
| Shri Munisuvratswami Jain Temple Trust | 3.64 KM |
| Supermarkets Near by Basileo Apartment | |
|---|---|
| Star Market | 0.45 KM |
| K.mart | 0.93 KM |
| Jmart India | 1.01 KM |
| Gokul Food Bazaar | Qualitail | 1.18 KM |
| V-mart | 1.30 KM |
| Chandradeep Super Market | 1.83 KM |
| Nature's Basket | 2.66 KM |
| Reliance Fresh | 3.19 KM |
| Shree Hanuman Super Market | 3.25 KM |
| Shyam Sunder Mart | 4.19 KM |
| Clothings Near by Basileo Apartment | |
|---|---|
| Sanskruti Lawns (sanskriti Mangal Karyalay) | 0.68 KM |
| Unlimited Fashion Store - Dapodi | 1.52 KM |
| Firstcry.com Store Pune Aundh | 2.25 KM |
| Me N Moms Baby Care & Kids Store In Aundh Pune | 2.26 KM |
| Max | 2.71 KM |
| Fabindia Experience Center | 2.96 KM |
| Pantaloons (gk Mall | 3.00 KM |
| Westside - Gk Mall | 3.02 KM |
| Zudio Pimple Nilakh | 3.41 KM |
| Raj Woollens | 3.52 KM |
Check Travel Time
Connecting Roads - Basileo Apartment
A rapidly expanding locality in the northwestern area of Pune city, Pimple Gurav is one of the premium residential areas that remains connected to many prominent localities. Moreover, located right in the middle of river Pavna and river Mula, Pimple Gurav is famous for its diverse kinds of residential properties accommodating all luxurious amenities. Besides residential apartments and bungalows, the locality also houses numerous shopping complexes, schools, commercial hubs, parks, and
Properties in Basileo Apartment & Top Sellers
Chandrarang Developers and Builders, a renowned name in the real estate industry, has been setting new standards of architectural excellence since its inception in 1992. With 29 years of experience in the field, Chandrarang has become a game-changer in the industry, revolutionizing the way real estate projects are conceptualized and executed.Boasting an impressive portfolio of 19 successful projects, Chandrarang Group is committed to exceeding customer expectations. Their commitment to excellence
Yes, a show flat/model apartment is available for viewing at the site. Visits can be scheduled by appointment.
Yes, Basileo Apartment includes a fully equipped gym, swimming pool, and clubhouse designed for leisure and community activities.
Security includes 24x7 CCTV, gated entry, access control, trained security personnel, intercom/video door phone.
Yes, residents have easy access to Star Market, K.Mart, Jmart India, Gokul Food Bazaar | Qualitail, V-Mart for shopping, groceries, and daily essentials.
With factors like Krishna Chowk, Ramkrushna Mangal Karyalay, Ravi Raj Hotel, Kate Puram Chowk, Kate Puram Chowk Pimple Gurav location, brand value, upcoming infrastructure, quality of amenities, the project is expected to maintain healthy resale demand.
This website is only for the purpose of providing information regarding real estate projects in different geographies. Any information which is being provided on this website is not an advertisement or a solicitation. The company has not verified the information and the compliances of the projects. Further, the company has not checked the RERA* registration status of the real estate projects listed herein. The company does not make any representation in regards to the compliances done against these projects. Please note that you should make yourself aware about the RERA* registration status of the listed real estate projects.
*Real Estate (regulation & development) act 2016.