Circular Reflections - Villa Plot Development, developed by CAP-STONE VENTURES LLP, officially launched on 02-May-2024 and expected to complete by 02-May-2028. Registered under RERA No. PRM/KA/RERA/1251/308/PR/160824/006970.

Circular Reflections - Villa Plot Development, developed by CAP-STONE VENTURES LLP, officially launched on 02-May-2024 and expected to complete by 02-May-2028. Registered under RERA No. PRM/KA/RERA/1251/308/PR/160824/006970.
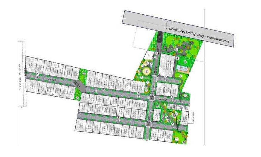
Capstone Circular Reflections is a plotted development located in Kommasandra. It features 74 individual plots within its layout. This master plan does not indicate any multi-story towers, nor does it specify a total land area or project launch and completion dates.
The property primarily consists of residential plots, internal roads, and dedicated open spaces. The residential plots are laid out in a grid-like fashion with varying sizes. There are significant green areas allocated for parks and recreational use, particularly in the upper-right section of the development. The plan does not explicitly state the density in units per acre.
| Master Bedroom-Walls | Oil Bound Distemper |
| Master Bedroom-Flooring | Vitrified Tiles |
| Other Bedrooms-Flooring | Vitrified Tiles |
| Walls | Oil Bound Distemper |
| Living Area-Flooring | Vitrified Tiles |
| Structure | RCC Frame Structure |
Download master plan & walkthrough video of Capstone Circular Reflections to explore layout and virtual tour in Kommasandra, Bangalore.
| Schools Near by Capstone Circular Reflections | |
|---|---|
| Divine Providence School | 0.80 KM |
| Sri Saraswti Vidyaniketana | 3.04 KM |
| Harvest International School | 3.72 KM |
| Oakridge International School | 3.84 KM |
| New Mecaulkay School | 3.99 KM |
| Inventure Academy International School | 4.27 KM |
| St Patricks Academy | 4.66 KM |
| Greenwood High International School | 4.87 KM |
| Sri Ravushankar Vidya Mandir | 4.96 KM |
| Shree Ananthnagar Vidyaniketan | 5.11 KM |
| Hospitals Near by Capstone Circular Reflections | |
|---|---|
| Sunanda Medicals | 1.62 KM |
| Raksha Clinic And Panchakarma Centre | 3.09 KM |
| Vinayaka Clinic | 3.26 KM |
| Sri Vinayaka Clinic | 3.27 KM |
| Sri Lakshmi Multi Speciality Hospital | 3.30 KM |
| Balaji Hospital | 3.37 KM |
| Balaji Nursing Home | 3.37 KM |
| Twachaa Advanced Hair And Skin Clinic | 3.48 KM |
| Vet 4 Pets Pet Clinic | 3.62 KM |
| Manjunatha Medicals | 3.72 KM |
| Hotels Near by Capstone Circular Reflections | |
|---|---|
| Hotel Gardeenia Comfortes | 6.18 KM |
| Sai Vishram Business Hotel | 6.65 KM |
| Ts Royal Grand Hotel | 6.79 KM |
| The Oterra Bangalore | 7.75 KM |
| The Vintage Inn | 7.90 KM |
| Hotel Rk Gardenia | 7.91 KM |
| Bloom Suites | 8.04 KM |
| Svenska Design Hotel | 8.10 KM |
| Fabhotel Shreyas Inn | 9.29 KM |
| Courtyard By Marriott | 9.30 KM |
| ATMs Near by Capstone Circular Reflections | |
|---|---|
| Karur Vysya Bank | 3.47 KM |
| State Of India | 4.59 KM |
| Icici Bank | 5.48 KM |
| Axis Bank | 5.48 KM |
| Axis Bank | 5.59 KM |
| Kotak Mahindra Bank | 5.86 KM |
| South Indian Bank | 5.87 KM |
| Hdfc Bank | 5.90 KM |
| Idbi Bank | 6.62 KM |
| Kotak Mahindra Bank | 6.80 KM |
| Temples Near by Capstone Circular Reflections | |
|---|---|
| Muttu Anjeneya Swami Temple | 2.31 KM |
| Sapamma Devi Temple | 3.36 KM |
| Chennaraya Swami Temple | 3.57 KM |
| Shree Venkataramana Temple | 5.08 KM |
| Maramma Temple | 5.90 KM |
| Sri Someshwara Swamy Temple | 5.98 KM |
| Sri Ramaswamy Temple | 6.24 KM |
| Sri Maramma Temple | 6.26 KM |
| Hanuman Temple | 6.65 KM |
| Sri Veeranjaneya Temple | 6.70 KM |
| Banks Near by Capstone Circular Reflections | |
|---|---|
| Chartered Sahakari Bank Niyamitha | 3.54 KM |
| R B Villa 2 | 4.92 KM |
| Andhra Bank | 5.00 KM |
| Idbi Bank Sarjapura Branch | 5.61 KM |
| Rbl Bank | 5.79 KM |
| Icici Bank | 5.80 KM |
| Axis Bank Ltd | 6.05 KM |
| State Bank Of India Health City | 6.36 KM |
| Bank Of India Chandapura | 7.03 KM |
| Federal Bank | 7.20 KM |
| Shopping Malls Near by Capstone Circular Reflections | |
|---|---|
| Mkr Building | 4.27 KM |
| Star Market | 4.90 KM |
| Sbr Lucky Mall | 6.13 KM |
| Mahindra Millennium Mall | 6.17 KM |
| Home Needs Super Market | 6.19 KM |
| M5 Ecity Mall | 6.20 KM |
| Srt Mall | 6.95 KM |
| Sansar Centre Hyper Market | 7.18 KM |
| Loyal World Retail Mart | 7.18 KM |
| Feet Max | 7.23 KM |
| Petrol Pumps Near by Capstone Circular Reflections | |
|---|---|
| Bharat Petroleum | 3.54 KM |
| Shell Petroleum | 4.15 KM |
| Hp Petroleum | 4.26 KM |
| Hp Petroleum | 4.44 KM |
| Indian Oil Petrol Station | 4.79 KM |
| Indian Oil | 4.92 KM |
| Indian Oil Petrol Pump | 5.25 KM |
| Indian Oil Petrol Stations | 5.55 KM |
| Indian Oil Petrol Bunk | 6.14 KM |
| Indian Oil | 6.17 KM |
| Parks Near by Capstone Circular Reflections | |
|---|---|
| Park 1 Confident Ivory Coast | 3.83 KM |
| Park 2 Confident Ivory Coast Park | 3.85 KM |
| Park 2 Ivyrose Coast | 3.85 KM |
| Deccan Palms Park | 4.63 KM |
| Cyber Park | 7.69 KM |
| Harlur Park | 8.45 KM |
| Lakedew Park | 8.53 KM |
| Royal Placid Children Park | 9.26 KM |
| Munireddy Garden | 9.34 KM |
| Jogger Park | 9.87 KM |
| Post Offices Near by Capstone Circular Reflections | |
|---|---|
| Sub Post Office Sarjapura | 5.55 KM |
| Bommasandra Industrial Estate Sub Post Office | 6.43 KM |
| Bommasandra Post Office | 6.46 KM |
| Chandapura Post Office | 7.02 KM |
| Electronics City Sub Post Office | 7.69 KM |
| Post Office Phase 2 | 7.69 KM |
| Wipro Sub Post Office | 8.23 KM |
| Panathur Post Office | 8.93 KM |
| Varthur Post Office | 9.15 KM |
| Varthur Sub Post Office | 9.29 KM |
Check Travel Time
Connecting Roads - Capstone Circular Reflections
This website is only for the purpose of providing information regarding real estate projects in different geographies. Any information which is being provided on this website is not an advertisement or a solicitation. The company has not verified the information and the compliances of the projects. Further, the company has not checked the RERA* registration status of the real estate projects listed herein. The company does not make any representation in regards to the compliances done against these projects. Please note that you should make yourself aware about the RERA* registration status of the listed real estate projects.
*Real Estate (regulation & development) act 2016.