A total of 1 residential transactions has been registered so far for AOS Genesis, amounting to ₹ 3 Cr till January 2026.

100% Service, 0% Brokerage
Highly unlikely, but if you find a lower price anywhere, tell us and we will match it.
Our sales personnel are accountable for every step
A total of 1 residential transactions has been registered so far for AOS Genesis, amounting to ₹ 3 Cr till January 2026.
During Q4'2025, average property prices for AOS Genesis moved from ₹ 24,150/sqft to ₹ 51,550/sqft, reflecting a 113.46% rise.
During Q3'2025, average property prices for AOS Genesis moved from ₹ 23,400/sqft to ₹ 24,150/sqft, reflecting a 3.21% rise.
AOS Genesis, developed by AOS Developments LLP, officially launched on 04-Dec-2024 and expected to complete by 31-Dec-2027. Registered under RERA No. P51800078308. with total area of 0.23 Acre.
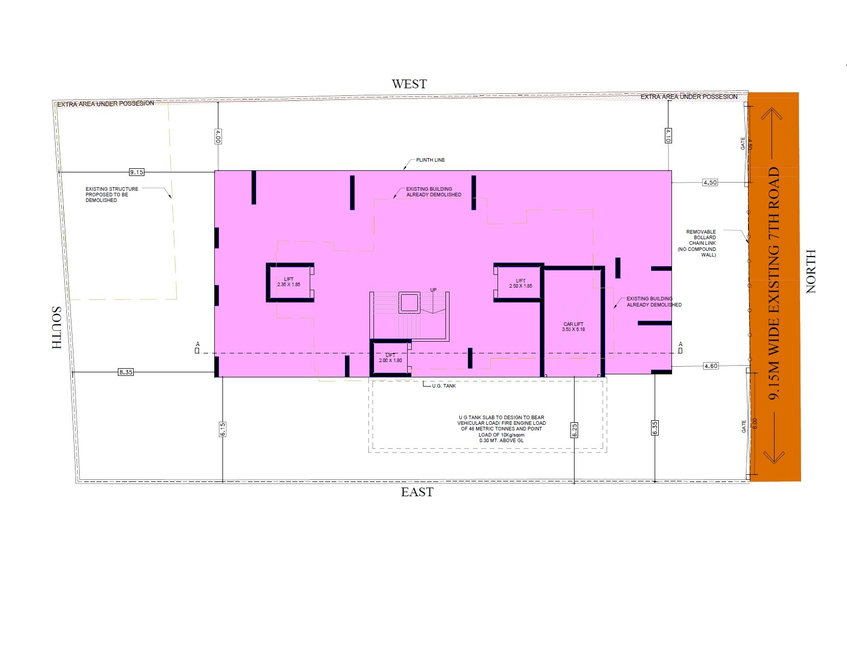
Welcome to AOS Genesis, our new project located in Bandra East. While the specific total land area and number of units aren't detailed on this plan, what you're seeing here is the ground floor footprint of the proposed main structure, highlighted in pink. It's designed for excellent connectivity, sitting just 1.5 km from Swami Vivekanand Road and a mere 0.1 km from the Western Express Highway.
Looking at the plan, the primary land use revolves around the main building footprint, highlighted in pink, which represents our proposed new structure. We also have designated 'Extra Area Under Possession' zones, indicating additional space beyond the immediate building footprint, particularly on the West and North sides. Parts of the site previously contained existing structures that have either been demolished or are slated for demolition to make way for our new development.
| Master Bedroom-Walls | Oil Bound Distemper |
| Master Bedroom-Flooring | Vitrified Tiles |
| Other Bedrooms-Flooring | Vitrified Tiles |
| Walls | Oil Bound Distemper |
| Living Area-Flooring | Vitrified Tiles |
| Structure | RCC Frame Structure |
| Schools Near by AOS Genesis | |
|---|---|
| Purushottam High School | 0.10 KM |
| Brihanmumbai Municipal Corporation School | 0.18 KM |
| National Girls' High School & Junior College | 0.27 KM |
| Shivaji Nagar Mahanagar Palika School | 0.34 KM |
| Kherwadi Mumbai Public School | 0.58 KM |
| Awami Urdu High School And Junior College | 0.83 KM |
| The Montessori School Internationale | 0.88 KM |
| Little Angels School Government Colony Bandra East | 0.89 KM |
| Bandra Urdu High School And Junior College | 0.90 KM |
| Anjuman-i-islam's (dr. Mij Girl's High School) | 0.91 KM |
| Bus Stops Near by AOS Genesis | |
|---|---|
| R.n.a. Complex (bandra-e) | 0.25 KM |
| Bandra Bus Station | 0.26 KM |
| Bandra (e) Phatak | 0.29 KM |
| Bandra (e) Bus Station | 0.30 KM |
| Bandra (e) Phatak | 0.33 KM |
| Bandra Railway Terminus | 0.35 KM |
| Bandra Station (e) | 0.38 KM |
| Kherwadi (bandra-e) | 0.39 KM |
| Gandhi Nagar | 0.39 KM |
| M.i.g.colony (kala Nagar) | 0.43 KM |
| Hospitals Near by AOS Genesis | |
|---|---|
| Life Line Hospital | 0.27 KM |
| Bal Gangadhar Kher Municipal Hospital | 0.44 KM |
| Mahatma Gandhi Seva Mandir Hospital | 0.78 KM |
| Railway Hospital | 0.83 KM |
| Trivision Eye Hospital & Lasik Centre - Eye Specialist In Bandra West| Glaucoma | Cataract Lasik Sur | 0.84 KM |
| Guru Nanak Multispeciality Hospital -best Gynaecologist | 0.92 KM |
| Parekhhospital | 0.92 KM |
| Shanti Nursing Home And Multispeciality Hospital | 0.98 KM |
| Bhabha Hospital | 1.09 KM |
| Ceds Eye Hospital | Unit Of Dr Agarwals Eye Hospital | 1.15 KM |
| Restaurants Near by AOS Genesis | |
|---|---|
| Someplace Else | 0.75 KM |
| Escobar - Tapas Bar | 0.82 KM |
| The Daily All Day Mumbai | 0.83 KM |
| Foo Bandra | 0.84 KM |
| Craftbar | 0.84 KM |
| Pa Pa Ya | 0.86 KM |
| Donna Deli | 0.86 KM |
| Saz - American Brasserie | 0.87 KM |
| Seesaw | 0.89 KM |
| The Nutcracker | 0.90 KM |
| College and Universities Near by AOS Genesis | |
|---|---|
| Sheila Raheja Institute Of Hotel Management | 0.14 KM |
| Kaiser Education Society Kaiser College Of Commerce | 0.16 KM |
| Sheila Raheja School Of Business Management & Research (srbs) | 0.19 KM |
| Chetana's Institute Of Management & Research | 0.55 KM |
| Government Polytechnic Mumbai | 0.67 KM |
| Hiray College | 1.10 KM |
| Smt. M.m.k College Of Commerce & Economics | 1.11 KM |
| Thadomal Shahani Engineering College | 1.12 KM |
| G J Advani Law College | 1.15 KM |
| Rd And Sh National College And Swa Science College | 1.16 KM |
| Clinics Near by AOS Genesis | |
|---|---|
| Dr. M. Wasim Ghori | 0.83 KM |
| Vision Express | 0.85 KM |
| Titan Eye+ At Bandra | 0.88 KM |
| Tanaya Nursing Home-obstetrician | 0.94 KM |
| Cutis Skin Clinic | Best Skin Specialist In Khar West Mumbai | 0.95 KM |
| Khar Piles Clinic | 1.14 KM |
| Ultracare Diagnostic Centre | 1.16 KM |
| Ufc Gym Bandra | 1.24 KM |
| Solanki's Dental Care Centre | 1.36 KM |
| Lenskart.com At Bandra Linking Road | 1.44 KM |
| Gym Fitness Near by AOS Genesis | |
|---|---|
| Ken Fitness Centre | 1.24 KM |
| The Zone 360 Fitness Bandra | 1.43 KM |
| Hardcore Gym | 1.43 KM |
| M-16 Fitness Center | 1.54 KM |
| Gold's Gym Bandra | 1.59 KM |
| Diva Yoga Studio - Bandra | 1.81 KM |
| Khar Gymkhana | 1.93 KM |
| My Fitness Club Dharavi | 2.00 KM |
| Rhinos Gym Khar West | 2.03 KM |
| Flofitbox Multifunctional Gym Bandra | 2.14 KM |
| Clothings Near by AOS Genesis | |
|---|---|
| Mulmul- Bandra East | 0.85 KM |
| Marks & Spencer | 1.08 KM |
| The Souled Store Bandra | 1.12 KM |
| Pernia's Pop-up Studio | 1.22 KM |
| Aveda X Nykaa Lifesyle Salon | 1.69 KM |
| Blackberrys | 2.42 KM |
| Rynox Exclusive Store | 2.49 KM |
| Kora Santacruz | 2.58 KM |
| Roopkala Heritage | 2.73 KM |
| Suta | 2.86 KM |
| Temples Near by AOS Genesis | |
|---|---|
| Jari Mari Mata Temple | 0.80 KM |
| Shree Ghanteshwar Hanuman Mandir | 1.72 KM |
| Shri Saath Aasra Manmala Devi Mandir | 3.16 KM |
| Body Temple Yoga Studio | 3.23 KM |
| Bhakti Dham Mandir | 3.50 KM |
| The Asthika Samaj Kochu Guruvayoor Sree Ram Mandir | 3.54 KM |
| Tom Temple Of Miracles | Tarot Cards | 3.55 KM |
| Trimbakeshwar Temple | 4.09 KM |
| Kali Mata Mandir | 4.22 KM |
| Someshwar Khandoba Temple | 4.33 KM |
| Cinema Halls Near by AOS Genesis | |
|---|---|
| G7 Gaiety Galaxy Movie Theatre | 0.67 KM |
| Gossip | 0.68 KM |
| Movietime: Suburbia | 0.83 KM |
| Jio Drive-in Theatre | 0.91 KM |
| Maison Pvr | 0.93 KM |
| Pvr Le Reve Bandra Mumbai | 1.07 KM |
| Imax Home Theatre | 1.83 KM |
| Paradise E Square | 2.31 KM |
| Movie Talkies | 2.50 KM |
| Orion Mukta A2 Cinemas | 2.57 KM |
Check Travel Time
Connecting Roads - AOS Genesis
In the centre of Mumbai, India, lies a suburb called Bandra East, which is quickly growing. It is close to other areas of Mumbai via the Western Express Highway, Bandra-Kurla Complex, and Santacruz-Chembur Link Road and is located on the eastern side of the well-known Bandra-Worli Sea Link. Several corporate and residential complexes can be found in the region, notably the Bandra-Kurla Complex (BKC), one of Mumbai's most important business
Properties in AOS Genesis & Top Sellers
This website is only for the purpose of providing information regarding real estate projects in different geographies. Any information which is being provided on this website is not an advertisement or a solicitation. The company has not verified the information and the compliances of the projects. Further, the company has not checked the RERA* registration status of the real estate projects listed herein. The company does not make any representation in regards to the compliances done against these projects. Please note that you should make yourself aware about the RERA* registration status of the listed real estate projects.
*Real Estate (regulation & development) act 2016.