A total of 13 residential transactions has been registered so far for RGS Forte, amounting to ₹ 13 Cr till January 2026.

RGS Forte Pune is a 20-storey project created exclusively for customers. Their 3 BHK flats are exclusive in the neighbourhood as they have been sophisticatedly constructed. They offer four houses on every floor, providing residents with privacy. Residents get an amazing view every single day with the bay windows. RGS Forte Pune, rightfully states that buyers can own their piece with pride.
The project is known for its strategic location. The apartments situated at Bhumkar Chowk, Wakad, have all the basic necessities and some elegant features. These have been designed to ensure a good lifestyle for both adults and children.
RGS Forte Pune Photos
The photo gallery below will show you how magnificent this residential complex will appear.
RGS Forte Pune Address
The address of RGS Forte Pune is - Sr No. 113, 1/1, Bhumkar Das Gugre Rd, Bhagwan Nagar, Bhumkar Nagar, Wakad, Maharashtra 411057.
RGS Forte Pune
The flats and apartments within the RGS Forte Pune project are designed with a contemporary touch, providing residents with an unparalleled lifestyle.
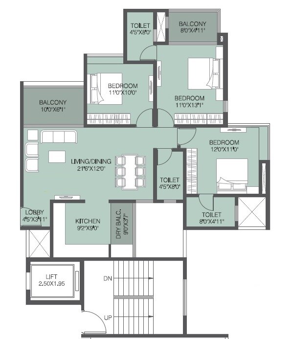
RGS Forte Pune Apartments
The property types available in RGS Forte Pune involve premium 2 BHK and 3 BHK flats constructed with the best raw materials and craftsmanship.
RGS Forte Pune BHK
One can find premium flats with podium luxury amenities in RGS Forte, Wakad, Pune.
RGS Forte Pune Price List
RGS Forte Pune offers 2 BHK and 3 BHK flats built to provide solitude to the residents, with prices available on request.
RGS Forte Pune Builder
RGS Forte Pune is designed and constructed by RGS Forte Developers - RGS Realty.
RGS Forte Pune Construction Status
The renowned RGS Forte Pune Society was launched in April 2022. The possession of the project is lined up for Mar, 2027.
RGS Forte Pune Legal Com/ Issues
At Square Yards, we are fully prepared to handle any legal matters you may encounter regarding this project. We are committed to supporting you and providing assistance in overcoming these challenges.
For individuals interested in purchasing a residential property with podium amenities, an exceptional opportunity is available at RGS Forte, Pune. RGS Realty proudly presents RGS Forte Pune, which stands out as one of the area exceptional and most desirable addresses for property buyers.
The developers aim to create an environment filled with goodness. They offer great customer service along with quality assurance. RGS Forte Pune offers diverse options, catering to different budget ranges and personal preferences. If you seek a cozy and spacious apartment, this space suits your needs within this development.
RGS Forte Pune launch date was in April 2022, and the project will be ready for possession by March 2027. It has 2 buildings in this project.
A total of 13 residential transactions has been registered so far for RGS Forte, amounting to ₹ 13 Cr till January 2026.
During Q4'2025, average property prices for RGS Forte moved from ₹ 12,100/sqft to ₹ 12,650/sqft, reflecting a 4.55% rise.
External Works has reached 100%, Internal finishing stands at 70%, MEP Services including lift and staircases, are now 93% done.
During Q3'2025, average property prices for RGS Forte moved from ₹ 11,500/sqft to ₹ 12,100/sqft, reflecting a 5.22% rise.
Structural Works reach 78% completion, External Works has reached 55%, Internal finishing stands at 61%, MEP Services including lift and staircases, are now 60% done.
A total of 140 out of 185 launched units have been booked as of January 2025, including 89% of SHOP(8 out of 9 units), 76% of 3 BHK(115 out of 152 units), 75% of 2 BHK(6 out of 8 units), 73% of MAHADA.1 BHK(8 out of 11 units), 60% of MAHADA.2 BHK(3 out of 5 units).
Structural Works reach 77% completion, External Works has reached 45%, Internal finishing stands at 44%, MEP Services including lift and staircases, are now 41% done.
A total of 131 out of 185 launched units have been booked as of December 2024, including 89% of SHOP(8 out of 9 units), 70% of 3 BHK(106 out of 152 units), 75% of 2 BHK(6 out of 8 units), 73% of MAHADA.1 BHK(8 out of 11 units), 60% of MAHADA.2 BHK(3 out of 5 units).
Structural Works reach 75% completion, Internal finishing stands at 40%, MEP Services including lift and staircases, are now 40% done.
A total of 123 out of 185 launched units have been booked as of July 2024, including 89% of SHOP(8 out of 9 units), 65% of 3 BHK(99 out of 152 units), 75% of 2 BHK(6 out of 8 units), 64% of MAHADA.1 BHK(7 out of 11 units), 60% of MAHADA.2 BHK(3 out of 5 units).
The master plan for RGS Forte shows a residential development comprising multiple building blocks set within a significant amount of green space. We can see at least four distinct residential structures arranged to create internal courtyards and open areas.
This master plan primarily allocates space for residential use and extensive open green spaces. The residential buildings are centrally located, surrounded by landscaped gardens, recreational facilities, and an outer perimeter of dense natural vegetation. There are no explicitly designated commercial zones visible within this plan.
| Master Bedroom-Walls | Oil Bound Distemper |
| Master Bedroom-Flooring | Vitrified Tiles |
| Other Bedrooms-Flooring | Vitrified Tiles |
| Walls | Oil Bound Distemper |
| Living Area-Flooring | Vitrified Tiles |
| Bathroom | Premium Bath Fittings |
| Structure | RCC Frame Structure |
| Schools Near by RGS Forte | |
|---|---|
| Indira National School | 0.35 KM |
| Euroschool Bhumkar Chowk | 0.36 KM |
| Akshara International School & Junior College | 0.38 KM |
| Akshara International School | 0.38 KM |
| Indus Champs School | 0.42 KM |
| Challenger Public School | 0.46 KM |
| Induschamps School Cbse | 0.50 KM |
| Abhaji Rambhau Bhumkar Primary School | 0.73 KM |
| My School | 0.78 KM |
| My School Wakad | Best Cbse School In Wakad | 0.91 KM |
| Bus Stops Near by RGS Forte | |
|---|---|
| Bhumkar Nagar | 0.53 KM |
| Tukaram Bhumkar Nagar | 0.53 KM |
| Sant Tukaram Mangal Karyalaya | 0.59 KM |
| Sant Tukaram Garden | 0.73 KM |
| Bhumkar Chowk | 0.78 KM |
| Indira Institute | 0.81 KM |
| Hinjawadi Jakat Naka | 0.90 KM |
| Bu Bhandari Showroom | 0.91 KM |
| Kala Khadak Colony | 1.10 KM |
| Jadhav Corner ( Kala Khadak) | 1.17 KM |
| Hospitals Near by RGS Forte | |
|---|---|
| Sunmed Hospital | 0.30 KM |
| Golden Care Hospital | 0.46 KM |
| Vithai Piles Hospital-best Piles Doctor In Pune | 0.63 KM |
| Srushti Hospital | 0.71 KM |
| Mitosis Hospital | 0.83 KM |
| Mediplus Speciality Hospital Pvt. Ltd. | 0.88 KM |
| Shreeji Multispeciality Hospital & Clinic | 1.09 KM |
| Ashraya Hospital | Multispeciality Hospital In Pune | 1.15 KM |
| Aradhya Hospital | 1.19 KM |
| Swarn Hospital | 1.23 KM |
| Clinics Near by RGS Forte | |
|---|---|
| Shraddha Dental Clinic-dr. Shraddha Paraskar | 0.47 KM |
| Rohati Ayurved Pune - Ayurved Fertility Center | 0.50 KM |
| Grinsen Dental Clinic | 0.78 KM |
| Jyotiramay Surgical Clinic - Dr Rutuja Gore | 0.78 KM |
| Dr Bhakti Dhamangaonkar | 0.83 KM |
| Medimap Diagnostics | 0.92 KM |
| Tiny Bliss Child Care - Dr.amol Dindgire | 1.09 KM |
| Toothbooth Dr.kalyani's Dental Clinic | 1.21 KM |
| Dr Siddhi's Clinic [dr.siddhi Kulkarni] | 1.46 KM |
| Shree Clinic Where Compassion Meets Care | 1.49 KM |
| Gym Fitness Near by RGS Forte | |
|---|---|
| Fitsoul Wellness Club | 0.54 KM |
| Muscle Time Fitness | 0.66 KM |
| Asan Yoga Pune | 0.72 KM |
| Vencer Fitness Club | 0.97 KM |
| Wellness Home Of Fitness | 1.07 KM |
| Gold's Gym Hinjawadi ( Bhumkar Chowk ) | 1.17 KM |
| Eon Fitness Empire Hinjewadi | 1.33 KM |
| Highfit Fitness Club (hinjewadi) | 1.49 KM |
| Sigma World Fitness | 1.51 KM |
| Forma Fitness Club | 1.58 KM |
| Restaurants Near by RGS Forte | |
|---|---|
| The Wise Guys | 0.79 KM |
| Cloud 99 | 0.86 KM |
| Barbeque Nation | 1.23 KM |
| Turque - Sayaji Hotel | 1.23 KM |
| Portico - Sayaji Hotel | 1.23 KM |
| Eight | 1.45 KM |
| You Mee | 1.46 KM |
| Agent Jack's | 1.55 KM |
| Ancient Hyderabad | 1.56 KM |
| Fml - Food Music Love | 1.57 KM |
| Temples Near by RGS Forte | |
|---|---|
| Ganesh Temple | 1.31 KM |
| Shri Ganesh Mandir | 1.74 KM |
| Lord Dattatrey Temple | 1.91 KM |
| Mhatoba Mandir | 2.02 KM |
| Mayureshwar Ganesh Mandir | 2.03 KM |
| Shree Datta Mandir Wakad | 2.22 KM |
| Shree Mhatoba Mandir Wakad | 2.44 KM |
| Shree 1008 Chandaprabhu Digambar Jain Mandir Wakad (new Location) | 2.45 KM |
| Balaji Temple Punawale | 2.77 KM |
| Shri Kalyan Venkateshwara Swamy || Balaji Temple | 2.79 KM |
| College and Universities Near by RGS Forte | |
|---|---|
| Iiebm - Indus Business School | 0.42 KM |
| Indira Institute Of Management Pgdm | 0.62 KM |
| Indira School Of Business Studies | 0.70 KM |
| Indira College Of Commerce & Science (iccs) | 0.74 KM |
| Indira College Of Pharmacy Pune | 0.78 KM |
| Sankalp Iti College Pimpri Chinchwad | 0.81 KM |
| Institute Of Science Poona's College Of Computer Sciences | 1.00 KM |
| Ibmr College | 1.01 KM |
| Akemi Business School | 1.03 KM |
| Dr. D. Y. Patil School Of Design | 1.08 KM |
| Supermarkets Near by RGS Forte | |
|---|---|
| R Mart | Qualiitail | Wholesale Market | 0.60 KM |
| D Mart | 1.55 KM |
| R Fresh Mart | 2.05 KM |
| Star Bazaar Wakad | 2.07 KM |
| The Fresh Mart | 2.10 KM |
| Star Bazaar | 2.43 KM |
| Dmart Ready | 2.48 KM |
| United Mart | 2.62 KM |
| Ashtavinayak Super Mart | 3.08 KM |
| Green Mart Vegetable And Fruits | 3.19 KM |
| Clothings Near by RGS Forte | |
|---|---|
| Decathlon Sports Wakad | 0.78 KM |
| Firstcry.com Store City Avenue Pune Wakad | 1.03 KM |
| Firstcry.com Store Pune Hinjawadi | 1.62 KM |
| Me N Moms Baby Care & Kids Store In Hinjewadi | 1.63 KM |
| Zudio - Wakad | 2.09 KM |
| Lifestyle Stores | 2.43 KM |
| Westside - Pune Hinjewadi | 2.45 KM |
| Zudio - Star Bazaar | 2.46 KM |
| Firstcry.com Store Pune Wakad | 2.67 KM |
| Me N Moms Baby Care & Kids Store In Wakad | 2.75 KM |
Check Travel Time
Connecting Roads - RGS Forte
Wakad is a developing area situated in Pune, Maharashtra and is close to the famous Rajiv Gandhi Infotech Park at Hinjewadi. The pin code of Wakad is 411057 and the postal head office is Infotech Park Hinjawadi. Wakad is surrounded by Maval Taluka,Talegaon Dabhade Taluka, Chinchwad and Velhe. Marathi is the local language in this locality, people also speak and understand English and Hindi too. Wakad was once mostly known for
Properties in RGS Forte & Top Sellers
This website is only for the purpose of providing information regarding real estate projects in different geographies. Any information which is being provided on this website is not an advertisement or a solicitation. The company has not verified the information and the compliances of the projects. Further, the company has not checked the RERA* registration status of the real estate projects listed herein. The company does not make any representation in regards to the compliances done against these projects. Please note that you should make yourself aware about the RERA* registration status of the listed real estate projects.
*Real Estate (regulation & development) act 2016.