A total of 15 residential transactions has been registered so far for Kankariya Skyra Evershine, amounting to ₹ 6 Cr till November 2025.

100% Service, 0% Brokerage
Highly unlikely, but if you find a lower price anywhere, tell us and we will match it.
Our sales personnel are accountable for every step
Own this home with EMIs starting at ₹ 27.07 K/month - Check Cibil Linked Loan Estimate
A total of 15 residential transactions has been registered so far for Kankariya Skyra Evershine, amounting to ₹ 6 Cr till November 2025.
External Works has reached 85%, Internal finishing stands at 37%, MEP Services including lift and staircases, are now 40% done.
During Q3'2025, average property prices for Kankariya Skyra Evershine moved from ₹ 7,900/sqft to ₹ 7,950/sqft, reflecting a 0.63% rise.
During Q1'2025, average property prices for Kankariya Skyra Evershine moved from ₹ 8,700/sqft to ₹ 9,050/sqft, reflecting a 4.02% rise.
Structural Works reach 60% completion, External Works has reached 70%, MEP Services including lift and staircases, are now 35% done.
A total of 49 out of 84 launched units have been booked as of December 2024, including 63% of 1 BHK(26 out of 41 units), 53% of 2 BHK(23 out of 43 units).
Structural Works reach 56% completion, External Works has reached 10%, Internal finishing stands at 30%, MEP Services including lift and staircases, are now 25% done.
A total of 26 out of 120 launched units have been booked as of May 2023, including 22% of 1 BHK(13 out of 60 units), 22% of 2 BHK(13 out of 60 units).
Structural Works reach 50% completion, Internal finishing stands at 25%, MEP Services including lift and staircases, are now 15% done.
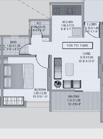
SKYRA EVERSHINE, officially launched on 10-Mar-2021 and expected to complete by 30-Jun-2026. Registered under RERA No. P52100028551. The project comprises 1 towers and offers 84 residential units, including 1 BHK, 2 BHK, with unit sizes ranging from 344 to 517 Square feet across a total area of 0.69 Acre.
| Master Bedroom-Walls | Oil Bound Distemper |
| Master Bedroom-Flooring | Vitrified Tiles |
| Other Bedrooms-Flooring | Vitrified Tiles |
| Walls | Oil Bound Distemper |
| Living Area-Flooring | Vitrified Tiles |
| Structure | RCC Frame Structure |
| Schools Near by Kankariya Skyra Evershine | |
|---|---|
| Ariana International School Nande Pune | 0.64 KM |
| Sri Chaitanya Girls Junior College | 2.32 KM |
| Dhruv Global School | 2.80 KM |
| Tree House High School | 3.17 KM |
| Global Indian International School - Top School In Pune | Best Cbse School In Balewadi | 3.19 KM |
| Global Indian International School | 3.20 KM |
| Orchids The International School | 3.40 KM |
| Ariana International School Mahalunge Pune | 3.56 KM |
| Ryan International Academy | 3.62 KM |
| Pawar Public School | 3.87 KM |
| Bus Stops Near by Kankariya Skyra Evershine | |
|---|---|
| Bhairavnath Mandir Chande | 0.08 KM |
| Nandegaon Phata | 0.67 KM |
| Gaikwad Vasti Nandegaon | 0.75 KM |
| Vitbhatti Chande | 0.87 KM |
| Dhamalevasti Nande Gaon | 1.13 KM |
| Jilha Parishad Shala Chande | 1.20 KM |
| Shitole Vasti Nandegaon | 1.26 KM |
| Shitolevasti Lavle | 1.75 KM |
| Parkhi Madhyamik Vidyalay | 1.99 KM |
| Aynalvasti | 2.01 KM |
| Hospitals Near by Kankariya Skyra Evershine | |
|---|---|
| Sant Tukaram Hospital | 2.12 KM |
| Kalpataru Hospital | 2.23 KM |
| Nexus Care Multi-speciality Hospital | 2.54 KM |
| Nexus Care Hospital | 2.54 KM |
| Symbiosis University Hospital & Research Centre | 2.75 KM |
| Ganpati Multi Speciality Hospital | 3.45 KM |
| Bharti Vidyapeeth Hospital Lavale Pune | 3.48 KM |
| Sus Hospital Pune | 4.26 KM |
| Vedant Hospital | 4.37 KM |
| Apple Multispeciality Hospital | 4.62 KM |
| Clinics Near by Kankariya Skyra Evershine | |
|---|---|
| Dr Gavhane's Clinic | 0.54 KM |
| Redcliffe Labs - Collection Center | 0.64 KM |
| Dr Chitralekha Jadhav - Dr.chitra's Clinic | 0.70 KM |
| Physioprime | Physiotherapy In Hinjewadi | 1.86 KM |
| Rudra Pathology Lab | 2.03 KM |
| Dr Patil's Dental Clinic | 2.04 KM |
| Infinity Clinic | 2.19 KM |
| Dr. Abhishek Saklecha | 2.47 KM |
| Ashirwad Homeo Clinic & Optics | 2.65 KM |
| Hope Speech Therapy | 2.92 KM |
| Restaurants Near by Kankariya Skyra Evershine | |
|---|---|
| Aroma's Hyderabad House - Phase 3 | 3.03 KM |
| The Ruby Hilltop - Sunny's World | 3.12 KM |
| Karolbaug The Dhaba | 3.55 KM |
| The 3 Musketeers Cafe & Bar | 3.64 KM |
| Bird Valley | 3.67 KM |
| Spice Nation | 3.75 KM |
| Mother's Kitchen | 3.78 KM |
| Citrus Cafe - Lemon Tree Hotel | 4.17 KM |
| Blu Grass | 4.26 KM |
| 24/7 Gallery Cafe - Hyatt Place | 4.31 KM |
| Gym Fitness Near by Kankariya Skyra Evershine | |
|---|---|
| Dattakrupa Hightech Gym | 1.66 KM |
| Shiv Datta Fitness Club Thakarwasti | 1.69 KM |
| Brain Gym Abacus Pune | 1.79 KM |
| Kratos Gym & Fitness Hub | 2.42 KM |
| Yogasana Classes ( Silm Prmm Bhusnm ) | 2.57 KM |
| Cosmos Yoga And Wellness Studio | 3.56 KM |
| 24k Fitness | 3.61 KM |
| Trishul Fitness | 3.63 KM |
| Transform & Grooves | 3.63 KM |
| Symbiosis Gym Center | 3.69 KM |
| College and Universities Near by Kankariya Skyra Evershine | |
|---|---|
| Neeti Heritage Societypune | 0.74 KM |
| Symbiosis Institute Of Health Sciences | 2.59 KM |
| Symbiosis College Of Nursing (scon) | 2.75 KM |
| International School Of Business & Media | 2.79 KM |
| Symbiosis Medical College For Women (smcw) | 2.88 KM |
| Isbm College Of Engineering | 2.91 KM |
| Isb&m College Of Commerce | 2.93 KM |
| Symbiosis Institute Of Business Management Pune | 3.14 KM |
| Symbiosis Institute Of Digital & Telecom Management (sidtm) | 3.19 KM |
| Symbiosis International (deemed University) | 3.36 KM |
| Temples Near by Kankariya Skyra Evershine | |
|---|---|
| Waghjaai Devi Mandir | 1.09 KM |
| Datta Mandir Thakarwasti | 1.70 KM |
| Bhairavnath Mandir Thakarnagar Maan | 1.81 KM |
| Maandevi Mandir | 2.03 KM |
| Mahadev Shiva Temple | 2.60 KM |
| Shree Mahadev Mandir Maan | 2.86 KM |
| Shitala Devi Korai Mata Mandir Gawar Wadi | 3.14 KM |
| Shree Datta Mandir | 3.14 KM |
| Gawarewadi Hanuman Mandir Maan | 3.18 KM |
| Khandoba Mandir | 3.31 KM |
| Supermarkets Near by Kankariya Skyra Evershine | |
|---|---|
| Royal Market | 2.60 KM |
| Metro Super Mall | Qualitail | 3.10 KM |
| New Green Mart Super Store | Qualitail | 3.11 KM |
| Mega Market | 3.31 KM |
| Super Mega Store | 3.33 KM |
| Green Mart Vegetable And Fruits | 3.69 KM |
| Jyoti Fresh Mart | 3.74 KM |
| M G Mart | Qualitail | 3.87 KM |
| Green Mart Bhoirwadi | 4.12 KM |
| Star Bazaar | 4.49 KM |
| Clothings Near by Kankariya Skyra Evershine | |
|---|---|
| Jockey Store/brand Club /jmd Fashion | 3.15 KM |
| Spykar | 4.09 KM |
| Zudio - Star Bazaar | 4.48 KM |
| Lifestyle Stores | 4.49 KM |
| Westside - Pune Hinjewadi | 4.50 KM |
| Firstcry.com Store Pune Hinjawadi | 5.35 KM |
| Me N Moms Baby Care & Kids Store In Hinjewadi | 5.36 KM |
| Jockey Exclusive Store | 5.72 KM |
| Spykar Factory Outlet Paud Road | 5.72 KM |
| The Raymond Shop | 5.72 KM |
Check Travel Time
Connecting Roads - Kankariya Skyra Evershine
Chande, situated in the scenic Mulshi district of Pune, is rising as a preferred residential zone, blending residential plots, multi-story apartments, and commercial venues. Its proximity to the tranquil Mula River underscores the area's serene ambience, complemented by a well-founded infrastructure. The strategic location of Chande, further bolstered by the Chande-Nande Road, ensures smooth connectivity to nearby urban centres, including Pimpri-Chinchwad, Pune, Talegaon Dabhade, and Lonavla. Despite traffic congestion challenges,
This website is only for the purpose of providing information regarding real estate projects in different geographies. Any information which is being provided on this website is not an advertisement or a solicitation. The company has not verified the information and the compliances of the projects. Further, the company has not checked the RERA* registration status of the real estate projects listed herein. The company does not make any representation in regards to the compliances done against these projects. Please note that you should make yourself aware about the RERA* registration status of the listed real estate projects.
*Real Estate (regulation & development) act 2016.